INFINA LOGO
Entspannt zur Immobilie Persönlich & kompetent beraten Finanzierbarkeit sofort überprüfbar
445.000 €
Kostenlos &
unverbindlich.
Kontakt aufnehmen
+ 1 Bilder

Traumwohnungen mit Kahlenberg-Blick – Großzügige Außenflächen, Photovoltaik & Fußboden-Kühlung

Obj. Nr.: 21777

ca. 67,69 m² Wohnfläche 3 Zimmer
Partner von Infina Alexander Ringsmuth Immobilien Immobilienmakler 
Partner von Infina Alexander Ringsmuth Immobilien Immobilienmakler
445.000 € Kaufpreis der Immobilie Kreditvergleich von über 120 Banken mit Infina.
Immobilie finanzieren
Mehr Informationen zur Immobilie: Detaillierte Einblicke in dieses Objekt.
Zurück zur Übersicht

Objektstandort

1210 Wien Adresse anfragen

Directions Icon Fahrtzeit berechnen
Preisinformationen
Kaufpreis 445.000 €
Grundbucheintragung: 1.1 %
Grunderwerbsteuer: 3.5 %
Was kann ich mir leisten?
Jetzt berechnen
Maklerprovision:
3,00 % des Kaufpreises zzgl. 20 % USt.

Objektinformationen

Objektart: Wohnung
Nutzungsart: Wohnen
Bauart: Neubau
Zustand: Erstbezug
Baujahr: 2025

Rauminformationen & Flächen

Wohnfläche: ca. 67,69 m²
Kellerfläche: ca. 3,10 m²
Balkonfläche: ca. 7,48 m²
Anzahl Balkone: 1
Anzahl Zimmer: 3
Anzahl WC: 1
Anzahl Bäder: 1

Ausstattung

Boden: Fliesen, Parkett
Befeuerung: Luftwärmepumpe
Heizungsart: Fußbodenheizung
Fahrstuhl: Personenaufzug
Bad: Dusche
Stellplatzart: Garage

Lage

Lagebeschreibung :

Diese Immobilie befindet sich in einer der begehrtesten Wohngegenden im Norden Wiens, im malerischen Stadtteil Strebersdorf im 21. Bezirk. Die Umgebung bietet eine einzigartige Kombination aus Ruhe, Naturverbundenheit und urbanem Komfort – ein idealer Ort für anspruchsvolle Familien, Berufstätige und Naturliebhaber.

Naturnahe Umgebung
Eingebettet in eine grüne und gepflegte Wohngegend besticht die Lage durch die Nähe zu den Weinbergen von Strebersdorf und dem Bisamberg. Diese laden zu Spaziergängen, Radtouren und sportlichen Aktivitäten ein. Der nahegelegene Marchfeldkanal bietet eine weitere Möglichkeit zur Erholung in der Natur, während Sie dennoch die Vorteile einer städtischen Infrastruktur genießen.

Perfekte Anbindung
Die Verkehrsanbindung ist exzellent: Mit den öffentlichen Verkehrsmitteln wie der Straßenbahnlinie 26 und der Buslinie 32A erreichen Sie in kurzer Zeit die U-Bahn-Station Floridsdorf (U6) sowie die S-Bahn-Station Strebersdorf. Auch für Autofahrer ist die Lage ideal – die Donauuferautobahn (A22) bietet eine schnelle Verbindung sowohl in die Innenstadt als auch ins Umland.

Ausgezeichnete Infrastruktur
In der unmittelbaren Umgebung finden Sie zahlreiche Einkaufsmöglichkeiten, von Supermärkten bis hin zu traditionellen Heurigen und Restaurants, die für ihre Wiener Küche und Weine bekannt sind. Bildungseinrichtungen wie das renommierte Privatgymnasium De La Salle sowie Kindergärten und Volksschulen machen die Gegend besonders familienfreundlich.

Diese Lage bietet eine perfekte Balance aus urbanem Komfort, naturnaher Idylle und hervorragender Lebensqualität.

Beschreibung *

Exklusives Wohnhaus mit nur 7 Einheiten – Stil trifft Qualität in begehrter Ruhelage

In einer der gefragtesten Wohngegenden präsentiert sich dieses architektonisch ansprechende Wohnhaus mit nur sieben hochwertig ausgestatteten Eigentumswohnungen. Das Projekt überzeugt durch zeitloses Design, durchdachte Grundrisse und ein hohes Maß an Wohnkomfort – ideal für anspruchsvolle Eigennutzer und Kapitalanleger gleichermaßen.

Die Wohnungen verteilen sich auf Erdgeschoss, Obergeschoss und Dachgeschoss und bieten Wohnflächen von ca.  45 m² bis 114 m² . Ob kompakt oder großzügig – jede Einheit ist ein durchdachtes Zuhause mit Wohlfühlgarantie.

Highlights auf einen Blick

  • Wohnflächen von ca. 45 m² bis 114 m² : 2 bis 5 Zimmer – perfekt für Singles, Paare oder Familien.

  • Private Außenbereiche : Private Außenbereiche: Geräumige Balkone, sonnige Terrassen oder idyllische Eigengärten – alle ausgestattet mit Stromanschluss und Beleuchtung für höchsten Komfort.

  • Hochwertige Ausstattung : Modernes Design trifft auf erstklassige Materialien.

  • Fußbodenheizung und Kühlung : Angenehmes Wohnklima in allen Räumen.

  • Echtholzparkett in Wohnräumen  und  italienisches Feinsteinzeug in den Bädern : Elegantes, modernes Wohnambiente.

  • Elektrisch bedienbarer Sonnenschutz mit Funksteuerung (Raffstore)  für maximalen Komfort.

  • Glasfaseranschluss (A1)  für High-Speed-Internet – perfekt für modernes Arbeiten und Entertainment.

  • Wohnungseingangstüren der renommierten Marke Kunex : Hochwertige Sicherheitstüren, die Stil und maximale Sicherheit vereinen.

  • Innentüren in edlem Design der Marke Nussbaum : Flächenbündig und stilvoll – ein eleganter Akzent in jedem Raum.

  • PV-Anlage am Dach inkl. Speicher : Nachhaltig und zukunftsorientiert.

  • Gegensprechanlage mit Videofunktion : Komfort und Sicherheit vereint.

  • Klimaanlage in den Dachgeschosswohnungen : Für optimalen Wohnkomfort.

  • 3-fach-verglaste Alu-Kunststofffenster von JOSKO : Energieeffizient und schalldämmend.

  • Barrierefreier Zugang : Mit einem hochwertigen Lift der Marke Otis.

  • Zusätzlicher Stauraum : Eigene Kellerabteile, Fahrrad- und Kinderwagenräume.

 

 

Exklusive Wohneinheiten im Überblick

Top 1: 3-Zimmer Gartenwohnung

  • Wohnfläche:  65,48 m²

  • Außenbereich:  50 m² Terrasse + 93,48 m² Garten

  • Preis:  € 499.500

Top 2: 4-Zimmer Gartenwohnung

  • Wohnfläche:  82,64 m²

  • Außenbereich:  46,73 m² Terrasse + 77,88 m² Garten

  • Preis:  € 599.500

Top 3: 3-Zimmer Wohnung

  • Wohnfläche:  65,26 m²

  • Außenbereich:  8,4 m² Balkon

  • Preis:  € 420.000

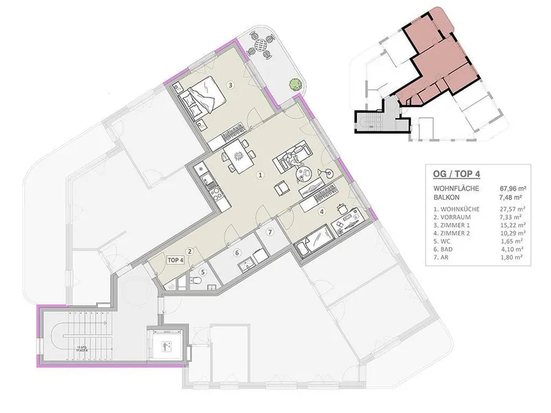
Top 4: 3-Zimmer Wohnung

  • Wohnfläche:  67,96 m²

  • Außenbereich:  7,48 m² Balkon

  • Preis:  € 445.000

Top 5: 2-Zimmer Wohnung

  • Wohnfläche:  44,15 m²

  • Außenbereich:  19,62 m² Balkon

  • Preis:  € 325.000

Top 6: 4-Zimmer Maisonette-Wohnung

  • Wohnfläche:  78,95 m²

  • Außenbereich:  8,4 m² Balkon + 31,72 m² Terrasse

  • Preis:  € 645.000

Top 7: 5-Zimmer Maisonette-Wohnung

  • Wohnfläche:  113,72 m²

  • Außenbereich:  27,44 m² Balkon + 46 m² Terrasse

  • Preis:  € 895.000

 

 

Lage & Umgebung

Dieses Wohnhaus befindet sich in einer ruhigen und grünen Umgebung, geprägt von gepflegten Einfamilienhäusern und modernen Wohnanlagen. Die Nähe zu den  Weinbergen von Strebersdorf  und dem  Bisamberg  bietet nicht nur ein malerisches Panorama, sondern auch zahlreiche Freizeitmöglichkeiten wie Wandern, Radfahren oder gemütliche Spaziergänge.

Die  Nahversorgung  ist ausgezeichnet: Supermärkte, Bäckereien und Geschäfte des täglichen Bedarfs befinden sich in unmittelbarer Nähe. Der  Marchfeldkanal  lädt zu entspannenden Stunden in der Natur ein – und das nur wenige Minuten von Ihrer Haustür entfernt.

Jetzt Besichtigung vereinbaren und Zuhause finden

Lassen Sie sich persönlich beraten und entdecken Sie, welches Zuhause zu Ihnen passt.
  Herr Kraus Philipp  steht Ihnen für individuelle Besichtigungstermine gerne zur Verfügung:
 📞  +43 664 2206915
 
🌐  www.ringsmuth-immobilien.at

3-Zimmer-Wohnung mit Balkon, großem Vorzimmer & Abstellraum – Ihr neues Zuhause wartet!

Diese charmante Wohnung überzeugt durch ihre durchdachte Raumaufteilung, helle Räume und ein angenehmes Wohngefühl vom ersten Moment an.
Ideal geeignet für Paare, kleine Familien oder Menschen, die Arbeiten und Wohnen stilvoll kombinieren möchten.

Raumaufteilung :

Vorzimmer

  • Großzügiges, längliches Vorzimmer mit viel Platz für Garderobe und Stauraum

  • Zentrale Verteilerfunktion – von hier aus gelangt man in alle Nebenräume

Abstellraum

  • Praktischer Abstellraum innerhalb der Wohnung

  • Ideal für Putzmittel, Vorräte oder sonstige Haushaltsgegenstände

Wohnzimmer

  • Großzügiges, helles Wohnzimmer

  • Zugang zu beiden weiteren Zimmern (getrennt begehbar)

  • Ausgang auf den Balkon – perfekt für gemütliche Abende 

Zimmer 1

  • Helles Zimmer mit Zugang vom Wohnzimmer

  • Direkter Zugang zum Balkon – ideal als Schlafzimmer oder Arbeitszimmer

Zimmer 2

  • Ebenfalls vom Wohnzimmer aus begehbar

  • Ruhig gelegen, vielseitig nutzbar (z. B. Kinderzimmer, Gästezimmer oder Büro)

Balkon

  • Vom Wohnzimmer und einem der Zimmer aus zugänglich

  • Platz für Tisch, Stühle oder Pflanzen

  • Ideal zum Entspannen und Frischluft genießen

Highlights auf einen Blick:

  • Balkonzugang  sowohl vom  Wohnzimmer  als auch vom  Schlafzimmer

  • Großes, langes Vorzimmer  mit viel Platz für Stauraum & Gestaltung

  • Hochwertige Ausstattung:  Modernes Design trifft auf erstklassige Materialien für höchsten Wohnkomfort

  • Fußbodenheizung und Kühlung:  In allen Räumen – individuell regulierbar

  • Echtholzparkett & Feinsteinzeug:  Edler Echtholzparkettboden in den Wohnräumen, stilvolles Feinsteinzeug in Bad und WC

  • Elektrisch bedienbarer Sonnenschutz:  Komfortabel per Funk steuerbar – ideal an sonnigen Tagen

  • High-Speed-Internet:  Glasfaseranschluss (A1) für ultraschnelles Surfen und produktives Homeoffice

  • Eigener Abstellraum  innerhalb der Wohnung – Ordnung mit System

Highlights des Projekts 

  • Wohnflächen von ca. 45 m² bis 114 m² : 2 bis 5 Zimmer – perfekt für Singles, Paare oder Familien.

  • Private Außenbereiche : Private Außenbereiche: Geräumige Balkone, sonnige Terrassen oder idyllische Eigengärten – alle ausgestattet mit Stromanschluss und Beleuchtung für höchsten Komfort.

  • Hochwertige Ausstattung : Modernes Design trifft auf erstklassige Materialien.

  • Fußbodenheizung und Kühlung : Angenehmes Wohnklima in allen Räumen.

  • Echtholzparkett in Wohnräumen  und  italienisches Feinsteinzeug in den Bädern : Elegantes, modernes Wohnambiente.

  • Elektrisch bedienbarer Sonnenschutz mit Funksteuerung (Raffstore)  für maximalen Komfort.

  • Glasfaseranschluss (A1)  für High-Speed-Internet – perfekt für modernes Arbeiten und Entertainment.

  • Wohnungseingangstüren der renommierten Marke Kunex : Hochwertige Sicherheitstüren, die Stil und maximale Sicherheit vereinen.

  • Innentüren in edlem Design der Marke Nussbaum : Flächenbündig und stilvoll – ein eleganter Akzent in jedem Raum.

  • PV-Anlage am Dach inkl. Speicher : Nachhaltig und zukunftsorientiert.

  • Gegensprechanlage mit Videofunktion : Komfort und Sicherheit vereint.

  • Klimaanlage in den Dachgeschosswohnungen : Für optimalen Wohnkomfort.

  • 3-fach-verglaste Alu-Kunststofffenster von JOSKO : Energieeffizient und schalldämmend.

  • Barrierefreier Zugang : Mit einem hochwertigen Lift der Marke Otis.

  • Zusätzlicher Stauraum : Eigene Kellerabteile, Fahrrad- und Kinderwagenräume.

  • Anschlüsse auf allen Freiflächen – Komfort bis ins Detail
    Alle Terrassen und Balkone sind mit Strom- und Wasseranschluss ausgestattet – ideal für stimmungsvolle Beleuchtung, Elektrogrills, Pflanzenbewässerung oder Outdoor-Living auf höchstem Niveau.

Zusätzlicher Wohnkomfort

  • Tiefgarage : vorbereitet für E-Mobilität mit anschlussfertigen Ladestationen

  • Praktischer Stauraum : Eigene Kellerabteile sowie Fahrrad- und Kinderwagenräume bieten zusätzlichen Platz

Diese Immobilie verbindet modernes Design mit erstklassiger Funktionalität. Der großzügige Balkon schafft Raum für Erholung, während die zentrale Lage, die hochwertige Ausstattung und die durchdachten Extras höchsten Wohnkomfort garantieren.

Exklusive Wohneinheiten im Überblick

Top 1: 3-Zimmer Gartenwohnung

  • Wohnfläche:  65,48 m²

  • Außenbereich:  50 m² Terrasse + 93,48 m² Garten

  • Preis:  € 499.500

Top 2: 4-Zimmer Gartenwohnung

  • Wohnfläche:  82,64 m²

  • Außenbereich:  46,73 m² Terrasse + 77,88 m² Garten

  • Preis:  € 599.500

Top 3: 3-Zimmer Wohnung

  • Wohnfläche:  65,26 m²

  • Außenbereich:  8,4 m² Balkon

  • Preis:  € 420.000

Top 4: 3-Zimmer Wohnung

  • Wohnfläche:  67,96 m²

  • Außenbereich:  7,48 m² Balkon

  • Preis:  € 445.000

Top 5: 2-Zimmer Wohnung

  • Wohnfläche:  44,15 m²

  • Außenbereich:  19,62 m² Balkon

  • Preis:  € 325.000

Top 6: 4-Zimmer Maisonette-Wohnung

  • Wohnfläche:  78,95 m²

  • Außenbereich:  8,4 m² Balkon + 31,72 m² Terrasse

  • Preis:  € 645.000

Top 7: 5-Zimmer Maisonette-Wohnung

  • Wohnfläche:  113,72 m²

  • Außenbereich:  27,44 m² Balkon + 46 m² Terrasse

  • Preis:  € 895.000

 

Jetzt Besichtigung vereinbaren und Zuhause finden

Lassen Sie sich persönlich beraten und entdecken Sie, welches Zuhause zu Ihnen passt.
  Herr Kraus Philipp  steht Ihnen für individuelle Besichtigungstermine gerne zur Verfügung:
 📞  +43 664 2206915
 
🌐  www.ringsmuth-immobilien.at

Irrtum und Änderungen vorbehalten !


Infrastruktur / Entfernungen

Gesundheit
Arzt <1.000m
Apotheke <1.000m
Klinik <2.000m
Krankenhaus <2.000m

Kinder & Schulen
Schule <500m
Kindergarten <1.000m
Universität <2.000m
Höhere Schule <3.000m

Nahversorgung
Supermarkt <1.000m
Bäckerei <1.000m
Einkaufszentrum <1.500m

Sonstige
Bank <1.000m
Geldautomat <1.000m
Post <1.000m
Polizei <1.500m

Verkehr
Bus <500m
U-Bahn <3.000m
Straßenbahn <1.000m
Bahnhof <1.500m
Autobahnanschluss <2.000m

Angaben Entfernung Luftlinie / Quelle: OpenStreetMap


*Wir weisen Sie darauf hin, dass die gemachten Angaben und Informationen lediglich unverbindliche Vorabinformationen sind und daher ohne Gewähr erfolgen. Die Angaben beruhen auf Informationen und Unterlagen, die uns von Dritten bereitgestellt wurden.

Energieausweis & Heizung
HWB (kWh/m2/Jahr): 24.9
HWB Energieklasse: Energieeffizienzklasse A
fGEE: 0.68
fGEE Energieklasse: Energieeffizienzklasse A+
Gültig bis: 01.12.2034
Heizung: Fußbodenheizung
Befeuerung: Luftwärmepumpe
Dokumente & Videos Pläne
Partner von Infina Alexander Ringsmuth Immobilien Immobilienmakler
Kinder & Schulen:
Höhere Schule: 2290 m
Schule: 70 m
Kindergarten: 120 m
Universität: 1920 m
Verkehr:
Straßenbahn: 50 m
U-Bahn: 2340 m
Autobahnanschluss: 1050 m
Bus: 40 m
Bahnhof: 2330 m
Sonstige:
Bank: 40 m
Post: 40 m
Polizei: 470 m
Geldautomat: 400 m
Nahversorgung:
Bäckerei: 100 m
Supermarkt: 110 m
Einkaufszentrum: 560 m
Gesundheit:
Apotheke: 30 m
Arzt: 30 m
Klinik: 1040 m
Krankenhaus: 1060 m

Jetzt Experten kontaktieren

Weitere interessante Objekte

Partner von Infina
Jetzt anfragen
ca. 52,97 m² Wohnfläche 2 Zimmer
836 €

Immobilie kaufen: Das passende Angebot finden

Der Kauf einer Immobilie ist eine wichtige Entscheidung – sei es für die Eigennutzung oder zur Vermietung. Mit unserem Portal unterstützen wir Sie dabei, die richtige Immobilie zu kaufen. Nutzen Sie unsere Suchmöglichkeiten, um gezielt eine Immobilie zu suchen, die Ihren Vorstellungen entspricht. Unsere Immobilienangebote decken eine breite Palette ab: vom Einfamilienhaus über die Eigentumswohnung bis hin zum Grundstück für Ihr Bauvorhaben. Mit uns können Sie sicher und unkompliziert Eigentum erwerben – ob für die private Nutzung oder als Investition als Immobilie. Erkunden Sie jetzt unsere Angebote und finden Sie die perfekte Lösung, die zu Ihren Wohn- oder Anlagezielen passt.

Fundiertes Wissen für Ihre Entscheidung, eine Immobilie zu kaufen

Bereiten Sie sich bestens vor: Infina stellt Ihnen kostenlos über 300 Ratgeber und Beiträge zu den Themen Immobilie, Finanzierung, Zinsen und Recht zur Verfügung. Nutzen Sie unser umfassendes Wissen, um richtige Entscheidungen zu treffen.

Bei jedem Kauf einer Immobilie oder eines Grundstücks ist es wichtig, die passende Finanzierung zu finden. Mit seiner eigenen Vertriebsorganisation ist Infina als Wohnbau-Finanz-Experte an über 100 Standorten in ganz Österreich vertreten und vermittelt Finanzierungen an über 120 Banken und Bausparkassen. Nutzen Sie unseren kostenlosen Kreditvergleich für den passenden Wohnkredit: 

Kreditvergleich

Kostenlos und unverbindlich

Immobilie mieten: Ihr neues Zuhause wartet

Die Entscheidung, eine Immobilie zu mieten, bietet Flexibilität und zahlreiche Möglichkeiten – ob eine Wohnung für den Alltag oder ein Haus für die Familie. Bei Infina können Sie gezielt sowohl eine Wohnung suchen als auch ein Haus suchen, das Ihren Bedürfnissen entspricht. Unsere Angebote erleichtern es Ihnen, eine Mietwohnung zu suchen und Ihre ideale Wohnung finden zu können. Entdecken Sie vielfältige Optionen, um die passende Immobilie zu finden und Ihre Wohnträume zu verwirklichen. Starten Sie noch heute Ihre Suche und profitieren Sie von einer großen Auswahl an Mietobjekten in Ihrer Wunschregion.

Hilfreiche Informationen zu Immobilie mieten

Starten Sie gut vorbereitet in Ihre Mietentscheidung: Infina stellt Ihnen vielseitige Ratgeber und Beiträge zu Themen wie Immobilie, Mietrecht, Finanzierung und Wohntrends zur Verfügung. Verschaffen Sie sich einen Überblick über alle relevanten Aspekte und gestalten Sie Ihren Weg ins neue Zuhause einfacher und sicherer.

Erfolgreich zur neuen Immobilie

Mit Infina haben Sie einen verlässlichen Partner an Ihrer Seite, der Sie von der ersten Beratung bis zum erfolgreichen Abschluss ganzheitlich unterstützt. Erfahren Sie hier, wie wir gemeinsam Ihren Immobilienerfolg gestalten.

Starten Sie jetzt Ihre Immobiliensuche

Nach zahlreichen Informationen rund um die Themen Immobilie kaufen und Immobilie mieten können Sie nun den nächsten Schritt machen. Starten Sie die Immobiliensuche, um Ihr neues Zuhause oder Ihre nächste Investition zu finden und entdecken Sie die passenden Angebote:

Das innovative Portal für Immobilien und Finanzierung 

Als Kunde von Infina profitieren Sie von unserer umfangreichen und unabhängigen Expertise als Teil einer wachsenden, unabhängigen Immobilien- und Finanzierungsnetzwerkgruppe. Bereits 50.000 Kunden hat Infina erfolgreich bei Ihrem Vorhaben begleitet. Infina bietet Ihnen eine umfassende Beratung in allen Bereichen rund um Ihre Immobilienvorhaben:

Die passende Finanzierung für Ihre Immobilie

Mit Infina erhalten Sie nicht nur eine unabhängige Beratung, sondern auch die passende Finanzierungslösung für Ihre Immobilie. Aus den Angeboten von über 120 Banken und Bausparkassen vermitteln wir Ihnen das, was perfekt zu Ihren Bedürfnissen passt. Wir begleiten Sie professionell und verlässlich – von der ersten Beratung bis zum erfolgreichen Abschluss.

Kreditvergleich

Kostenlos und unverbindlich

Wir holen das Beste für Sie heraus

Verkaufen Sie Ihre Immobilie mit uns & profitieren Sie von unserer Expertise. Wir bringen Ihre Immobilie optimal auf den Markt & erzielen den besten Preis. 

Kontaktieren Sie uns jetzt.

Jetzt Experten kontaktieren
Junge Frau im pinken Blazer hält ein Modellhaus in der linken Hand und zeigt mit der rechten Hand nach oben, als hätte sie eine Idee. Sie lächelt und blickt leicht nach oben – symbolisch für Inspiration oder Immobilienberatung.