INFINA LOGO
Entspannt zur Immobilie Persönlich & kompetent beraten Finanzierbarkeit sofort überprüfbar
Auf Anfrage
Kostenlos &
unverbindlich.
Kontakt aufnehmen

Diplomatenviertel- Baugenehmigter Dachausbau: Zinshaus in gutem Zustand unweit der Landstraßer Hauptstraße

Obj. Nr.: 153892

ca. 485,00 m² Nutzfläche
Partner von Infina RealGoodLiving Immobilienmakler 
Partner von Infina RealGoodLiving Immobilienmakler
Auf Anfrage Kaufpreis der Immobilie Kreditvergleich von über 150 Banken mit Infina.
Immobilie finanzieren
Mehr Informationen zur Immobilie: Detaillierte Einblicke in dieses Objekt.
Zurück zur Übersicht

Objektstandort

1030 Wien Adresse anfragen

Directions Icon Fahrtzeit berechnen
Preisinformationen
Grundbucheintragung: 1.1 %
Grunderwerbsteuer: 3.5 %
Was kann ich mir leisten?
Jetzt berechnen
Maklerprovision:
3,00 % des Kaufpreises zzgl. 20 % USt.

Objektinformationen

Objektart: Zinshaus / Renditeobjekt
Nutzungsart: Anlage

Rauminformationen & Flächen

Nutzfläche: ca. 485,00 m²

Ausstattung

Beschreibung *

Wir präsentieren Ihnen ein Zinshaus in hervorragender Lage des 3. Bezirks.

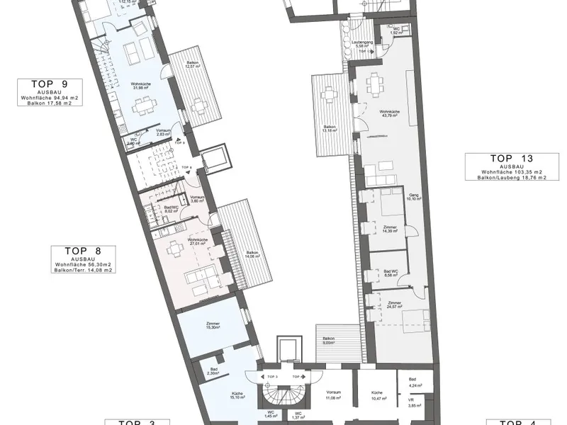
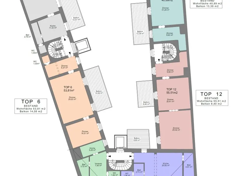
Das Objekt ist unterkellert und besteht aus einem Erdgeschoss und zwei Regelgeschossen. 

Im Keller sind ein Kinderwagen- und Fahrradabstellraum, sowie die Kellerabteile untergebracht. Im Erdgeschoß befinden sich der Müllraum und 3 Wohneinheiten. Das 1. und 2. Obergeschoß verfügt über jeweils 4 Wohneinheiten und die Wohnungen verfügen teilweise über einen Balkon Richtung Innenhof. 

Die Aufstockung des Gebäudes um das 3. und 4. Regelgeschoß, sowie der Einbau eines Aufzuges vom Keller bis in das ausgebaute Dachgeschoß, wurden auch bereits bewilligt. 

Nach Ausbau würden das 3. und 4. Obergeschoß jeweils über 3 Wohneinheiten verfügen und teilweise über Balkone und Terrassen. 

Im Dachgeschoß sind 2 Wohneinheiten mit großen Terrassen, Balkonen und Dachterrassen geplant. 

Das Objekt wird bei Übergabe komplett bestandsfrei übergeben. Laut der neuen Planung wird nach Umbau und Ausbau des Dachgeschoßes eine Gesamtnutzfläche von ca. 1.131,50m² erzielbar sein. Die Wohnungen werden teilweise über Balkone und Terrassen verfügen.

Durch einen Dachgeschossausbau können 138,47m² (zzgl. 107 m² Freiflächen) als zusätzliche Wohnfläche geschaffen werden. 

Weiters ist geplant Erdbohrungen durchzuführen und das Haus über Erdwärme zu versorgen, Fernwärme befindet sich direkt vor der Türe. 

Auch eine geplante Photovoltaikanlage, um kostengünstig Strom erzeugen zu können, lässt keine Wünsche offen! 

Bitte fordern Sie Ihr persönliches Exposèe an- unser Service ist Ihr Investment in Bestlage-wir beraten Sie gerne!


Kaufpreis auf Anfrage

Erfolgshonorar: lt ImmobilienmaklerVO

Wir weisen darauf hin, dass zwischen dem Vermittler und dem zu vermittelnden Dritten ein familiäres oder wirtschaftliches Naheverhältnis besteht.

Der Vermittler ist als Doppelmakler tätig.


*Der Vertrag kommt nicht mit der INFINA Credit Broker GmbH zustande. Das Objekt wird von einem externen Immobilienunternehmen angeboten. Allfällige aus dem Vertragsabschluss resultierende Rechte sind ausschließlich gegenüber dem anbietenden Immobilienunternehmen geltend zu machen. Wir weisen Sie darauf hin, dass die gemachten Angaben und Informationen lediglich unverbindliche Vorabinformationen sind und daher ohne Gewähr erfolgen. Der Vermittler ist als Doppelmakler tätig.

Partner von Infina RealGoodLiving Immobilienmakler
Verkehr:
Autobahnanschluss: 1580 m
Bahnhof: 70 m
Straßenbahn: 330 m
Bus: 90 m
U-Bahn: 60 m
Sonstige:
Polizei: 600 m
Geldautomat: 40 m
Bank: 40 m
Post: 120 m
Kinder & Schulen:
Kindergarten: 260 m
Höhere Schule: 370 m
Schule: 90 m
Universität: 380 m
Nahversorgung:
Bäckerei: 40 m
Supermarkt: 90 m
Einkaufszentrum: 140 m
Gesundheit:
Krankenhaus: 560 m
Apotheke: 60 m
Arzt: 150 m
Klinik: 460 m

Jetzt Experten kontaktieren

Weitere interessante Objekte

Partner von Infina
Jetzt anfragen
849.000 €

Immobilie kaufen: Das passende Angebot finden

Der Kauf einer Immobilie ist eine wichtige Entscheidung – sei es für die Eigennutzung oder zur Vermietung. Mit unserem Portal unterstützen wir Sie dabei, die richtige Immobilie zu kaufen. Nutzen Sie unsere Suchmöglichkeiten, um gezielt eine Immobilie zu suchen, die Ihren Vorstellungen entspricht. Unsere Immobilienangebote decken eine breite Palette ab: vom Einfamilienhaus über die Eigentumswohnung bis hin zum Grundstück für Ihr Bauvorhaben. Mit uns können Sie sicher und unkompliziert Eigentum erwerben – ob für die private Nutzung oder als Investition als Immobilie. Erkunden Sie jetzt unsere Angebote und finden Sie die perfekte Lösung, die zu Ihren Wohn- oder Anlagezielen passt.

Fundiertes Wissen für Ihre Entscheidung, eine Immobilie zu kaufen

Bereiten Sie sich bestens vor: Infina stellt Ihnen kostenlos über 300 Ratgeber und Beiträge zu den Themen Immobilie, Finanzierung, Zinsen und Recht zur Verfügung. Nutzen Sie unser umfassendes Wissen, um richtige Entscheidungen zu treffen.

Bei jedem Kauf einer Immobilie oder eines Grundstücks ist es wichtig, die passende Finanzierung zu finden. Mit seiner eigenen Vertriebsorganisation ist Infina als Wohnbau-Finanz-Experte an über 100 Standorten in ganz Österreich vertreten und vermittelt Finanzierungen an über 150 Banken und Bausparkassen. Nutzen Sie unseren kostenlosen Kreditvergleich für den passenden Wohnkredit: 

Kreditvergleich

Kostenlos und unverbindlich

Immobilie mieten: Ihr neues Zuhause wartet

Die Entscheidung, eine Immobilie zu mieten, bietet Flexibilität und zahlreiche Möglichkeiten – ob eine Wohnung für den Alltag oder ein Haus für die Familie. Bei Infina können Sie gezielt sowohl eine Wohnung suchen als auch ein Haus suchen, das Ihren Bedürfnissen entspricht. Unsere Angebote erleichtern es Ihnen, eine Mietwohnung zu suchen und Ihre ideale Wohnung finden zu können. Entdecken Sie vielfältige Optionen, um die passende Immobilie zu finden und Ihre Wohnträume zu verwirklichen. Starten Sie noch heute Ihre Suche und profitieren Sie von einer großen Auswahl an Mietobjekten in Ihrer Wunschregion.

Hilfreiche Informationen zu Immobilie mieten

Starten Sie gut vorbereitet in Ihre Mietentscheidung: Infina stellt Ihnen vielseitige Ratgeber und Beiträge zu Themen wie Immobilie, Mietrecht, Finanzierung und Wohntrends zur Verfügung. Verschaffen Sie sich einen Überblick über alle relevanten Aspekte und gestalten Sie Ihren Weg ins neue Zuhause einfacher und sicherer.

Erfolgreich zur neuen Immobilie

Mit Infina haben Sie einen verlässlichen Partner an Ihrer Seite, der Sie von der ersten Beratung bis zum erfolgreichen Abschluss ganzheitlich unterstützt. Erfahren Sie hier, wie wir gemeinsam Ihren Immobilienerfolg gestalten.

Starten Sie jetzt Ihre Immobiliensuche

Nach zahlreichen Informationen rund um die Themen Immobilie kaufen und Immobilie mieten können Sie nun den nächsten Schritt machen. Starten Sie die Immobiliensuche, um Ihr neues Zuhause oder Ihre nächste Investition zu finden und entdecken Sie die passenden Angebote:

Das innovative Portal für Immobilien und Finanzierung 

Als Kunde von Infina profitieren Sie von unserer umfangreichen und unabhängigen Expertise als Teil einer wachsenden, unabhängigen Immobilien- und Finanzierungsnetzwerkgruppe. Bereits 50.000 Kunden hat Infina erfolgreich bei Ihrem Vorhaben begleitet. Infina bietet Ihnen eine umfassende Beratung in allen Bereichen rund um Ihre Immobilienvorhaben:

Die passende Finanzierung für Ihre Immobilie

Mit Infina erhalten Sie nicht nur eine unabhängige Beratung, sondern auch die passende Finanzierungslösung für Ihre Immobilie. Aus den Angeboten von über 150 Banken und Bausparkassen vermitteln wir Ihnen das, was perfekt zu Ihren Bedürfnissen passt. Wir begleiten Sie professionell und verlässlich – von der ersten Beratung bis zum erfolgreichen Abschluss.

Kreditvergleich

Kostenlos und unverbindlich

Wir holen das Beste für Sie heraus

Verkaufen Sie Ihre Immobilie mit uns & profitieren Sie von unserer Expertise. Wir bringen Ihre Immobilie optimal auf den Markt & erzielen den besten Preis. 

Kontaktieren Sie uns jetzt.

Jetzt Experten kontaktieren
Junge Frau im pinken Blazer hält ein Modellhaus in der linken Hand und zeigt mit der rechten Hand nach oben, als hätte sie eine Idee. Sie lächelt und blickt leicht nach oben – symbolisch für Inspiration oder Immobilienberatung.