INFINA LOGO
Entspannt zur Immobilie Persönlich & kompetent beraten Finanzierbarkeit sofort überprüfbar
152.000 € 2.984 €/m²
Kostenlos &
unverbindlich.
Kontakt aufnehmen

*Sanierungsbedürftiger Singlehit mit Loggia im Herzen von Brigittenau* Ab sofort verfügbar*

Obj. Nr.: 46113

ca. 50,94 m² Nutzfläche 1 Zimmer
Partner von Infina Vienna Estate Makler Immobilienmakler 
Partner von Infina Vienna Estate Makler Immobilienmakler
152.000 € Kaufpreis der Immobilie Kreditvergleich von über 120 Banken mit Infina.
Immobilie finanzieren
Mehr Informationen zur Immobilie: Detaillierte Einblicke in dieses Objekt.
Zurück zur Übersicht

Objektstandort

1200 Wien Adresse anfragen

Directions Icon Fahrtzeit berechnen
Preisinformationen
Kaufpreis 152.000 €
Betriebskosten inkl. USt. 106,96 €
Sonstige Kosten inkl. USt. 79,00 €
Grundbucheintragung: 1.1 %
Grunderwerbsteuer: 3.5 %
Was kann ich mir leisten?
Jetzt berechnen
Maklerprovision:
3,00 % des Kaufpreises zzgl. 20 % USt.

Objektinformationen

Objektart: Wohnung
Unterobjektart: Erdgeschoß
Nutzungsart: Wohnen
Bauart: Neubau
Baujahr: 1965
Erschließung: Vollerschlossen

Rauminformationen & Flächen

Wohnfläche: ca. 52,49 m²
Nutzfläche: ca. 50,94 m²
Freie Fläche: ca. 8,50 m²
Gesamtfläche: ca. 50,94 m²
Loggiafläche: ca. 8,50 m²
Anzahl Loggias: 1
Anzahl Zimmer: 1
Anzahl WC: 1
Anzahl Bäder: 1

Ausstattung

Boden: Fliesen, Linoleum, Teppichboden
Befeuerung: Gas
Heizungsart: Etagenheizung
Fahrstuhl: Personenaufzug
Balkon: Nordostbalkon / -terrasse
Bad: Badewanne
Extras: Wasch- / Trockenraum, Fahrradraum
Bauweise: Massiv

Lage

Dresdner Straße, Adalbert-Stifter-Straße, Höchststädtplatz

Beschreibung *

Saniertunsbedürftiger Singlehit im Herzen von Brigittenau 

In die Vermarktung gelangt eine sanierungsbedürftige 1 Zimmer Wohnung mit Loggia  in einem 1965 errichteten Wohnhaus direkt an der Dresdner Straße. 

Die Liegenschaft zeichnet sich vor allem durch die  hervorragende Lage und die gute Anbindung an das Wiener Stadtzentrum durch die U-Bahn U6 und Bahnhof Traisengasse,  aus. Demnach erreicht man in kurzer Zeit die  HOT-Spots von Wien (Schwedenplatz, Karlsplatz, Schottenring, Wien Mitte  uvm.). Auch eines der größten Naherholungsgebiete Wiens-  die Donauinsel -  ist fußläufig in kurzer Distanz  zu erreichen. 

Die ums Eck  gelegene Dresdner Straße  garantiert eine  perfekte Nahversorgung und der Bahnhof Wien Traisengasse sowie die U6 Dresdner Straße eine Top-Infrastruktur .

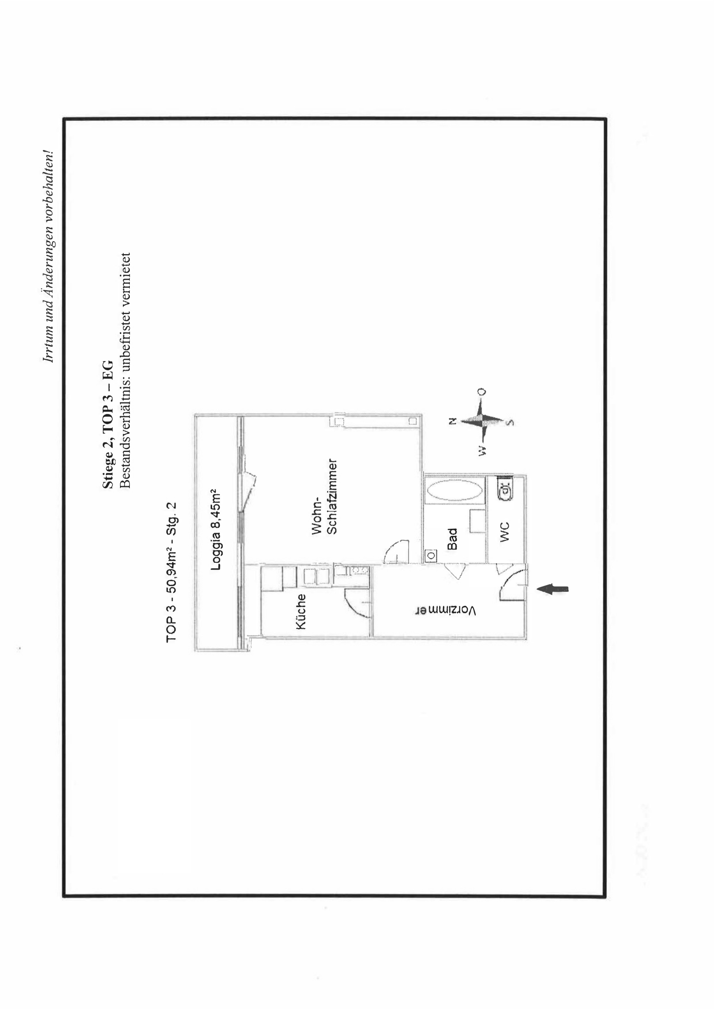
Die Wohnung bietet eine Fläche von ca.  42,49 m2 zzgl. einer ca. 8,50 m2 Loggia. Die Liegenschaft befindet sich im Erdgeschoss  und besticht mit 1 großzügigen Zimmer, einem Vorraum, separatem WC, einer separaten Küche sowie einem Badezimmer. Die großen Fenster sorgen für ein helles Wohnambiente. 

Diese Immobilie ist ein wahres Juwel für Renovierer und Sanierungsliebhaber, die nach einer einzigartigen Gestaltungsmöglichkeit suchen.

Ihr Highlights auf einen Blick:

  • ausgezeichnete Lage - UBahn Nähe
  • großzügiger Raum
  • große Loggia
  • separate Küche
  • Abstellraum

Aufteilung der Wohnung 

Die  1-Zimmer-Wohnung  mit ca. 42,49 m 2   Wohnfläche zzgl. ca. 8,50 m 2   Loggia gliedert sich in folgende Raumaufteilung:

  • Vorraum
  • Wohnraum mit Durchgang zur Loggia
  • Loggia
  • separate Küche
  • Badezimmer mit Badewanne und Handwaschbecken
  • separates WC

Kaufpreis:

Der Kaufpreis beläuft sich auf 152.000,00 € 

Provision: 3% des Kaufpreises zzgl. 20% Umsatzsteuer

Folgende öffentliche Verkehrsmittel stehen zur Verfügung

  • U-Bahn U6 Dresdner Straße
  • Buslinie 5A , 37A
  • Straßenbahnlinie 1,2,5,30,31,33
  • Bahnhof Wien Traisengasse

Somit erreichen Sie auch  mit den öffentlichen Verkehrsmitteln die Wiener Innenstadt in wenigen Augenblicken (Schwedenplatz, Karlsplatz, Wien Mitte)  als auch in weiterer Folge den  Flughafen Wien .

Die  Autobahnauffahrt zur A22  ist ebenso sehr rasch zu erreichen.

Die ausgezeichnete Infrastruktur ist durch die unmittelbare Nähe zur Milleniumcity,   Brigitta Passage,   Supermärkten, Drogeriemärkte, Apotheken, Restaurants, Cafés, Sporteinrichtungen (Fitnessstudios), Kindergärten, Schulen, Ärzte u.dgl.   gewährleistet.

Energieausweis:

Der Heizwärmebedarf beträgt ca.  49,9 kWh/m2a , welcher der  Klasse B  entspricht.

Hinweis:

Die dargestellten möblierten Räume sind  KI-generierte Visualisierungen  und dienen lediglich der  Veranschaulichung möglicher Einrichtungskonzepte . Die Möblierung und Sanierung ist  nicht im Kaufpreis enthalten .

Wir machen darauf aufmerksam, dass bei einem Erwerb zu Vermietungszwecken die erzielbare Miete dem WGG (Wohnungsgemeinnützigkeitsgesetz) unterliegt.

Wir weisen darauf hin, dass zwischen dem Vermittler und dem zu vermittelnden Dritten ein familiäres oder wirtschaftliches Naheverhältnis besteht.

Der Vermittler ist als Doppelmakler tätig.


Infrastruktur / Entfernungen

Gesundheit
Arzt <500m
Apotheke <500m
Klinik <500m
Krankenhaus <1.000m

Kinder & Schulen
Schule <500m
Kindergarten <500m
Universität <500m
Höhere Schule <1.000m

Nahversorgung
Supermarkt <500m
Bäckerei <500m
Einkaufszentrum <500m

Sonstige
Geldautomat <500m
Bank <500m
Post <500m
Polizei <1.000m

Verkehr
Bus <500m
U-Bahn <500m
Straßenbahn <500m
Bahnhof <500m
Autobahnanschluss <1.000m

Angaben Entfernung Luftlinie / Quelle: OpenStreetMap


*Der Vertrag kommt nicht mit der INFINA Credit Broker GmbH zustande. Das Objekt wird von einem externen Immobilienunternehmen angeboten. Allfällige aus dem Vertragsabschluss resultierende Rechte sind ausschließlich gegenüber dem anbietenden Immobilienunternehmen geltend zu machen. Wir weisen Sie darauf hin, dass die gemachten Angaben und Informationen lediglich unverbindliche Vorabinformationen sind und daher ohne Gewähr erfolgen. Der Vermittler ist als Doppelmakler tätig.

Energieausweis & Heizung
HWB (kWh/m2/Jahr): 102
HWB Energieklasse D
fGEE: 2.37
fGEE Energieklasse D
Gültig bis: 30.08.2030
Heizung: Etagenheizung
Befeuerung: Gas
Dokumente & Videos Pläne
Partner von Infina Vienna Estate Makler Immobilienmakler
Verkehr:
Autobahnanschluss: 870 m
U-Bahn: 330 m
Bus: 190 m
Straßenbahn: 260 m
Bahnhof: 260 m
Kinder & Schulen:
Universität: 510 m
Höhere Schule: 560 m
Kindergarten: 110 m
Schule: 280 m
Sonstige:
Post: 450 m
Polizei: 330 m
Bank: 440 m
Geldautomat: 230 m
Nahversorgung:
Supermarkt: 180 m
Bäckerei: 480 m
Einkaufszentrum: 230 m
Gesundheit:
Apotheke: 230 m
Arzt: 300 m
Klinik: 410 m
Krankenhaus: 2140 m

Jetzt Experten kontaktieren

Weitere interessante Objekte

Partner von Infina
Jetzt anfragen
ca. 45,00 m² Wohnfläche 2 Zimmer
250.000 €
Partner von Infina
Jetzt anfragen
397.000 €

Immobilie kaufen: Das passende Angebot finden

Der Kauf einer Immobilie ist eine wichtige Entscheidung – sei es für die Eigennutzung oder zur Vermietung. Mit unserem Portal unterstützen wir Sie dabei, die richtige Immobilie zu kaufen. Nutzen Sie unsere Suchmöglichkeiten, um gezielt eine Immobilie zu suchen, die Ihren Vorstellungen entspricht. Unsere Immobilienangebote decken eine breite Palette ab: vom Einfamilienhaus über die Eigentumswohnung bis hin zum Grundstück für Ihr Bauvorhaben. Mit uns können Sie sicher und unkompliziert Eigentum erwerben – ob für die private Nutzung oder als Investition als Immobilie. Erkunden Sie jetzt unsere Angebote und finden Sie die perfekte Lösung, die zu Ihren Wohn- oder Anlagezielen passt.

Fundiertes Wissen für Ihre Entscheidung, eine Immobilie zu kaufen

Bereiten Sie sich bestens vor: Infina stellt Ihnen kostenlos über 300 Ratgeber und Beiträge zu den Themen Immobilie, Finanzierung, Zinsen und Recht zur Verfügung. Nutzen Sie unser umfassendes Wissen, um richtige Entscheidungen zu treffen.

Bei jedem Kauf einer Immobilie oder eines Grundstücks ist es wichtig, die passende Finanzierung zu finden. Mit seiner eigenen Vertriebsorganisation ist Infina als Wohnbau-Finanz-Experte an über 100 Standorten in ganz Österreich vertreten und vermittelt Finanzierungen an über 120 Banken und Bausparkassen. Nutzen Sie unseren kostenlosen Kreditvergleich für den passenden Wohnkredit: 

Kreditvergleich

Kostenlos und unverbindlich

Immobilie mieten: Ihr neues Zuhause wartet

Die Entscheidung, eine Immobilie zu mieten, bietet Flexibilität und zahlreiche Möglichkeiten – ob eine Wohnung für den Alltag oder ein Haus für die Familie. Bei Infina können Sie gezielt sowohl eine Wohnung suchen als auch ein Haus suchen, das Ihren Bedürfnissen entspricht. Unsere Angebote erleichtern es Ihnen, eine Mietwohnung zu suchen und Ihre ideale Wohnung finden zu können. Entdecken Sie vielfältige Optionen, um die passende Immobilie zu finden und Ihre Wohnträume zu verwirklichen. Starten Sie noch heute Ihre Suche und profitieren Sie von einer großen Auswahl an Mietobjekten in Ihrer Wunschregion.

Hilfreiche Informationen zu Immobilie mieten

Starten Sie gut vorbereitet in Ihre Mietentscheidung: Infina stellt Ihnen vielseitige Ratgeber und Beiträge zu Themen wie Immobilie, Mietrecht, Finanzierung und Wohntrends zur Verfügung. Verschaffen Sie sich einen Überblick über alle relevanten Aspekte und gestalten Sie Ihren Weg ins neue Zuhause einfacher und sicherer.

Erfolgreich zur neuen Immobilie

Mit Infina haben Sie einen verlässlichen Partner an Ihrer Seite, der Sie von der ersten Beratung bis zum erfolgreichen Abschluss ganzheitlich unterstützt. Erfahren Sie hier, wie wir gemeinsam Ihren Immobilienerfolg gestalten.

Starten Sie jetzt Ihre Immobiliensuche

Nach zahlreichen Informationen rund um die Themen Immobilie kaufen und Immobilie mieten können Sie nun den nächsten Schritt machen. Starten Sie die Immobiliensuche, um Ihr neues Zuhause oder Ihre nächste Investition zu finden und entdecken Sie die passenden Angebote:

Das innovative Portal für Immobilien und Finanzierung 

Als Kunde von Infina profitieren Sie von unserer umfangreichen und unabhängigen Expertise als Teil einer wachsenden, unabhängigen Immobilien- und Finanzierungsnetzwerkgruppe. Bereits 50.000 Kunden hat Infina erfolgreich bei Ihrem Vorhaben begleitet. Infina bietet Ihnen eine umfassende Beratung in allen Bereichen rund um Ihre Immobilienvorhaben:

Die passende Finanzierung für Ihre Immobilie

Mit Infina erhalten Sie nicht nur eine unabhängige Beratung, sondern auch die passende Finanzierungslösung für Ihre Immobilie. Aus den Angeboten von über 120 Banken und Bausparkassen vermitteln wir Ihnen das, was perfekt zu Ihren Bedürfnissen passt. Wir begleiten Sie professionell und verlässlich – von der ersten Beratung bis zum erfolgreichen Abschluss.

Kreditvergleich

Kostenlos und unverbindlich

Wir holen das Beste für Sie heraus

Verkaufen Sie Ihre Immobilie mit uns & profitieren Sie von unserer Expertise. Wir bringen Ihre Immobilie optimal auf den Markt & erzielen den besten Preis. 

Kontaktieren Sie uns jetzt.

Jetzt Experten kontaktieren
Junge Frau im pinken Blazer hält ein Modellhaus in der linken Hand und zeigt mit der rechten Hand nach oben, als hätte sie eine Idee. Sie lächelt und blickt leicht nach oben – symbolisch für Inspiration oder Immobilienberatung.