INFINA LOGO
Entspannt zur Immobilie Persönlich & kompetent beraten Finanzierbarkeit sofort überprüfbar
133.956 € 3.407 €/m²
Kostenlos &
unverbindlich.
Kontakt aufnehmen

** Anleger aufgepasst ** - Ideale 1,5 Zimmer Wohnung mit kl. Garten in den STADTTERRASSEN PEUERBACH - provisionsfrei!

Obj. Nr.: 46289

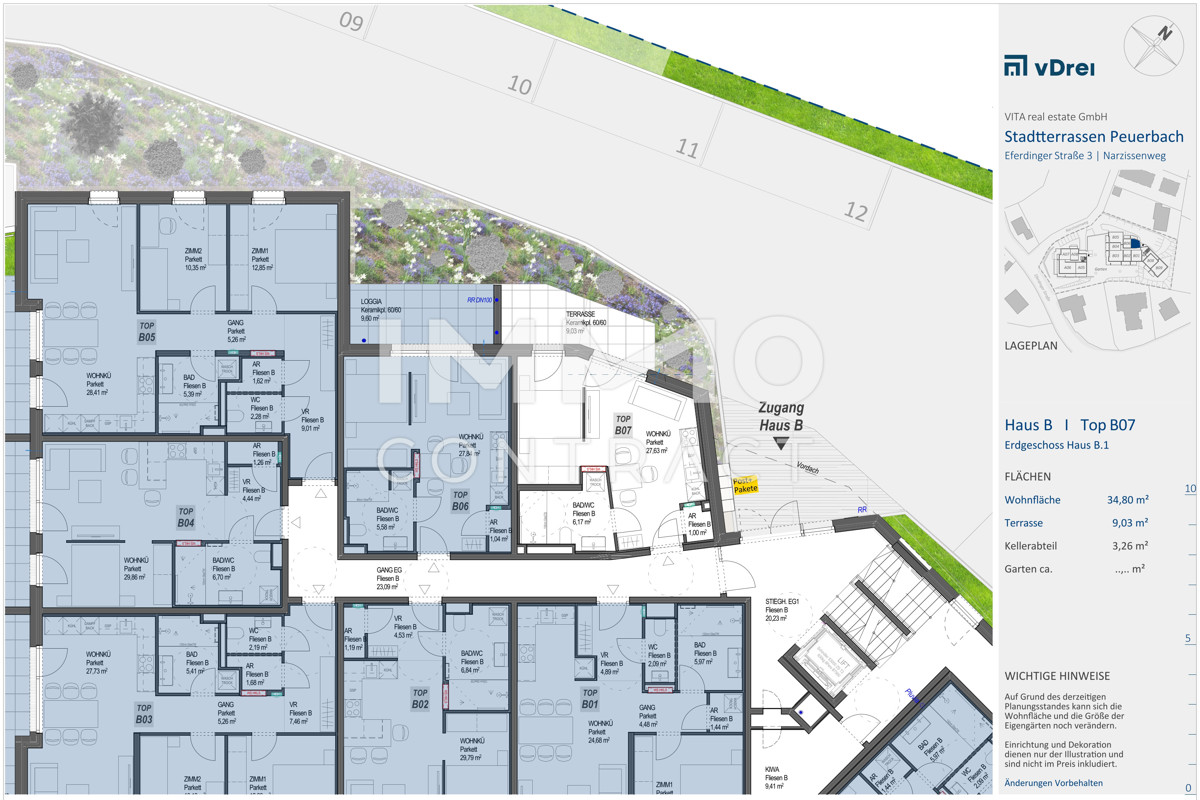
ca. 34,80 m² Wohnfläche 1,5 Zimmer
Partner von Infina IMMOcontract Immobilienmakler 
Partner von Infina IMMOcontract Immobilienmakler
133.956 € Kaufpreis der Immobilie Kreditvergleich von über 120 Banken mit Infina.
Immobilie finanzieren
Mehr Informationen zur Immobilie: Detaillierte Einblicke in dieses Objekt.
Zurück zur Übersicht

Objektstandort

4722 Peuerbach, Grieskirchen, Oberösterreich Adresse anfragen

Directions Icon Fahrtzeit berechnen
Preisinformationen
Kaufpreis 133.956 €
Grundbucheintragung: 1.1 %
Grunderwerbsteuer: 3.5 %
Was kann ich mir leisten?
Jetzt berechnen

Objektinformationen

Objektart: Wohnung
Unterobjektart: Erdgeschoß
Nutzungsart: Wohnen
Zustand: Erstbezug
Baujahr: 2025

Rauminformationen & Flächen

Wohnfläche: ca. 34,80 m²
Anzahl Zimmer: 2

Ausstattung

Lage

Peuerbach selbst, bekannt für seine idyllische Umgebung und die herzliche Gemeinschaft, bietet ein vielfältiges Freizeitangebot. Die Region lädt zu ausgedehnten Spaziergängen, Radtouren oder entspannten Ausflügen ins Grüne ein. Für kulturelle Abwechslung sorgen historische Sehenswürdigkeiten und Veranstaltungen in der Umgebung.

Die Verkehrsanbindung ist optimal: Der Bahnhof Peuerbach bietet regelmäßige Zugverbindungen in Richtung Linz und Wels, während die Nähe zur B137 eine zügige Erreichbarkeit der umliegenden Städte und Autobahnen gewährleistet. Somit eignet sich diese Lage sowohl für Pendler als auch für Ruhesuchende.

Beschreibung *

Im Zentrum von Peuerbach entstehen 32 Eigentumswohnungen mit einem Ausmaß von rund 35 m² bis etwa 117 m². Die "Stadtterrassen Peuerbach" sind südwestlich ausgerichtet, erstrecken sich entlang des Narzissenweges und bieten einen schönen Ausblick über Peuerbach. Die zentrale Lage in Peuerbach ermöglicht Ihnen einen bequemen Zugang zu allen wichtigen Annehmlichkeiten des täglichen Lebens, darunter Einkaufsmöglichkeiten, Schulen und medizinische Einrichtungen, die in wenigen Minuten erreichbar sind.

Für jede Wohnung ist fix ein Tiefgaragenplatz reserviert (zzgl. € 24.000,00). Das Projekt wird mit hoher Nachhaltigkeit und einer Gesamtenergieeffizienz A+ ausgerichtet. Die Photovoltaikanlage am Dach trägt zur energiesparenden Bewirtschaftung bei. Beheizung & Warmwasseraufbereitung funktionieren über eine Luftwärmepumpe, eine elektrische Beschattung und Glasfaser runden dieses exklusive Angebot ideal ab.

Die Wohneinheiten sind hochwertig ausgestattet, die Badezimmer verfügen über großformatige Fliesen und qualitative Sanitärausstattung.

Alle Geschosse sind mittels Aufzug (von der Tiefgarage) erschlossen

Raumaufteilung: Abstellraum, Bad/WC, Wohnküche (Küche nicht möbliert) mit abgetrennten Schlafbereich, Terrasse/Loggia.
Jeder Wohnung ist ein eigenes Kellerabteil zugeordnet.

Die dargestellten Innenvisualisierungen sind als Musterbilder und Einrichtungsvorschläge zu verstehen, die Wohnungen sind schlüsselfertig/unmöbliert.

*Der Vertrag kommt nicht mit der INFINA Credit Broker GmbH zustande. Das Objekt wird von einem externen Immobilienunternehmen angeboten. Allfällige aus dem Vertragsabschluss resultierende Rechte sind ausschließlich gegenüber dem anbietenden Immobilienunternehmen geltend zu machen. Wir weisen Sie darauf hin, dass die gemachten Angaben und Informationen lediglich unverbindliche Vorabinformationen sind und daher ohne Gewähr erfolgen. Der Vermittler ist als Doppelmakler tätig.

Energieausweis & Heizung
HWB (kWh/m2/Jahr): 35.3
HWB Energieklasse B
fGEE: 0.56
fGEE Energieklasse B
Gültig bis: 31.07.2034
Dokumente & Videos Pläne Pläne
Partner von Infina IMMOcontract Immobilienmakler
Nahversorgung:
Einkaufszentrum: 890 m
Supermarkt: 290 m
Bäckerei: 200 m
Verkehr:
Bus: 280 m
Bahnhof: 760 m
Gesundheit:
Arzt: 6220 m
Apotheke: 270 m
Kinder & Schulen:
Kindergarten: 380 m
Schule: 370 m
Sonstige:
Post: 290 m
Polizei: 300 m
Bank: 250 m

Jetzt Experten kontaktieren

Immobilie kaufen: Das passende Angebot finden

Der Kauf einer Immobilie ist eine wichtige Entscheidung – sei es für die Eigennutzung oder zur Vermietung. Mit unserem Portal unterstützen wir Sie dabei, die richtige Immobilie zu kaufen. Nutzen Sie unsere Suchmöglichkeiten, um gezielt eine Immobilie zu suchen, die Ihren Vorstellungen entspricht. Unsere Immobilienangebote decken eine breite Palette ab: vom Einfamilienhaus über die Eigentumswohnung bis hin zum Grundstück für Ihr Bauvorhaben. Mit uns können Sie sicher und unkompliziert Eigentum erwerben – ob für die private Nutzung oder als Investition als Immobilie. Erkunden Sie jetzt unsere Angebote und finden Sie die perfekte Lösung, die zu Ihren Wohn- oder Anlagezielen passt.

Fundiertes Wissen für Ihre Entscheidung, eine Immobilie zu kaufen

Bereiten Sie sich bestens vor: Infina stellt Ihnen kostenlos über 300 Ratgeber und Beiträge zu den Themen Immobilie, Finanzierung, Zinsen und Recht zur Verfügung. Nutzen Sie unser umfassendes Wissen, um richtige Entscheidungen zu treffen.

Bei jedem Kauf einer Immobilie oder eines Grundstücks ist es wichtig, die passende Finanzierung zu finden. Mit seiner eigenen Vertriebsorganisation ist Infina als Wohnbau-Finanz-Experte an über 100 Standorten in ganz Österreich vertreten und vermittelt Finanzierungen an über 120 Banken und Bausparkassen. Nutzen Sie unseren kostenlosen Kreditvergleich für den passenden Wohnkredit: 

Kreditvergleich

Kostenlos und unverbindlich

Immobilie mieten: Ihr neues Zuhause wartet

Die Entscheidung, eine Immobilie zu mieten, bietet Flexibilität und zahlreiche Möglichkeiten – ob eine Wohnung für den Alltag oder ein Haus für die Familie. Bei Infina können Sie gezielt sowohl eine Wohnung suchen als auch ein Haus suchen, das Ihren Bedürfnissen entspricht. Unsere Angebote erleichtern es Ihnen, eine Mietwohnung zu suchen und Ihre ideale Wohnung finden zu können. Entdecken Sie vielfältige Optionen, um die passende Immobilie zu finden und Ihre Wohnträume zu verwirklichen. Starten Sie noch heute Ihre Suche und profitieren Sie von einer großen Auswahl an Mietobjekten in Ihrer Wunschregion.

Hilfreiche Informationen zu Immobilie mieten

Starten Sie gut vorbereitet in Ihre Mietentscheidung: Infina stellt Ihnen vielseitige Ratgeber und Beiträge zu Themen wie Immobilie, Mietrecht, Finanzierung und Wohntrends zur Verfügung. Verschaffen Sie sich einen Überblick über alle relevanten Aspekte und gestalten Sie Ihren Weg ins neue Zuhause einfacher und sicherer.

Erfolgreich zur neuen Immobilie

Mit Infina haben Sie einen verlässlichen Partner an Ihrer Seite, der Sie von der ersten Beratung bis zum erfolgreichen Abschluss ganzheitlich unterstützt. Erfahren Sie hier, wie wir gemeinsam Ihren Immobilienerfolg gestalten.

Starten Sie jetzt Ihre Immobiliensuche

Nach zahlreichen Informationen rund um die Themen Immobilie kaufen und Immobilie mieten können Sie nun den nächsten Schritt machen. Starten Sie die Immobiliensuche, um Ihr neues Zuhause oder Ihre nächste Investition zu finden und entdecken Sie die passenden Angebote:

Das innovative Portal für Immobilien und Finanzierung 

Als Kunde von Infina profitieren Sie von unserer umfangreichen und unabhängigen Expertise als Teil einer wachsenden, unabhängigen Immobilien- und Finanzierungsnetzwerkgruppe. Bereits 50.000 Kunden hat Infina erfolgreich bei Ihrem Vorhaben begleitet. Infina bietet Ihnen eine umfassende Beratung in allen Bereichen rund um Ihre Immobilienvorhaben:

Die passende Finanzierung für Ihre Immobilie

Mit Infina erhalten Sie nicht nur eine unabhängige Beratung, sondern auch die passende Finanzierungslösung für Ihre Immobilie. Aus den Angeboten von über 120 Banken und Bausparkassen vermitteln wir Ihnen das, was perfekt zu Ihren Bedürfnissen passt. Wir begleiten Sie professionell und verlässlich – von der ersten Beratung bis zum erfolgreichen Abschluss.

Kreditvergleich

Kostenlos und unverbindlich

Wir holen das Beste für Sie heraus

Verkaufen Sie Ihre Immobilie mit uns & profitieren Sie von unserer Expertise. Wir bringen Ihre Immobilie optimal auf den Markt & erzielen den besten Preis. 

Kontaktieren Sie uns jetzt.

Jetzt Experten kontaktieren
Junge Frau im pinken Blazer hält ein Modellhaus in der linken Hand und zeigt mit der rechten Hand nach oben, als hätte sie eine Idee. Sie lächelt und blickt leicht nach oben – symbolisch für Inspiration oder Immobilienberatung.