INFINA LOGO
Entspannt zur Immobilie Persönlich & kompetent beraten Finanzierbarkeit sofort überprüfbar
640.000 € 3.820 €/m²
Kostenlos &
unverbindlich.
Kontakt aufnehmen

ERSTBEZUG Maissonette-Wohnung große Terrasse und Balkon

Obj. Nr.: 51263

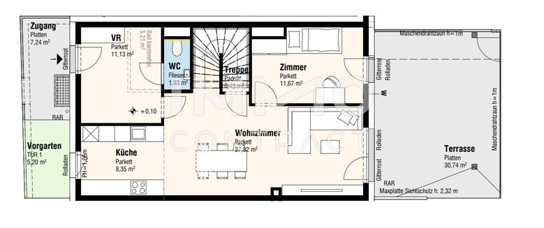
ca. 149,25 m² Wohnfläche 5 Zimmer
Partner von Infina IMMOcontract Immobilienmakler 
Partner von Infina IMMOcontract Immobilienmakler
640.000 € Kaufpreis der Immobilie Kreditvergleich von über 120 Banken mit Infina.
Immobilie finanzieren
Mehr Informationen zur Immobilie: Detaillierte Einblicke in dieses Objekt.
Zurück zur Übersicht

Objektstandort

2326 Lanzendorf, Bruck an der Leitha, Niederösterreich Adresse anfragen

Directions Icon Fahrtzeit berechnen
Preisinformationen
Kaufpreis 640.000 €
Betriebskosten inkl. USt. 517,00 €
Grundbucheintragung: 1.1 %
Grunderwerbsteuer: 3.5 %
Was kann ich mir leisten?
Jetzt berechnen
Maklerprovision:
Provisionsfrei

Objektinformationen

Objektart: Wohnung
Unterobjektart: Maisonette
Nutzungsart: Wohnen
Zustand: Erstbezug
Baujahr: 2025

Rauminformationen & Flächen

Wohnfläche: ca. 149,25 m²
Gartenfläche: ca. 5,20 m²
Anzahl Zimmer: 5

Ausstattung

Befeuerung: Erdwärme
Heizungsart: Fußbodenheizung
Extras: Gartennutzung, Wasch- / Trockenraum, Abstellraum, Fahrradraum
Belüftung: Klimaanlage
Räume: WG geeignet
Bauweise: Massiv

Lage

Die angebotene Wohnung befindet sich in der malerischen Gemeinde Lanzendorf, gelegen in der weitläufigen Ebene des südlichen Wiener Beckens in Niederösterreich. Lanzendorf besticht durch seine ideale Lage in unmittelbarer Nähe zur österreichischen Hauptstadt, welche in wenigen Fahrminuten bequem zu erreichen ist. Die Gemeinde bietet ihren Bewohnern eine harmonische Kombination aus ländlicher Idylle und hervorragender Infrastruktur.

In nächster Umgebung finden Sie verschiedene Einkaufsmöglichkeiten, die den täglichen Bedarf decken, sowie gemütliche Gastronomiebetriebe, die zur kulinarischen Entdeckungsreise einladen. Die Umgebung zeichnet sich durch zahlreiche Freizeitmöglichkeiten in der Natur aus, wie Wanderungen oder Radtouren durch die idyllische Landschaft.

Dank der exzellenten Verkehrsanbindung, einschließlich effizienten öffentlichen Verkehrsmitteln und der Nähe zur Südosttangente, ist die Erreichbarkeit des Wiener Stadtzentrums sowie der umliegenden Regionen optimal gewährleistet.

Bildungseinrichtungen, von Kindergärten bis zu Schulen, sind in Lanzendorf ebenfalls in bequemer Entfernung vorhanden, was diese Gemeinde besonders attraktiv für Familien macht. Alles in allem bietet Lanzendorf eine hohe Lebensqualität in einer ruhigen Umgebung, die zugleich alle Vorzüge der Urbanität zur Verfügung stellt.

Beschreibung *

36 freifinanzierte schlüsselfertige Eigentumswohnungen und
3 Gewerbeeinheiten
Wohnungsgrößen:
2 - 5 Zimmer-Appartements, für jede Lebenslage ist etwas dabei;
Ideale Freiräume wie Balkon, Loggia, Terrasse oder Garten.

Gebaut wird in der charmanten Gemeinde Lanzendorf, unweit der Stadtgrenze Wien und Schwechat gelegen. Diese Immobilie bietet nicht nur eine ideale Lage, sondern auch die perfekte Gelegenheit für alle, die eine ruhige Wohngegend in hervorragender Anbindung an Wien und Umgebung suchen.

Die Wohnung werden schlüsselfertig übergeben und bestechen durch ihre durchdachten Raumaufteilungen, welche ein angenehmes Wohnambiente schafft. Helle Räume sorgen für eine freundliche Atmosphäre und laden zum Wohlfühlen ein.

Lanzendorf bietet eine hervorragende Infrastruktur: Einkaufsmöglichkeiten, Schulen und Gesundheitseinrichtungen sind bequem erreichbar, und die Nähe zu Natur und Erholungsgebieten schafft einen hohen Freizeitwert. Die Anbindung an öffentliche Verkehrsmittel und Autobahnen gewährleistet zusätzlich eine rasche Erreichbarkeit der Wiener Innenstadt sowie umliegender Bezirke.

Diese Immobilie eignet sich sowohl für Familien als auch für Paare oder Einzelpersonen, die Wert auf ein gemütliches Zuhause in einer lebenswerten Umgebung legen. Nutzen Sie die Chance, diese attraktive Wohnung zu Ihrem neuen Lebensmittelpunkt zu machen.

Das Projekt:
Im Zentrum von Lanzendorf baut der Bauträger eine besonders für Pendler sehr attraktive Wohnhausanlage: urbanes Wohnen in ländlicher Umgebung – in fußläufiger Schnellbahnnähe werden 37 freifinanzierte Wohnungen mit Tiefgarage in den Größen von ca. 50 bis 115 m2
sowie 3 Gewerbeflächen mit Straßenfront entstehen.

Die Details:
Es werden geschmackvoll ausgestattete schlüsselfertige 2- bis 5-Zimmer-Wohnungen in Größen von 50 m² bis 150 m² zur Verfügung stehen – Freiflächen wie Balkon, Loggia, Terrasse oder Eigengarten im Erdgeschoß laden zum Entspannen nach einem langen Arbeitstag ein und machen Ihr Zuhause zur absoluten Wohlfühloase.
Die Wohnungen werden mittels Deckenheizung - gespeist zentral durch Erdwärme - beheizt oder im Sommer gekühlt.
Mit dieser Heizform haben Sie den neuesten Standard für effiziente Energie-Nachhaltigkeit.

*Der Vertrag kommt nicht mit der INFINA Credit Broker GmbH zustande. Das Objekt wird von einem externen Immobilienunternehmen angeboten. Allfällige aus dem Vertragsabschluss resultierende Rechte sind ausschließlich gegenüber dem anbietenden Immobilienunternehmen geltend zu machen. Wir weisen Sie darauf hin, dass die gemachten Angaben und Informationen lediglich unverbindliche Vorabinformationen sind und daher ohne Gewähr erfolgen. Der Vermittler ist als Doppelmakler tätig.

Energieausweis & Heizung
HWB (kWh/m2/Jahr): 29.8
HWB Energieklasse B
fGEE: 0.67
fGEE Energieklasse B
Gültig bis: 27.02.2034
Heizung: Fußbodenheizung
Befeuerung: Erdwärme
Dokumente & Videos Pläne Pläne Pläne
Partner von Infina IMMOcontract Immobilienmakler
Kinder & Schulen:
Höhere Schule: 9080 m
Schule: 490 m
Universität: 6830 m
Kindergarten: 480 m
Sonstige:
Geldautomat: 1550 m
Post: 1610 m
Bank: 1370 m
Polizei: 2930 m
Gesundheit:
Apotheke: 1990 m
Krankenhaus: 8510 m
Klinik: 3940 m
Arzt: 3340 m
Verkehr:
Autobahnanschluss: 1400 m
Straßenbahn: 4270 m
U-Bahn: 4820 m
Bus: 160 m
Flughafen: 8410 m
Bahnhof: 2290 m
Nahversorgung:
Supermarkt: 1230 m
Bäckerei: 2300 m
Einkaufszentrum: 3960 m

Jetzt Experten kontaktieren

Weitere interessante Objekte

Partner von Infina
Jetzt anfragen
4.460 €/m²
Vermittelt
Lanzendorf
Partner von Infina
Jetzt anfragen
4.076 €/m²
360.000 €
Lanzendorf
Partner von Infina
Jetzt anfragen
ca. 117,31 m² Wohnfläche 4 Zimmer
4.074 €/m²
530.000 €
Lanzendorf
Partner von Infina
Jetzt anfragen
4.103 €/m²
370.000 €
Lanzendorf
Partner von Infina
Jetzt anfragen
ca. 59,86 m² Wohnfläche 2 Zimmer
4.461 €/m²
280.000 €
Lanzendorf
Partner von Infina
Jetzt anfragen
ca. 67,57 m² Wohnfläche 2 Zimmer
4.568 €/m²
325.000 €
Lanzendorf
Partner von Infina
Jetzt anfragen
ca. 115,59 m² Wohnfläche 4 Zimmer
4.316 €/m²
515.000 €
Partner von Infina
Jetzt anfragen
ca. 117,35 m² Wohnfläche 4 Zimmer
3.919 €/m²
510.000 €
Lanzendorf
Partner von Infina
Jetzt anfragen
ca. 88,35 m² Wohnfläche 3 Zimmer
3.850 €/m²
370.000 €

Immobilie kaufen: Das passende Angebot finden

Der Kauf einer Immobilie ist eine wichtige Entscheidung – sei es für die Eigennutzung oder zur Vermietung. Mit unserem Portal unterstützen wir Sie dabei, die richtige Immobilie zu kaufen. Nutzen Sie unsere Suchmöglichkeiten, um gezielt eine Immobilie zu suchen, die Ihren Vorstellungen entspricht. Unsere Immobilienangebote decken eine breite Palette ab: vom Einfamilienhaus über die Eigentumswohnung bis hin zum Grundstück für Ihr Bauvorhaben. Mit uns können Sie sicher und unkompliziert Eigentum erwerben – ob für die private Nutzung oder als Investition als Immobilie. Erkunden Sie jetzt unsere Angebote und finden Sie die perfekte Lösung, die zu Ihren Wohn- oder Anlagezielen passt.

Fundiertes Wissen für Ihre Entscheidung, eine Immobilie zu kaufen

Bereiten Sie sich bestens vor: Infina stellt Ihnen kostenlos über 300 Ratgeber und Beiträge zu den Themen Immobilie, Finanzierung, Zinsen und Recht zur Verfügung. Nutzen Sie unser umfassendes Wissen, um richtige Entscheidungen zu treffen.

Bei jedem Kauf einer Immobilie oder eines Grundstücks ist es wichtig, die passende Finanzierung zu finden. Mit seiner eigenen Vertriebsorganisation ist Infina als Wohnbau-Finanz-Experte an über 100 Standorten in ganz Österreich vertreten und vermittelt Finanzierungen an über 120 Banken und Bausparkassen. Nutzen Sie unseren kostenlosen Kreditvergleich für den passenden Wohnkredit: 

Kreditvergleich

Kostenlos und unverbindlich

Immobilie mieten: Ihr neues Zuhause wartet

Die Entscheidung, eine Immobilie zu mieten, bietet Flexibilität und zahlreiche Möglichkeiten – ob eine Wohnung für den Alltag oder ein Haus für die Familie. Bei Infina können Sie gezielt sowohl eine Wohnung suchen als auch ein Haus suchen, das Ihren Bedürfnissen entspricht. Unsere Angebote erleichtern es Ihnen, eine Mietwohnung zu suchen und Ihre ideale Wohnung finden zu können. Entdecken Sie vielfältige Optionen, um die passende Immobilie zu finden und Ihre Wohnträume zu verwirklichen. Starten Sie noch heute Ihre Suche und profitieren Sie von einer großen Auswahl an Mietobjekten in Ihrer Wunschregion.

Hilfreiche Informationen zu Immobilie mieten

Starten Sie gut vorbereitet in Ihre Mietentscheidung: Infina stellt Ihnen vielseitige Ratgeber und Beiträge zu Themen wie Immobilie, Mietrecht, Finanzierung und Wohntrends zur Verfügung. Verschaffen Sie sich einen Überblick über alle relevanten Aspekte und gestalten Sie Ihren Weg ins neue Zuhause einfacher und sicherer.

Erfolgreich zur neuen Immobilie

Mit Infina haben Sie einen verlässlichen Partner an Ihrer Seite, der Sie von der ersten Beratung bis zum erfolgreichen Abschluss ganzheitlich unterstützt. Erfahren Sie hier, wie wir gemeinsam Ihren Immobilienerfolg gestalten.

Starten Sie jetzt Ihre Immobiliensuche

Nach zahlreichen Informationen rund um die Themen Immobilie kaufen und Immobilie mieten können Sie nun den nächsten Schritt machen. Starten Sie die Immobiliensuche, um Ihr neues Zuhause oder Ihre nächste Investition zu finden und entdecken Sie die passenden Angebote:

Das innovative Portal für Immobilien und Finanzierung 

Als Kunde von Infina profitieren Sie von unserer umfangreichen und unabhängigen Expertise als Teil einer wachsenden, unabhängigen Immobilien- und Finanzierungsnetzwerkgruppe. Bereits 50.000 Kunden hat Infina erfolgreich bei Ihrem Vorhaben begleitet. Infina bietet Ihnen eine umfassende Beratung in allen Bereichen rund um Ihre Immobilienvorhaben:

Die passende Finanzierung für Ihre Immobilie

Mit Infina erhalten Sie nicht nur eine unabhängige Beratung, sondern auch die passende Finanzierungslösung für Ihre Immobilie. Aus den Angeboten von über 120 Banken und Bausparkassen vermitteln wir Ihnen das, was perfekt zu Ihren Bedürfnissen passt. Wir begleiten Sie professionell und verlässlich – von der ersten Beratung bis zum erfolgreichen Abschluss.

Kreditvergleich

Kostenlos und unverbindlich

Wir holen das Beste für Sie heraus

Verkaufen Sie Ihre Immobilie mit uns & profitieren Sie von unserer Expertise. Wir bringen Ihre Immobilie optimal auf den Markt & erzielen den besten Preis. 

Kontaktieren Sie uns jetzt.

Jetzt Experten kontaktieren
Junge Frau im pinken Blazer hält ein Modellhaus in der linken Hand und zeigt mit der rechten Hand nach oben, als hätte sie eine Idee. Sie lächelt und blickt leicht nach oben – symbolisch für Inspiration oder Immobilienberatung.