INFINA LOGO
Entspannt zur Immobilie Persönlich & kompetent beraten Finanzierbarkeit sofort überprüfbar
1.048 € Gesamtmiete inkl. USt.
Kostenlos &
unverbindlich.
Kontakt aufnehmen

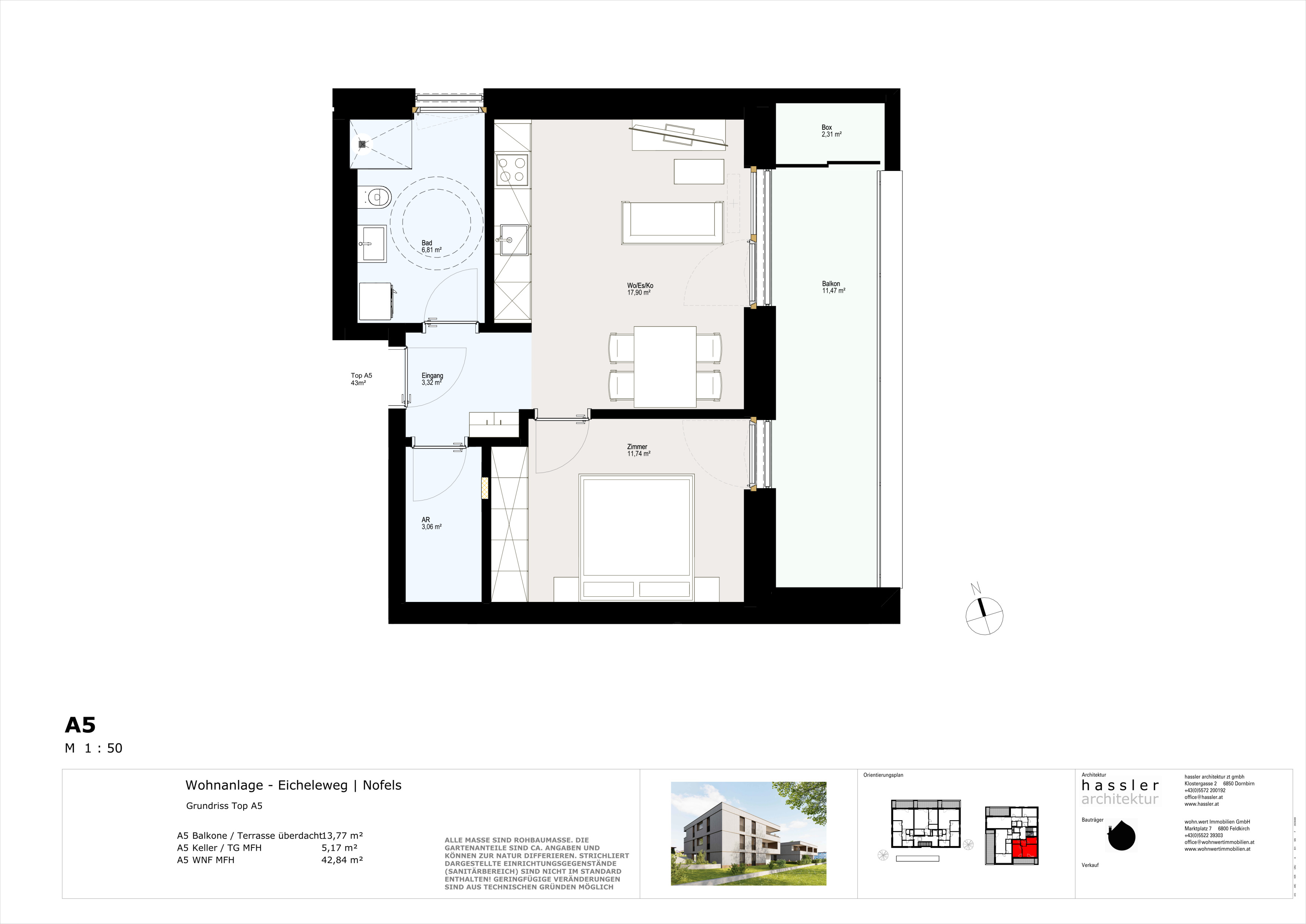
Wohnanlage in ruhiger Lage - Top A5

Obj. Nr.: 59427

ca. 42,84 m² Wohnfläche 2 Zimmer
Partner von Infina Rimo Immobilien Immobilienmakler 
Partner von Infina Rimo Immobilien Immobilienmakler
1.048 € Gesamtmiete inkl. USt. Mietkaution finanzieren?
Jetzt beantragen
Mehr Informationen zur Immobilie: Detaillierte Einblicke in dieses Objekt.
Zurück zur Übersicht

Objektstandort

6800 Feldkirch, Eicheleweg 13a/A5, Vorarlberg

Directions Icon Fahrtzeit berechnen
Preisinformationen
Betriebskosten (exkl. USt.) € 129,82
Gesamtbelastung € 1.047,96
Maklerprovision:
Gemäß Erstauftraggeberprinzip bezahlt der Vermieter/Verpächter die Provision.

Objektinformationen

Objektart: Wohnung
Unterobjektart: Etagenwohnung
Nutzungsart: Wohnen
Bauart: Neubau
Zustand: Erstbezug
Baujahr: 2023
barrierefrei: Ja

Rauminformationen & Flächen

Wohnfläche: ca. 42,84 m²
Kellerfläche: ca. 5,17 m²
Balkonfläche: ca. 11,00 m²
Garagenfläche: ca. 13,00 m²
Anzahl Balkone: 1
Anzahl Zimmer: 2
Anzahl WC: 1
Anzahl Bäder: 1

Ausstattung

Boden: Fliesen, Parkett
Befeuerung: Erdwärme, Solarenergie
Heizungsart: Fußbodenheizung
Küche: Wohnküche / offene Küche
Fahrstuhl: Personenaufzug
Balkon: Ostbalkon / -terrasse
Bad: Dusche, Bad mit Fenster
Fernsehen: Kabel / Satelliten-TV
Stellplatzart: Tiefgarage
Extras: Gartennutzung, Rollstuhlgerecht, Abstellraum, Fahrradraum, Seniorengerecht
Elektrik: DV- / EDV-Verkabelung
Dachform: Flachdach
Bauweise: Massiv
Ausbaustufe: Schlüsselfertig mit Keller

Lage

Die Wohnung befindet sich im Eicheleweg 13a in Feldkirch-Nofels, einem ruhigen Wohngebiet mit hohem Wohnkomfort. Die Umgebung ist geprägt von viel Grün und bietet zahlreiche Freizeit- und Erholungsmöglichkeiten wie Spazier- und Radwege.
Alltagseinrichtungen in kurzer Distanz erreichbar:
- Einkaufsmöglichkeiten
- Apotheke
- Schule und Kindergarten
- Gastronomie und Nahversorgung
Für Berufspendler bietet die Lage einen klaren Vorteil durch die Nähe zu Liechtenstein und der Schweiz. Die Anbindung an den öffentlichen Verkehr ist sehr gut, wodurch eine flexible Mobilität auch ohne PKW gewährleistet ist.

Beschreibung *

Modern wohnen auf kompakter Fläche

Die Wohnung befindet sich in einer 2024 errichteten Wohnanlage und liegt im 1. Obergeschoss. Die gepflegte 2-Zimmer-Wohnung mit ca. 42,84 m² überzeugt durch eine funktionale Raumaufteilung und zeitgemäße Ausstattung – ideal für Einzelpersonen oder Paare.

Raumaufteilung & Ausstattung:

  • Wohn-Essbereich
  • Schlafzimmer
  • Abstellraum
  • Bad mit Dusche
  • Überdachter Balkon mit ca. 11 m²

Weitere Details:

  • Einbauküche mit Miele-Geräten
  • Parkettboden in Wohn- und Schlafräumen
  • Fliesen im Bad
  • Personenaufzug vorhanden
  • Eigenes Kellerabteil
  • Tiefgaragenstellplatz inkludiert

Kurz gesagt:  Eine moderne Mietwohnung mit klarer Raumstruktur, zeitgemäßer Ausstattung und praktischer Lage – kompakt & funktional

Unsere Angaben beziehen sich auf die Auskünfte des Eigentümers. Irrtum und Änderungen vorbehalten.

Wir weisen darauf hin, dass zwischen dem Vermittler und dem zu vermittelnden Dritten ein familiäres oder wirtschaftliches Naheverhältnis besteht.

Der Immobilienmakler erklärt, dass er – entgegen dem in der Immobilienwirtschaft üblichen Geschäftsgebrauch des Doppelmaklers – einseitig nur für den Vermieter tätig ist.


Infrastruktur / Entfernungen

Gesundheit
Arzt <225m
Apotheke <950m
Krankenhaus <3.200m

Kinder & Schulen
Schule <575m
Kindergarten <200m
Höhere Schule <3.425m
Universität <3.475m

Nahversorgung
Supermarkt <175m
Bäckerei <925m
Einkaufszentrum <3.525m

Sonstige
Bank <975m
Geldautomat <975m
Post <450m
Polizei <3.200m

Verkehr
Bus <200m
Bahnhof <2.450m
Autobahnanschluss <4.525m

Angaben Entfernung Luftlinie / Quelle: OpenStreetMap


*Der Vertrag kommt nicht mit der INFINA Credit Broker GmbH zustande. Das Objekt wird von einem externen Immobilienunternehmen angeboten. Allfällige aus dem Vertragsabschluss resultierende Rechte sind ausschließlich gegenüber dem anbietenden Immobilienunternehmen geltend zu machen. Wir weisen Sie darauf hin, dass die gemachten Angaben und Informationen lediglich unverbindliche Vorabinformationen sind und daher ohne Gewähr erfolgen. Der Immobilienmakler erklärt, dass er – entgegen dem in der Immobilienwirtschaft üblichen Geschäftsgebrauch des Doppelmaklers – einseitig nur für den Vermieter tätig ist.

Energieausweis & Heizung
HWB (kWh/m2/Jahr): 30
HWB Energieklasse B
fGEE: 0.72
fGEE Energieklasse B
Gültig bis: 30.12.2031
Heizung: Fußbodenheizung
Befeuerung: Erdwärme, Solarenergie
Dokumente & Videos Pläne Pläne Pläne
Partner von Infina Rimo Immobilien Immobilienmakler
Verkehr:
Autobahnanschluss: 3940 m
Bus: 180 m
Bahnhof: 3450 m
Nahversorgung:
Bäckerei: 920 m
Einkaufszentrum: 3510 m
Supermarkt: 160 m
Kinder & Schulen:
Schule: 560 m
Kindergarten: 190 m
Universität: 3460 m
Höhere Schule: 3430 m
Sonstige:
Post: 440 m
Geldautomat: 3280 m
Polizei: 1620 m
Bank: 970 m
Gesundheit:
Arzt: 220 m
Apotheke: 930 m
Krankenhaus: 3240 m

Jetzt Experten kontaktieren

Weitere interessante Objekte

Partner von Infina
Jetzt anfragen
ca. 28,57 m² Wohnfläche 1 Zimmer
225.000 €
Feldkirch
Götzis
Partner von Infina
Jetzt anfragen
375.000 €
Feldkirch
Partner von Infina
Jetzt anfragen
299.000 €
Feldkirch
Partner von Infina
Jetzt anfragen
ca. 49,74 m² Wohnfläche 2 Zimmer
375.000 €
Götzis
Partner von Infina
Jetzt anfragen
380.000 €
Partner von Infina
Jetzt anfragen
360.000 €
Partner von Infina
Jetzt anfragen
ca. 49,74 m² Wohnfläche 2 Zimmer
341.000 €

Immobilie kaufen: Das passende Angebot finden

Der Kauf einer Immobilie ist eine wichtige Entscheidung – sei es für die Eigennutzung oder zur Vermietung. Mit unserem Portal unterstützen wir Sie dabei, die richtige Immobilie zu kaufen. Nutzen Sie unsere Suchmöglichkeiten, um gezielt eine Immobilie zu suchen, die Ihren Vorstellungen entspricht. Unsere Immobilienangebote decken eine breite Palette ab: vom Einfamilienhaus über die Eigentumswohnung bis hin zum Grundstück für Ihr Bauvorhaben. Mit uns können Sie sicher und unkompliziert Eigentum erwerben – ob für die private Nutzung oder als Investition als Immobilie. Erkunden Sie jetzt unsere Angebote und finden Sie die perfekte Lösung, die zu Ihren Wohn- oder Anlagezielen passt.

Fundiertes Wissen für Ihre Entscheidung, eine Immobilie zu kaufen

Bereiten Sie sich bestens vor: Infina stellt Ihnen kostenlos über 300 Ratgeber und Beiträge zu den Themen Immobilie, Finanzierung, Zinsen und Recht zur Verfügung. Nutzen Sie unser umfassendes Wissen, um richtige Entscheidungen zu treffen.

Bei jedem Kauf einer Immobilie oder eines Grundstücks ist es wichtig, die passende Finanzierung zu finden. Mit seiner eigenen Vertriebsorganisation ist Infina als Wohnbau-Finanz-Experte an über 100 Standorten in ganz Österreich vertreten und vermittelt Finanzierungen an über 120 Banken und Bausparkassen. Nutzen Sie unseren kostenlosen Kreditvergleich für den passenden Wohnkredit: 

Kreditvergleich

Kostenlos und unverbindlich

Immobilie mieten: Ihr neues Zuhause wartet

Die Entscheidung, eine Immobilie zu mieten, bietet Flexibilität und zahlreiche Möglichkeiten – ob eine Wohnung für den Alltag oder ein Haus für die Familie. Bei Infina können Sie gezielt sowohl eine Wohnung suchen als auch ein Haus suchen, das Ihren Bedürfnissen entspricht. Unsere Angebote erleichtern es Ihnen, eine Mietwohnung zu suchen und Ihre ideale Wohnung finden zu können. Entdecken Sie vielfältige Optionen, um die passende Immobilie zu finden und Ihre Wohnträume zu verwirklichen. Starten Sie noch heute Ihre Suche und profitieren Sie von einer großen Auswahl an Mietobjekten in Ihrer Wunschregion.

Hilfreiche Informationen zu Immobilie mieten

Starten Sie gut vorbereitet in Ihre Mietentscheidung: Infina stellt Ihnen vielseitige Ratgeber und Beiträge zu Themen wie Immobilie, Mietrecht, Finanzierung und Wohntrends zur Verfügung. Verschaffen Sie sich einen Überblick über alle relevanten Aspekte und gestalten Sie Ihren Weg ins neue Zuhause einfacher und sicherer.

Erfolgreich zur neuen Immobilie

Mit Infina haben Sie einen verlässlichen Partner an Ihrer Seite, der Sie von der ersten Beratung bis zum erfolgreichen Abschluss ganzheitlich unterstützt. Erfahren Sie hier, wie wir gemeinsam Ihren Immobilienerfolg gestalten.

Starten Sie jetzt Ihre Immobiliensuche

Nach zahlreichen Informationen rund um die Themen Immobilie kaufen und Immobilie mieten können Sie nun den nächsten Schritt machen. Starten Sie die Immobiliensuche, um Ihr neues Zuhause oder Ihre nächste Investition zu finden und entdecken Sie die passenden Angebote:

Das innovative Portal für Immobilien und Finanzierung 

Als Kunde von Infina profitieren Sie von unserer umfangreichen und unabhängigen Expertise als Teil einer wachsenden, unabhängigen Immobilien- und Finanzierungsnetzwerkgruppe. Bereits 50.000 Kunden hat Infina erfolgreich bei Ihrem Vorhaben begleitet. Infina bietet Ihnen eine umfassende Beratung in allen Bereichen rund um Ihre Immobilienvorhaben:

Die passende Finanzierung für Ihre Immobilie

Mit Infina erhalten Sie nicht nur eine unabhängige Beratung, sondern auch die passende Finanzierungslösung für Ihre Immobilie. Aus den Angeboten von über 120 Banken und Bausparkassen vermitteln wir Ihnen das, was perfekt zu Ihren Bedürfnissen passt. Wir begleiten Sie professionell und verlässlich – von der ersten Beratung bis zum erfolgreichen Abschluss.

Kreditvergleich

Kostenlos und unverbindlich

Wir holen das Beste für Sie heraus

Verkaufen Sie Ihre Immobilie mit uns & profitieren Sie von unserer Expertise. Wir bringen Ihre Immobilie optimal auf den Markt & erzielen den besten Preis. 

Kontaktieren Sie uns jetzt.

Jetzt Experten kontaktieren
Junge Frau im pinken Blazer hält ein Modellhaus in der linken Hand und zeigt mit der rechten Hand nach oben, als hätte sie eine Idee. Sie lächelt und blickt leicht nach oben – symbolisch für Inspiration oder Immobilienberatung.