INFINA LOGO
Entspannt zur Immobilie Persönlich & kompetent beraten Finanzierbarkeit sofort überprüfbar
598.000 € 7.062 €/m²
Kostenlos &
unverbindlich.
Kontakt aufnehmen

HELENE | Top A01 | Baustart erfolgt! | Eigentumswohnungen in Baden bei Wien.

Obj. Nr.: 50143

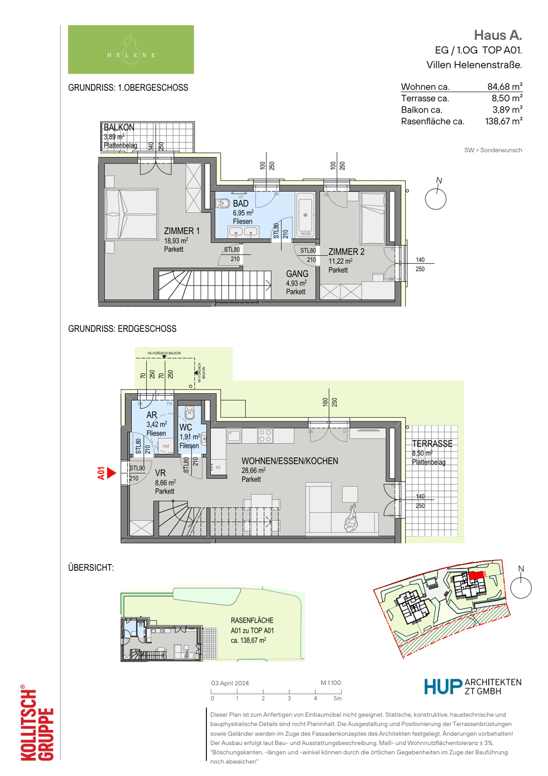
ca. 84,68 m² Wohnfläche 3 Zimmer
Partner von Infina Kollitsch Immobilien Immobilienmakler 
Partner von Infina Kollitsch Immobilien Immobilienmakler
598.000 € Kaufpreis der Immobilie Kreditvergleich von über 120 Banken mit Infina.
Immobilie finanzieren
Mehr Informationen zur Immobilie: Detaillierte Einblicke in dieses Objekt.
Zurück zur Übersicht

Objektstandort

2500 Baden bei Wien, Baden, Niederösterreich Adresse anfragen

Directions Icon Fahrtzeit berechnen
Preisinformationen
Kaufpreis 598.000 €
Grundbucheintragung: 1.1 %
Grunderwerbsteuer: 3.5 %
Was kann ich mir leisten?
Jetzt berechnen

Objektinformationen

Objektart: Wohnung
Unterobjektart: Etagenwohnung
Nutzungsart: Wohnen

Rauminformationen & Flächen

Wohnfläche: ca. 84,68 m²
Gartenfläche: ca. 138,67 m²
Kellerfläche: ca. 7,74 m²
Anzahl Zimmer: 3

Ausstattung

Heizungsart: Fernwärme
Fahrstuhl: Personenaufzug
Extras: Abstellraum, Fahrradraum

Beschreibung *

Genussvoll wohnen in Baden bei Wien.
Die Seele baumeln lassen. In Stadtvillen inmitten von prächtigem Grün. Nur ein paar Schritte vom Rosarium entfernt. Am Eingang zur Altstadt. Wo sich Kultur und Natur begegnen. Und das Leben zum Genuss wird.
- 2 Stadtvillen
- 16 Eigentumswohnungen
- 16 Tiefgaragenplätze

**Innenstadtflair inhalieren. **
Die Helenenstraße 1 ist eine der besten Adressen in Baden. Der Doblhoffpark liegt gleich ums Eck. Der liebenswerte Stadtkern lädt ein zum Flanieren, Kurbaden und Kulturgenießen. Und wer auch gerne in Wien über die Kärntner Straße spaziert, ist mit der Badner Bahn in einer guten Stunde dort.

**Villenarchitektur genießen. **
Moderne Stadtvillen und UNESCO-Welterbe glücklich vereint: Helene fügt sich harmonisch ins Stadtbild und spiegelt Elemente der historischen Badener Villenarchitektur wider. Das gemeinsam mit der Stadt Baden entwickelte Konzept ist eine Hommage an die herrschaftlichen Stadthäuser, die einst genau hier ihren Glanz entfalteten.

**Gartenfreude spüren. **
Helene liebt das Grüne. Eine großzügige Gartenanlage umschließt die beiden Stadtvillen. Man trifft sich unter freiem Himmel. Auf dem Vorplatz. Auf der Kinderspielwiese. Auf dem Lieblingsplatz mit Blick auf die Schwechat. Und in den Gärten der Parterrewohnungen wird das ganze Jahr über Sonne getankt.

**Nachhaltigkeit erleben. **
Ein großer, versiegelter Parkplatz weicht dem puren Leben. Die Flächen werden aufgebrochen und das Abbruchmaterial recycelt. Neue Grünbereiche entstehen. Und auch die Gebäude selbst stecken voller Nachhaltigkeit – von der hochwertigen Ziegelbauweise bis zur effizienten Fernwärmeheizung.

**In Kultur und Natur. Baden. **
Ganz spontan sein. Sich an den schönen Dingen erfreuen. Und der Seele Nahrung geben. Helene liegt dafür perfekt. Inmitten abwechslungsreicher Alltagsgenüsse.
Im kaiserlichen Ambiente der Altstadt flanieren. Biedermeierliche Kaffeehausatmosphäre genießen und sündhaft gute Mehlspeisen naschen. Die unbekannte Schöne im Doblhoffpark besuchen. Abendlichen Freiluftkonzerten lauschen. Im Thermalwasser schwimmen. Zur Burgruine Rauhenstein spazieren. Auf Beethovens Spuren über das Wegerl im Helenental wandern. Oder den Tag in den Weingärten verbringen. Das Leben hier steckt voller Genussmomente.

**Ein geschmackvolles Zuhause. **
Die beiden Villen mit ihren hohen Fenstern sind historischen Vorbildern nachempfunden. Sie schmiegen sich sanft in die großzügige Grünanlage und strahlen vornehmen Charme aus. Kultiviert, einladend und geschmackvoll.

**Ein Leben in Harmonie**
Wer das Besondere sucht, wird hier fündig. Bei jedem Schritt. Mit jedem Atemzug. Die eleganten Eigentumswohnungen bestechen durch Harmonie und Ausgewogenheit. Sie gewähren modernsten Wohnkomfort und sind wahre Wohlfühlorte. Zum Aufblühen und Genießen.

*Der Vertrag kommt nicht mit der INFINA Credit Broker GmbH zustande. Das Objekt wird von einem externen Immobilienunternehmen angeboten. Allfällige aus dem Vertragsabschluss resultierende Rechte sind ausschließlich gegenüber dem anbietenden Immobilienunternehmen geltend zu machen. Wir weisen Sie darauf hin, dass die gemachten Angaben und Informationen lediglich unverbindliche Vorabinformationen sind und daher ohne Gewähr erfolgen. Der Vermittler ist als Doppelmakler tätig.

Heizung: Fernwärme
Dokumente & Videos Pläne
Partner von Infina Kollitsch Immobilien Immobilienmakler
Nahversorgung:
Supermarkt: 520 m
Bäckerei: 510 m
Einkaufszentrum: 2100 m
Gesundheit:
Apotheke: 450 m
Arzt: 130 m
Klinik: 210 m
Krankenhaus: 2280 m
Verkehr:
Bus: 30 m
Autobahnanschluss: 3920 m
Bahnhof: 1260 m
Flughafen: 5330 m
Kinder & Schulen:
Schule: 130 m
Kindergarten: 60 m
Universität: 8980 m
Höhere Schule: 8620 m
Sonstige:
Post: 680 m
Polizei: 950 m
Geldautomat: 650 m
Bank: 470 m

Jetzt Experten kontaktieren

Weitere interessante Objekte

Partner von Infina
Jetzt anfragen
8.180 €/m²
628.000 €
Partner von Infina
Jetzt anfragen
8.277 €/m²
858.000 €

Immobilie kaufen: Das passende Angebot finden

Der Kauf einer Immobilie ist eine wichtige Entscheidung – sei es für die Eigennutzung oder zur Vermietung. Mit unserem Portal unterstützen wir Sie dabei, die richtige Immobilie zu kaufen. Nutzen Sie unsere Suchmöglichkeiten, um gezielt eine Immobilie zu suchen, die Ihren Vorstellungen entspricht. Unsere Immobilienangebote decken eine breite Palette ab: vom Einfamilienhaus über die Eigentumswohnung bis hin zum Grundstück für Ihr Bauvorhaben. Mit uns können Sie sicher und unkompliziert Eigentum erwerben – ob für die private Nutzung oder als Investition als Immobilie. Erkunden Sie jetzt unsere Angebote und finden Sie die perfekte Lösung, die zu Ihren Wohn- oder Anlagezielen passt.

Fundiertes Wissen für Ihre Entscheidung, eine Immobilie zu kaufen

Bereiten Sie sich bestens vor: Infina stellt Ihnen kostenlos über 300 Ratgeber und Beiträge zu den Themen Immobilie, Finanzierung, Zinsen und Recht zur Verfügung. Nutzen Sie unser umfassendes Wissen, um richtige Entscheidungen zu treffen.

Bei jedem Kauf einer Immobilie oder eines Grundstücks ist es wichtig, die passende Finanzierung zu finden. Mit seiner eigenen Vertriebsorganisation ist Infina als Wohnbau-Finanz-Experte an über 100 Standorten in ganz Österreich vertreten und vermittelt Finanzierungen an über 120 Banken und Bausparkassen. Nutzen Sie unseren kostenlosen Kreditvergleich für den passenden Wohnkredit: 

Kreditvergleich

Kostenlos und unverbindlich

Immobilie mieten: Ihr neues Zuhause wartet

Die Entscheidung, eine Immobilie zu mieten, bietet Flexibilität und zahlreiche Möglichkeiten – ob eine Wohnung für den Alltag oder ein Haus für die Familie. Bei Infina können Sie gezielt sowohl eine Wohnung suchen als auch ein Haus suchen, das Ihren Bedürfnissen entspricht. Unsere Angebote erleichtern es Ihnen, eine Mietwohnung zu suchen und Ihre ideale Wohnung finden zu können. Entdecken Sie vielfältige Optionen, um die passende Immobilie zu finden und Ihre Wohnträume zu verwirklichen. Starten Sie noch heute Ihre Suche und profitieren Sie von einer großen Auswahl an Mietobjekten in Ihrer Wunschregion.

Hilfreiche Informationen zu Immobilie mieten

Starten Sie gut vorbereitet in Ihre Mietentscheidung: Infina stellt Ihnen vielseitige Ratgeber und Beiträge zu Themen wie Immobilie, Mietrecht, Finanzierung und Wohntrends zur Verfügung. Verschaffen Sie sich einen Überblick über alle relevanten Aspekte und gestalten Sie Ihren Weg ins neue Zuhause einfacher und sicherer.

Erfolgreich zur neuen Immobilie

Mit Infina haben Sie einen verlässlichen Partner an Ihrer Seite, der Sie von der ersten Beratung bis zum erfolgreichen Abschluss ganzheitlich unterstützt. Erfahren Sie hier, wie wir gemeinsam Ihren Immobilienerfolg gestalten.

Starten Sie jetzt Ihre Immobiliensuche

Nach zahlreichen Informationen rund um die Themen Immobilie kaufen und Immobilie mieten können Sie nun den nächsten Schritt machen. Starten Sie die Immobiliensuche, um Ihr neues Zuhause oder Ihre nächste Investition zu finden und entdecken Sie die passenden Angebote:

Das innovative Portal für Immobilien und Finanzierung 

Als Kunde von Infina profitieren Sie von unserer umfangreichen und unabhängigen Expertise als Teil einer wachsenden, unabhängigen Immobilien- und Finanzierungsnetzwerkgruppe. Bereits 50.000 Kunden hat Infina erfolgreich bei Ihrem Vorhaben begleitet. Infina bietet Ihnen eine umfassende Beratung in allen Bereichen rund um Ihre Immobilienvorhaben:

Die passende Finanzierung für Ihre Immobilie

Mit Infina erhalten Sie nicht nur eine unabhängige Beratung, sondern auch die passende Finanzierungslösung für Ihre Immobilie. Aus den Angeboten von über 120 Banken und Bausparkassen vermitteln wir Ihnen das, was perfekt zu Ihren Bedürfnissen passt. Wir begleiten Sie professionell und verlässlich – von der ersten Beratung bis zum erfolgreichen Abschluss.

Kreditvergleich

Kostenlos und unverbindlich

Wir holen das Beste für Sie heraus

Verkaufen Sie Ihre Immobilie mit uns & profitieren Sie von unserer Expertise. Wir bringen Ihre Immobilie optimal auf den Markt & erzielen den besten Preis. 

Kontaktieren Sie uns jetzt.

Jetzt Experten kontaktieren
Junge Frau im pinken Blazer hält ein Modellhaus in der linken Hand und zeigt mit der rechten Hand nach oben, als hätte sie eine Idee. Sie lächelt und blickt leicht nach oben – symbolisch für Inspiration oder Immobilienberatung.