INFINA LOGO
Entspannt zur Immobilie Persönlich & kompetent beraten Finanzierbarkeit sofort überprüfbar
1.748.000 €
Kostenlos &
unverbindlich.
Kontakt aufnehmen

Exklusives Weinberg-Refugium: unverbaubarer Panoramablick in absoluter Ruhelage I hightech Pool I Dachterrasse mit Whirlpool I Erdwärme, Solarpaneele, Fußbodenheizung, Kühldecke

Obj. Nr.: 159085

ca. 139,00 m² Wohnfläche 4 Zimmer
Partner von Infina Alexander Ringsmuth Immobilien Immobilienmakler 
Partner von Infina Alexander Ringsmuth Immobilien Immobilienmakler
1.748.000 € Kaufpreis der Immobilie Kreditvergleich von über 150 Banken mit Infina.
Immobilie finanzieren
Mehr Informationen zur Immobilie: Detaillierte Einblicke in dieses Objekt.
Zurück zur Übersicht

Objektstandort

1190 Wien Adresse anfragen

Directions Icon Fahrtzeit berechnen
Preisinformationen
Kaufpreis 1.748.000 €
Grundbucheintragung: 1.1 %
Grunderwerbsteuer: 3.5 %
Was kann ich mir leisten?
Jetzt berechnen
Maklerprovision:
3,00 % des Kaufpreises zzgl. 20 % USt.

Objektinformationen

Objektart: Haus
Unterobjektart: Einfamilienhaus
Nutzungsart: Wohnen
Zustand: neuwertig

Rauminformationen & Flächen

Grundstücksfläche: ca. 363,00 m²
Wohnfläche: ca. 139,00 m²
Gartenfläche: ca. 139,50 m²
Kellerfläche: ca. 63,00 m²
Balkonfläche: ca. 19,00 m²
Terrassenfläche: ca. 76,50 m²
Anzahl Balkone: 1
Anzahl Terrassen: 2
Anzahl Zimmer: 4

Ausstattung

Boden: Steinboden, Fliesen, Parkett
Befeuerung: Erdwärme, Solarenergie, Luftwärmepumpe
Heizungsart: Fußbodenheizung
Küche: Einbauküche
Balkon: Südwestbalkon / -terrasse
Bad: Dusche, Badewanne, Bad mit Fenster
Extras: Gartennutzung, Swimmingpool, Wasch- / Trockenraum, Abstellraum
Belüftung: Klimaanlage
WCs: Gäste-WC
Dachform: Flachdach
Bauweise: Massiv

Lage

Hackenberg, Neustift am Walde, Krottenbachstraße

Einkaufsmöglichkeiten:
Restaurants, Heurigen, Supermärkte in der Nähe. 

Öffentliche Verkehrsanbindung:
252 Meter bis zur Busstation 39A Neustift/Agnesgasse
218 Meter bis zur Busstation 35A Neustift/Agnesgasse
309 Meter bis zur Busstation 43B Neustift/Agnesgasse

Beschreibung *

In einer der besten Lagen des 19. Bezirksruhig gelegen am Hackenberg – präsentiert sich dieses freistehende Einfamilienhaus als seltene Gelegenheit für anspruchsvolles Wohnen . Auf drei Wohnebenen bietet die Liegenschaft vier helle Zimmer mit unverbaubarem Blick über die umliegenden Weinberge . Der gepflegte Garten mit Pool bietet Rückzug und Privatsphäre , während die großzügige Dachterrasse mit Whirlpool, eindrucksvolle Ausblicke und stimmungsvolle Sonnenuntergänge über Wien ermöglicht. Im Inneren überzeugt das Haus durch eine durchdachte Raumplanung, hochwertige Ausführung und eine Einrichtung mit klarer Linie und Liebe zum Detailein modernes Wohnambiente mit hoher Qualität.

Im Erdgeschoss befindet sich die großzügige, lichtdurchflutete Wohnbereich , ausgestattet mit einer maßgefertigten Tischlerküche und angrenzender Speis. Bodentiefe Glasfronten eröffnen den direkten Zugang zur sonnigen Terrasse und dem eleganten Pool, ein Gäste-WC komplettiert diese Ebene. Im ersten Obergeschoss erwarten Sie zwei Schlafzimmer mit Zugang zu einem Balkon, ein Schrankraum sowie ein Badezimmer mit WC – perfekte Rückzugsbereiche für Ruhe und Komfort. Der vollwertig ausgebaute Wohnkeller bietet ein weiteres Schlafzimmer mit Garderobenraum und Zugang zum Garten,  ein Badezimmer mit WC, e inen praktischen Abstellraum sowie einen separaten Raum mit Saunaanschluss.  Die uneinsichtige, weitläufige Dachterrasse mit Whirlpool eröffnet einen unvergleichbaren Panoramablick über die Weinberge und die Umgebung.

Die Immobilie ist mit einer energiesparenden Wärmepumpe und einer Solaranlage ausgestattet, die ein besonders ressourceneffizientes Wohnen ermöglichen. Pufferspeicher sorgen dafür, dass die Sonnenenergie optimal genutzt wird. Für höchsten Komfort sorgen Fußboden- und Deckenkühlung , die eine gleichmäßige und angenehme Verteilung von Wärme und Kälte in allen Räumen gewährleisten. Bodentiefe, dreifach verglaste Fenster sind mit elektrischen Raffstores ausgestattet und verbinden Ästhetik mit Funktionalität. Die durchdachte Ambientebeleuchtung im Innen- und Außenbereich rundet die exklusive Wohnatmosphäre ab. Der hochmoderne Pool überzeugt durch minimalistisches Design und zehn unterschiedliche Funktionen, während der Whirlpool Platz für vier Personen bietet und höchsten Entspannungswert garantiert. Alle Terrassenflächen sind mit hochwertigen Steinteppich  ausgestattet. Das gesamte Haus mit maßgefertigten Tischlerschränken  bietet großzügigen Stauraum bei klarer Linienführung.

Dieses Architektenhaus verbindet Eleganz, Komfort und modernste Technik auf höchstem Niveau – ein einzigartiges Zuhause für Genießer , die Wert auf Qualität, Stil und Ruhe legen.

Highlights auf einen Blick:

  • Top-Ruhelage  am Hackenberg 
  • Panoramablick: Unverbaubarer Ausblick über die Weinberge
  • Außenbereich: Großzügiger Garten mit Pool und uneinsichtiger Dachterrasse
  • Dachterrasse mit Whirlpool , Terrassenflächen mit hochwertigem Steinteppich
  • Maßgefertigte Tischlerküche , angrenzende Speis, Zugang zur Terrasse
  • Ausgebauter Wohnkeller
  • Energiesparende Wärmepumpe und Solaranlage mit Pufferspeichern
  • Fußbodenheizung und Deckenkühlung für gleichmäßige Temperaturverteilung
  • Bodentiefe, dreifach verglaste Fenster mit elektrischen Raffstores
  • Durchdachte Innen- und Außenbeleuchtung
  • durchdachte, maßgefertigte Tischlerschränke

Das Haus teilt sich wie folgt auf:

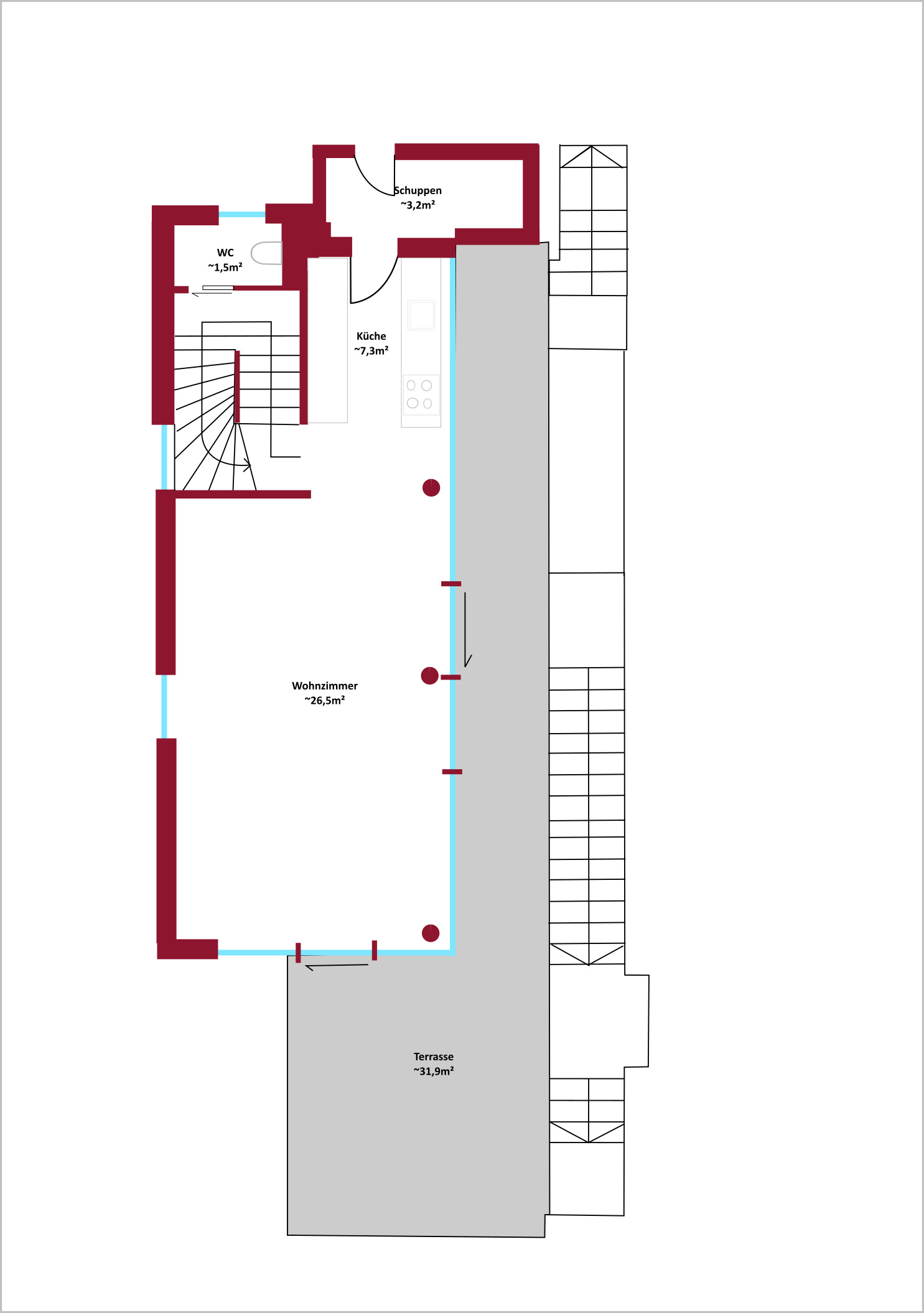
GARTENGESCHOSS

  • Wohnraum, ca. 26,51m² mit Zugang zur Terrasse 
  • Küche, ca. 7,29m²  
  • Speis, ca. 3,19m²  
  • Gäste-WC, ca. 1,49m²  
  • Terrasse, ca. 31,93m² 

1.OBERGESCHOSS

  • Zimmer, ca. 14,57m² mit Zugang zum Balkon
  • Zimmer, ca. 8,99m² mit Zugang zum Balkon
  • Vorraum, Garderobe, ca. 4,75m²  
  • Badezimmer mit WC, ca. 4,44m²    
  • Gang, ca. 3,98m²    

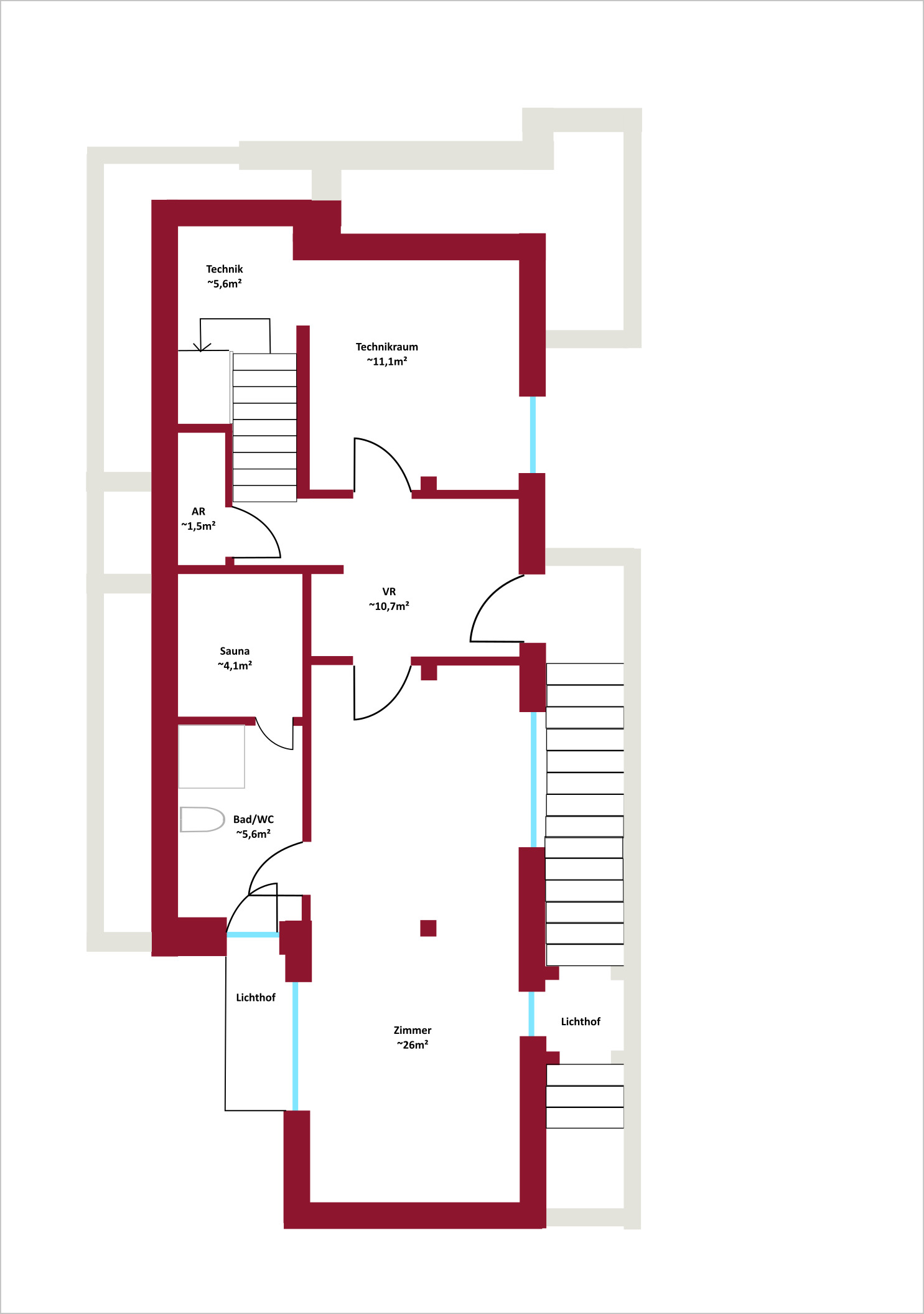
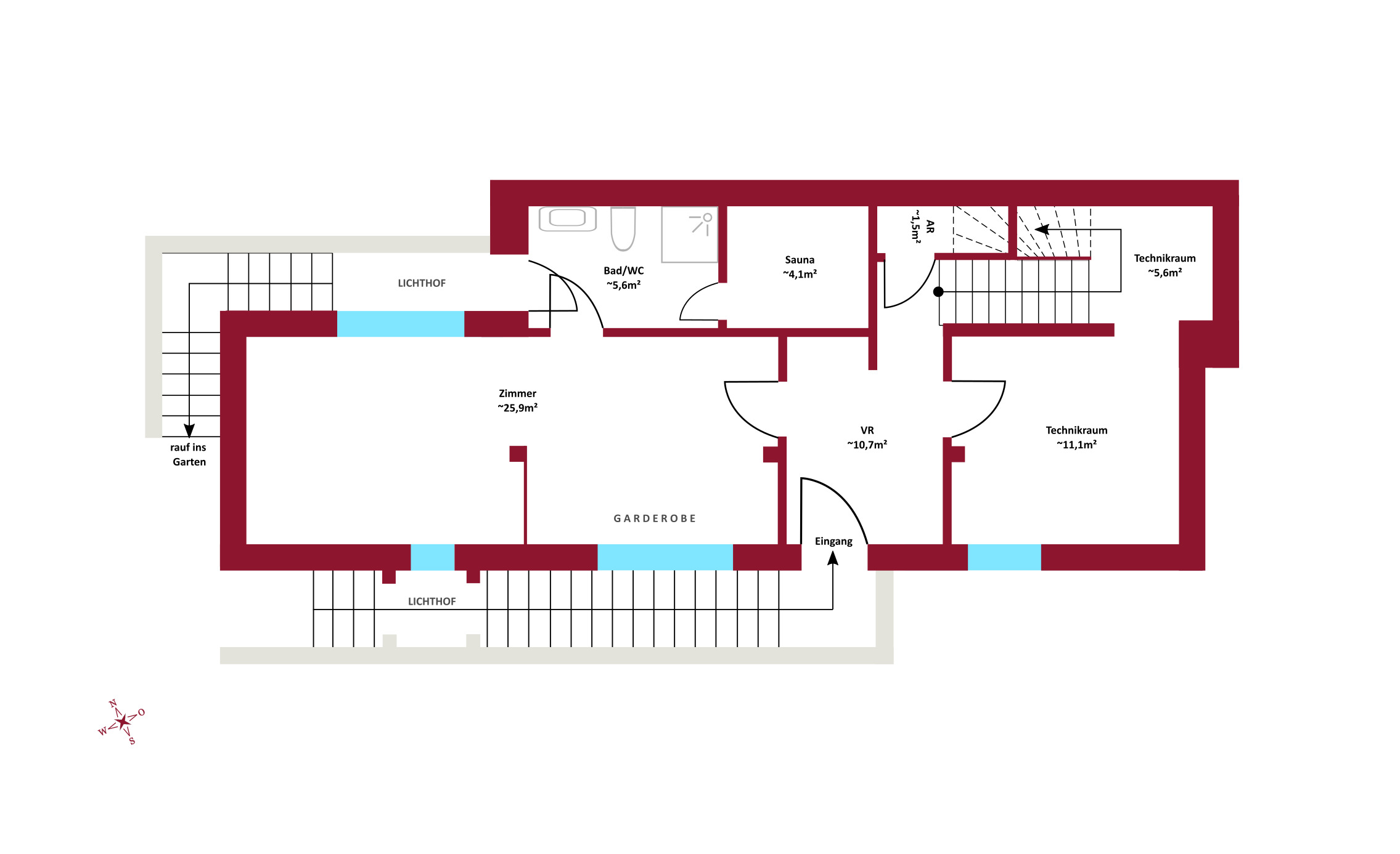
KELLERGESCHOSS

  • Zimmer, ca. 25,89m² mit Zugang zum Garten und Terrasse
  • Badezimmer ca. 5,64m² 
  • Saunaraum, ca. 4,10m²
  • Vorraum, ca. 10,73m²
  • Abstellraum, ca. 1,45m²
  • Technikraum, ca. 5,60m²
  • Technikraum, ca. 11,08m²

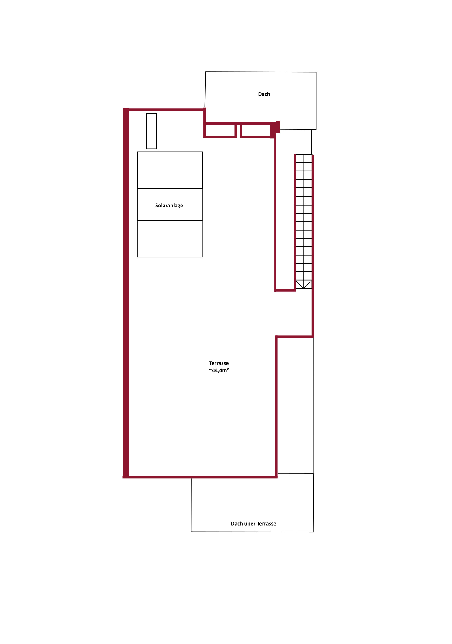
DACHGESCHOSS

  • Dachterrasse, ca. 44,44m² 


Einkaufsmöglichkeiten:

Restaurants, Heurigen, Supermärkte in der Nähe. 

Öffentliche Verkehrsanbindung:

ca. 252 Meter bis zur Busstation 39A Neustift/Agnesgasse

ca. 218 Meter bis zur Busstation 35A Neustift/Agnesgasse

ca. 309 Meter bis zur Busstation 43B Neustift/Agnesgasse

Kaufpreis:

Der Kaufpreis beträgt  1.748.000,-- Euro . Im Kaufpreis ist eine ausweisbare Umsatzsteuer enthalten, die unter gewissen Vorbehalten von Vorsteuerabzugsberechtigten steuerlich genutzt werden kann! 

Gerne steht Ihnen Frau Elina Strautmane für weitere Fragen bzw. flexibel gestaltbare Besichtigungstermine unter 0664 99523313   zur Verfügung.  

www.ringsmuth-immobilien.at

Irrtum und Änderungen vorbehalten!

Hinweis gemäß Energieausweisvorlagegesetz: Ein Energieausweis wurde vom Eigentümer bzw. Verkäufer, nach unserer Aufklärung über die generell geltende Vorlagepflicht, sowie Aufforderung zu seiner Erstellung noch nicht vorgelegt. Daher gilt zumindest eine dem Alter und der Art des Gebäudes entsprechende Gesamtenergieeffizienz als vereinbart. Wir übernehmen keinerlei Gewähr oder Haftung für die tatsächliche Energieeffizienz der angebotenen Immobilie.

Der Vermittler ist als Doppelmakler tätig.


Infrastruktur / Entfernungen

Gesundheit
Arzt <500m
Apotheke <500m
Klinik <2.500m
Krankenhaus <3.000m

Kinder & Schulen
Schule <1.000m
Kindergarten <500m
Universität <2.500m
Höhere Schule <2.500m

Nahversorgung
Supermarkt <500m
Bäckerei <1.000m
Einkaufszentrum <3.500m

Sonstige
Geldautomat <1.500m
Bank <1.500m
Post <500m
Polizei <2.000m

Verkehr
Bus <500m
Straßenbahn <1.500m
U-Bahn <3.500m
Bahnhof <3.000m
Autobahnanschluss <4.500m

Angaben Entfernung Luftlinie / Quelle: OpenStreetMap


*Der Vertrag kommt nicht mit der INFINA Credit Broker GmbH zustande. Das Objekt wird von einem externen Immobilienunternehmen angeboten. Allfällige aus dem Vertragsabschluss resultierende Rechte sind ausschließlich gegenüber dem anbietenden Immobilienunternehmen geltend zu machen. Wir weisen Sie darauf hin, dass die gemachten Angaben und Informationen lediglich unverbindliche Vorabinformationen sind und daher ohne Gewähr erfolgen. Der Vermittler ist als Doppelmakler tätig.

Heizung: Fußbodenheizung
Befeuerung: Erdwärme, Solarenergie, Luftwärmepumpe
Dokumente & Videos Pläne Pläne Pläne Pläne
Partner von Infina Alexander Ringsmuth Immobilien Immobilienmakler
Kinder & Schulen:
Höhere Schule: 940 m
Universität: 1090 m
Kindergarten: 320 m
Schule: 350 m
Nahversorgung:
Supermarkt: 50 m
Bäckerei: 130 m
Einkaufszentrum: 1560 m
Gesundheit:
Apotheke: 60 m
Klinik: 910 m
Arzt: 140 m
Krankenhaus: 410 m
Verkehr:
Autobahnanschluss: 1670 m
U-Bahn: 1620 m
Bus: 50 m
Straßenbahn: 60 m
Bahnhof: 240 m
Sonstige:
Polizei: 120 m
Post: 690 m
Bank: 30 m
Geldautomat: 20 m

Jetzt Experten kontaktieren

Weitere interessante Objekte

Immobilie kaufen: Das passende Angebot finden

Der Kauf einer Immobilie ist eine wichtige Entscheidung – sei es für die Eigennutzung oder zur Vermietung. Mit unserem Portal unterstützen wir Sie dabei, die richtige Immobilie zu kaufen. Nutzen Sie unsere Suchmöglichkeiten, um gezielt eine Immobilie zu suchen, die Ihren Vorstellungen entspricht. Unsere Immobilienangebote decken eine breite Palette ab: vom Einfamilienhaus über die Eigentumswohnung bis hin zum Grundstück für Ihr Bauvorhaben. Mit uns können Sie sicher und unkompliziert Eigentum erwerben – ob für die private Nutzung oder als Investition als Immobilie. Erkunden Sie jetzt unsere Angebote und finden Sie die perfekte Lösung, die zu Ihren Wohn- oder Anlagezielen passt.

Fundiertes Wissen für Ihre Entscheidung, eine Immobilie zu kaufen

Bereiten Sie sich bestens vor: Infina stellt Ihnen kostenlos über 300 Ratgeber und Beiträge zu den Themen Immobilie, Finanzierung, Zinsen und Recht zur Verfügung. Nutzen Sie unser umfassendes Wissen, um richtige Entscheidungen zu treffen.

Bei jedem Kauf einer Immobilie oder eines Grundstücks ist es wichtig, die passende Finanzierung zu finden. Mit seiner eigenen Vertriebsorganisation ist Infina als Wohnbau-Finanz-Experte an über 100 Standorten in ganz Österreich vertreten und vermittelt Finanzierungen an über 150 Banken und Bausparkassen. Nutzen Sie unseren kostenlosen Kreditvergleich für den passenden Wohnkredit: 

Kreditvergleich

Kostenlos und unverbindlich

Immobilie mieten: Ihr neues Zuhause wartet

Die Entscheidung, eine Immobilie zu mieten, bietet Flexibilität und zahlreiche Möglichkeiten – ob eine Wohnung für den Alltag oder ein Haus für die Familie. Bei Infina können Sie gezielt sowohl eine Wohnung suchen als auch ein Haus suchen, das Ihren Bedürfnissen entspricht. Unsere Angebote erleichtern es Ihnen, eine Mietwohnung zu suchen und Ihre ideale Wohnung finden zu können. Entdecken Sie vielfältige Optionen, um die passende Immobilie zu finden und Ihre Wohnträume zu verwirklichen. Starten Sie noch heute Ihre Suche und profitieren Sie von einer großen Auswahl an Mietobjekten in Ihrer Wunschregion.

Hilfreiche Informationen zu Immobilie mieten

Starten Sie gut vorbereitet in Ihre Mietentscheidung: Infina stellt Ihnen vielseitige Ratgeber und Beiträge zu Themen wie Immobilie, Mietrecht, Finanzierung und Wohntrends zur Verfügung. Verschaffen Sie sich einen Überblick über alle relevanten Aspekte und gestalten Sie Ihren Weg ins neue Zuhause einfacher und sicherer.

Erfolgreich zur neuen Immobilie

Mit Infina haben Sie einen verlässlichen Partner an Ihrer Seite, der Sie von der ersten Beratung bis zum erfolgreichen Abschluss ganzheitlich unterstützt. Erfahren Sie hier, wie wir gemeinsam Ihren Immobilienerfolg gestalten.

Starten Sie jetzt Ihre Immobiliensuche

Nach zahlreichen Informationen rund um die Themen Immobilie kaufen und Immobilie mieten können Sie nun den nächsten Schritt machen. Starten Sie die Immobiliensuche, um Ihr neues Zuhause oder Ihre nächste Investition zu finden und entdecken Sie die passenden Angebote:

Das innovative Portal für Immobilien und Finanzierung 

Als Kunde von Infina profitieren Sie von unserer umfangreichen und unabhängigen Expertise als Teil einer wachsenden, unabhängigen Immobilien- und Finanzierungsnetzwerkgruppe. Bereits 50.000 Kunden hat Infina erfolgreich bei Ihrem Vorhaben begleitet. Infina bietet Ihnen eine umfassende Beratung in allen Bereichen rund um Ihre Immobilienvorhaben:

Die passende Finanzierung für Ihre Immobilie

Mit Infina erhalten Sie nicht nur eine unabhängige Beratung, sondern auch die passende Finanzierungslösung für Ihre Immobilie. Aus den Angeboten von über 150 Banken und Bausparkassen vermitteln wir Ihnen das, was perfekt zu Ihren Bedürfnissen passt. Wir begleiten Sie professionell und verlässlich – von der ersten Beratung bis zum erfolgreichen Abschluss.

Kreditvergleich

Kostenlos und unverbindlich

Wir holen das Beste für Sie heraus

Verkaufen Sie Ihre Immobilie mit uns & profitieren Sie von unserer Expertise. Wir bringen Ihre Immobilie optimal auf den Markt & erzielen den besten Preis. 

Kontaktieren Sie uns jetzt.

Jetzt Experten kontaktieren
Junge Frau im pinken Blazer hält ein Modellhaus in der linken Hand und zeigt mit der rechten Hand nach oben, als hätte sie eine Idee. Sie lächelt und blickt leicht nach oben – symbolisch für Inspiration oder Immobilienberatung.