INFINA LOGO
Entspannt zur Immobilie Persönlich & kompetent beraten Finanzierbarkeit sofort überprüfbar
2.355 € Gesamtmiete inkl. USt.
Kostenlos &
unverbindlich.
Kontakt aufnehmen

LEBEN GANZ IM FLUSS : Wohnen am WIENERWALD

Obj. Nr.: 46144

ca. 170,19 m² Nutzfläche 5 Zimmer
Partner von Infina Vienna Estate Makler Immobilienmakler 
Partner von Infina Vienna Estate Makler Immobilienmakler
2.355 € Gesamtmiete inkl. USt. Mietkaution finanzieren?
Jetzt beantragen
Mehr Informationen zur Immobilie: Detaillierte Einblicke in dieses Objekt.
Zurück zur Übersicht

Objektstandort

3001 Mauerbach, Sankt Pölten, Niederösterreich Adresse anfragen

Directions Icon Fahrtzeit berechnen
Preisinformationen
Betriebskosten (exkl. USt.) € 125,00
Gesamtbelastung € 2.355,00
Maklerprovision:
Gemäß Erstauftraggeberprinzip bezahlt der Vermieter/Verpächter die Provision.

Objektinformationen

Objektart: Haus
Unterobjektart: Doppelhaushälfte
Nutzungsart: Wohnen
Bauart: Neubau
Zustand: Erstbezug
Baujahr: 2021
Erschließung: Vollerschlossen

Rauminformationen & Flächen

Grundstücksfläche: ca. 285,00 m²
Nutzfläche: ca. 170,19 m²
Gartenfläche: ca. 135,53 m²
Balkonfläche: ca. 13,80 m²
Terrassenfläche: ca. 22,43 m²
Stellplatzfläche: ca. 31,80 m²
Anzahl Balkone: 1
Anzahl Terrassen: 1
Anzahl Stellplätze: 2
Anzahl Zimmer: 5
Anzahl WC: 3
Anzahl Bäder: 2

Ausstattung

Boden: Fliesen, Parkett
Befeuerung: Erdwärme
Heizungsart: Fußbodenheizung
Küche: Einbauküche
Balkon: Ostbalkon / -terrasse
Bad: Dusche, Badewanne
Fernsehen: Kabel / Satelliten-TV
Stellplatzart: Parkplatz
Extras: Wasch- / Trockenraum
Belüftung: Klimaanlage
Elektrik: DV- / EDV-Verkabelung
WCs: Gäste-WC
Bauweise: Massiv
Ausbaustufe: Schlüsselfertig mit Bodenplatte, Schlüsselfertig mit Keller

Lage

Die Marktgemeinde Mauerbach in Bezirk St. Pölten Land liegt direkt an der Wiener Stadtgrenze im westlichen Wienerwald. Durchflossen wird es vom gleichnamigen Mauerbach. Die herrlich waldreiche Landschaft mit zahlreichen schönen Wanderwegen und Rad-Strecken sowie gemütliche Gaststätten bieten vielfältige Freizeitangebote. Mauerbach verfügt über zwei Kindergärten, einen Hort und eine Montessori Tagesbetreuungseinrichtung. Ein SPAR Supermarkt ist 950m entfernt.

Verkehrsanbindung:
Buslinien 450, 458 und 49B
Bahnhof Wien Weidlingau 4km entfernt. Von hier erreichen Sie mit der S50 bequem die U4-Hütteldorf (7 Min.) und die U3/U6-Westbahnhof (15 Min.).

Beschreibung *

FAST FACTS: 3001 Mauerbach | MIETE | Doppelhaushälfte  | 170m² | 5 Zimmer | EUR 2.590,50   | 3 Etagen | Terrasse | Balkon  | Eigengarten | 2 Autoabstellplätze | Erdwärme-Heizung | An der Wiener Stadtgrenze

Wir freuen uns, Ihnen eine außergewöhnliche Doppelhaushälfte in einer fantastischen Lage an der Stadtgrenze zu Wien anbieten zu dürfen!

Eingebettet in die idyllische Hügellandschaft des Wienerwaldes, präsentiert sich dieses exklusive Domizil mit einer Nutzfläche von ca. 170m² und mit einem 135m² großen Garten.
Eine mehr als großzügige Raumaufteilung kombiniert mit herrlichen Balkonen und Terrassen unterstreichen den exklusiven Standard, der im gesamten Haus spürbar ist.

Das Gebäude besteht aus Erd-, Unter- und Dachgeschoss. Durch die Hanglage ergibt sich ein ebenerdiger Ausgang vom Erd- und Untergeschoss.
Über das zentrale Entrée ist eine räumliche Trennung zwischen den einzelnen Ebenen gegeben. Sie eignen sich hervorragend für mehrere Wohnbereiche oder eben für das private Wohnen und Ihr Business.

Der Wohnsalon mit integrierter Küche erstreckt sich über eine Fläche von 35m². Einen besonderen Blickfang bietet der rund 14m² große Balkon.
Das Glasgeländer offenbart einen malerischen Blick in den Wienerwald – ein Kraftplatz in den eigenen vier Wänden!

Unter- und Dachgeschoss verfügen über jeweils zwei Schlafzimmer und ein Badezimmer mit Dusche oder Wanne und Toilette.
Die Großzügigkeit der Architektur ergänzt eine direkt angeschlossene Terrasse im Erdgeschoss, welche in den begrünten Garten führt.

Zwei Autoabstellplätze, mit direktem Zugang ins Gebäude, runden das Angebot ab und bieten prachtvollen Komfort.

Ein repräsentativer und luxuriöser Platz mit hohem Erholungswert und höchster Qualität in der Bausubstanz und hoher technischer Infrastruktur!

Die Mietdauer beträgt 3 Jahre mit Verlängerungsmöglichkeit!


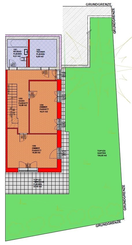
Raumaufteilung

Erdgeschoß
Wohnbereich 35m² mit integrierter Küche
Terrasse 22,43m²
Geräumiges Entrée
Toilette

Dachgeschoß
2 Zimmer
Bad mit Dusche und WC
Vorraum

Untergeschoss
2 Zimmer
Terrasse
Bad mit Wanne und WC
Gang
 

Für einen Besichtigungstermin oder Fragen stehe ich Ihnen gern zur Verfügung.

Wir möchten darauf hinweisen, dass zwischen ViennaEstate Makler GmbH und dem Auftraggeber ein wirtschaftliches Naheverhältnis besteht.

Der Immobilienmakler erklärt, dass er – entgegen dem in der Immobilienwirtschaft üblichen Geschäftsgebrauch des Doppelmaklers – einseitig nur für den Vermieter tätig ist.


Infrastruktur / Entfernungen

Gesundheit
Arzt <1.000m
Apotheke <1.000m
Klinik <8.000m
Krankenhaus <7.000m

Kinder & Schulen
Schule <3.500m
Kindergarten <3.500m
Universität <4.500m
Höhere Schule <10.000m

Nahversorgung
Supermarkt <1.000m
Bäckerei <2.500m
Einkaufszentrum <4.500m

Sonstige
Geldautomat <2.000m
Bank <2.000m
Post <2.500m
Polizei <1.000m

Verkehr
Bus <500m
Straßenbahn <6.500m
U-Bahn <7.000m
Bahnhof <4.000m
Autobahnanschluss <5.000m

Angaben Entfernung Luftlinie / Quelle: OpenStreetMap


*Der Vertrag kommt nicht mit der INFINA Credit Broker GmbH zustande. Das Objekt wird von einem externen Immobilienunternehmen angeboten. Allfällige aus dem Vertragsabschluss resultierende Rechte sind ausschließlich gegenüber dem anbietenden Immobilienunternehmen geltend zu machen. Wir weisen Sie darauf hin, dass die gemachten Angaben und Informationen lediglich unverbindliche Vorabinformationen sind und daher ohne Gewähr erfolgen. Der Immobilienmakler erklärt, dass er – entgegen dem in der Immobilienwirtschaft üblichen Geschäftsgebrauch des Doppelmaklers – einseitig nur für den Vermieter tätig ist.

Energieausweis & Heizung
HWB (kWh/m2/Jahr): 37.8
HWB Energieklasse B
fGEE: 0.79
fGEE Energieklasse B
Gültig bis: 16.07.2032
Heizung: Fußbodenheizung
Befeuerung: Erdwärme
Dokumente & Videos Pläne Pläne Pläne
Partner von Infina Vienna Estate Makler Immobilienmakler
Gesundheit:
Arzt: 2340 m
Krankenhaus: 9000 m
Apotheke: 2260 m
Klinik: 9660 m
Sonstige:
Bank: 300 m
Post: 130 m
Polizei: 2140 m
Geldautomat: 2110 m
Kinder & Schulen:
Kindergarten: 2070 m
Schule: 250 m
Universität: 6360 m
Verkehr:
Autobahnanschluss: 6210 m
U-Bahn: 8930 m
Bus: 150 m
Straßenbahn: 8210 m
Bahnhof: 4500 m
Flughafen: 8950 m
Nahversorgung:
Bäckerei: 160 m
Einkaufszentrum: 5760 m
Supermarkt: 340 m

Jetzt Experten kontaktieren

Weitere interessante Objekte

Partner von Infina
Jetzt anfragen
ca. 170,19 m² Wohnfläche 5 Zimmer
2.355 €
Partner von Infina
Jetzt anfragen
ca. 189,07 m² Nutzfläche 7 Zimmer
4.522 €/m²
855.000 €
Infina Immobilien
Jetzt anfragen
2.830 €/m²
349.000 €

Immobilie kaufen: Das passende Angebot finden

Der Kauf einer Immobilie ist eine wichtige Entscheidung – sei es für die Eigennutzung oder zur Vermietung. Mit unserem Portal unterstützen wir Sie dabei, die richtige Immobilie zu kaufen. Nutzen Sie unsere Suchmöglichkeiten, um gezielt eine Immobilie zu suchen, die Ihren Vorstellungen entspricht. Unsere Immobilienangebote decken eine breite Palette ab: vom Einfamilienhaus über die Eigentumswohnung bis hin zum Grundstück für Ihr Bauvorhaben. Mit uns können Sie sicher und unkompliziert Eigentum erwerben – ob für die private Nutzung oder als Investition als Immobilie. Erkunden Sie jetzt unsere Angebote und finden Sie die perfekte Lösung, die zu Ihren Wohn- oder Anlagezielen passt.

Fundiertes Wissen für Ihre Entscheidung, eine Immobilie zu kaufen

Bereiten Sie sich bestens vor: Infina stellt Ihnen kostenlos über 300 Ratgeber und Beiträge zu den Themen Immobilie, Finanzierung, Zinsen und Recht zur Verfügung. Nutzen Sie unser umfassendes Wissen, um richtige Entscheidungen zu treffen.

Bei jedem Kauf einer Immobilie oder eines Grundstücks ist es wichtig, die passende Finanzierung zu finden. Mit seiner eigenen Vertriebsorganisation ist Infina als Wohnbau-Finanz-Experte an über 100 Standorten in ganz Österreich vertreten und vermittelt Finanzierungen an über 120 Banken und Bausparkassen. Nutzen Sie unseren kostenlosen Kreditvergleich für den passenden Wohnkredit: 

Kreditvergleich

Kostenlos und unverbindlich

Immobilie mieten: Ihr neues Zuhause wartet

Die Entscheidung, eine Immobilie zu mieten, bietet Flexibilität und zahlreiche Möglichkeiten – ob eine Wohnung für den Alltag oder ein Haus für die Familie. Bei Infina können Sie gezielt sowohl eine Wohnung suchen als auch ein Haus suchen, das Ihren Bedürfnissen entspricht. Unsere Angebote erleichtern es Ihnen, eine Mietwohnung zu suchen und Ihre ideale Wohnung finden zu können. Entdecken Sie vielfältige Optionen, um die passende Immobilie zu finden und Ihre Wohnträume zu verwirklichen. Starten Sie noch heute Ihre Suche und profitieren Sie von einer großen Auswahl an Mietobjekten in Ihrer Wunschregion.

Hilfreiche Informationen zu Immobilie mieten

Starten Sie gut vorbereitet in Ihre Mietentscheidung: Infina stellt Ihnen vielseitige Ratgeber und Beiträge zu Themen wie Immobilie, Mietrecht, Finanzierung und Wohntrends zur Verfügung. Verschaffen Sie sich einen Überblick über alle relevanten Aspekte und gestalten Sie Ihren Weg ins neue Zuhause einfacher und sicherer.

Erfolgreich zur neuen Immobilie

Mit Infina haben Sie einen verlässlichen Partner an Ihrer Seite, der Sie von der ersten Beratung bis zum erfolgreichen Abschluss ganzheitlich unterstützt. Erfahren Sie hier, wie wir gemeinsam Ihren Immobilienerfolg gestalten.

Starten Sie jetzt Ihre Immobiliensuche

Nach zahlreichen Informationen rund um die Themen Immobilie kaufen und Immobilie mieten können Sie nun den nächsten Schritt machen. Starten Sie die Immobiliensuche, um Ihr neues Zuhause oder Ihre nächste Investition zu finden und entdecken Sie die passenden Angebote:

Das innovative Portal für Immobilien und Finanzierung 

Als Kunde von Infina profitieren Sie von unserer umfangreichen und unabhängigen Expertise als Teil einer wachsenden, unabhängigen Immobilien- und Finanzierungsnetzwerkgruppe. Bereits 50.000 Kunden hat Infina erfolgreich bei Ihrem Vorhaben begleitet. Infina bietet Ihnen eine umfassende Beratung in allen Bereichen rund um Ihre Immobilienvorhaben:

Die passende Finanzierung für Ihre Immobilie

Mit Infina erhalten Sie nicht nur eine unabhängige Beratung, sondern auch die passende Finanzierungslösung für Ihre Immobilie. Aus den Angeboten von über 120 Banken und Bausparkassen vermitteln wir Ihnen das, was perfekt zu Ihren Bedürfnissen passt. Wir begleiten Sie professionell und verlässlich – von der ersten Beratung bis zum erfolgreichen Abschluss.

Kreditvergleich

Kostenlos und unverbindlich

Wir holen das Beste für Sie heraus

Verkaufen Sie Ihre Immobilie mit uns & profitieren Sie von unserer Expertise. Wir bringen Ihre Immobilie optimal auf den Markt & erzielen den besten Preis. 

Kontaktieren Sie uns jetzt.

Jetzt Experten kontaktieren
Junge Frau im pinken Blazer hält ein Modellhaus in der linken Hand und zeigt mit der rechten Hand nach oben, als hätte sie eine Idee. Sie lächelt und blickt leicht nach oben – symbolisch für Inspiration oder Immobilienberatung.