INFINA LOGO
Entspannt zur Immobilie Persönlich & kompetent beraten Finanzierbarkeit sofort überprüfbar
756.200 € 6.992 €/m²
Kostenlos &
unverbindlich.
Kontakt aufnehmen

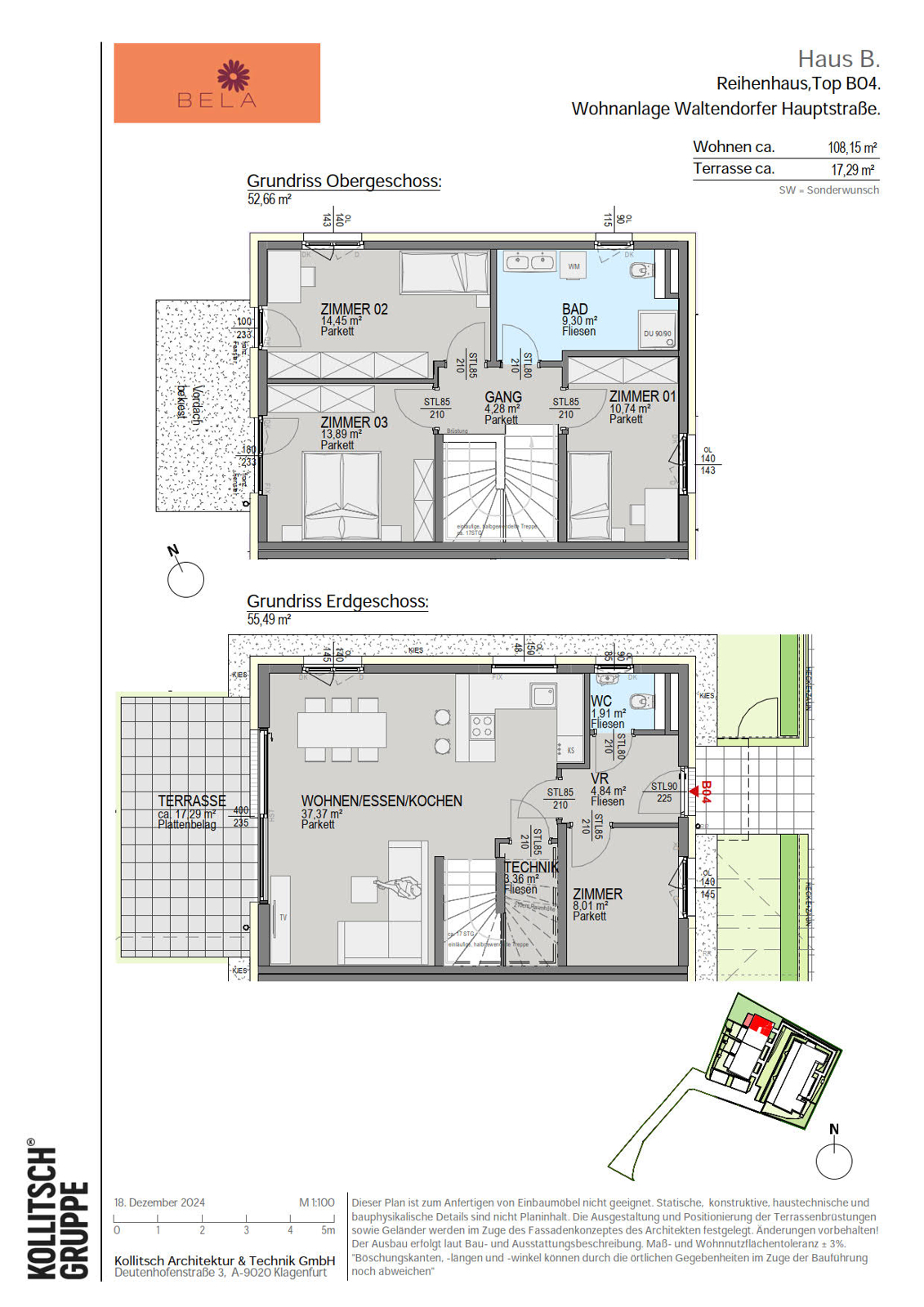
BELA | B04 | Modernes Eck-Reihenhaus in Waltendorf.

Obj. Nr.: 49990

ca. 108,15 m² Wohnfläche 5 Zimmer
Partner von Infina Kollitsch Immobilien Immobilienmakler 
Partner von Infina Kollitsch Immobilien Immobilienmakler
756.200 € Kaufpreis der Immobilie Kreditvergleich von über 120 Banken mit Infina.
Immobilie finanzieren
Mehr Informationen zur Immobilie: Detaillierte Einblicke in dieses Objekt.
Zurück zur Übersicht

Objektstandort

8010 Graz, Steiermark Adresse anfragen

Directions Icon Fahrtzeit berechnen
Preisinformationen
Kaufpreis 756.200 €
Grundbucheintragung: 1.1 %
Grunderwerbsteuer: 3.5 %
Was kann ich mir leisten?
Jetzt berechnen

Objektinformationen

Objektart: Haus
Unterobjektart: Reihenhaus
Nutzungsart: Wohnen

Rauminformationen & Flächen

Wohnfläche: ca. 108,15 m²
Gartenfläche: ca. 178,89 m²
Kellerfläche: ca. 2,61 m²
Anzahl Zimmer: 5

Ausstattung

Fahrstuhl: Personenaufzug
Fernsehen: Kabel / Satelliten-TV
Extras: Abstellraum, Fahrradraum, Seniorengerecht

Beschreibung *

**Top B04.**
Lebensglück. Frisch gepflückt.
Hier sprießt die Lebensfreude. Leicht erhöht in Waltendorf. Wo die Gänseblümchen blühen und das grüne Graz zum Wohlfühlen einlädt. Genussvolles, urbanes Wohnen. Ganz nah an der Natur. Erholsam und gemütlich. Das ist BELA.

*Unterkellerung bei Reihenhäusen auf Sonderwunsch möglich

**Ein Zuhause voller Genuss.**
BELA liegt in der zweiten Reihe zur Waltendorfer Hauptstraße in Graz. Leicht hügelaufwärts und verkehrsberuhigt. Zwischen pulsierendem Stadtleben und blühenden Gärten. Der Ruckerlberg ist gleich nebenan. Und mit dem Fahrrad sind Sie in 15 Minuten beim Schlossberg.

Lust auf Lustbühel.
Nur zwei Kilometer östlich befindet sich ein Ort voller Möglichkeiten: der Lustbühel. Ein Naherholungs- und Naturschutzgebiet, das mit Schloss, Schaulandwirtschaft, Spielplatz, Observatorium und ganz viel Natur lockt. Und mit einer guten Jause in der Buschenschenke.

Wunderbare Wohnvielfalt.
Neben 12 Eigentumswohnungen bietet Ihnen BELA auch 4 zweistöckige Reihenhäuser mit Eigengärten. Hier lebt man herrlich komfortabel. Ganz gemütlich, geborgen und entspannt. Einfach heimelig.

Rundum familienglücklich.
Für Familien ist das Wohnen in BELA besonders attraktiv. Denn in direkter Nähe befinden sich nicht nur eine Volksschule und ein Kindergarten. Überall gibt es kleine Paradiese. Zum Spielen, Kaninchenstreicheln und Sternderlschauen. Zum Gänseblümchenpflücken im Sommer. Und zum Rodeln im Winter.

Wohnen auf der Sonnenseite.
BELA liegt wunderbar sonnig. An einem Ort, den auch verwöhnte Pflänzchen lieben. Umgeben von allem, was man braucht. Vom Fitnessstudio bis zur Bäckerei. Vom Bauernladen ums Eck bis zum Streichelzoo auf dem Lustbühel.

Spielräume zum Aufblühen.
Den Morgenkaffee genießen. Zusehen, wie die Natur zum Fenster hereinlächelt. Aus einem bunten Strauß die schönsten Aktivitäten für den Tag herauspicken. Und die Freizeit mit Naturgenuss, Sport und Spiel füllen.

Vielfältige Freizeiterlebnisse für Erwachsene und ihre Sprösslinge: Die Eustacchio-Gründe mit Wäldchen, Teich, Spiel- und Sportplätzen erkunden. Wildenten, Frösche und Fasane beobachten. Mit dem Bike über Rampen springen. Fußball, Volleyball und Basketball spielen. Im Tennisclub Waltendorf aufschlagen. Oder in den umliegenden Yogastudios einen Sonnengruß ans Universum schicken. So vieles ist möglich.

*Der Vertrag kommt nicht mit der INFINA Credit Broker GmbH zustande. Das Objekt wird von einem externen Immobilienunternehmen angeboten. Allfällige aus dem Vertragsabschluss resultierende Rechte sind ausschließlich gegenüber dem anbietenden Immobilienunternehmen geltend zu machen. Wir weisen Sie darauf hin, dass die gemachten Angaben und Informationen lediglich unverbindliche Vorabinformationen sind und daher ohne Gewähr erfolgen. Der Vermittler ist als Doppelmakler tätig.

Dokumente & Videos Pläne Pläne
Partner von Infina Kollitsch Immobilien Immobilienmakler
Gesundheit:
Arzt: 140 m
Apotheke: 300 m
Krankenhaus: 1960 m
Klinik: 1140 m
Verkehr:
Autobahnanschluss: 3760 m
Bus: 220 m
Straßenbahn: 630 m
Bahnhof: 2400 m
Flughafen: 9160 m
Sonstige:
Polizei: 740 m
Bank: 670 m
Post: 900 m
Geldautomat: 740 m
Nahversorgung:
Bäckerei: 260 m
Einkaufszentrum: 750 m
Supermarkt: 270 m
Kinder & Schulen:
Höhere Schule: 2240 m
Universität: 1110 m
Schule: 480 m
Kindergarten: 210 m

Jetzt Experten kontaktieren

Weitere interessante Objekte

Partner von Infina
Jetzt anfragen
5.036 €/m²
429.800 €
Partner von Infina
Jetzt anfragen
ca. 55,77 m² Wohnfläche 2 Zimmer
4.877 €/m²
272.000 €
Partner von Infina
Jetzt anfragen
4.964 €/m²
221.800 €
Wien
Partner von Infina
Jetzt anfragen
ca. 56,02 m² Nutzfläche 2 Zimmer
554 €

Immobilie kaufen: Das passende Angebot finden

Der Kauf einer Immobilie ist eine wichtige Entscheidung – sei es für die Eigennutzung oder zur Vermietung. Mit unserem Portal unterstützen wir Sie dabei, die richtige Immobilie zu kaufen. Nutzen Sie unsere Suchmöglichkeiten, um gezielt eine Immobilie zu suchen, die Ihren Vorstellungen entspricht. Unsere Immobilienangebote decken eine breite Palette ab: vom Einfamilienhaus über die Eigentumswohnung bis hin zum Grundstück für Ihr Bauvorhaben. Mit uns können Sie sicher und unkompliziert Eigentum erwerben – ob für die private Nutzung oder als Investition als Immobilie. Erkunden Sie jetzt unsere Angebote und finden Sie die perfekte Lösung, die zu Ihren Wohn- oder Anlagezielen passt.

Fundiertes Wissen für Ihre Entscheidung, eine Immobilie zu kaufen

Bereiten Sie sich bestens vor: Infina stellt Ihnen kostenlos über 300 Ratgeber und Beiträge zu den Themen Immobilie, Finanzierung, Zinsen und Recht zur Verfügung. Nutzen Sie unser umfassendes Wissen, um richtige Entscheidungen zu treffen.

Bei jedem Kauf einer Immobilie oder eines Grundstücks ist es wichtig, die passende Finanzierung zu finden. Mit seiner eigenen Vertriebsorganisation ist Infina als Wohnbau-Finanz-Experte an über 100 Standorten in ganz Österreich vertreten und vermittelt Finanzierungen an über 120 Banken und Bausparkassen. Nutzen Sie unseren kostenlosen Kreditvergleich für den passenden Wohnkredit: 

Kreditvergleich

Kostenlos und unverbindlich

Immobilie mieten: Ihr neues Zuhause wartet

Die Entscheidung, eine Immobilie zu mieten, bietet Flexibilität und zahlreiche Möglichkeiten – ob eine Wohnung für den Alltag oder ein Haus für die Familie. Bei Infina können Sie gezielt sowohl eine Wohnung suchen als auch ein Haus suchen, das Ihren Bedürfnissen entspricht. Unsere Angebote erleichtern es Ihnen, eine Mietwohnung zu suchen und Ihre ideale Wohnung finden zu können. Entdecken Sie vielfältige Optionen, um die passende Immobilie zu finden und Ihre Wohnträume zu verwirklichen. Starten Sie noch heute Ihre Suche und profitieren Sie von einer großen Auswahl an Mietobjekten in Ihrer Wunschregion.

Hilfreiche Informationen zu Immobilie mieten

Starten Sie gut vorbereitet in Ihre Mietentscheidung: Infina stellt Ihnen vielseitige Ratgeber und Beiträge zu Themen wie Immobilie, Mietrecht, Finanzierung und Wohntrends zur Verfügung. Verschaffen Sie sich einen Überblick über alle relevanten Aspekte und gestalten Sie Ihren Weg ins neue Zuhause einfacher und sicherer.

Erfolgreich zur neuen Immobilie

Mit Infina haben Sie einen verlässlichen Partner an Ihrer Seite, der Sie von der ersten Beratung bis zum erfolgreichen Abschluss ganzheitlich unterstützt. Erfahren Sie hier, wie wir gemeinsam Ihren Immobilienerfolg gestalten.

Starten Sie jetzt Ihre Immobiliensuche

Nach zahlreichen Informationen rund um die Themen Immobilie kaufen und Immobilie mieten können Sie nun den nächsten Schritt machen. Starten Sie die Immobiliensuche, um Ihr neues Zuhause oder Ihre nächste Investition zu finden und entdecken Sie die passenden Angebote:

Das innovative Portal für Immobilien und Finanzierung 

Als Kunde von Infina profitieren Sie von unserer umfangreichen und unabhängigen Expertise als Teil einer wachsenden, unabhängigen Immobilien- und Finanzierungsnetzwerkgruppe. Bereits 50.000 Kunden hat Infina erfolgreich bei Ihrem Vorhaben begleitet. Infina bietet Ihnen eine umfassende Beratung in allen Bereichen rund um Ihre Immobilienvorhaben:

Die passende Finanzierung für Ihre Immobilie

Mit Infina erhalten Sie nicht nur eine unabhängige Beratung, sondern auch die passende Finanzierungslösung für Ihre Immobilie. Aus den Angeboten von über 120 Banken und Bausparkassen vermitteln wir Ihnen das, was perfekt zu Ihren Bedürfnissen passt. Wir begleiten Sie professionell und verlässlich – von der ersten Beratung bis zum erfolgreichen Abschluss.

Kreditvergleich

Kostenlos und unverbindlich

Wir holen das Beste für Sie heraus

Verkaufen Sie Ihre Immobilie mit uns & profitieren Sie von unserer Expertise. Wir bringen Ihre Immobilie optimal auf den Markt & erzielen den besten Preis. 

Kontaktieren Sie uns jetzt.

Jetzt Experten kontaktieren
Junge Frau im pinken Blazer hält ein Modellhaus in der linken Hand und zeigt mit der rechten Hand nach oben, als hätte sie eine Idee. Sie lächelt und blickt leicht nach oben – symbolisch für Inspiration oder Immobilienberatung.