INFINA LOGO
Entspannt zur Immobilie Persönlich & kompetent beraten Finanzierbarkeit sofort überprüfbar
3.263 € Gesamtmiete inkl. USt.
Kostenlos &
unverbindlich.
Kontakt aufnehmen

Großzügiges 5-Zimmer Büro Nähe Schottentor

Obj. Nr.: 95418

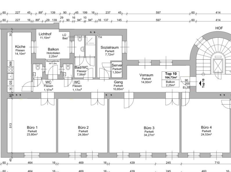
ca. 164,73 m² Nutzfläche 5 Zimmer
Partner von Infina IM Lifestyle Properties Immobilienmakler 
Partner von Infina IM Lifestyle Properties Immobilienmakler
3.263 € Gesamtmiete inkl. USt. Mietkaution finanzieren?
Jetzt beantragen
Mehr Informationen zur Immobilie: Detaillierte Einblicke in dieses Objekt.
Zurück zur Übersicht

Objektstandort

1080 Wien Adresse anfragen

Directions Icon Fahrtzeit berechnen
Preisinformationen
Betriebskosten (exkl. USt.) € 277,33
Gesamtbelastung € 3.263,07
Maklerprovision:
Gemäß Erstauftraggeberprinzip bezahlt der Vermieter/Verpächter die Provision.

Objektinformationen

Objektart: Büro / Praxis
Nutzungsart: Gewerbe
Bauart: Altbau
Baujahr: 1907

Rauminformationen & Flächen

Nutzfläche: ca. 164,73 m²
Balkonfläche: ca. 2,25 m²
Anzahl Balkone: 1
Anzahl Zimmer: 5
Anzahl WC: 3
Anzahl Bäder: 1

Ausstattung

Boden: Fliesen, Parkett
Befeuerung: Gas
Heizungsart: Etagenheizung
Fahrstuhl: Personenaufzug
Bad: Dusche
Extras: Abstellraum
Belüftung: Klimaanlage

Beschreibung *

Zur Vermietung gelangt eine großartige 5-Zimmer Bürofläche im wunderbaren 8. Wiener Gemeindebezirk Josefstadt.

Das Objekt befindet sich im Mezzanin eines perfekt erhaltenen Altbaugebäudes welches im Jahr 1907 gebaut wurde und ist insgesamt ca. 164,73 m² groß. Neben den 5 Zimmern, welches als Büro vorgesehen sind, verfügt die Immobilie noch über eine Küche, diese man mit einer Ablöse erwerben kann, zwei WCs, ein Badezimmer mit WC und einen Abstellraum. Zudem gibt es einen Zugang zu einem kleinen gemütlichen Balkon, welcher in Richtung des Innenhofs ausgerichtet ist. Die Größe der einzelnen Büroräume variiert zwischen ca. 23,80 m² und ca. 34,27 m². Die Nassräume der Immobile sind mit zeitlosen Fliesen, die übrigen Räumlichkeiten mit einem stilvollen Parkettboden ausgestattet.

Der Kündigungsverzicht der unbefristeten Immobilie beläuft sich auf 3 Jahre.

Die Lage und Infrastruktur der Immobilie ist als ausgezeichnet zu bewerten. Geschäfte des täglichen Bedarfs, wie beispielsweise ein „Billa“, befinden sich in unmittelbarer Nähe. Außerdem finden Sie diverse Cafés und Restaurants nur wenige Gehminuten von der Immobilie entfernt. Die Lage ist durch die Nähe zum Schottentor äußerst zentral und mit den öffentlichen Verkehrsmitteln leicht zu erreichen. Diverse Straßenbahnlinien (1, 43, 44) sowie die U2-Station Schottentor sind in wenigen Minuten zu Fuß erreichbar. Für nähere Informationen zur Infrastruktur, fordern Sie bitte unser Exposé an.

Überzeugen Sie sich selbst von dieser großartigen Immobilie.

Für Besichtigungen und nähere Informationen stehen wir Ihnen gerne zur Verfügung!

Herr Christian Kiedl
national - Tel: 0664 336 0836
international - Tel: +43 664 336 0836
e-mail: kiedl@lifestyle-properties.at

Wir weisen darauf hin, dass zwischen dem Vermittler und dem zu vermittelnden Dritten ein familiäres oder wirtschaftliches Naheverhältnis besteht.

Der Vermittler ist als Doppelmakler tätig.


Infrastruktur / Entfernungen

Gesundheit
Arzt <500m
Apotheke <500m
Klinik <500m
Krankenhaus <1.000m

Kinder & Schulen
Schule <500m
Kindergarten <500m
Universität <500m
Höhere Schule <500m

Nahversorgung
Supermarkt <500m
Bäckerei <500m
Einkaufszentrum <2.000m

Sonstige
Geldautomat <500m
Bank <500m
Post <500m
Polizei <500m

Verkehr
Bus <500m
U-Bahn <500m
Straßenbahn <500m
Bahnhof <500m
Autobahnanschluss <3.000m

Angaben Entfernung Luftlinie / Quelle: OpenStreetMap


*Der Vertrag kommt nicht mit der INFINA Credit Broker GmbH zustande. Das Objekt wird von einem externen Immobilienunternehmen angeboten. Allfällige aus dem Vertragsabschluss resultierende Rechte sind ausschließlich gegenüber dem anbietenden Immobilienunternehmen geltend zu machen. Wir weisen Sie darauf hin, dass die gemachten Angaben und Informationen lediglich unverbindliche Vorabinformationen sind und daher ohne Gewähr erfolgen. Der Immobilienmakler erklärt, dass er – entgegen dem in der Immobilienwirtschaft üblichen Geschäftsgebrauch des Doppelmaklers – einseitig nur für den Vermieter tätig ist.

Energieausweis & Heizung
HWB (kWh/m2/Jahr): 182.2
HWB Energieklasse E
Gültig bis: 16.01.2023
Heizung: Etagenheizung
Befeuerung: Gas
Dokumente & Videos Pläne
Partner von Infina IM Lifestyle Properties Immobilienmakler
Verkehr:
Autobahnanschluss: 3480 m
U-Bahn: 610 m
Bus: 140 m
Straßenbahn: 110 m
Bahnhof: 610 m
Nahversorgung:
Supermarkt: 40 m
Bäckerei: 50 m
Einkaufszentrum: 1130 m
Gesundheit:
Apotheke: 270 m
Arzt: 30 m
Klinik: 290 m
Krankenhaus: 720 m
Sonstige:
Polizei: 90 m
Bank: 280 m
Post: 260 m
Geldautomat: 130 m
Kinder & Schulen:
Kindergarten: 240 m
Universität: 430 m
Höhere Schule: 80 m
Schule: 210 m

Jetzt Experten kontaktieren

Weitere interessante Objekte

Partner von Infina
Jetzt anfragen
Auf Anfrage
Partner von Infina
Jetzt anfragen
ca. 102,00 m² Nutzfläche 3 Zimmer
Auf Anfrage
Partner von Infina
Jetzt anfragen
ca. 90,00 m² Nutzfläche 5 Zimmer
Auf Anfrage
Partner von Infina
Jetzt anfragen
ca. 132,00 m² Nutzfläche
Auf Anfrage
Partner von Infina
Jetzt anfragen
ca. 280,00 m² Wohnfläche 7 Zimmer
Auf Anfrage
Partner von Infina
Jetzt anfragen
Auf Anfrage
Partner von Infina
Jetzt anfragen
2.626 €

Immobilie kaufen: Das passende Angebot finden

Der Kauf einer Immobilie ist eine wichtige Entscheidung – sei es für die Eigennutzung oder zur Vermietung. Mit unserem Portal unterstützen wir Sie dabei, die richtige Immobilie zu kaufen. Nutzen Sie unsere Suchmöglichkeiten, um gezielt eine Immobilie zu suchen, die Ihren Vorstellungen entspricht. Unsere Immobilienangebote decken eine breite Palette ab: vom Einfamilienhaus über die Eigentumswohnung bis hin zum Grundstück für Ihr Bauvorhaben. Mit uns können Sie sicher und unkompliziert Eigentum erwerben – ob für die private Nutzung oder als Investition als Immobilie. Erkunden Sie jetzt unsere Angebote und finden Sie die perfekte Lösung, die zu Ihren Wohn- oder Anlagezielen passt.

Fundiertes Wissen für Ihre Entscheidung, eine Immobilie zu kaufen

Bereiten Sie sich bestens vor: Infina stellt Ihnen kostenlos über 300 Ratgeber und Beiträge zu den Themen Immobilie, Finanzierung, Zinsen und Recht zur Verfügung. Nutzen Sie unser umfassendes Wissen, um richtige Entscheidungen zu treffen.

Bei jedem Kauf einer Immobilie oder eines Grundstücks ist es wichtig, die passende Finanzierung zu finden. Mit seiner eigenen Vertriebsorganisation ist Infina als Wohnbau-Finanz-Experte an über 100 Standorten in ganz Österreich vertreten und vermittelt Finanzierungen an über 150 Banken und Bausparkassen. Nutzen Sie unseren kostenlosen Kreditvergleich für den passenden Wohnkredit: 

Kreditvergleich

Kostenlos und unverbindlich

Immobilie mieten: Ihr neues Zuhause wartet

Die Entscheidung, eine Immobilie zu mieten, bietet Flexibilität und zahlreiche Möglichkeiten – ob eine Wohnung für den Alltag oder ein Haus für die Familie. Bei Infina können Sie gezielt sowohl eine Wohnung suchen als auch ein Haus suchen, das Ihren Bedürfnissen entspricht. Unsere Angebote erleichtern es Ihnen, eine Mietwohnung zu suchen und Ihre ideale Wohnung finden zu können. Entdecken Sie vielfältige Optionen, um die passende Immobilie zu finden und Ihre Wohnträume zu verwirklichen. Starten Sie noch heute Ihre Suche und profitieren Sie von einer großen Auswahl an Mietobjekten in Ihrer Wunschregion.

Hilfreiche Informationen zu Immobilie mieten

Starten Sie gut vorbereitet in Ihre Mietentscheidung: Infina stellt Ihnen vielseitige Ratgeber und Beiträge zu Themen wie Immobilie, Mietrecht, Finanzierung und Wohntrends zur Verfügung. Verschaffen Sie sich einen Überblick über alle relevanten Aspekte und gestalten Sie Ihren Weg ins neue Zuhause einfacher und sicherer.

Erfolgreich zur neuen Immobilie

Mit Infina haben Sie einen verlässlichen Partner an Ihrer Seite, der Sie von der ersten Beratung bis zum erfolgreichen Abschluss ganzheitlich unterstützt. Erfahren Sie hier, wie wir gemeinsam Ihren Immobilienerfolg gestalten.

Starten Sie jetzt Ihre Immobiliensuche

Nach zahlreichen Informationen rund um die Themen Immobilie kaufen und Immobilie mieten können Sie nun den nächsten Schritt machen. Starten Sie die Immobiliensuche, um Ihr neues Zuhause oder Ihre nächste Investition zu finden und entdecken Sie die passenden Angebote:

Das innovative Portal für Immobilien und Finanzierung 

Als Kunde von Infina profitieren Sie von unserer umfangreichen und unabhängigen Expertise als Teil einer wachsenden, unabhängigen Immobilien- und Finanzierungsnetzwerkgruppe. Bereits 50.000 Kunden hat Infina erfolgreich bei Ihrem Vorhaben begleitet. Infina bietet Ihnen eine umfassende Beratung in allen Bereichen rund um Ihre Immobilienvorhaben:

Die passende Finanzierung für Ihre Immobilie

Mit Infina erhalten Sie nicht nur eine unabhängige Beratung, sondern auch die passende Finanzierungslösung für Ihre Immobilie. Aus den Angeboten von über 150 Banken und Bausparkassen vermitteln wir Ihnen das, was perfekt zu Ihren Bedürfnissen passt. Wir begleiten Sie professionell und verlässlich – von der ersten Beratung bis zum erfolgreichen Abschluss.

Kreditvergleich

Kostenlos und unverbindlich

Wir holen das Beste für Sie heraus

Verkaufen Sie Ihre Immobilie mit uns & profitieren Sie von unserer Expertise. Wir bringen Ihre Immobilie optimal auf den Markt & erzielen den besten Preis. 

Kontaktieren Sie uns jetzt.

Jetzt Experten kontaktieren
Junge Frau im pinken Blazer hält ein Modellhaus in der linken Hand und zeigt mit der rechten Hand nach oben, als hätte sie eine Idee. Sie lächelt und blickt leicht nach oben – symbolisch für Inspiration oder Immobilienberatung.