INFINA LOGO
Entspannt zur Immobilie Persönlich & kompetent beraten Finanzierbarkeit sofort überprüfbar
2.626 € Gesamtmiete inkl. USt.
Kostenlos &
unverbindlich.
Kontakt aufnehmen

Hochwertige Gewerbefläche im Adlerhof – 6 Monate mietzinsfrei – Bestlage 1070 Wien

Obj. Nr.: 87817

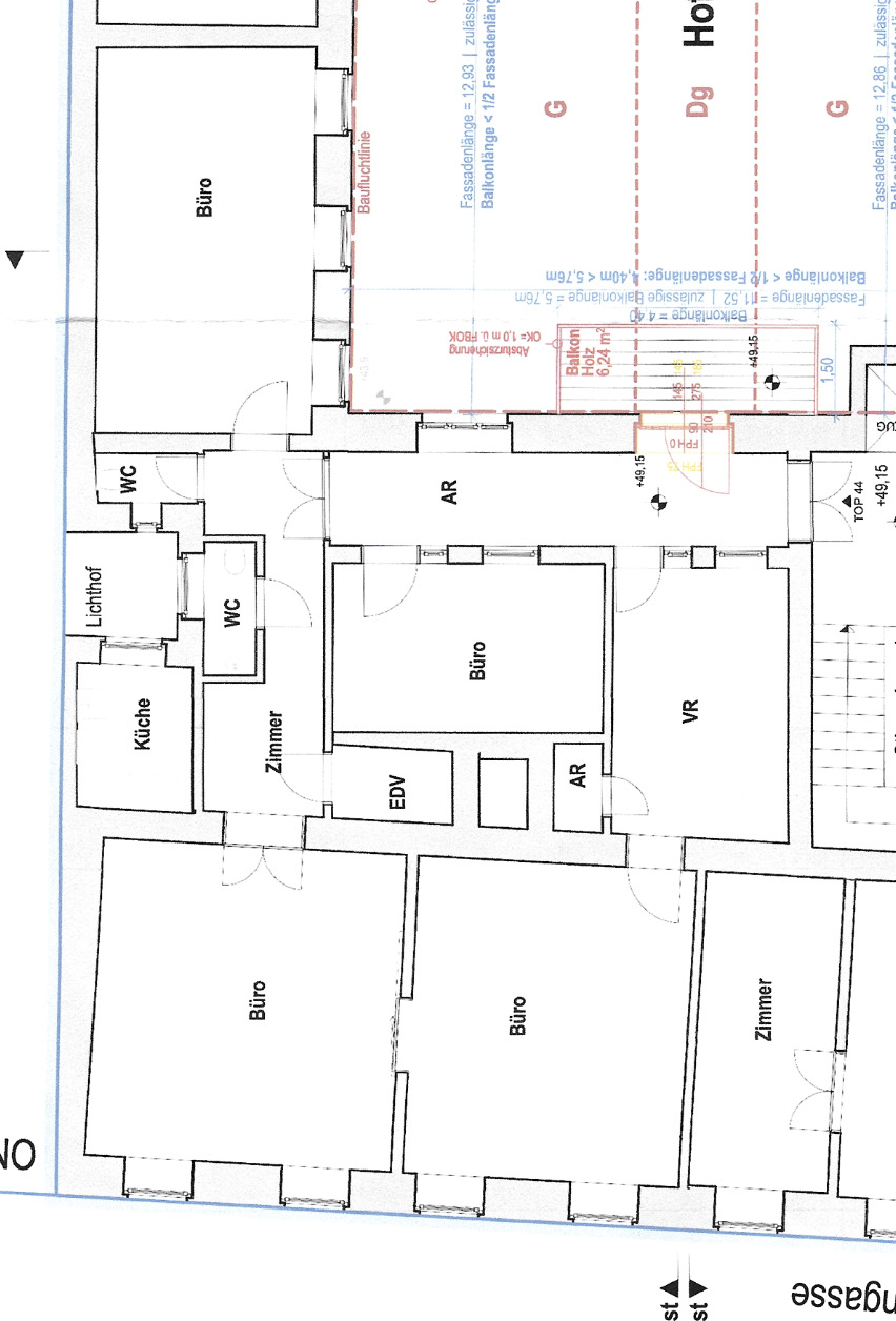
ca. 137,12 m² Nutzfläche 5 Zimmer
Partner von Infina Moritz Immobilien Immobilienmakler 
Partner von Infina Moritz Immobilien Immobilienmakler
2.626 € Gesamtmiete inkl. USt. Mietkaution finanzieren?
Jetzt beantragen
Mehr Informationen zur Immobilie: Detaillierte Einblicke in dieses Objekt.
Zurück zur Übersicht

Objektstandort

1070 Wien,Neubau, Wien Adresse anfragen

Directions Icon Fahrtzeit berechnen
Preisinformationen
Betriebskosten (exkl. USt.) € 322,01
Gesamtbelastung € 2.626,16
Maklerprovision:
Gemäß Erstauftraggeberprinzip bezahlt der Vermieter/Verpächter die Provision.

Objektinformationen

Objektart: Büro / Praxis
Nutzungsart: Gewerbe
Bauart: Altbau
Zustand: renovierungsbedürftig
Baujahr: 1874

Rauminformationen & Flächen

Nutzfläche: ca. 137,12 m²
Anzahl Balkone: 1
Anzahl Zimmer: 5
Anzahl WC: 2

Ausstattung

Boden: Fliesen, Parkett
Befeuerung: Fernwärme
Heizungsart: Fernwärme
Küche: Einbauküche
Fahrstuhl: Personenaufzug
Extras: Abstellraum
Elektrik: DV- / EDV-Verkabelung
WCs: Gäste-WC

Lage

Burggasse, 1070 Wien

Beschreibung *

Hochwertige Gewerbefläche mit 5 Zimmern im traditionsreichen Adlerhof – repräsentative Einheit in Bestlage des 7. Bezirks

Top-Gelegenheit: 6 Monate mietzinsfrei – Gestaltung nach Ihren Vorstellungen

Zur Vermietung steht diese besondere Gewerbefläche mit ca. 137 m² Nutzfläche in einer der gefragtesten Lagen des 7. Wiener Gemeindebezirks . Die Einheit befindet sich nur rund fünf Gehminuten von der U3-Station Volkstheater entfernt und liegt ruhig im Innenhof des architektonisch eindrucksvollen Adlerhofs .

Die Fläche befindet sich in der Stiege 1  und ist bequem mit dem Lift erreichbar . Durch die durchdachte Raumaufteilung eignet sich die Einheit ideal für Büro-, Agentur-, Praxis- oder Kanzleinutzung . Ein Balkon mit Ausblick in den Innenhof rundet das Angebot ab.

Raumkonzept

Die Gewerbeeinheit bietet eine klare, funktionale Gliederung mit vielseitigen Nutzungsmöglichkeiten und insgesamt 5 separat begehbaren Zimmern :

  • Vorraum / Eingangsbereich

  • 5 Zimmer – ideal nutzbar als Büro-, Besprechungs-, Behandlungs- oder Arbeitsräume

  • Teeküche / Aufenthaltsbereich 

  • 2 WC's

  • 2 Abstellräume / Serverrräume

Lage & Umfeld

Die Lage im Adlerhof zählt zu den begehrtesten Adressen des 7. Bezirks und bietet eine ideale Kombination aus urbaner Infrastruktur, historischer Bausubstanz und ruhiger Innenhoflage .

In unmittelbarer Gehdistanz befinden sich:

  • Vielfältige Einkaufsmöglichkeiten und Nahversorgung

  • Zahlreiche Restaurants, Bars und Cafés, darunter das beliebte Café Adlerhof im Haus

  • Apotheken und Banken

  • Die Mariahilfer Straße mit umfassendem Shopping- und Gastronomieangebot

Der 7. Bezirk steht für kulturelle Vielfalt, kreative Szene und wunderschön erhaltene Altbauten – ein Standort, der Professionalität, Sichtbarkeit und Arbeitsqualität ideal verbindet.

Nebenkosten

  • 3 BMM Kaution
  • 240€ Vertragserichtungskosten
  • Provision: 3 BMM zzgl. 20% USt.

Maklervereinbarung:  Wir ersuchen um Verständnis, dass wir bei Anfragen zur Objektadresse, bzw. Besichtigungstermin  aufgrund neuer gesetzlicher Bestimmungen Unterlagen erst dann zusenden können, wenn Sie vorab bestätigen, dass Sie unser sofortiges Tätigwerden wünschen und über Ihre Rücktrittsrechte aufgeklärt wurden. Sie bekommen nach Ihrer schriftlichen Anfrage mit vollständiger Angabe des Namens, Anschrift und Telefonnummer ein Email, in dem Sie diese Punkte bestätigen müssen.


Haftungsausschluss:   Wir weisen darauf hin, dass sämtliche Daten im vorliegenden Angebot sowie die von unserem Büro an Sie weitergegebenen Auskünfte, vom Eigentümer der Immobilie zur Verfügung gestellt wurden. Ebenso sind Informationen von Dritten (z.B. behördliche Informationen) eingeholt worden, auch für diese können wir unsererseits keinerlei Haftung für deren uneingeschränkte Richtigkeit übernehmen.

Wir weisen darauf hin, dass zwischen dem Vermittler und dem zu vermittelnden Dritten ein familiäres oder wirtschaftliches Naheverhältnis besteht.


Infrastruktur / Entfernungen

Gesundheit
Arzt <500m
Apotheke <500m
Klinik <500m
Krankenhaus <1.500m

Kinder & Schulen
Schule <500m
Kindergarten <500m
Universität <500m
Höhere Schule <1.000m

Nahversorgung
Supermarkt <500m
Bäckerei <500m
Einkaufszentrum <500m

Sonstige
Geldautomat <500m
Bank <500m
Post <500m
Polizei <500m

Verkehr
Bus <500m
U-Bahn <500m
Straßenbahn <500m
Bahnhof <500m
Autobahnanschluss <4.500m

Angaben Entfernung Luftlinie / Quelle: OpenStreetMap


*Der Vertrag kommt nicht mit der INFINA Credit Broker GmbH zustande. Das Objekt wird von einem externen Immobilienunternehmen angeboten. Allfällige aus dem Vertragsabschluss resultierende Rechte sind ausschließlich gegenüber dem anbietenden Immobilienunternehmen geltend zu machen. Wir weisen Sie darauf hin, dass die gemachten Angaben und Informationen lediglich unverbindliche Vorabinformationen sind und daher ohne Gewähr erfolgen. Der Immobilienmakler erklärt, dass er – entgegen dem in der Immobilienwirtschaft üblichen Geschäftsgebrauch des Doppelmaklers – einseitig nur für den Vermieter tätig ist.

Energieausweis & Heizung
HWB (kWh/m2/Jahr): 133.9
HWB Energieklasse D
fGEE: 1.52
fGEE Energieklasse D
Gültig bis: 20.10.2029
Heizung: Fernwärme
Befeuerung: Fernwärme
Dokumente & Videos Pläne
Partner von Infina Moritz Immobilien Immobilienmakler
Gesundheit:
Krankenhaus: 1170 m
Apotheke: 190 m
Arzt: 180 m
Klinik: 260 m
Verkehr:
U-Bahn: 580 m
Autobahnanschluss: 3870 m
Bus: 160 m
Straßenbahn: 180 m
Bahnhof: 580 m
Kinder & Schulen:
Universität: 440 m
Höhere Schule: 390 m
Kindergarten: 290 m
Schule: 210 m
Nahversorgung:
Supermarkt: 160 m
Bäckerei: 260 m
Einkaufszentrum: 570 m
Sonstige:
Polizei: 40 m
Post: 490 m
Bank: 330 m
Geldautomat: 210 m

Jetzt Experten kontaktieren

Weitere interessante Objekte

Partner von Infina
Jetzt anfragen
ca. 90,00 m² Nutzfläche 3 Zimmer
Auf Anfrage
Partner von Infina
Jetzt anfragen
ca. 90,00 m² Nutzfläche 5 Zimmer
Auf Anfrage
Partner von Infina
Jetzt anfragen
ca. 25,00 m² Nutzfläche 1 Zimmer
391 €
Partner von Infina
Jetzt anfragen
1.647 €

Immobilie kaufen: Das passende Angebot finden

Der Kauf einer Immobilie ist eine wichtige Entscheidung – sei es für die Eigennutzung oder zur Vermietung. Mit unserem Portal unterstützen wir Sie dabei, die richtige Immobilie zu kaufen. Nutzen Sie unsere Suchmöglichkeiten, um gezielt eine Immobilie zu suchen, die Ihren Vorstellungen entspricht. Unsere Immobilienangebote decken eine breite Palette ab: vom Einfamilienhaus über die Eigentumswohnung bis hin zum Grundstück für Ihr Bauvorhaben. Mit uns können Sie sicher und unkompliziert Eigentum erwerben – ob für die private Nutzung oder als Investition als Immobilie. Erkunden Sie jetzt unsere Angebote und finden Sie die perfekte Lösung, die zu Ihren Wohn- oder Anlagezielen passt.

Fundiertes Wissen für Ihre Entscheidung, eine Immobilie zu kaufen

Bereiten Sie sich bestens vor: Infina stellt Ihnen kostenlos über 300 Ratgeber und Beiträge zu den Themen Immobilie, Finanzierung, Zinsen und Recht zur Verfügung. Nutzen Sie unser umfassendes Wissen, um richtige Entscheidungen zu treffen.

Bei jedem Kauf einer Immobilie oder eines Grundstücks ist es wichtig, die passende Finanzierung zu finden. Mit seiner eigenen Vertriebsorganisation ist Infina als Wohnbau-Finanz-Experte an über 100 Standorten in ganz Österreich vertreten und vermittelt Finanzierungen an über 150 Banken und Bausparkassen. Nutzen Sie unseren kostenlosen Kreditvergleich für den passenden Wohnkredit: 

Kreditvergleich

Kostenlos und unverbindlich

Immobilie mieten: Ihr neues Zuhause wartet

Die Entscheidung, eine Immobilie zu mieten, bietet Flexibilität und zahlreiche Möglichkeiten – ob eine Wohnung für den Alltag oder ein Haus für die Familie. Bei Infina können Sie gezielt sowohl eine Wohnung suchen als auch ein Haus suchen, das Ihren Bedürfnissen entspricht. Unsere Angebote erleichtern es Ihnen, eine Mietwohnung zu suchen und Ihre ideale Wohnung finden zu können. Entdecken Sie vielfältige Optionen, um die passende Immobilie zu finden und Ihre Wohnträume zu verwirklichen. Starten Sie noch heute Ihre Suche und profitieren Sie von einer großen Auswahl an Mietobjekten in Ihrer Wunschregion.

Hilfreiche Informationen zu Immobilie mieten

Starten Sie gut vorbereitet in Ihre Mietentscheidung: Infina stellt Ihnen vielseitige Ratgeber und Beiträge zu Themen wie Immobilie, Mietrecht, Finanzierung und Wohntrends zur Verfügung. Verschaffen Sie sich einen Überblick über alle relevanten Aspekte und gestalten Sie Ihren Weg ins neue Zuhause einfacher und sicherer.

Erfolgreich zur neuen Immobilie

Mit Infina haben Sie einen verlässlichen Partner an Ihrer Seite, der Sie von der ersten Beratung bis zum erfolgreichen Abschluss ganzheitlich unterstützt. Erfahren Sie hier, wie wir gemeinsam Ihren Immobilienerfolg gestalten.

Starten Sie jetzt Ihre Immobiliensuche

Nach zahlreichen Informationen rund um die Themen Immobilie kaufen und Immobilie mieten können Sie nun den nächsten Schritt machen. Starten Sie die Immobiliensuche, um Ihr neues Zuhause oder Ihre nächste Investition zu finden und entdecken Sie die passenden Angebote:

Das innovative Portal für Immobilien und Finanzierung 

Als Kunde von Infina profitieren Sie von unserer umfangreichen und unabhängigen Expertise als Teil einer wachsenden, unabhängigen Immobilien- und Finanzierungsnetzwerkgruppe. Bereits 50.000 Kunden hat Infina erfolgreich bei Ihrem Vorhaben begleitet. Infina bietet Ihnen eine umfassende Beratung in allen Bereichen rund um Ihre Immobilienvorhaben:

Die passende Finanzierung für Ihre Immobilie

Mit Infina erhalten Sie nicht nur eine unabhängige Beratung, sondern auch die passende Finanzierungslösung für Ihre Immobilie. Aus den Angeboten von über 150 Banken und Bausparkassen vermitteln wir Ihnen das, was perfekt zu Ihren Bedürfnissen passt. Wir begleiten Sie professionell und verlässlich – von der ersten Beratung bis zum erfolgreichen Abschluss.

Kreditvergleich

Kostenlos und unverbindlich

Wir holen das Beste für Sie heraus

Verkaufen Sie Ihre Immobilie mit uns & profitieren Sie von unserer Expertise. Wir bringen Ihre Immobilie optimal auf den Markt & erzielen den besten Preis. 

Kontaktieren Sie uns jetzt.

Jetzt Experten kontaktieren
Junge Frau im pinken Blazer hält ein Modellhaus in der linken Hand und zeigt mit der rechten Hand nach oben, als hätte sie eine Idee. Sie lächelt und blickt leicht nach oben – symbolisch für Inspiration oder Immobilienberatung.