INFINA LOGO
Entspannt zur Immobilie Persönlich & kompetent beraten Finanzierbarkeit sofort überprüfbar
4.165 € Gesamtmiete inkl. USt.
Kostenlos &
unverbindlich.
Kontakt aufnehmen

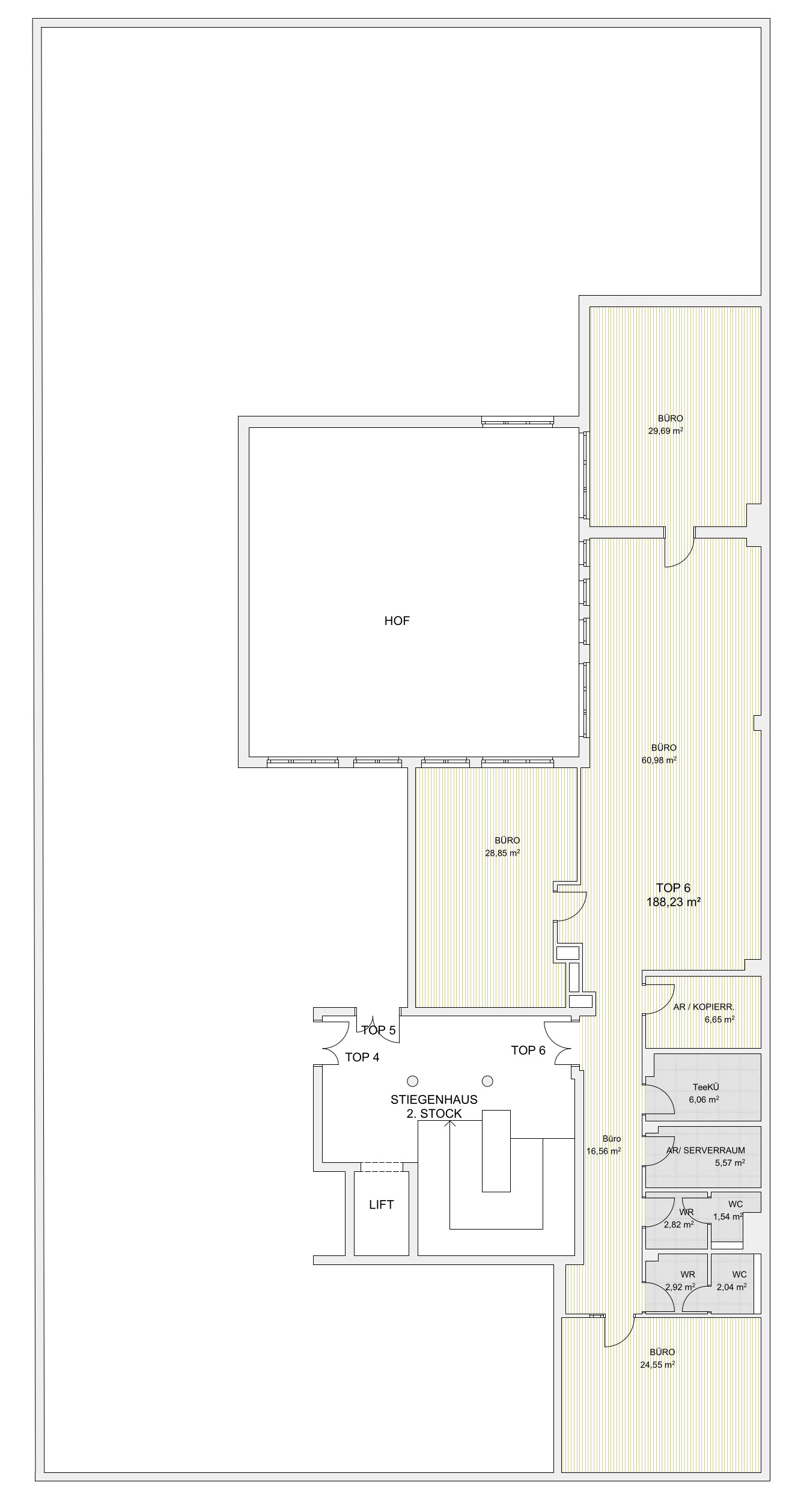
Neuwertiges Büro/Praxis in 1050 Wien: 188 m², modern, zentral und bestens ausgestattet!

Obj. Nr.: 81297

ca. 188,23 m² Nutzfläche 4 Zimmer
Partner von Infina Moritz Immobilien Immobilienmakler 
Partner von Infina Moritz Immobilien Immobilienmakler
4.165 € Gesamtmiete inkl. USt. Mietkaution finanzieren?
Jetzt beantragen
Mehr Informationen zur Immobilie: Detaillierte Einblicke in dieses Objekt.
Zurück zur Übersicht

Objektstandort

1050 Wien Adresse anfragen

Directions Icon Fahrtzeit berechnen
Preisinformationen
Betriebskosten (exkl. USt.) € 474,87
Gesamtbelastung € 4.164,77
Maklerprovision:
Gemäß Erstauftraggeberprinzip bezahlt der Vermieter/Verpächter die Provision.

Objektinformationen

Objektart: Büro / Praxis
Nutzungsart: Gewerbe
Bauart: Neubau
Zustand: neuwertig
Baujahr: 1994
Letzte Sanierung: 2025
barrierefrei: Ja

Rauminformationen & Flächen

Nutzfläche: ca. 188,23 m²
Kellerfläche: ca. 26,84 m²
Anzahl Zimmer: 4
Anzahl WC: 2
Anzahl Bäder: 2

Ausstattung

Boden: Fliesen, Parkett
Befeuerung: Fernwärme
Heizungsart: Zentralheizung
Küche: Wohnküche / offene Küche
Fahrstuhl: Personenaufzug
Bad: Dusche
Stellplatzart: Tiefgarage
Extras: Abstellraum
Belüftung: Klimaanlage

Lage

Margaretenstraße, 1040 Wien

Beschreibung *

Zur Vermietung gelangt eine hochwertig sanierte Büro- bzw. Geschäftsfläche in ausgezeichneter Lage des 5. Wiener Gemeindebezirks, nahe der Wiedner Hauptstraße. Die zentrale Position in 1050 Wien überzeugt durch eine hervorragende Infrastruktur sowie eine optimale Anbindung an das öffentliche Verkehrsnetz (U-Bahn, Straßenbahn und Bus).

Aktuell umfasst die Raumaufteilung:

  • 5 Büroräume
  • Flexible Gestaltungsmöglichkeiten – zusätzliche Raumunterteilungen durch Leichtbauwände realisierbar
  • Separate Sanitärbereiche für Damen und Herren
  • Teeküche
  • Lagerfläche

Die durchdachte Grundstruktur ermöglicht eine individuelle Anpassung an unterschiedliche Nutzungskonzepte – von klassischen Einzel- oder Doppelbüros bis hin zu strukturierten Praxisräumlichkeiten oder offenen Arbeitsbereichen.

Ausstattung

Die Immobilie wurde neu saniert und präsentiert sich in modernem, gepflegtem Zustand. Die Ausstattung umfasst:

  • Hochwertige Fliesen- und Parkettböden
  • Zentralheizung
  • Klimaanlage für ein angenehmes Raumklima
  • Moderne Sanitäranlagen
  • Personenaufzug

Die hellen und freundlich gestalteten Räume schaffen ein professionelles Arbeitsumfeld mit hoher Aufenthaltsqualität für Mitarbeiter und Kunden.

Lage & Infrastruktur

Die Liegenschaft befindet sich in zentraler Lage von 1050 Wien mit ausgezeichneter Erreichbarkeit. Öffentliche Verkehrsmittel sind in wenigen Gehminuten erreichbar und gewährleisten eine rasche Anbindung an das Stadtzentrum sowie andere Bezirke.

Die unmittelbare Umgebung bietet eine umfassende Infrastruktur:

  • Medizinische Einrichtungen und Apotheken
  • Nahversorger und Supermärkte
  • Gastronomie und Bäckereien
  • Bildungseinrichtungen

Die hohe Frequenzlage und die gute Sichtbarkeit machen das Objekt besonders attraktiv für Unternehmen mit Kundenverkehr.

Wirtschaftliche Eckdaten

  • Nutzfläche: ca. 188,23 m²
  • Lage: 2. Obergeschoss
  • Monatliche Gesamtmiete: € 4.771,14

Fernwärmeheizung: Monatliches HK-Akonto wird eingehoben, jährliche Abrechnung

Es können zudem Stellplätze in der Garage angemietet werden zu brutto € 164,93 / Monat

(jedoch erst ein Monat nach Mietbeginn möglich)

Öffentliche Verkehrsanbindung

Die Wohnung ist optimal an das öffentliche Verkehrsnetz angebunden:

  • U4 Pilgramgasse

  • Buslinien 12A, 13A, 14A

Damit sind sowohl das Stadtzentrum als auch die umliegenden Bezirke schnell erreichbar.

Nebenkosten

  • 3 BMM Kaution
  • 3 BMM Provision zzgl. 20% USt.

Kontakt
Für weitere Informationen oder zur Vereinbarung eines Besichtigungstermins kontaktieren Sie bitte
Frau Julia Koch  persönlich unter  +43 660 664 7444  oder per E-Mail an  koch@moritz-immobilien.at .

Unser Büro erreichen Sie unter  office@moritz-immobilien.at .

Maklervereinbarung:  Wir ersuchen um Verständnis, dass wir bei Anfragen zur Objektadresse, bzw. Besichtigungstermin  aufgrund neuer gesetzlicher Bestimmungen Unterlagen erst dann zusenden können, wenn Sie vorab bestätigen, dass Sie unser sofortiges Tätigwerden wünschen und über Ihre Rücktrittsrechte aufgeklärt wurden. Sie bekommen nach Ihrer schriftlichen Anfrage mit vollständiger Angabe des Namens, Anschrift und Telefonnummer ein Email, in dem Sie diese Punkte bestätigen müssen.


Haftungsausschluss:   Wir weisen darauf hin, dass sämtliche Daten im vorliegenden Angebot sowie die von unserem Büro an Sie weitergegebenen Auskünfte, vom Eigentümer der Immobilie zur Verfügung gestellt wurden. Ebenso sind Informationen von Dritten (z.B. behördliche Informationen) eingeholt worden, auch für diese können wir unsererseits keinerlei Haftung für deren uneingeschränkte Richtigkeit übernehmen.

Wir weisen darauf hin, dass zwischen dem Vermittler und dem zu vermittelnden Dritten ein familiäres oder wirtschaftliches Naheverhältnis besteht.


Infrastruktur / Entfernungen

Gesundheit
Arzt <500m
Apotheke <500m
Klinik <500m
Krankenhaus <500m

Kinder & Schulen
Schule <500m
Kindergarten <500m
Universität <500m
Höhere Schule <500m

Nahversorgung
Supermarkt <500m
Bäckerei <500m
Einkaufszentrum <500m

Sonstige
Geldautomat <500m
Bank <500m
Post <500m
Polizei <500m

Verkehr
Bus <500m
U-Bahn <500m
Straßenbahn <500m
Bahnhof <500m
Autobahnanschluss <3.500m

Angaben Entfernung Luftlinie / Quelle: OpenStreetMap


*Der Vertrag kommt nicht mit der INFINA Credit Broker GmbH zustande. Das Objekt wird von einem externen Immobilienunternehmen angeboten. Allfällige aus dem Vertragsabschluss resultierende Rechte sind ausschließlich gegenüber dem anbietenden Immobilienunternehmen geltend zu machen. Wir weisen Sie darauf hin, dass die gemachten Angaben und Informationen lediglich unverbindliche Vorabinformationen sind und daher ohne Gewähr erfolgen. Der Immobilienmakler erklärt, dass er – entgegen dem in der Immobilienwirtschaft üblichen Geschäftsgebrauch des Doppelmaklers – einseitig nur für den Vermieter tätig ist.

Energieausweis & Heizung
HWB (kWh/m2/Jahr): 57.9
HWB Energieklasse C
fGEE: 1.1
fGEE Energieklasse C
Gültig bis: 28.05.2029
Heizung: Zentralheizung
Befeuerung: Fernwärme
Dokumente & Videos Pläne
Partner von Infina Moritz Immobilien Immobilienmakler
Verkehr:
Autobahnanschluss: 2950 m
Bus: 110 m
Straßenbahn: 630 m
U-Bahn: 720 m
Bahnhof: 720 m
Gesundheit:
Apotheke: 160 m
Arzt: 120 m
Klinik: 690 m
Krankenhaus: 690 m
Nahversorgung:
Einkaufszentrum: 940 m
Bäckerei: 80 m
Supermarkt: 60 m
Kinder & Schulen:
Höhere Schule: 760 m
Kindergarten: 190 m
Schule: 220 m
Universität: 660 m
Sonstige:
Post: 400 m
Polizei: 410 m
Bank: 30 m
Geldautomat: 20 m

Jetzt Experten kontaktieren

Immobilie kaufen: Das passende Angebot finden

Der Kauf einer Immobilie ist eine wichtige Entscheidung – sei es für die Eigennutzung oder zur Vermietung. Mit unserem Portal unterstützen wir Sie dabei, die richtige Immobilie zu kaufen. Nutzen Sie unsere Suchmöglichkeiten, um gezielt eine Immobilie zu suchen, die Ihren Vorstellungen entspricht. Unsere Immobilienangebote decken eine breite Palette ab: vom Einfamilienhaus über die Eigentumswohnung bis hin zum Grundstück für Ihr Bauvorhaben. Mit uns können Sie sicher und unkompliziert Eigentum erwerben – ob für die private Nutzung oder als Investition als Immobilie. Erkunden Sie jetzt unsere Angebote und finden Sie die perfekte Lösung, die zu Ihren Wohn- oder Anlagezielen passt.

Fundiertes Wissen für Ihre Entscheidung, eine Immobilie zu kaufen

Bereiten Sie sich bestens vor: Infina stellt Ihnen kostenlos über 300 Ratgeber und Beiträge zu den Themen Immobilie, Finanzierung, Zinsen und Recht zur Verfügung. Nutzen Sie unser umfassendes Wissen, um richtige Entscheidungen zu treffen.

Bei jedem Kauf einer Immobilie oder eines Grundstücks ist es wichtig, die passende Finanzierung zu finden. Mit seiner eigenen Vertriebsorganisation ist Infina als Wohnbau-Finanz-Experte an über 100 Standorten in ganz Österreich vertreten und vermittelt Finanzierungen an über 150 Banken und Bausparkassen. Nutzen Sie unseren kostenlosen Kreditvergleich für den passenden Wohnkredit: 

Kreditvergleich

Kostenlos und unverbindlich

Immobilie mieten: Ihr neues Zuhause wartet

Die Entscheidung, eine Immobilie zu mieten, bietet Flexibilität und zahlreiche Möglichkeiten – ob eine Wohnung für den Alltag oder ein Haus für die Familie. Bei Infina können Sie gezielt sowohl eine Wohnung suchen als auch ein Haus suchen, das Ihren Bedürfnissen entspricht. Unsere Angebote erleichtern es Ihnen, eine Mietwohnung zu suchen und Ihre ideale Wohnung finden zu können. Entdecken Sie vielfältige Optionen, um die passende Immobilie zu finden und Ihre Wohnträume zu verwirklichen. Starten Sie noch heute Ihre Suche und profitieren Sie von einer großen Auswahl an Mietobjekten in Ihrer Wunschregion.

Hilfreiche Informationen zu Immobilie mieten

Starten Sie gut vorbereitet in Ihre Mietentscheidung: Infina stellt Ihnen vielseitige Ratgeber und Beiträge zu Themen wie Immobilie, Mietrecht, Finanzierung und Wohntrends zur Verfügung. Verschaffen Sie sich einen Überblick über alle relevanten Aspekte und gestalten Sie Ihren Weg ins neue Zuhause einfacher und sicherer.

Erfolgreich zur neuen Immobilie

Mit Infina haben Sie einen verlässlichen Partner an Ihrer Seite, der Sie von der ersten Beratung bis zum erfolgreichen Abschluss ganzheitlich unterstützt. Erfahren Sie hier, wie wir gemeinsam Ihren Immobilienerfolg gestalten.

Starten Sie jetzt Ihre Immobiliensuche

Nach zahlreichen Informationen rund um die Themen Immobilie kaufen und Immobilie mieten können Sie nun den nächsten Schritt machen. Starten Sie die Immobiliensuche, um Ihr neues Zuhause oder Ihre nächste Investition zu finden und entdecken Sie die passenden Angebote:

Das innovative Portal für Immobilien und Finanzierung 

Als Kunde von Infina profitieren Sie von unserer umfangreichen und unabhängigen Expertise als Teil einer wachsenden, unabhängigen Immobilien- und Finanzierungsnetzwerkgruppe. Bereits 50.000 Kunden hat Infina erfolgreich bei Ihrem Vorhaben begleitet. Infina bietet Ihnen eine umfassende Beratung in allen Bereichen rund um Ihre Immobilienvorhaben:

Die passende Finanzierung für Ihre Immobilie

Mit Infina erhalten Sie nicht nur eine unabhängige Beratung, sondern auch die passende Finanzierungslösung für Ihre Immobilie. Aus den Angeboten von über 150 Banken und Bausparkassen vermitteln wir Ihnen das, was perfekt zu Ihren Bedürfnissen passt. Wir begleiten Sie professionell und verlässlich – von der ersten Beratung bis zum erfolgreichen Abschluss.

Kreditvergleich

Kostenlos und unverbindlich

Wir holen das Beste für Sie heraus

Verkaufen Sie Ihre Immobilie mit uns & profitieren Sie von unserer Expertise. Wir bringen Ihre Immobilie optimal auf den Markt & erzielen den besten Preis. 

Kontaktieren Sie uns jetzt.

Jetzt Experten kontaktieren
Junge Frau im pinken Blazer hält ein Modellhaus in der linken Hand und zeigt mit der rechten Hand nach oben, als hätte sie eine Idee. Sie lächelt und blickt leicht nach oben – symbolisch für Inspiration oder Immobilienberatung.