INFINA LOGO
Entspannt zur Immobilie Persönlich & kompetent beraten Finanzierbarkeit sofort überprüfbar
2.682 € Gesamtmiete inkl. USt.
Kostenlos &
unverbindlich.
Kontakt aufnehmen

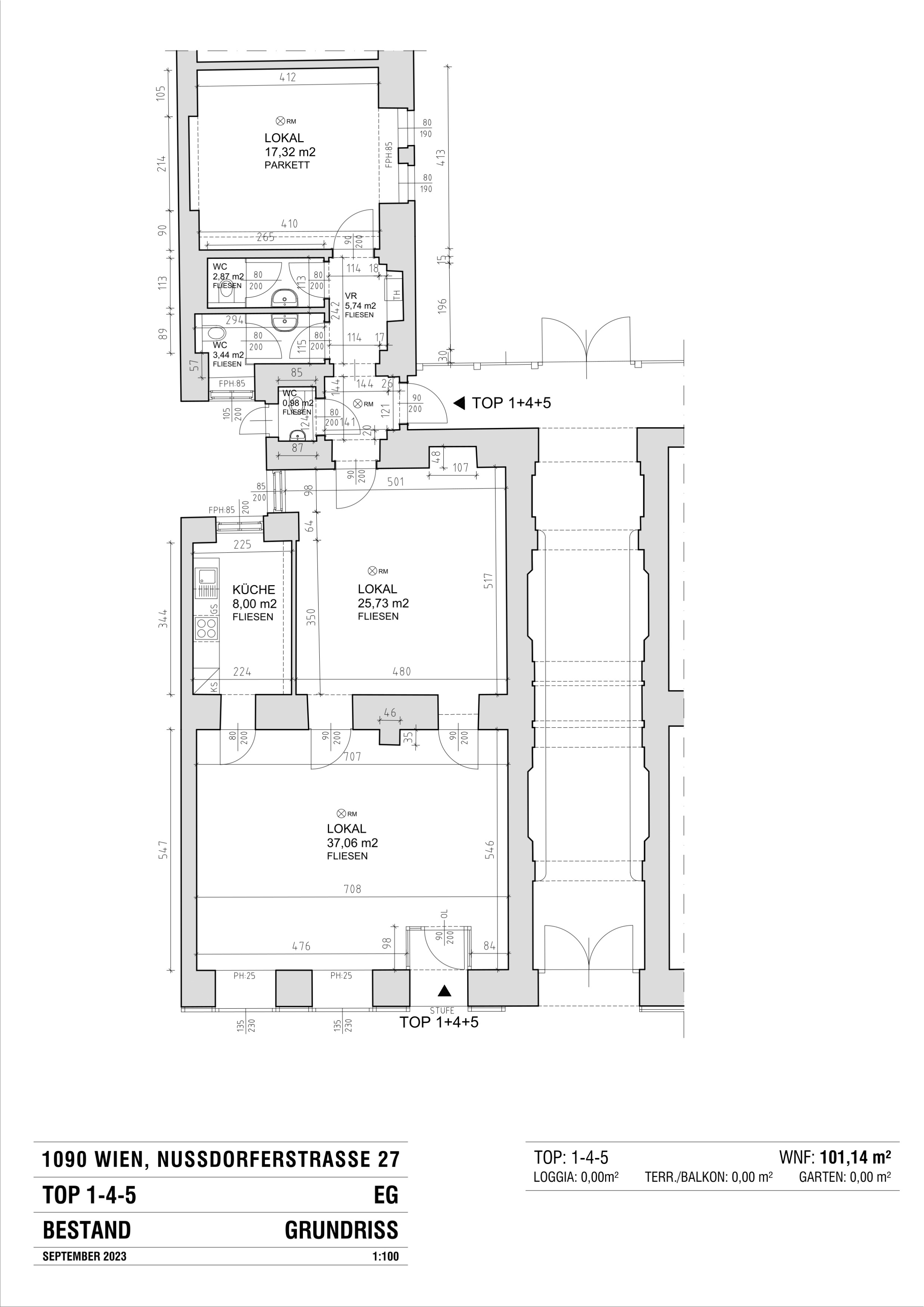
Großzügige Geschäftsfläche 101m², 3 Zimmer, EG, 3 WCs, 1090 Wien

Obj. Nr.: 152632

ca. 101,14 m² Nutzfläche 3 Zimmer
Partner von Infina Moritz Immobilien Immobilienmakler 
Partner von Infina Moritz Immobilien Immobilienmakler
2.682 € Gesamtmiete inkl. USt. Mietkaution finanzieren?
Jetzt beantragen
Mehr Informationen zur Immobilie: Detaillierte Einblicke in dieses Objekt.
Zurück zur Übersicht

Objektstandort

1090 Wien Adresse anfragen

Directions Icon Fahrtzeit berechnen
Preisinformationen
Betriebskosten (exkl. USt.) € 254,74
Gesamtbelastung € 2.682,10
Maklerprovision:
Gemäß Erstauftraggeberprinzip bezahlt der Vermieter/Verpächter die Provision.

Objektinformationen

Objektart: Büro / Praxis
Nutzungsart: Gewerbe
Bauart: Altbau
Zustand: gepflegt
Baujahr: 1900
Letzte Sanierung: 2018

Rauminformationen & Flächen

Nutzfläche: ca. 101,14 m²
Anzahl Zimmer: 3
Anzahl WC: 3

Ausstattung

Boden: Fliesen, Laminat
Befeuerung: Gas
Heizungsart: Etagenheizung
Küche: Einbauküche
WCs: Pissoir, Gäste-WC

Lage

Nußdorfer Straße, 1090 Wien

Beschreibung *

Geschäftslokal mit großzügiger Ausstellungsfläche in 1090 Wien – Nußdorfer Straße 27

Das zur Vermietung stehende Geschäftslokal befindet sich im Erdgeschoss eines repräsentativen Gebäudes in der Nußdorfer Straße 27 im 9. Wiener Gemeindebezirk. Mit einer Nutzfläche von rund 101 m² bietet es vielseitige Nutzungsmöglichkeiten und eine hervorragende Sichtbarkeit dank der großen straßenseitigen Auslagenflächen. Die Fläche ist ab Juli 2026 anzumieten. 

Objektbeschreibung

Die Fläche gliedert sich in insgesamt drei Räume , die flexibel als Verkaufs- oder Büroflächen genutzt werden können. Ergänzt wird das Geschäftslokal durch eine separate Kochnische , einen kleinen Lichthof (geeignet als Raucherbereich oder für kurze Pausen) sowie drei WCs .

Besonders hervorzuheben ist die großzügige Ausstellungsfläche zur Nußdorfer Straße , die für eine ausgezeichnete Präsentation von Waren und eine hohe Kundenfrequenz sorgt.

Ausstattungs-Highlights:

  • Gesamtnutzfläche: ca. 101 m²

  • 3 getrennte Räume (flexibel nutzbar)

  • Separate Kochnische

  • 3 WCs

  • Kleiner Lichthof (z. B. als Raucherbereich nutzbar)

  • Große Auslagenfläche zur Nußdorfer Straße

  • Kellerabteil vorhanden

  • Heizung: Gasetagenheizung

Lagebeschreibung

Das Geschäftslokal liegt an der stark frequentierten Nußdorfer Straße im beliebten 9. Bezirk (Alsergrund). Durch die Nähe zu zahlreichen Geschäften, Gastronomiebetrieben und Dienstleistern bietet die Lage ein lebendiges Umfeld mit hoher Passantenfrequenz.

Die Anbindung an das öffentliche Verkehrsnetz ist ausgezeichnet:

  • Straßenbahnlinien 37, 38, 40, 41, 42 sind fußläufig erreichbar

  • U-Bahn-Linie U6 Nußdorfer Straße in unmittelbarer Nähe

  • Rasche Erreichbarkeit der Wiener Innenstadt sowie des Gürtelbereichs

Die Kombination aus repräsentativer Adresse, hervorragender Sichtbarkeit und praktischer Raumaufteilung macht dieses Objekt zu einer attraktiven Gelegenheit für Handels-, Dienstleistungs- oder Büroflächen.

Nebenkosten

  • 3 BMM Kaution
  • 3 BMM Provision zzgl. 20% USt.

Wir weisen darauf hin, dass zwischen dem Vermittler und dem zu vermittelnden Dritten ein familiäres oder wirtschaftliches Naheverhältnis besteht.


Infrastruktur / Entfernungen

Gesundheit
Arzt <500m
Apotheke <500m
Klinik <500m
Krankenhaus <1.000m

Kinder & Schulen
Schule <500m
Kindergarten <500m
Universität <500m
Höhere Schule <500m

Nahversorgung
Supermarkt <500m
Bäckerei <500m
Einkaufszentrum <2.000m

Sonstige
Geldautomat <500m
Bank <500m
Post <500m
Polizei <500m

Verkehr
Bus <500m
U-Bahn <500m
Straßenbahn <500m
Bahnhof <500m
Autobahnanschluss <2.000m

Angaben Entfernung Luftlinie / Quelle: OpenStreetMap


*Der Vertrag kommt nicht mit der INFINA Credit Broker GmbH zustande. Das Objekt wird von einem externen Immobilienunternehmen angeboten. Allfällige aus dem Vertragsabschluss resultierende Rechte sind ausschließlich gegenüber dem anbietenden Immobilienunternehmen geltend zu machen. Wir weisen Sie darauf hin, dass die gemachten Angaben und Informationen lediglich unverbindliche Vorabinformationen sind und daher ohne Gewähr erfolgen. Der Immobilienmakler erklärt, dass er – entgegen dem in der Immobilienwirtschaft üblichen Geschäftsgebrauch des Doppelmaklers – einseitig nur für den Vermieter tätig ist.

Energieausweis & Heizung
HWB (kWh/m2/Jahr): 171
HWB Energieklasse E
fGEE: 2.67
fGEE Energieklasse E
Gültig bis: 19.12.2032
Heizung: Etagenheizung
Befeuerung: Gas
Dokumente & Videos Pläne
Partner von Infina Moritz Immobilien Immobilienmakler
Sonstige:
Post: 470 m
Polizei: 140 m
Bank: 260 m
Geldautomat: 160 m
Verkehr:
Autobahnanschluss: 1680 m
U-Bahn: 560 m
Straßenbahn: 150 m
Bahnhof: 370 m
Bus: 60 m
Nahversorgung:
Bäckerei: 100 m
Einkaufszentrum: 1790 m
Supermarkt: 140 m
Kinder & Schulen:
Kindergarten: 150 m
Universität: 250 m
Schule: 220 m
Höhere Schule: 290 m
Gesundheit:
Apotheke: 240 m
Klinik: 180 m
Arzt: 60 m
Krankenhaus: 810 m

Jetzt Experten kontaktieren

Immobilie kaufen: Das passende Angebot finden

Der Kauf einer Immobilie ist eine wichtige Entscheidung – sei es für die Eigennutzung oder zur Vermietung. Mit unserem Portal unterstützen wir Sie dabei, die richtige Immobilie zu kaufen. Nutzen Sie unsere Suchmöglichkeiten, um gezielt eine Immobilie zu suchen, die Ihren Vorstellungen entspricht. Unsere Immobilienangebote decken eine breite Palette ab: vom Einfamilienhaus über die Eigentumswohnung bis hin zum Grundstück für Ihr Bauvorhaben. Mit uns können Sie sicher und unkompliziert Eigentum erwerben – ob für die private Nutzung oder als Investition als Immobilie. Erkunden Sie jetzt unsere Angebote und finden Sie die perfekte Lösung, die zu Ihren Wohn- oder Anlagezielen passt.

Fundiertes Wissen für Ihre Entscheidung, eine Immobilie zu kaufen

Bereiten Sie sich bestens vor: Infina stellt Ihnen kostenlos über 300 Ratgeber und Beiträge zu den Themen Immobilie, Finanzierung, Zinsen und Recht zur Verfügung. Nutzen Sie unser umfassendes Wissen, um richtige Entscheidungen zu treffen.

Bei jedem Kauf einer Immobilie oder eines Grundstücks ist es wichtig, die passende Finanzierung zu finden. Mit seiner eigenen Vertriebsorganisation ist Infina als Wohnbau-Finanz-Experte an über 100 Standorten in ganz Österreich vertreten und vermittelt Finanzierungen an über 150 Banken und Bausparkassen. Nutzen Sie unseren kostenlosen Kreditvergleich für den passenden Wohnkredit: 

Kreditvergleich

Kostenlos und unverbindlich

Immobilie mieten: Ihr neues Zuhause wartet

Die Entscheidung, eine Immobilie zu mieten, bietet Flexibilität und zahlreiche Möglichkeiten – ob eine Wohnung für den Alltag oder ein Haus für die Familie. Bei Infina können Sie gezielt sowohl eine Wohnung suchen als auch ein Haus suchen, das Ihren Bedürfnissen entspricht. Unsere Angebote erleichtern es Ihnen, eine Mietwohnung zu suchen und Ihre ideale Wohnung finden zu können. Entdecken Sie vielfältige Optionen, um die passende Immobilie zu finden und Ihre Wohnträume zu verwirklichen. Starten Sie noch heute Ihre Suche und profitieren Sie von einer großen Auswahl an Mietobjekten in Ihrer Wunschregion.

Hilfreiche Informationen zu Immobilie mieten

Starten Sie gut vorbereitet in Ihre Mietentscheidung: Infina stellt Ihnen vielseitige Ratgeber und Beiträge zu Themen wie Immobilie, Mietrecht, Finanzierung und Wohntrends zur Verfügung. Verschaffen Sie sich einen Überblick über alle relevanten Aspekte und gestalten Sie Ihren Weg ins neue Zuhause einfacher und sicherer.

Erfolgreich zur neuen Immobilie

Mit Infina haben Sie einen verlässlichen Partner an Ihrer Seite, der Sie von der ersten Beratung bis zum erfolgreichen Abschluss ganzheitlich unterstützt. Erfahren Sie hier, wie wir gemeinsam Ihren Immobilienerfolg gestalten.

Starten Sie jetzt Ihre Immobiliensuche

Nach zahlreichen Informationen rund um die Themen Immobilie kaufen und Immobilie mieten können Sie nun den nächsten Schritt machen. Starten Sie die Immobiliensuche, um Ihr neues Zuhause oder Ihre nächste Investition zu finden und entdecken Sie die passenden Angebote:

Das innovative Portal für Immobilien und Finanzierung 

Als Kunde von Infina profitieren Sie von unserer umfangreichen und unabhängigen Expertise als Teil einer wachsenden, unabhängigen Immobilien- und Finanzierungsnetzwerkgruppe. Bereits 50.000 Kunden hat Infina erfolgreich bei Ihrem Vorhaben begleitet. Infina bietet Ihnen eine umfassende Beratung in allen Bereichen rund um Ihre Immobilienvorhaben:

Die passende Finanzierung für Ihre Immobilie

Mit Infina erhalten Sie nicht nur eine unabhängige Beratung, sondern auch die passende Finanzierungslösung für Ihre Immobilie. Aus den Angeboten von über 150 Banken und Bausparkassen vermitteln wir Ihnen das, was perfekt zu Ihren Bedürfnissen passt. Wir begleiten Sie professionell und verlässlich – von der ersten Beratung bis zum erfolgreichen Abschluss.

Kreditvergleich

Kostenlos und unverbindlich

Wir holen das Beste für Sie heraus

Verkaufen Sie Ihre Immobilie mit uns & profitieren Sie von unserer Expertise. Wir bringen Ihre Immobilie optimal auf den Markt & erzielen den besten Preis. 

Kontaktieren Sie uns jetzt.

Jetzt Experten kontaktieren
Junge Frau im pinken Blazer hält ein Modellhaus in der linken Hand und zeigt mit der rechten Hand nach oben, als hätte sie eine Idee. Sie lächelt und blickt leicht nach oben – symbolisch für Inspiration oder Immobilienberatung.