INFINA LOGO
Entspannt zur Immobilie Persönlich & kompetent beraten Finanzierbarkeit sofort überprüfbar
4.754 € Gesamtmiete inkl. USt.
Kostenlos &
unverbindlich.
Kontakt aufnehmen

Büros in bester Lage zu mieten. Gewerbepark. Obervellach.

Obj. Nr.: 160306

Partner von Infina lebensraum Immobilienmakler 
Partner von Infina lebensraum Immobilienmakler
4.754 € Gesamtmiete inkl. USt. Mietkaution finanzieren?
Jetzt beantragen
Mehr Informationen zur Immobilie: Detaillierte Einblicke in dieses Objekt.
Zurück zur Übersicht

Objektstandort

9821 Obervellach, Spittal an der Drau, Kärnten Adresse anfragen

Directions Icon Fahrtzeit berechnen
Preisinformationen
Gesamtbelastung € 4.754,03
Maklerprovision:
Gemäß Erstauftraggeberprinzip bezahlt der Vermieter/Verpächter die Provision.

Objektinformationen

Objektart: Büro / Praxis
Unterobjektart: Bürofläche
Nutzungsart: Gewerbe
Bauart: Neubau
Zustand: gepflegt
Baujahr: 1965
Letzte Sanierung: 2003
Erschließung: Vollerschlossen

Rauminformationen & Flächen

Grundstücksfläche: ca. 606,00 m²
Bürofläche: ca. 319,06 m²
Anzahl Terrassen: 1
Anzahl Stellplätze: 8
Anzahl WC: 2

Ausstattung

Boden: Fliesen, Kunststoffboden, Fertigparkett
Befeuerung: Elektro
Heizungsart: Zentralheizung
Küche: Pantryküche (Miniküche oder Schrankküche)
Balkon: Südbalkon / -terrasse
Stellplatzart: Parkplatz
Extras: Abstellraum
Elektrik: DV- / EDV-Verkabelung
Dachform: Flachdach
Bauweise: Massiv
Ausbaustufe: Schlüsselfertig mit Keller

Lage

Mölltal Bundesstraße B106;
Nahe Zentrum;
Gewerbeareal;

Beschreibung *

Bisher wurden Gewerbeimmobilien wie diese in erster Linie von Firmen des Bausektors genutzt. Dieses Gebäude im Gewerbepark Obervellach wurde im Jahre 2003 komplett saniert , wozu u.a. die Dämmung sowie neue Fenster gehören. Der selbst (!) produzierte Strom aus Photovoltaik wird auch für die Heizung verwendet.

Die vermietbaren Büroflächen gehören zum EG und 1. Stock . Im Eingangsbereich des Erdgeschosses befindet sich ein zentraler Empfang. Jede Etage wird durch eine separate Teeküche und WC ergänzt.

Großer Vorteil : Beide betrieblichen Geschosse sind auch separat anzumieten; also auch für zwei verschiedene Firmen.

Mitarbeitern und Kunden stehen insgesamt 8 Parkplätze zur Verfügung.

Abseits von Wohnanlagen liegt dieses Objekt sehr verkehrsgünstig an derB16 Mölltaler Bundesstraße.

Der Vermieter ist ein renommiertes Unternehmen aus Salzburg.

Die Region: Die Marktgemeinde Obervellach hat ca. 2.200 Einwohner und liegt inmitten des Mölltales im Bezirk Spittal. Als gesetzlich anerkannter Luftkurort bildet der Tourismus eine starke Säule, ein Teil der Gemeinde liegt im Nationalpark Hohe Tauern. Das Gemeindegebiet umfasst 19 Ortschaften. Direkte Busverbindungen bestehen nach Mallnitz, Heiligenblut sowie in die Bezirksstadt Spittal an der Drau. Der Bildungscampus besteht aus Kindergarten, Volksschule, Mittelschule und Musikschule. Praktische Ärzte und Zahnarzt sind im Ort. Die Freizeiteinrichtungen umfassen das Erlebnisbad mit Hallenbad, Freibad, Sauna und Massagen, einen Abenteuerspielplatz, Motorikpark mit 28 Stationen sowie einen Hochseilklettergarten. Die Groppensteinschlucht bietet einen inszenierten Schluchtenweg.

Vom Büroraum zum Lebensraum - mieten in Obervellach. 


*Der Vertrag kommt nicht mit der INFINA Credit Broker GmbH zustande. Das Objekt wird von einem externen Immobilienunternehmen angeboten. Allfällige aus dem Vertragsabschluss resultierende Rechte sind ausschließlich gegenüber dem anbietenden Immobilienunternehmen geltend zu machen. Wir weisen Sie darauf hin, dass die gemachten Angaben und Informationen lediglich unverbindliche Vorabinformationen sind und daher ohne Gewähr erfolgen. Der Immobilienmakler erklärt, dass er – entgegen dem in der Immobilienwirtschaft üblichen Geschäftsgebrauch des Doppelmaklers – einseitig nur für den Vermieter tätig ist.

Energieausweis & Heizung
HWB (kWh/m2/Jahr): 56
fGEE: 1.32
Gültig bis: 21.06.2033
Heizung: Zentralheizung
Befeuerung: Elektro
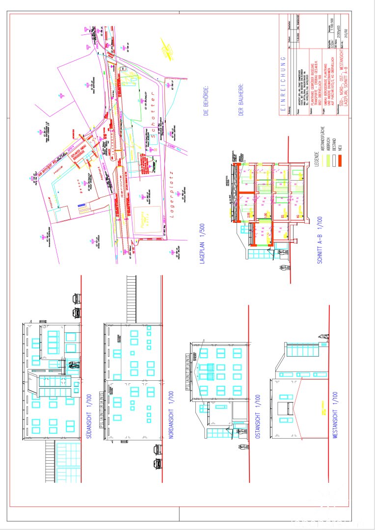
Dokumente & Videos Pläne Pläne Pläne Pläne
Partner von Infina lebensraum Immobilienmakler
Kinder & Schulen:
Kindergarten: 540 m
Schule: 550 m
Nahversorgung:
Supermarkt: 490 m
Bäckerei: 170 m
Gesundheit:
Apotheke: 230 m
Arzt: 380 m
Verkehr:
Bus: 80 m
Bahnhof: 4870 m
Sonstige:
Polizei: 150 m
Bank: 130 m
Geldautomat: 500 m
Post: 320 m

Jetzt Experten kontaktieren

Immobilie kaufen: Das passende Angebot finden

Der Kauf einer Immobilie ist eine wichtige Entscheidung – sei es für die Eigennutzung oder zur Vermietung. Mit unserem Portal unterstützen wir Sie dabei, die richtige Immobilie zu kaufen. Nutzen Sie unsere Suchmöglichkeiten, um gezielt eine Immobilie zu suchen, die Ihren Vorstellungen entspricht. Unsere Immobilienangebote decken eine breite Palette ab: vom Einfamilienhaus über die Eigentumswohnung bis hin zum Grundstück für Ihr Bauvorhaben. Mit uns können Sie sicher und unkompliziert Eigentum erwerben – ob für die private Nutzung oder als Investition als Immobilie. Erkunden Sie jetzt unsere Angebote und finden Sie die perfekte Lösung, die zu Ihren Wohn- oder Anlagezielen passt.

Fundiertes Wissen für Ihre Entscheidung, eine Immobilie zu kaufen

Bereiten Sie sich bestens vor: Infina stellt Ihnen kostenlos über 300 Ratgeber und Beiträge zu den Themen Immobilie, Finanzierung, Zinsen und Recht zur Verfügung. Nutzen Sie unser umfassendes Wissen, um richtige Entscheidungen zu treffen.

Bei jedem Kauf einer Immobilie oder eines Grundstücks ist es wichtig, die passende Finanzierung zu finden. Mit seiner eigenen Vertriebsorganisation ist Infina als Wohnbau-Finanz-Experte an über 100 Standorten in ganz Österreich vertreten und vermittelt Finanzierungen an über 150 Banken und Bausparkassen. Nutzen Sie unseren kostenlosen Kreditvergleich für den passenden Wohnkredit: 

Kreditvergleich

Kostenlos und unverbindlich

Immobilie mieten: Ihr neues Zuhause wartet

Die Entscheidung, eine Immobilie zu mieten, bietet Flexibilität und zahlreiche Möglichkeiten – ob eine Wohnung für den Alltag oder ein Haus für die Familie. Bei Infina können Sie gezielt sowohl eine Wohnung suchen als auch ein Haus suchen, das Ihren Bedürfnissen entspricht. Unsere Angebote erleichtern es Ihnen, eine Mietwohnung zu suchen und Ihre ideale Wohnung finden zu können. Entdecken Sie vielfältige Optionen, um die passende Immobilie zu finden und Ihre Wohnträume zu verwirklichen. Starten Sie noch heute Ihre Suche und profitieren Sie von einer großen Auswahl an Mietobjekten in Ihrer Wunschregion.

Hilfreiche Informationen zu Immobilie mieten

Starten Sie gut vorbereitet in Ihre Mietentscheidung: Infina stellt Ihnen vielseitige Ratgeber und Beiträge zu Themen wie Immobilie, Mietrecht, Finanzierung und Wohntrends zur Verfügung. Verschaffen Sie sich einen Überblick über alle relevanten Aspekte und gestalten Sie Ihren Weg ins neue Zuhause einfacher und sicherer.

Erfolgreich zur neuen Immobilie

Mit Infina haben Sie einen verlässlichen Partner an Ihrer Seite, der Sie von der ersten Beratung bis zum erfolgreichen Abschluss ganzheitlich unterstützt. Erfahren Sie hier, wie wir gemeinsam Ihren Immobilienerfolg gestalten.

Starten Sie jetzt Ihre Immobiliensuche

Nach zahlreichen Informationen rund um die Themen Immobilie kaufen und Immobilie mieten können Sie nun den nächsten Schritt machen. Starten Sie die Immobiliensuche, um Ihr neues Zuhause oder Ihre nächste Investition zu finden und entdecken Sie die passenden Angebote:

Das innovative Portal für Immobilien und Finanzierung 

Als Kunde von Infina profitieren Sie von unserer umfangreichen und unabhängigen Expertise als Teil einer wachsenden, unabhängigen Immobilien- und Finanzierungsnetzwerkgruppe. Bereits 50.000 Kunden hat Infina erfolgreich bei Ihrem Vorhaben begleitet. Infina bietet Ihnen eine umfassende Beratung in allen Bereichen rund um Ihre Immobilienvorhaben:

Die passende Finanzierung für Ihre Immobilie

Mit Infina erhalten Sie nicht nur eine unabhängige Beratung, sondern auch die passende Finanzierungslösung für Ihre Immobilie. Aus den Angeboten von über 150 Banken und Bausparkassen vermitteln wir Ihnen das, was perfekt zu Ihren Bedürfnissen passt. Wir begleiten Sie professionell und verlässlich – von der ersten Beratung bis zum erfolgreichen Abschluss.

Kreditvergleich

Kostenlos und unverbindlich

Wir holen das Beste für Sie heraus

Verkaufen Sie Ihre Immobilie mit uns & profitieren Sie von unserer Expertise. Wir bringen Ihre Immobilie optimal auf den Markt & erzielen den besten Preis. 

Kontaktieren Sie uns jetzt.

Jetzt Experten kontaktieren
Junge Frau im pinken Blazer hält ein Modellhaus in der linken Hand und zeigt mit der rechten Hand nach oben, als hätte sie eine Idee. Sie lächelt und blickt leicht nach oben – symbolisch für Inspiration oder Immobilienberatung.