INFINA LOGO
Entspannt zur Immobilie Persönlich & kompetent beraten Finanzierbarkeit sofort überprüfbar
816 € Gesamtmiete inkl. USt.
Kostenlos &
unverbindlich.
Kontakt aufnehmen

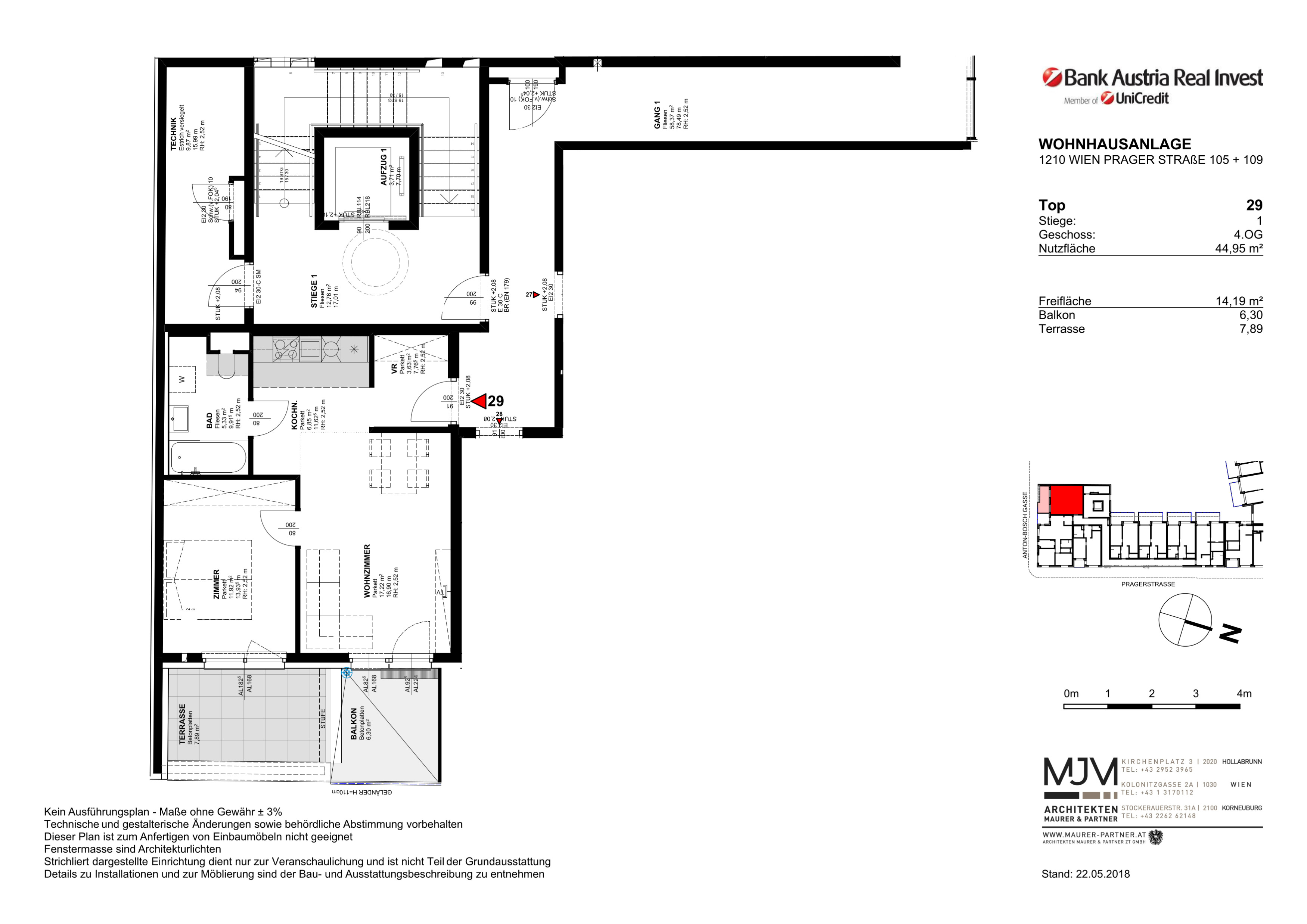
Moderne 2 Zimmerwohnung mit großzügiger Freifläche!

Obj. Nr.: 99046

ca. 44,95 m² Wohnfläche 2 Zimmer
Partner von Infina EHL Wohnen Immobilienmakler 
Partner von Infina EHL Wohnen Immobilienmakler
816 € Gesamtmiete inkl. USt. Mietkaution finanzieren?
Jetzt beantragen
Mehr Informationen zur Immobilie: Detaillierte Einblicke in dieses Objekt.
Zurück zur Übersicht

Objektstandort

1210 Wien Adresse anfragen

Directions Icon Fahrtzeit berechnen
Preisinformationen
Betriebskosten (exkl. USt.) € 164,66
Gesamtbelastung € 816,36
Maklerprovision:
Gemäß Erstauftraggeberprinzip bezahlt der Vermieter/Verpächter die Provision.

Objektinformationen

Objektart: Wohnung
Nutzungsart: Wohnen
Bauart: Neubau
Zustand: gepflegt
Baujahr: 2018

Rauminformationen & Flächen

Wohnfläche: ca. 44,95 m²
Balkonfläche: ca. 6,30 m²
Terrassenfläche: ca. 7,89 m²
Anzahl Balkone: 1
Anzahl Terrassen: 1
Anzahl Zimmer: 2
Anzahl WC: 1
Anzahl Bäder: 1

Ausstattung

Boden: Fliesen, Parkett
Befeuerung: Fernwärme
Heizungsart: Fernwärme
Küche: Wohnküche / offene Küche, Einbauküche
Fahrstuhl: Personenaufzug
Balkon: Nordwestbalkon / -terrasse
Bad: Badewanne
Stellplatzart: Tiefgarage
Extras: Wasch- / Trockenraum, Abstellraum, Fahrradraum

Beschreibung *

Moderne 2 Zimmerwohnung mit großzügiger Freifläche!

Die Wohnung selbst befindet sich im 4.Obergeschoss und gliedert sich in eine großzügige Wohnküche, ein getrennt begehbares Schlafzimmer, ein Badezimmer mit Wanne, WC und Waschmaschinenanschluss sowie einen Abstellraum und einen Vorraum. Der ca. 10m² große Balkon rundet das Wohnerlebnis perfekt ab und lädt zum Entspannen ein.
Bei den Fotos handelt es sich um Musterfotos!

Die Wohnung ist wie folgt ausgestattet:

  • Vollausgestattete Einbauküche mit Markengeräten
  • Badezimmer mit Wanne, WC und Waschmaschinenanschluss
  • Heizung über Fernwärme
  • Eichenparkettboden in allen Wohnräumen
  • Mit Feinsteinzeug ausgestattete Sanitärräume
  • Videogegensprechanlage

Das Haus verfügt über: 

  • Fahrradraum
  • Abstellraum für Kinderwägen
  • Gemeinschaftsraum
  • Aufzug
  • Jeder Wohnung ist ein Kellerabteil zugeordnet

Parken:
Auf Wunsch kann gerne ein Parkplatz für € 110,00 in der hauseigenen Garage angemietet werden.  

Die Lage:
Die speziell ausgewählte Lage des Objekts bietet den Bewohnern ein breites Spektrum an Nahversorgern, Anbindung an das öffentliche Verkehrsnetz sowie Erholungs- und Freizeitmöglichkeiten im Grünen. Durch die nahe gelegene Straßenbahnlinie 26 direkt vor der Haustür, gelangt man in wenigen Minuten zum Bezirkszentrum am Spitz und zu der U-Bahnlinie U6 „Floridsdorf“. Als unmittelbare Grün-Oase lädt der Denglerpark mit den umliegenden Kleingartensiedlungen zu gemütlichen Spaziergängen ein. Für größere Naturliebhaber liegt die nördliche Donauinsel in wenigen Autominuten entfernt. Auch der Individualverkehr mit dem Auto ist durch die rasche Anfahrtsmöglichkeit zu der Autobahn gewährleistet.

Öffentliche Anbindung:

  • Straßenbahnlinie 26
  • Buslinien 34A, 36A
  • S-Bahn-Station „Wien Jedlersdorf Bahnhof“
  • U-Bahnlinie U6 „Floridsdorf“

Heizung und Warmwasser werden nach Verbrauch abgerechnet.

Befristung:  5 Jahre, 1 Jahr Kündigungsverzicht, 3 Monate Kündigungsfrist

Nebenkosten:  3 BMM Kaution

Wir weisen darauf hin, dass zwischen dem Vermittler und dem zu vermittelnden Dritten ein familiäres oder wirtschaftliches Naheverhältnis besteht.

Der Immobilienmakler erklärt, dass er – entgegen dem in der Immobilienwirtschaft üblichen Geschäftsgebrauch des Doppelmaklers – einseitig nur für den Vermieter tätig ist.


Infrastruktur / Entfernungen

Gesundheit
Arzt <500m
Apotheke <500m
Klinik <1.500m
Krankenhaus <1.500m

Kinder & Schulen
Schule <500m
Kindergarten <500m
Universität <2.500m
Höhere Schule <1.500m

Nahversorgung
Supermarkt <500m
Bäckerei <500m
Einkaufszentrum <1.000m

Sonstige
Geldautomat <1.500m
Bank <1.500m
Post <500m
Polizei <1.500m

Verkehr
Bus <500m
U-Bahn <2.000m
Straßenbahn <500m
Bahnhof <500m
Autobahnanschluss <1.000m

Angaben Entfernung Luftlinie / Quelle: OpenStreetMap


*Der Vertrag kommt nicht mit der INFINA Credit Broker GmbH zustande. Das Objekt wird von einem externen Immobilienunternehmen angeboten. Allfällige aus dem Vertragsabschluss resultierende Rechte sind ausschließlich gegenüber dem anbietenden Immobilienunternehmen geltend zu machen. Wir weisen Sie darauf hin, dass die gemachten Angaben und Informationen lediglich unverbindliche Vorabinformationen sind und daher ohne Gewähr erfolgen. Der Immobilienmakler erklärt, dass er – entgegen dem in der Immobilienwirtschaft üblichen Geschäftsgebrauch des Doppelmaklers – einseitig nur für den Vermieter tätig ist.

Energieausweis & Heizung
HWB (kWh/m2/Jahr): 26.88
HWB Energieklasse B
fGEE: 0.83
fGEE Energieklasse B
Gültig bis: 18.06.2028
Heizung: Fernwärme
Befeuerung: Fernwärme
Dokumente & Videos Pläne Projektexpose - Pragerstraße 109 Lagereport - Pragerstraße 109 Energieausweis Stiege 3 - Pragerstraße 109 Energieausweis Stiege 4 & 5 - Pragerstraße 109 Energieausweis Stiege 1 & 2 - Pragerstraße 109
Partner von Infina EHL Wohnen Immobilienmakler
Verkehr:
U-Bahn: 2340 m
Autobahnanschluss: 1050 m
Straßenbahn: 30 m
Bus: 40 m
Bahnhof: 2330 m
Nahversorgung:
Bäckerei: 100 m
Supermarkt: 110 m
Einkaufszentrum: 560 m
Sonstige:
Bank: 40 m
Post: 40 m
Polizei: 470 m
Geldautomat: 400 m
Kinder & Schulen:
Höhere Schule: 2290 m
Schule: 70 m
Kindergarten: 120 m
Universität: 1920 m
Gesundheit:
Apotheke: 30 m
Arzt: 30 m
Klinik: 1040 m
Krankenhaus: 1060 m

Jetzt Experten kontaktieren

Immobilie kaufen: Das passende Angebot finden

Der Kauf einer Immobilie ist eine wichtige Entscheidung – sei es für die Eigennutzung oder zur Vermietung. Mit unserem Portal unterstützen wir Sie dabei, die richtige Immobilie zu kaufen. Nutzen Sie unsere Suchmöglichkeiten, um gezielt eine Immobilie zu suchen, die Ihren Vorstellungen entspricht. Unsere Immobilienangebote decken eine breite Palette ab: vom Einfamilienhaus über die Eigentumswohnung bis hin zum Grundstück für Ihr Bauvorhaben. Mit uns können Sie sicher und unkompliziert Eigentum erwerben – ob für die private Nutzung oder als Investition als Immobilie. Erkunden Sie jetzt unsere Angebote und finden Sie die perfekte Lösung, die zu Ihren Wohn- oder Anlagezielen passt.

Fundiertes Wissen für Ihre Entscheidung, eine Immobilie zu kaufen

Bereiten Sie sich bestens vor: Infina stellt Ihnen kostenlos über 300 Ratgeber und Beiträge zu den Themen Immobilie, Finanzierung, Zinsen und Recht zur Verfügung. Nutzen Sie unser umfassendes Wissen, um richtige Entscheidungen zu treffen.

Bei jedem Kauf einer Immobilie oder eines Grundstücks ist es wichtig, die passende Finanzierung zu finden. Mit seiner eigenen Vertriebsorganisation ist Infina als Wohnbau-Finanz-Experte an über 100 Standorten in ganz Österreich vertreten und vermittelt Finanzierungen an über 150 Banken und Bausparkassen. Nutzen Sie unseren kostenlosen Kreditvergleich für den passenden Wohnkredit: 

Kreditvergleich

Kostenlos und unverbindlich

Immobilie mieten: Ihr neues Zuhause wartet

Die Entscheidung, eine Immobilie zu mieten, bietet Flexibilität und zahlreiche Möglichkeiten – ob eine Wohnung für den Alltag oder ein Haus für die Familie. Bei Infina können Sie gezielt sowohl eine Wohnung suchen als auch ein Haus suchen, das Ihren Bedürfnissen entspricht. Unsere Angebote erleichtern es Ihnen, eine Mietwohnung zu suchen und Ihre ideale Wohnung finden zu können. Entdecken Sie vielfältige Optionen, um die passende Immobilie zu finden und Ihre Wohnträume zu verwirklichen. Starten Sie noch heute Ihre Suche und profitieren Sie von einer großen Auswahl an Mietobjekten in Ihrer Wunschregion.

Hilfreiche Informationen zu Immobilie mieten

Starten Sie gut vorbereitet in Ihre Mietentscheidung: Infina stellt Ihnen vielseitige Ratgeber und Beiträge zu Themen wie Immobilie, Mietrecht, Finanzierung und Wohntrends zur Verfügung. Verschaffen Sie sich einen Überblick über alle relevanten Aspekte und gestalten Sie Ihren Weg ins neue Zuhause einfacher und sicherer.

Erfolgreich zur neuen Immobilie

Mit Infina haben Sie einen verlässlichen Partner an Ihrer Seite, der Sie von der ersten Beratung bis zum erfolgreichen Abschluss ganzheitlich unterstützt. Erfahren Sie hier, wie wir gemeinsam Ihren Immobilienerfolg gestalten.

Starten Sie jetzt Ihre Immobiliensuche

Nach zahlreichen Informationen rund um die Themen Immobilie kaufen und Immobilie mieten können Sie nun den nächsten Schritt machen. Starten Sie die Immobiliensuche, um Ihr neues Zuhause oder Ihre nächste Investition zu finden und entdecken Sie die passenden Angebote:

Das innovative Portal für Immobilien und Finanzierung 

Als Kunde von Infina profitieren Sie von unserer umfangreichen und unabhängigen Expertise als Teil einer wachsenden, unabhängigen Immobilien- und Finanzierungsnetzwerkgruppe. Bereits 50.000 Kunden hat Infina erfolgreich bei Ihrem Vorhaben begleitet. Infina bietet Ihnen eine umfassende Beratung in allen Bereichen rund um Ihre Immobilienvorhaben:

Die passende Finanzierung für Ihre Immobilie

Mit Infina erhalten Sie nicht nur eine unabhängige Beratung, sondern auch die passende Finanzierungslösung für Ihre Immobilie. Aus den Angeboten von über 150 Banken und Bausparkassen vermitteln wir Ihnen das, was perfekt zu Ihren Bedürfnissen passt. Wir begleiten Sie professionell und verlässlich – von der ersten Beratung bis zum erfolgreichen Abschluss.

Kreditvergleich

Kostenlos und unverbindlich

Wir holen das Beste für Sie heraus

Verkaufen Sie Ihre Immobilie mit uns & profitieren Sie von unserer Expertise. Wir bringen Ihre Immobilie optimal auf den Markt & erzielen den besten Preis. 

Kontaktieren Sie uns jetzt.

Jetzt Experten kontaktieren
Junge Frau im pinken Blazer hält ein Modellhaus in der linken Hand und zeigt mit der rechten Hand nach oben, als hätte sie eine Idee. Sie lächelt und blickt leicht nach oben – symbolisch für Inspiration oder Immobilienberatung.