INFINA LOGO
Entspannt zur Immobilie Persönlich & kompetent beraten Finanzierbarkeit sofort überprüfbar
736 € Gesamtmiete inkl. USt.
Kostenlos &
unverbindlich.
Kontakt aufnehmen

Wohnen mit Blick & Konzept: ODO25 in bester Lage mit intelligenten Grundrissen

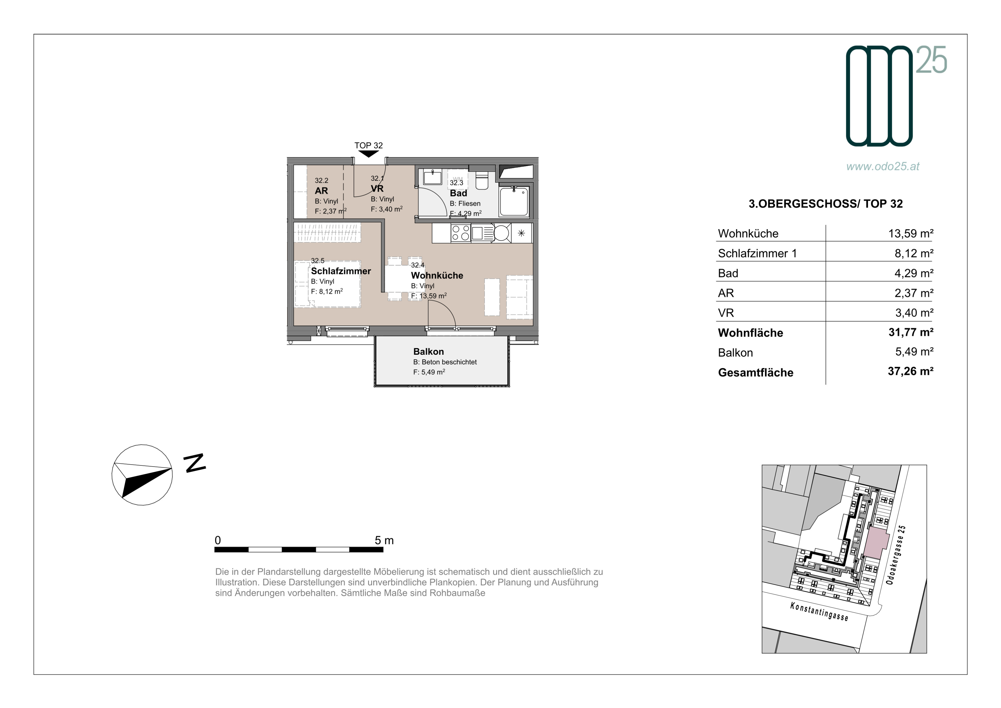
Obj. Nr.: 56749

ca. 31,77 m² Wohnfläche 1,5 Zimmer
Partner von Infina EHL Wohnen Immobilienmakler 
Partner von Infina EHL Wohnen Immobilienmakler
736 € Gesamtmiete inkl. USt. Mietkaution finanzieren?
Jetzt beantragen
Mehr Informationen zur Immobilie: Detaillierte Einblicke in dieses Objekt.
Zurück zur Übersicht

Objektstandort

1160 Wien, Odoakergasse 25/32

Directions Icon Fahrtzeit berechnen
Preisinformationen
Betriebskosten (exkl. USt.) € 68,31
Gesamtbelastung € 736,36
Maklerprovision:
Gemäß Erstauftraggeberprinzip bezahlt der Vermieter/Verpächter die Provision.

Objektinformationen

Objektart: Wohnung
Nutzungsart: Wohnen
Bauart: Neubau
Zustand: Erstbezug
Baujahr: 2026

Rauminformationen & Flächen

Wohnfläche: ca. 31,77 m²
Balkonfläche: ca. 5,49 m²
Anzahl Balkone: 1
Anzahl Zimmer: 2
Anzahl WC: 1
Anzahl Bäder: 1

Ausstattung

Boden: Fliesen, Kunststoffboden
Befeuerung: Erdwärme, Luftwärmepumpe
Küche: Wohnküche / offene Küche
Fahrstuhl: Personenaufzug
Balkon: Südostbalkon / -terrasse
Bad: Dusche
Stellplatzart: Tiefgarage
Extras: Abstellraum
Belüftung: Klimaanlage

Beschreibung *

Mit dem  ODO25 entsteht in der Odoakergasse 25 im 16. Wiener Gemeindebezirk , am Fuße des Wilhelminenbergs, ein modernes Wohnprojekt, das urbanes Lebensgefühl, zeitgemäße Architektur und nachhaltigen Wohnkomfort vereint. Die Wohnhausanlage richtet sich an Menschen in unterschiedlichen Lebensphasen – von Singles über Paare bis hin zu Familien – und bietet Raum zum Ankommen, Entfalten und Wohlfühlen.

Das Projekt umfasst 61 hochwertige Mietwohnungen sowie ein e Atelier- bzw. Büroeinheit im Hofhaus. Die überwiegend 1,5-, 2- sowie 3-Zimmer-Wohnungen mit Wohnflächen von ca. 30 bis 80 m² überzeugen durch durchdachte, kompakte Grundrisse, helle Räume und eine hochwertige Ausstattung. Großzügige bodentiefe Fenster, klare architektonische Linien und teilweise private Freiflächen wie Balkone, Loggien oder Terrassen schaffen ein angenehmes, urbanes Wohnambiente. Ergänzt wird das Angebot durch ausgewählte Dach-Maisonetten , die ein besonders exklusives Wohngefühl bieten.

ODO25 setzt auf ein zukunftsorientiertes, nachhaltiges Gesamtkonzept und strebt eine  ÖGNI-/DGNB-Gold-Zertifizierung an.

Das Projekt im Überblick

  • 61 Mietwohnungen sowie 1 Büro- & Atelierfläche
  • 1,5- bis 3-Zimmer-Wohnungen mit ca. 30–80 m² Wohnfläche
  • Teilweise private Freiflächen (Balkon, Loggia oder Terrasse)
  • Fahrradabstellraum & Kinderspielraum
  • Energieeffiziente Bauweise mit Wärmepumpe, Erdwärmesonden und Bauteilaktivierung
  • Begrünter Innenhof sowie Fassaden- und Dachbegrünung

Ausstattung im Überblick

  • Heizung und Kühlung über die Decke mittels Erdwärme
  • Voll ausgestattete Küchen
  • Vinylboden in Eichenoptik in den Wohnräumen
  • Fliesen bzw. Feinsteinzeug in den Sanitärräumen
  • Kunststoff-Alu-Fenster
  • Außenliegender Sonnenschutz im Dachgeschoß
  • Sicherheitstüren WK2/RC2
  • Glasfaseranschluss
  • Video-Gegensprechanlage

Lage – Urbanes Leben mit Nähe zur Natur

ODO25 liegt im Herzen von Ottakring und verbindet urbane Infrastruktur mit naturnaher Erholung. Zahlreiche Grün- und Erholungsgebiete wie der Wilhelminenberg , die Steinhofgründe oder der Kongresspark befinden sich in kurzer Distanz und bieten vielfältige Freizeitmöglichkeiten. Gleichzeitig ist die Anbindung an die Wiener Innenstadt hervorragend: Die U3-Station „Ottakring“ ist fußläufig erreichbar und bringt Sie in kurzer Zeit ins Stadtzentrum.

Zahlreiche Einkaufsmöglichkeiten für den täglichen Bedarf, Restaurants sowie traditionelle Heurige befinden sich in unmittelbarer Umgebung. Kindergärten sowie sämtliche Schultypen sind ebenfalls rasch erreichbar.

Verkehrsanbindung

  • Straßenbahn: 2, 10, 33, 44 & 46
  • Bus: 45A, 46A, 46B & N46
  • S-Bahn: S45
  • U-Bahn: U3 Ottakring (ca. 10 Gehminuten)

Voraussichtliche Fertigstellung: 01.07.2026

Befristung:  5 Jahre, 1 Jahr Kündigungsverzicht, 3 Monate Kündigungsfrist 

Nebenkosten:   3 BMM Kaution

Den Wohnungen sind keine Kellerabteile zugeordnet.

Das Projekt befindet sich derzeit noch im Bau. Wir freuen uns über Ihre Kontaktaufnahme per E-Mail , um einen Besichtigungstermin der Musterwohnung zu vereinbaren!

Wir weisen darauf hin, dass zwischen dem Vermittler und dem zu vermittelnden Dritten ein familiäres oder wirtschaftliches Naheverhältnis besteht.

Der Immobilienmakler erklärt, dass er – entgegen dem in der Immobilienwirtschaft üblichen Geschäftsgebrauch des Doppelmaklers – einseitig nur für den Vermieter tätig ist.


Infrastruktur / Entfernungen

Gesundheit
Arzt <200m
Apotheke <125m
Klinik <775m
Krankenhaus <275m

Kinder & Schulen
Schule <200m
Kindergarten <225m
Universität <1.600m
Höhere Schule <1.275m

Nahversorgung
Supermarkt <150m
Bäckerei <325m
Einkaufszentrum <325m

Sonstige
Geldautomat <150m
Bank <350m
Post <350m
Polizei <400m

Verkehr
Bus <100m
U-Bahn <550m
Straßenbahn <100m
Bahnhof <650m
Autobahnanschluss <4.725m

Angaben Entfernung Luftlinie / Quelle: OpenStreetMap


*Der Vertrag kommt nicht mit der INFINA Credit Broker GmbH zustande. Das Objekt wird von einem externen Immobilienunternehmen angeboten. Allfällige aus dem Vertragsabschluss resultierende Rechte sind ausschließlich gegenüber dem anbietenden Immobilienunternehmen geltend zu machen. Wir weisen Sie darauf hin, dass die gemachten Angaben und Informationen lediglich unverbindliche Vorabinformationen sind und daher ohne Gewähr erfolgen. Der Immobilienmakler erklärt, dass er – entgegen dem in der Immobilienwirtschaft üblichen Geschäftsgebrauch des Doppelmaklers – einseitig nur für den Vermieter tätig ist.

Energieausweis & Heizung
HWB (kWh/m2/Jahr): 26.2
HWB Energieklasse B
fGEE: 0.66
fGEE Energieklasse B
Gültig bis: 18.11.2035
Befeuerung: Erdwärme, Luftwärmepumpe
Dokumente & Videos Pläne Exposé Preisliste Planmappe Energieausweis
Partner von Infina EHL Wohnen Immobilienmakler
Kinder & Schulen:
Kindergarten: 220 m
Höhere Schule: 1260 m
Schule: 200 m
Universität: 1450 m
Gesundheit:
Apotheke: 110 m
Klinik: 760 m
Arzt: 190 m
Krankenhaus: 950 m
Nahversorgung:
Bäckerei: 320 m
Einkaufszentrum: 320 m
Supermarkt: 140 m
Sonstige:
Post: 340 m
Polizei: 400 m
Geldautomat: 580 m
Bank: 330 m
Verkehr:
Autobahnanschluss: 4710 m
Straßenbahn: 100 m
Bus: 90 m
U-Bahn: 720 m
Bahnhof: 620 m

Jetzt Experten kontaktieren

Immobilie kaufen: Das passende Angebot finden

Der Kauf einer Immobilie ist eine wichtige Entscheidung – sei es für die Eigennutzung oder zur Vermietung. Mit unserem Portal unterstützen wir Sie dabei, die richtige Immobilie zu kaufen. Nutzen Sie unsere Suchmöglichkeiten, um gezielt eine Immobilie zu suchen, die Ihren Vorstellungen entspricht. Unsere Immobilienangebote decken eine breite Palette ab: vom Einfamilienhaus über die Eigentumswohnung bis hin zum Grundstück für Ihr Bauvorhaben. Mit uns können Sie sicher und unkompliziert Eigentum erwerben – ob für die private Nutzung oder als Investition als Immobilie. Erkunden Sie jetzt unsere Angebote und finden Sie die perfekte Lösung, die zu Ihren Wohn- oder Anlagezielen passt.

Fundiertes Wissen für Ihre Entscheidung, eine Immobilie zu kaufen

Bereiten Sie sich bestens vor: Infina stellt Ihnen kostenlos über 300 Ratgeber und Beiträge zu den Themen Immobilie, Finanzierung, Zinsen und Recht zur Verfügung. Nutzen Sie unser umfassendes Wissen, um richtige Entscheidungen zu treffen.

Bei jedem Kauf einer Immobilie oder eines Grundstücks ist es wichtig, die passende Finanzierung zu finden. Mit seiner eigenen Vertriebsorganisation ist Infina als Wohnbau-Finanz-Experte an über 100 Standorten in ganz Österreich vertreten und vermittelt Finanzierungen an über 120 Banken und Bausparkassen. Nutzen Sie unseren kostenlosen Kreditvergleich für den passenden Wohnkredit: 

Kreditvergleich

Kostenlos und unverbindlich

Immobilie mieten: Ihr neues Zuhause wartet

Die Entscheidung, eine Immobilie zu mieten, bietet Flexibilität und zahlreiche Möglichkeiten – ob eine Wohnung für den Alltag oder ein Haus für die Familie. Bei Infina können Sie gezielt sowohl eine Wohnung suchen als auch ein Haus suchen, das Ihren Bedürfnissen entspricht. Unsere Angebote erleichtern es Ihnen, eine Mietwohnung zu suchen und Ihre ideale Wohnung finden zu können. Entdecken Sie vielfältige Optionen, um die passende Immobilie zu finden und Ihre Wohnträume zu verwirklichen. Starten Sie noch heute Ihre Suche und profitieren Sie von einer großen Auswahl an Mietobjekten in Ihrer Wunschregion.

Hilfreiche Informationen zu Immobilie mieten

Starten Sie gut vorbereitet in Ihre Mietentscheidung: Infina stellt Ihnen vielseitige Ratgeber und Beiträge zu Themen wie Immobilie, Mietrecht, Finanzierung und Wohntrends zur Verfügung. Verschaffen Sie sich einen Überblick über alle relevanten Aspekte und gestalten Sie Ihren Weg ins neue Zuhause einfacher und sicherer.

Erfolgreich zur neuen Immobilie

Mit Infina haben Sie einen verlässlichen Partner an Ihrer Seite, der Sie von der ersten Beratung bis zum erfolgreichen Abschluss ganzheitlich unterstützt. Erfahren Sie hier, wie wir gemeinsam Ihren Immobilienerfolg gestalten.

Starten Sie jetzt Ihre Immobiliensuche

Nach zahlreichen Informationen rund um die Themen Immobilie kaufen und Immobilie mieten können Sie nun den nächsten Schritt machen. Starten Sie die Immobiliensuche, um Ihr neues Zuhause oder Ihre nächste Investition zu finden und entdecken Sie die passenden Angebote:

Das innovative Portal für Immobilien und Finanzierung 

Als Kunde von Infina profitieren Sie von unserer umfangreichen und unabhängigen Expertise als Teil einer wachsenden, unabhängigen Immobilien- und Finanzierungsnetzwerkgruppe. Bereits 50.000 Kunden hat Infina erfolgreich bei Ihrem Vorhaben begleitet. Infina bietet Ihnen eine umfassende Beratung in allen Bereichen rund um Ihre Immobilienvorhaben:

Die passende Finanzierung für Ihre Immobilie

Mit Infina erhalten Sie nicht nur eine unabhängige Beratung, sondern auch die passende Finanzierungslösung für Ihre Immobilie. Aus den Angeboten von über 120 Banken und Bausparkassen vermitteln wir Ihnen das, was perfekt zu Ihren Bedürfnissen passt. Wir begleiten Sie professionell und verlässlich – von der ersten Beratung bis zum erfolgreichen Abschluss.

Kreditvergleich

Kostenlos und unverbindlich

Wir holen das Beste für Sie heraus

Verkaufen Sie Ihre Immobilie mit uns & profitieren Sie von unserer Expertise. Wir bringen Ihre Immobilie optimal auf den Markt & erzielen den besten Preis. 

Kontaktieren Sie uns jetzt.

Jetzt Experten kontaktieren
Junge Frau im pinken Blazer hält ein Modellhaus in der linken Hand und zeigt mit der rechten Hand nach oben, als hätte sie eine Idee. Sie lächelt und blickt leicht nach oben – symbolisch für Inspiration oder Immobilienberatung.