INFINA LOGO
Entspannt zur Immobilie Persönlich & kompetent beraten Finanzierbarkeit sofort überprüfbar
836 € Gesamtmiete inkl. USt.
Kostenlos &
unverbindlich.
Kontakt aufnehmen

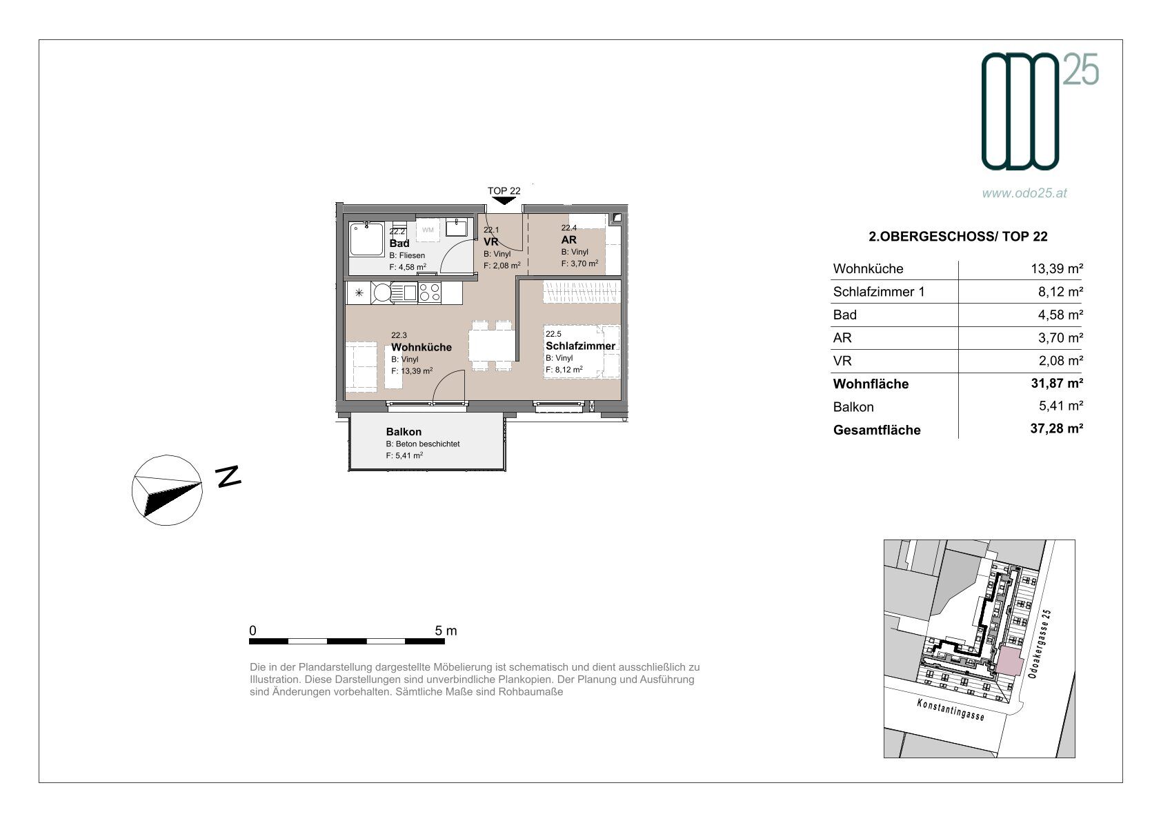
ODO25 | Balkonwohnung | 1,5 Zimmer | Mietbeginn ab 01.07.2026

Obj. Nr.: 56384

ca. 31,87 m² Wohnfläche 1,5 Zimmer
Partner von Infina OPTIN Immobilien Immobilienmakler 
Partner von Infina OPTIN Immobilien Immobilienmakler
836 € Gesamtmiete inkl. USt. Mietkaution finanzieren?
Jetzt beantragen
Mehr Informationen zur Immobilie: Detaillierte Einblicke in dieses Objekt.
Zurück zur Übersicht

Objektstandort

1160 Wien, Odoakergasse 25

Directions Icon Fahrtzeit berechnen
Preisinformationen
Betriebskosten (exkl. USt.) € 66,93
Gesamtbelastung € 836,37
Maklerprovision:
Gemäß Erstauftraggeberprinzip bezahlt der Vermieter/Verpächter die Provision.

Objektinformationen

Objektart: Wohnung
Unterobjektart: Etagenwohnung
Nutzungsart: Wohnen
Zustand: Erstbezug
Baujahr: 2026

Rauminformationen & Flächen

Wohnfläche: ca. 31,87 m²
Anzahl Stellplätze: 19
Anzahl Zimmer: 2

Ausstattung

Boden: Fliesen, Parkett
Befeuerung: Erdwärme
Heizungsart: Fußbodenheizung
Küche: Einbauküche
Fahrstuhl: Personenaufzug
Balkon: Ostbalkon / -terrasse
Bad: Dusche
Fernsehen: Kabel / Satelliten-TV
Extras: Fahrradraum
Belüftung: Klimaanlage

Lage

ODO25 befindet sich in attraktiver Lage der Odoakergasse im 16. Wiener Gemeindebezirk und überzeugt durch eine hervorragende Anbindung an die Wiener Innenstadt sowie an zahlreiche Naherholungsgebiete. Die ausgezeichnete öffentliche Verkehrsanbindung mit mehreren Straßenbahn-, Bus- und S-Bahn-Linien ermöglicht schnelle und flexible Mobilität in alle Teile der Stadt.

Grün- und Freizeitflächen wie Wilhelminenberg, Steinhofgründe, Kongreßpark und Kongreßbad sind in wenigen Minuten erreichbar und bieten vielfältige Erholungsmöglichkeiten. Schulen, Kindergärten, medizinische Versorgung sowie Einkaufsmöglichkeiten befinden sich in unmittelbarer Nähe. Der nahegelegene Brunnenmarkt und der Yppenplatz ergänzen das Angebot durch urbanes Markt- und Gastronomieflair.

Beschreibung *

ODO25 – Urbanes Wohnen mit Weitblick

In der Odoakergasse 25 im 16. Wiener Gemeindebezirk entsteht mit ODO25 eine moderne Wohnhausanlage, die urbanes Lebensgefühl mit hohem Wohnkomfort verbindet. Das Projekt richtet sich an Singles, Paare, Alleinerziehende und Familien gleichermaßen und bietet zeitgemäße Wohnlösungen für unterschiedliche Lebensmodelle.

Die Anlage umfasst insgesamt 61 hochwertige Wohneinheiten, überwiegend Zwei- und Drei-Zimmer-Wohnungen mit Wohnflächen von rund 30 bis 80 m². Durchdachte Grundrisse, bodentiefe Fenster und großzügige Freiflächen sorgen für helle, freundliche Räume und ein angenehmes Wohnambiente mit urbanem Charakter.

Ein besonderes Merkmal von ODO25 ist das angrenzende Hofhaus, das flexibel nutzbare Büro- oder Atelierflächen bietet. Damit eignet sich das Projekt ideal für Menschen, die Wohnen und Arbeiten an einem Ort verbinden möchten.

Die Lage überzeugt durch ihre hervorragende Anbindung an die Wiener Innenstadt sowie die Nähe zu Grün- und Erholungsräumen. ODO25 bietet damit einen idealen Ausgangspunkt für ein aktives, urbanes Leben mit hoher Lebensqualität.

Nachhaltigkeit – Elegant wohnen, bewusst leben

Nachhaltigkeit ist ein zentraler Bestandteil des Projekts ODO25. Eine energieeffiziente Bauweise, moderne Haustechnik und der Einsatz ressourcenschonender Materialien tragen zu niedrigen Betriebs- und Energiekosten bei.

Die Beheizung und Kühlung erfolgen über ein nachhaltiges Energiekonzept mit Wärmepumpe, Erdwärmesonden und Bauteilaktivierung. Begrünte Innenhofbereiche, Fassaden- und Dachflächen schaffen ein angenehmes Mikroklima und erhöhen die Aufenthaltsqualität.

E-Ladestationen für PKW sowie der bewusste Einsatz langlebiger und umweltfreundlicher Bauprodukte unterstreichen den zukunftsorientierten Anspruch des Projekts. Die angestrebte Zertifizierung nach ÖGNI/DGNB Gold bestätigt den hohen Qualitäts- und Nachhaltigkeitsstandard von ODO25.

Optional kann ein Stellplatz in der hauseigenen Tiefgarage um € 110,– brutto pro Monat angemietet werden.

*Der Vertrag kommt nicht mit der INFINA Credit Broker GmbH zustande. Das Objekt wird von einem externen Immobilienunternehmen angeboten. Allfällige aus dem Vertragsabschluss resultierende Rechte sind ausschließlich gegenüber dem anbietenden Immobilienunternehmen geltend zu machen. Wir weisen Sie darauf hin, dass die gemachten Angaben und Informationen lediglich unverbindliche Vorabinformationen sind und daher ohne Gewähr erfolgen. Der Immobilienmakler erklärt, dass er – entgegen dem in der Immobilienwirtschaft üblichen Geschäftsgebrauch des Doppelmaklers – einseitig nur für den Vermieter tätig ist.

Energieausweis & Heizung
HWB (kWh/m2/Jahr): 26.2
HWB Energieklasse B
fGEE: 0.66
fGEE Energieklasse B
Gültig bis: 18.11.2035
Heizung: Fußbodenheizung
Befeuerung: Erdwärme
Dokumente & Videos Pläne
Partner von Infina OPTIN Immobilien Immobilienmakler
Verkehr:
Autobahnanschluss: 5870 m
U-Bahn: 1400 m
Bus: 90 m
Kinder & Schulen:
Kindergarten: 220 m
Schule: 170 m
Nahversorgung:
Supermarkt: 330 m

Jetzt Experten kontaktieren

Immobilie kaufen: Das passende Angebot finden

Der Kauf einer Immobilie ist eine wichtige Entscheidung – sei es für die Eigennutzung oder zur Vermietung. Mit unserem Portal unterstützen wir Sie dabei, die richtige Immobilie zu kaufen. Nutzen Sie unsere Suchmöglichkeiten, um gezielt eine Immobilie zu suchen, die Ihren Vorstellungen entspricht. Unsere Immobilienangebote decken eine breite Palette ab: vom Einfamilienhaus über die Eigentumswohnung bis hin zum Grundstück für Ihr Bauvorhaben. Mit uns können Sie sicher und unkompliziert Eigentum erwerben – ob für die private Nutzung oder als Investition als Immobilie. Erkunden Sie jetzt unsere Angebote und finden Sie die perfekte Lösung, die zu Ihren Wohn- oder Anlagezielen passt.

Fundiertes Wissen für Ihre Entscheidung, eine Immobilie zu kaufen

Bereiten Sie sich bestens vor: Infina stellt Ihnen kostenlos über 300 Ratgeber und Beiträge zu den Themen Immobilie, Finanzierung, Zinsen und Recht zur Verfügung. Nutzen Sie unser umfassendes Wissen, um richtige Entscheidungen zu treffen.

Bei jedem Kauf einer Immobilie oder eines Grundstücks ist es wichtig, die passende Finanzierung zu finden. Mit seiner eigenen Vertriebsorganisation ist Infina als Wohnbau-Finanz-Experte an über 100 Standorten in ganz Österreich vertreten und vermittelt Finanzierungen an über 120 Banken und Bausparkassen. Nutzen Sie unseren kostenlosen Kreditvergleich für den passenden Wohnkredit: 

Kreditvergleich

Kostenlos und unverbindlich

Immobilie mieten: Ihr neues Zuhause wartet

Die Entscheidung, eine Immobilie zu mieten, bietet Flexibilität und zahlreiche Möglichkeiten – ob eine Wohnung für den Alltag oder ein Haus für die Familie. Bei Infina können Sie gezielt sowohl eine Wohnung suchen als auch ein Haus suchen, das Ihren Bedürfnissen entspricht. Unsere Angebote erleichtern es Ihnen, eine Mietwohnung zu suchen und Ihre ideale Wohnung finden zu können. Entdecken Sie vielfältige Optionen, um die passende Immobilie zu finden und Ihre Wohnträume zu verwirklichen. Starten Sie noch heute Ihre Suche und profitieren Sie von einer großen Auswahl an Mietobjekten in Ihrer Wunschregion.

Hilfreiche Informationen zu Immobilie mieten

Starten Sie gut vorbereitet in Ihre Mietentscheidung: Infina stellt Ihnen vielseitige Ratgeber und Beiträge zu Themen wie Immobilie, Mietrecht, Finanzierung und Wohntrends zur Verfügung. Verschaffen Sie sich einen Überblick über alle relevanten Aspekte und gestalten Sie Ihren Weg ins neue Zuhause einfacher und sicherer.

Erfolgreich zur neuen Immobilie

Mit Infina haben Sie einen verlässlichen Partner an Ihrer Seite, der Sie von der ersten Beratung bis zum erfolgreichen Abschluss ganzheitlich unterstützt. Erfahren Sie hier, wie wir gemeinsam Ihren Immobilienerfolg gestalten.

Starten Sie jetzt Ihre Immobiliensuche

Nach zahlreichen Informationen rund um die Themen Immobilie kaufen und Immobilie mieten können Sie nun den nächsten Schritt machen. Starten Sie die Immobiliensuche, um Ihr neues Zuhause oder Ihre nächste Investition zu finden und entdecken Sie die passenden Angebote:

Das innovative Portal für Immobilien und Finanzierung 

Als Kunde von Infina profitieren Sie von unserer umfangreichen und unabhängigen Expertise als Teil einer wachsenden, unabhängigen Immobilien- und Finanzierungsnetzwerkgruppe. Bereits 50.000 Kunden hat Infina erfolgreich bei Ihrem Vorhaben begleitet. Infina bietet Ihnen eine umfassende Beratung in allen Bereichen rund um Ihre Immobilienvorhaben:

Die passende Finanzierung für Ihre Immobilie

Mit Infina erhalten Sie nicht nur eine unabhängige Beratung, sondern auch die passende Finanzierungslösung für Ihre Immobilie. Aus den Angeboten von über 120 Banken und Bausparkassen vermitteln wir Ihnen das, was perfekt zu Ihren Bedürfnissen passt. Wir begleiten Sie professionell und verlässlich – von der ersten Beratung bis zum erfolgreichen Abschluss.

Kreditvergleich

Kostenlos und unverbindlich

Wir holen das Beste für Sie heraus

Verkaufen Sie Ihre Immobilie mit uns & profitieren Sie von unserer Expertise. Wir bringen Ihre Immobilie optimal auf den Markt & erzielen den besten Preis. 

Kontaktieren Sie uns jetzt.

Jetzt Experten kontaktieren
Junge Frau im pinken Blazer hält ein Modellhaus in der linken Hand und zeigt mit der rechten Hand nach oben, als hätte sie eine Idee. Sie lächelt und blickt leicht nach oben – symbolisch für Inspiration oder Immobilienberatung.