INFINA LOGO
Entspannt zur Immobilie Persönlich & kompetent beraten Finanzierbarkeit sofort überprüfbar
3.307 € Gesamtmiete inkl. USt.
Kostenlos &
unverbindlich.
Kontakt aufnehmen

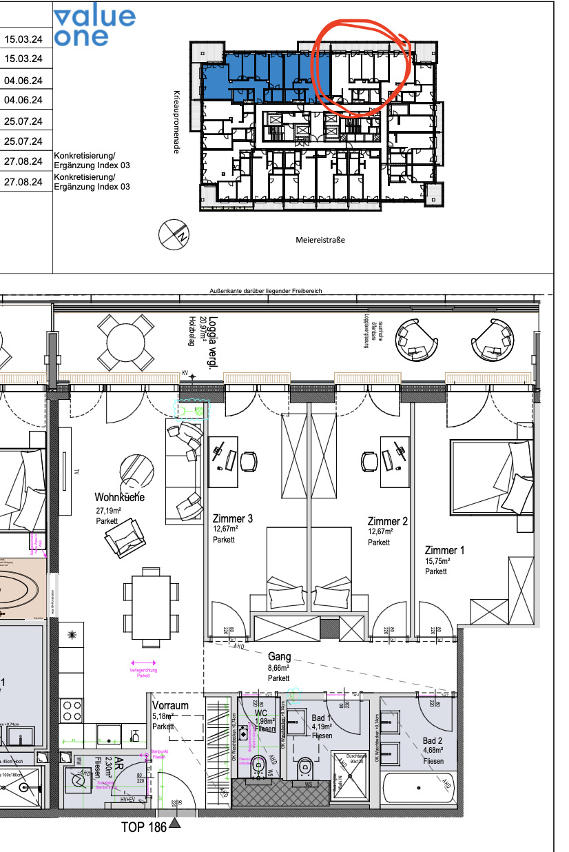
GRÜNBLICK im "Viertel Zwei" ! Exklusive 4-Zimmerwohnung mit 20 m² Loggia

Obj. Nr.: 47462

ca. 95,37 m² Wohnfläche 4 Zimmer
Partner von Infina EHL Wohnen Immobilienmakler 
Partner von Infina EHL Wohnen Immobilienmakler
3.307 € Gesamtmiete inkl. USt. Mietkaution finanzieren?
Jetzt beantragen
Mehr Informationen zur Immobilie: Detaillierte Einblicke in dieses Objekt.
Zurück zur Übersicht

Objektstandort

1020 Wien, Meiereistraße

Directions Icon Fahrtzeit berechnen
Preisinformationen
Betriebskosten (exkl. USt.) € 445,95
Gesamtbelastung € 3.306,95
Maklerprovision:
Gemäß Erstauftraggeberprinzip bezahlt der Vermieter/Verpächter die Provision.

Objektinformationen

Objektart: Wohnung
Nutzungsart: Wohnen
Bauart: Neubau
Zustand: Erstbezug
Baujahr: 2025
barrierefrei: Ja

Rauminformationen & Flächen

Wohnfläche: ca. 95,37 m²
Loggiafläche: ca. 20,94 m²
Anzahl Loggias: 1
Anzahl Zimmer: 4
Anzahl WC: 2
Anzahl Bäder: 2

Ausstattung

Boden: Fliesen, Parkett
Befeuerung: Fernwärme
Heizungsart: Fußbodenheizung
Küche: Wohnküche / offene Küche
Fahrstuhl: Personenaufzug
Balkon: Südwestbalkon / -terrasse
Bad: Dusche, Badewanne
Stellplatzart: Tiefgarage
Extras: Rollstuhlgerecht, Swimmingpool, Wasch- / Trockenraum, Sporteinrichtungen, Wellnessbereich, Abstellraum, Fahrradraum
Energietyp: Neubaustandard
WCs: Gäste-WC

Beschreibung *

GRÜNBLICK im Viertel Zwei! Exklusive 4-Zimmerwohnung mit 20 m² Loggia

Im Projekt Grünblick in der Meiereistraße erwartet Sie eine 4-Zimmer-Wohnung mit ca. 95 m² Wohnfläche und 20 m² Loggia, die modernes Wohnen mit spürbarer Lebensqualität verbindet.

Schon beim Betreten der Wohnung zeigt sich der klare, familienfreundliche Grundriss: Ein einladender Vorraum führt Sie in den zentralen Wohnbereich, der als Herzstück der Wohnung Raum für gemeinsames Kochen, Essen und Entspannen bietet. Große Fensterflächen sorgen dabei für ein helles, offenes Wohngefühl und schaffen eine angenehme Verbindung zwischen Innen und Außen.
Die knapp 95 m² große Wohnung verfügt zusätzlich über drei separat begehbare Zimmer, die flexibel nutzbar sind – ob als Schlafzimmer, Kinderzimmer, Homeoffice oder Gästezimmer. So passt sich das Zuhause Ihrem Leben an, nicht umgekehrt.
Während der Wohn-/Essbereich zum Zusammenkommen einlädt, bieten die Zimmer ruhige, private Bereiche für jedes Familienmitglied.
Ein weiteres Highlight ist die Freifläche, von der sich nicht nur ein herrlicher Blick über die Trabrennbahn, sondern auch ein weiter Blick über die Stadt eröffnet  – vorbei am ehrwürdigen Rathaus, dem stolzen Stephansdom und bis hin zum lebendigen Prater – die 20 m² große Loggia erweitern den Wohnraum nach draußen und machen den Alltag luftiger: Frühstück in der Morgensonne, ein Glas Wein am Abend oder ein Rennen auf der Trabrennbahn Krieau.
Zwei Badezimmer, ein Abstellraum und ein zusätzliches WC runden die Wohnung ab.

Mit dem Projekt "Grünblick" entstand ein Beispiel für zeitgemäßes, nachhaltiges und hochwertiges Wohnen im urbanen Raum — mit Fokus auf Energieeffizienz, Qualität und Lebensqualität.
Die Mischung aus Wohnen, Freizeit, Nahversorgung und Nähe zur Natur (Grüner Prater, Grünflächen) macht das "Viertel Zwei" mit dem "Grünblick" zu einem lebendigen und attraktiven Stadtquartier. 
Die Highlights des Projekts sind unter anderem der Concierge-Service, der Wellnessbereich am Rooftop mit spektakulärem Outdoor-Pool, Fitnessraum, Panorama-Sauna sowie Dining Room mit Außenterrasse. 

Garagenstellplätze können zusätzlich angemietet werden. Ein Stellplatz € 250 brutto / Monat.

Ausstattung:

  • vollausgestattete Küche mit allen Einbaugeräte (wird im Februar 2026 eingebaut)
  • großer Wohnbereich
  • 3 separat begehbare Zimmer, flexibel nutzbar
  • per Smartphone steuerbare Jalousien, sowie Heizungen (Smarthomesystem) 
  • Große Fensterflächen für viel Licht
  • Hochwertige Parkettböden in Wohnräumen
  • Zeitlose Fliesen in den Sanitärräumen
  • Badezimmer mit Wanne
  • Badezimmer mit Dusche und WC
  • zusätzliches WC
  • Fußbodenheizung
  • Kellerabteil
  • Energieeffiziente Bauweise

öffentliche Verkehrsanbindung:

  • U-Bahn Linie U2 "Stadion"
  • Buslinie 82A
  • Straßenbahnlinie 18 (Fertigstellung Herbst 2026) 

Beziehbar ab 01.02.2026
Befristung: 5 Jahre, 1 Jahr Kündigungsverzicht, 3 Monate Kündigungsfrist
Nebenkosten: 3BMM Kaution, Vertragserrichtungsgebühr

Wir weisen darauf hin, dass zwischen dem Vermittler und dem zu vermittelnden Dritten ein familiäres oder wirtschaftliches Naheverhältnis besteht.

Der Immobilienmakler erklärt, dass er – entgegen dem in der Immobilienwirtschaft üblichen Geschäftsgebrauch des Doppelmaklers – einseitig nur für den Vermieter tätig ist.


Infrastruktur / Entfernungen

Gesundheit
Arzt <1.500m
Apotheke <250m
Klinik <500m
Krankenhaus <2.250m

Kinder & Schulen
Schule <500m
Kindergarten <750m
Universität <1.000m
Höhere Schule <2.250m

Nahversorgung
Supermarkt <500m
Bäckerei <250m
Einkaufszentrum <250m

Sonstige
Geldautomat <1.000m
Bank <1.000m
Post <1.250m
Polizei <1.500m

Verkehr
Bus <250m
U-Bahn <250m
Straßenbahn <1.250m
Bahnhof <250m
Autobahnanschluss <1.250m

Angaben Entfernung Luftlinie / Quelle: OpenStreetMap


*Der Vertrag kommt nicht mit der INFINA Credit Broker GmbH zustande. Das Objekt wird von einem externen Immobilienunternehmen angeboten. Allfällige aus dem Vertragsabschluss resultierende Rechte sind ausschließlich gegenüber dem anbietenden Immobilienunternehmen geltend zu machen. Wir weisen Sie darauf hin, dass die gemachten Angaben und Informationen lediglich unverbindliche Vorabinformationen sind und daher ohne Gewähr erfolgen. Der Immobilienmakler erklärt, dass er – entgegen dem in der Immobilienwirtschaft üblichen Geschäftsgebrauch des Doppelmaklers – einseitig nur für den Vermieter tätig ist.

Energieausweis & Heizung
HWB (kWh/m2/Jahr): 21.8
HWB Energieklasse A
fGEE: 0.72
fGEE Energieklasse A
Gültig bis: 25.03.2030
Heizung: Fußbodenheizung
Befeuerung: Fernwärme
Dokumente & Videos Pläne
Partner von Infina EHL Wohnen Immobilienmakler
Gesundheit:
Krankenhaus: 2130 m
Apotheke: 280 m
Arzt: 1500 m
Klinik: 610 m
Nahversorgung:
Supermarkt: 300 m
Einkaufszentrum: 280 m
Bäckerei: 210 m
Sonstige:
Bank: 940 m
Geldautomat: 220 m
Post: 1220 m
Polizei: 1480 m
Kinder & Schulen:
Kindergarten: 500 m
Höhere Schule: 1980 m
Universität: 820 m
Schule: 260 m
Verkehr:
Autobahnanschluss: 1030 m
Straßenbahn: 1030 m
Bus: 50 m
U-Bahn: 240 m
Bahnhof: 250 m

Jetzt Experten kontaktieren

Weitere interessante Objekte

Partner von Infina
Jetzt anfragen
ca. 115,00 m² Wohnfläche 3 Zimmer
2.091 €
Partner von Infina
Jetzt anfragen
1.999 €
Partner von Infina
Jetzt anfragen
1.995 €
Partner von Infina
Jetzt anfragen
ca. 82,83 m² Wohnfläche 3 Zimmer
2.014 €

Immobilie kaufen: Das passende Angebot finden

Der Kauf einer Immobilie ist eine wichtige Entscheidung – sei es für die Eigennutzung oder zur Vermietung. Mit unserem Portal unterstützen wir Sie dabei, die richtige Immobilie zu kaufen. Nutzen Sie unsere Suchmöglichkeiten, um gezielt eine Immobilie zu suchen, die Ihren Vorstellungen entspricht. Unsere Immobilienangebote decken eine breite Palette ab: vom Einfamilienhaus über die Eigentumswohnung bis hin zum Grundstück für Ihr Bauvorhaben. Mit uns können Sie sicher und unkompliziert Eigentum erwerben – ob für die private Nutzung oder als Investition als Immobilie. Erkunden Sie jetzt unsere Angebote und finden Sie die perfekte Lösung, die zu Ihren Wohn- oder Anlagezielen passt.

Fundiertes Wissen für Ihre Entscheidung, eine Immobilie zu kaufen

Bereiten Sie sich bestens vor: Infina stellt Ihnen kostenlos über 300 Ratgeber und Beiträge zu den Themen Immobilie, Finanzierung, Zinsen und Recht zur Verfügung. Nutzen Sie unser umfassendes Wissen, um richtige Entscheidungen zu treffen.

Bei jedem Kauf einer Immobilie oder eines Grundstücks ist es wichtig, die passende Finanzierung zu finden. Mit seiner eigenen Vertriebsorganisation ist Infina als Wohnbau-Finanz-Experte an über 100 Standorten in ganz Österreich vertreten und vermittelt Finanzierungen an über 120 Banken und Bausparkassen. Nutzen Sie unseren kostenlosen Kreditvergleich für den passenden Wohnkredit: 

Kreditvergleich

Kostenlos und unverbindlich

Immobilie mieten: Ihr neues Zuhause wartet

Die Entscheidung, eine Immobilie zu mieten, bietet Flexibilität und zahlreiche Möglichkeiten – ob eine Wohnung für den Alltag oder ein Haus für die Familie. Bei Infina können Sie gezielt sowohl eine Wohnung suchen als auch ein Haus suchen, das Ihren Bedürfnissen entspricht. Unsere Angebote erleichtern es Ihnen, eine Mietwohnung zu suchen und Ihre ideale Wohnung finden zu können. Entdecken Sie vielfältige Optionen, um die passende Immobilie zu finden und Ihre Wohnträume zu verwirklichen. Starten Sie noch heute Ihre Suche und profitieren Sie von einer großen Auswahl an Mietobjekten in Ihrer Wunschregion.

Hilfreiche Informationen zu Immobilie mieten

Starten Sie gut vorbereitet in Ihre Mietentscheidung: Infina stellt Ihnen vielseitige Ratgeber und Beiträge zu Themen wie Immobilie, Mietrecht, Finanzierung und Wohntrends zur Verfügung. Verschaffen Sie sich einen Überblick über alle relevanten Aspekte und gestalten Sie Ihren Weg ins neue Zuhause einfacher und sicherer.

Erfolgreich zur neuen Immobilie

Mit Infina haben Sie einen verlässlichen Partner an Ihrer Seite, der Sie von der ersten Beratung bis zum erfolgreichen Abschluss ganzheitlich unterstützt. Erfahren Sie hier, wie wir gemeinsam Ihren Immobilienerfolg gestalten.

Starten Sie jetzt Ihre Immobiliensuche

Nach zahlreichen Informationen rund um die Themen Immobilie kaufen und Immobilie mieten können Sie nun den nächsten Schritt machen. Starten Sie die Immobiliensuche, um Ihr neues Zuhause oder Ihre nächste Investition zu finden und entdecken Sie die passenden Angebote:

Das innovative Portal für Immobilien und Finanzierung 

Als Kunde von Infina profitieren Sie von unserer umfangreichen und unabhängigen Expertise als Teil einer wachsenden, unabhängigen Immobilien- und Finanzierungsnetzwerkgruppe. Bereits 50.000 Kunden hat Infina erfolgreich bei Ihrem Vorhaben begleitet. Infina bietet Ihnen eine umfassende Beratung in allen Bereichen rund um Ihre Immobilienvorhaben:

Die passende Finanzierung für Ihre Immobilie

Mit Infina erhalten Sie nicht nur eine unabhängige Beratung, sondern auch die passende Finanzierungslösung für Ihre Immobilie. Aus den Angeboten von über 120 Banken und Bausparkassen vermitteln wir Ihnen das, was perfekt zu Ihren Bedürfnissen passt. Wir begleiten Sie professionell und verlässlich – von der ersten Beratung bis zum erfolgreichen Abschluss.

Kreditvergleich

Kostenlos und unverbindlich

Wir holen das Beste für Sie heraus

Verkaufen Sie Ihre Immobilie mit uns & profitieren Sie von unserer Expertise. Wir bringen Ihre Immobilie optimal auf den Markt & erzielen den besten Preis. 

Kontaktieren Sie uns jetzt.

Jetzt Experten kontaktieren
Junge Frau im pinken Blazer hält ein Modellhaus in der linken Hand und zeigt mit der rechten Hand nach oben, als hätte sie eine Idee. Sie lächelt und blickt leicht nach oben – symbolisch für Inspiration oder Immobilienberatung.