INFINA LOGO
Entspannt zur Immobilie Persönlich & kompetent beraten Finanzierbarkeit sofort überprüfbar
1.363 € Gesamtmiete inkl. USt.
Kostenlos &
unverbindlich.
Kontakt aufnehmen

U-Bahn U1 Kagran - Sauna - Loggia - Fitnessraum - Deckenkühlung - Pool am Dach

Obj. Nr.: 44419

ca. 56,40 m² Nutzfläche 2 Zimmer
Partner von Infina Alexander Ringsmuth Immobilien Immobilienmakler 
Partner von Infina Alexander Ringsmuth Immobilien Immobilienmakler
1.363 € Gesamtmiete inkl. USt. Mietkaution finanzieren?
Jetzt beantragen
Mehr Informationen zur Immobilie: Detaillierte Einblicke in dieses Objekt.
Zurück zur Übersicht

Objektstandort

1220 Wien Adresse anfragen

Directions Icon Fahrtzeit berechnen
Preisinformationen
Gesamtbelastung € 1.362,73
Maklerprovision:
Gemäß Erstauftraggeberprinzip bezahlt der Vermieter/Verpächter die Provision.

Objektinformationen

Objektart: Wohnung
Nutzungsart: Wohnen
Zustand: Erstbezug

Rauminformationen & Flächen

Wohnfläche: ca. 50,62 m²
Nutzfläche: ca. 56,40 m²
Loggiafläche: ca. 5,78 m²
Anzahl Loggias: 1
Anzahl Zimmer: 2
Anzahl WC: 1
Anzahl Bäder: 1

Ausstattung

Boden: Fliesen, Parkett
Befeuerung: Luftwärmepumpe
Heizungsart: Fußbodenheizung
Küche: Wohnküche / offene Küche, Einbauküche
Fahrstuhl: Personenaufzug
Bad: Dusche
Stellplatzart: Garage, Tiefgarage, Parkplatz
Extras: Sauna, Swimmingpool, Wasch- / Trockenraum, Sporteinrichtungen, Wellnessbereich, Abstellraum, Fahrradraum
Belüftung: Klimaanlage
Fenster: Rollladen
Dachform: Flachdach
Bauweise: Massiv
Ausbaustufe: Schlüsselfertig mit Keller

Lage

Das Projekt befindet sich an einem zentraler Punkt in Donaustadt und bietet eine Vielzahl von Annehmlichkeiten in unmittelbarer Nähe. Diese Gegend ist sowohl für ihre städtischen Vorzüge als auch für ihre Nähe zur Natur bekannt. In der Umgebung des Hauses gibt es verschiedene Einkaufsmöglichkeiten, darunter Supermärkte, Geschäfte und Märkte, die den täglichen Bedarf abdecken. Restaurants, Cafés und Lokale bieten eine breite Palette von kulinarischen Genüssen, von internationaler Küche bis hin zu lokalen Spezialitäten. Die Verkehrsanbindung in diesem Stadtteil ist ausgezeichnet. Die U-Bahn-Linie U1 verläuft durch Donaustadt und bietet eine schnelle Anbindung an das Stadtzentrum und andere wichtige Bereiche von Wien. Busse und Straßenbahnen sorgen für eine bequeme Fortbewegung innerhalb des Bezirks. Ein Highlight der Gegend ist die Nähe zur Donau und dem Donaupark. Dieser grüne Park bietet eine entspannte Umgebung zum Spazierengehen, Radfahren und Picknicken. Darüber hinaus bietet die Donau eine malerische Kulisse und die Möglichkeit zu Wassersportaktivitäten.

Beschreibung *

Donauzentrum - Ausgezeichnete Verkehrsanbindung - Fußbodenheizung - Hochwertige Ausstattung

In beliebter Wiener Wohnlage, im 22. Gemeindebezirk, wurde im Herbst 2022 ein exklusives Wohnbauprojekt in schlüsselfertiger Ausführung errichtet. Der Baukörper zeichnet sich durch zeitlos modernes Design mit gegliederter Fassade aus. Die großzügig und offen angelegten Wohnräume ermöglichen eine flexible Platzierung Ihrer Einrichtung und somit die individuell optimierbare Raumnutzung. Großflächige Fenster stellen die bestmögliche Nutzung von Tageslicht sicher und gewähren einen freien Blick in die Umgebung.

Kurzinfo Ausführung und Ausstattung:

  • Vollwärmeschutzfassade 
  • Erstbezug
  • Außenfläche
  • Fußbodenheizung
  • Parkettboden Eiche Natur
  • Hochwertiger Fliesenbelag 
  • Mehrfachverglasung aller Glaselemente
  • Glaselemente mit Sonnenschutzsystemen, Solar-Beschattung oder elektrischen Raffstores
  • voll ausgestattete Sanitäreinrichtung
  • moderne Gegensprechanlage

Allgemeinflächen des Hauses:

  • Lobby
  • Fahrradraum
  • Fitnessraum mit modernen Fitnessgeräten zur kostenlosen Benutzung der Bewohner 
  • hauseigene Sauna
  • Pool am Dach
  • Partyraum mit Küche
  • Jugendraum
  • Waschraum
  • Einlagerungsräume
  • Kinderspielplatz

Öffentliche Verkehrsmittel:

U-Bahn - U1 Kagran - ca. 1 Gehminute

Straßenbahnlinien - 25, 26 - ca. 2 Gehminuten

Buslinien - 22A, 26A, 27A, 93A, 94A, N26 - ca. 2 Gehminuten

Flughafen Wien Terminal - Vienna Airport Lines 3 - ca. 2 Gehminuten

Energieausweis:

Der Heizwärmebedarf beträgt 25,6 kWh/m2a welcher der Klasse B entspricht.


Die Wohnungen werden befristet auf 5 Jahre vermietet.

Gerne steht Ihnen Herr Alexandru Filimon für weitere Fragen bzw. flexibel gestaltbare Besichtigungstermine unter 0660 285 0330  zur Verfügung.  

www.ringsmuth-immobilien.at

Irrtum und Änderungen vorbehalten!

TOP 103

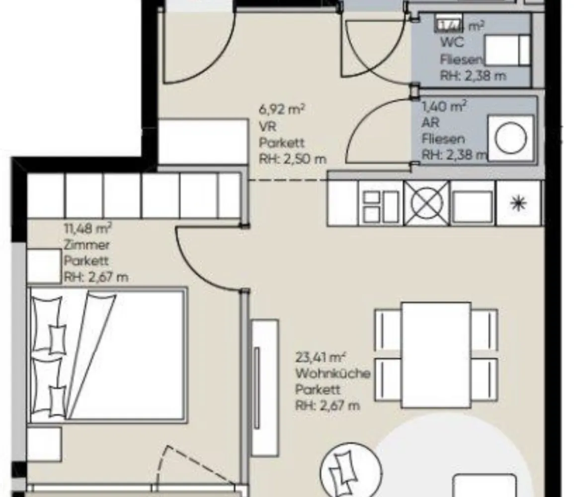
Die Wohnung besteht aus 2  Zimmern,  mit knapp  51m² Wohnfläche  sowie einer eigenen  Loggia  mit ca. 6m²  und   gliedert sich in folgende, funktionelle Raumaufteilung:

  • Eingangsbereich / Vorraum
  • Küche (die Küche ist voll ausgestattet)
  • Großzügige Wohnküche mit Loggiazugang
  • Schlafzimmer
  • Badezimmer mit Dusche und Waschbecken
  • Getrennte WC mit Waschbecken
  • Abstellraum mit Waschmaschinenanschluss
  • Loggia

Aufteilung der Kosten:

Gesamtmiete  : 1.499€  (inklusive Betriebskosten und Umsatzsteuer)

Kaution : 3 Bruttomonatsmieten

Kosten für die Mietvertragserrichtung : 360,-- Euro (zzgl. 20% USt.)

Die Wohnung wird befristet auf 5 Jahre vermietet.

Gerne steht Ihnen Herr Alexandru Filimon für weitere Fragen bzw. flexibel gestaltbare Besichtigungstermine unter 0660 285 0330 zur Verfügung.  

www.ringsmuth-immobilien.at

Der Immobilienmakler erklärt, dass er – entgegen dem in der Immobilienwirtschaft üblichen Geschäftsgebrauch des Doppelmaklers – einseitig nur für den Vermieter tätig ist.


Infrastruktur / Entfernungen

Gesundheit
Arzt <500m
Apotheke <500m
Klinik <2.500m
Krankenhaus <3.500m

Kinder & Schulen
Schule <500m
Kindergarten <500m
Universität <1.500m
Höhere Schule <1.500m

Nahversorgung
Supermarkt <500m
Bäckerei <500m
Einkaufszentrum <500m

Sonstige
Geldautomat <500m
Bank <500m
Post <500m
Polizei <500m

Verkehr
Bus <500m
U-Bahn <500m
Straßenbahn <500m
Bahnhof <500m
Autobahnanschluss <2.500m

Angaben Entfernung Luftlinie / Quelle: OpenStreetMap


*Der Vertrag kommt nicht mit der INFINA Credit Broker GmbH zustande. Das Objekt wird von einem externen Immobilienunternehmen angeboten. Allfällige aus dem Vertragsabschluss resultierende Rechte sind ausschließlich gegenüber dem anbietenden Immobilienunternehmen geltend zu machen. Wir weisen Sie darauf hin, dass die gemachten Angaben und Informationen lediglich unverbindliche Vorabinformationen sind und daher ohne Gewähr erfolgen. Der Immobilienmakler erklärt, dass er – entgegen dem in der Immobilienwirtschaft üblichen Geschäftsgebrauch des Doppelmaklers – einseitig nur für den Vermieter tätig ist.

Energieausweis & Heizung
HWB (kWh/m2/Jahr): 25.6
HWB Energieklasse B
Gültig bis: 31.07.2032
Heizung: Fußbodenheizung
Befeuerung: Luftwärmepumpe
Dokumente & Videos Pläne
Partner von Infina Alexander Ringsmuth Immobilien Immobilienmakler
Sonstige:
Post: 430 m
Geldautomat: 330 m
Polizei: 440 m
Bank: 340 m
Nahversorgung:
Supermarkt: 380 m
Einkaufszentrum: 1810 m
Bäckerei: 480 m
Gesundheit:
Apotheke: 350 m
Klinik: 1730 m
Arzt: 320 m
Krankenhaus: 2310 m
Kinder & Schulen:
Universität: 2490 m
Höhere Schule: 2450 m
Schule: 480 m
Kindergarten: 240 m
Verkehr:
Autobahnanschluss: 1660 m
U-Bahn: 380 m
Bus: 320 m
Straßenbahn: 440 m
Bahnhof: 400 m

Jetzt Experten kontaktieren

Weitere interessante Objekte

Partner von Infina
Jetzt anfragen
ca. 45,00 m² Wohnfläche 2 Zimmer
250.000 €
Partner von Infina
Jetzt anfragen
397.000 €

Immobilie kaufen: Das passende Angebot finden

Der Kauf einer Immobilie ist eine wichtige Entscheidung – sei es für die Eigennutzung oder zur Vermietung. Mit unserem Portal unterstützen wir Sie dabei, die richtige Immobilie zu kaufen. Nutzen Sie unsere Suchmöglichkeiten, um gezielt eine Immobilie zu suchen, die Ihren Vorstellungen entspricht. Unsere Immobilienangebote decken eine breite Palette ab: vom Einfamilienhaus über die Eigentumswohnung bis hin zum Grundstück für Ihr Bauvorhaben. Mit uns können Sie sicher und unkompliziert Eigentum erwerben – ob für die private Nutzung oder als Investition als Immobilie. Erkunden Sie jetzt unsere Angebote und finden Sie die perfekte Lösung, die zu Ihren Wohn- oder Anlagezielen passt.

Fundiertes Wissen für Ihre Entscheidung, eine Immobilie zu kaufen

Bereiten Sie sich bestens vor: Infina stellt Ihnen kostenlos über 300 Ratgeber und Beiträge zu den Themen Immobilie, Finanzierung, Zinsen und Recht zur Verfügung. Nutzen Sie unser umfassendes Wissen, um richtige Entscheidungen zu treffen.

Bei jedem Kauf einer Immobilie oder eines Grundstücks ist es wichtig, die passende Finanzierung zu finden. Mit seiner eigenen Vertriebsorganisation ist Infina als Wohnbau-Finanz-Experte an über 100 Standorten in ganz Österreich vertreten und vermittelt Finanzierungen an über 120 Banken und Bausparkassen. Nutzen Sie unseren kostenlosen Kreditvergleich für den passenden Wohnkredit: 

Kreditvergleich

Kostenlos und unverbindlich

Immobilie mieten: Ihr neues Zuhause wartet

Die Entscheidung, eine Immobilie zu mieten, bietet Flexibilität und zahlreiche Möglichkeiten – ob eine Wohnung für den Alltag oder ein Haus für die Familie. Bei Infina können Sie gezielt sowohl eine Wohnung suchen als auch ein Haus suchen, das Ihren Bedürfnissen entspricht. Unsere Angebote erleichtern es Ihnen, eine Mietwohnung zu suchen und Ihre ideale Wohnung finden zu können. Entdecken Sie vielfältige Optionen, um die passende Immobilie zu finden und Ihre Wohnträume zu verwirklichen. Starten Sie noch heute Ihre Suche und profitieren Sie von einer großen Auswahl an Mietobjekten in Ihrer Wunschregion.

Hilfreiche Informationen zu Immobilie mieten

Starten Sie gut vorbereitet in Ihre Mietentscheidung: Infina stellt Ihnen vielseitige Ratgeber und Beiträge zu Themen wie Immobilie, Mietrecht, Finanzierung und Wohntrends zur Verfügung. Verschaffen Sie sich einen Überblick über alle relevanten Aspekte und gestalten Sie Ihren Weg ins neue Zuhause einfacher und sicherer.

Erfolgreich zur neuen Immobilie

Mit Infina haben Sie einen verlässlichen Partner an Ihrer Seite, der Sie von der ersten Beratung bis zum erfolgreichen Abschluss ganzheitlich unterstützt. Erfahren Sie hier, wie wir gemeinsam Ihren Immobilienerfolg gestalten.

Starten Sie jetzt Ihre Immobiliensuche

Nach zahlreichen Informationen rund um die Themen Immobilie kaufen und Immobilie mieten können Sie nun den nächsten Schritt machen. Starten Sie die Immobiliensuche, um Ihr neues Zuhause oder Ihre nächste Investition zu finden und entdecken Sie die passenden Angebote:

Das innovative Portal für Immobilien und Finanzierung 

Als Kunde von Infina profitieren Sie von unserer umfangreichen und unabhängigen Expertise als Teil einer wachsenden, unabhängigen Immobilien- und Finanzierungsnetzwerkgruppe. Bereits 50.000 Kunden hat Infina erfolgreich bei Ihrem Vorhaben begleitet. Infina bietet Ihnen eine umfassende Beratung in allen Bereichen rund um Ihre Immobilienvorhaben:

Die passende Finanzierung für Ihre Immobilie

Mit Infina erhalten Sie nicht nur eine unabhängige Beratung, sondern auch die passende Finanzierungslösung für Ihre Immobilie. Aus den Angeboten von über 120 Banken und Bausparkassen vermitteln wir Ihnen das, was perfekt zu Ihren Bedürfnissen passt. Wir begleiten Sie professionell und verlässlich – von der ersten Beratung bis zum erfolgreichen Abschluss.

Kreditvergleich

Kostenlos und unverbindlich

Wir holen das Beste für Sie heraus

Verkaufen Sie Ihre Immobilie mit uns & profitieren Sie von unserer Expertise. Wir bringen Ihre Immobilie optimal auf den Markt & erzielen den besten Preis. 

Kontaktieren Sie uns jetzt.

Jetzt Experten kontaktieren
Junge Frau im pinken Blazer hält ein Modellhaus in der linken Hand und zeigt mit der rechten Hand nach oben, als hätte sie eine Idee. Sie lächelt und blickt leicht nach oben – symbolisch für Inspiration oder Immobilienberatung.