INFINA LOGO
Entspannt zur Immobilie Persönlich & kompetent beraten Finanzierbarkeit sofort überprüfbar
768 € Gesamtmiete inkl. USt.
Kostenlos &
unverbindlich.
Kontakt aufnehmen

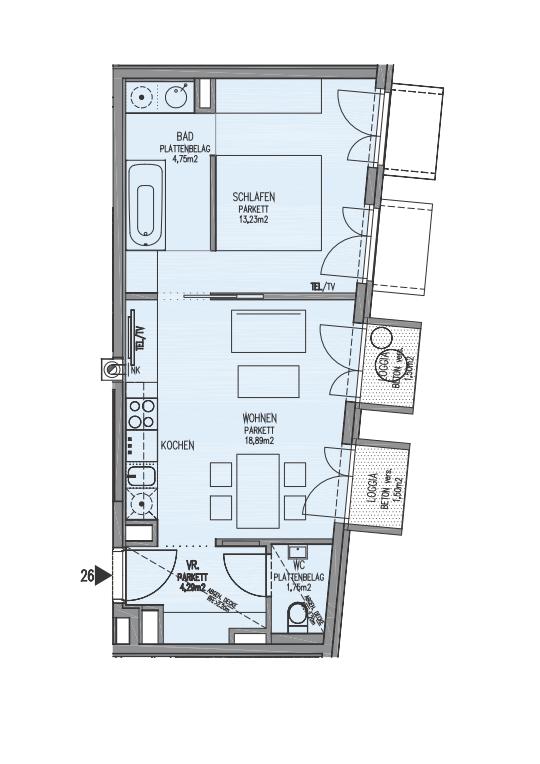
Perfekt aufgeteilte 2 Zimmerwohnung mit Balkon

Obj. Nr.: 40970

ca. 42,91 m² Wohnfläche 2 Zimmer
Partner von Infina EHL Wohnen Immobilienmakler 
Partner von Infina EHL Wohnen Immobilienmakler
768 € Gesamtmiete inkl. USt. Mietkaution finanzieren?
Jetzt beantragen
Mehr Informationen zur Immobilie: Detaillierte Einblicke in dieses Objekt.
Zurück zur Übersicht

Objektstandort

1100 Wien, Davidgasse

Directions Icon Fahrtzeit berechnen
Preisinformationen
Betriebskosten (exkl. USt.) € 105,52
Gesamtbelastung € 768,18
Maklerprovision:
Gemäß Erstauftraggeberprinzip bezahlt der Vermieter/Verpächter die Provision.

Objektinformationen

Objektart: Wohnung
Nutzungsart: Wohnen
Bauart: Neubau
Zustand: gepflegt

Rauminformationen & Flächen

Wohnfläche: ca. 42,91 m²
Loggiafläche: ca. 3,00 m²
Anzahl Loggias: 2
Anzahl Zimmer: 2
Anzahl WC: 1
Anzahl Bäder: 1

Ausstattung

Befeuerung: Fernwärme
Heizungsart: Fußbodenheizung
Küche: Wohnküche / offene Küche, Einbauküche
Fahrstuhl: Personenaufzug
Balkon: Westbalkon / -terrasse
Bad: Badewanne

Beschreibung *

Perfekt aufgeteilte 2 Zimmerwohnung mit Loggia

Die Wohnung ist aufgrund der optimalen Raumaufteilung sowohl als Paarwohnung als auch für den Single bestens geeignet und besteht aus einem Wohnzimmer mit voll ausgestatteter Küche, einem Schlafzimmer mit direkt angrenzendem Badezimmer, einem Vorraum, einer separaten Toilette und zwei Loggien.

Gleich ums Eck, nur einen Steinwurf vom Reumannplatz entfernt, ist man von hier aus in exakt 10 Minuten am Stephansplatz, in einer Minute zu Fuß auf der Shoppingmeile Favoritenstraße und im Handumdrehen in Wiens legendärstem Eissalon. Wer Erholung oder sportliche Betätigung sucht, geht nebenan ins historische Amalienbad. Eine höhere Lehranstalt für wirtschaftliche Berufe und die Volkshochschule Favoriten sorgen für Aus- und Weiterbildung im unmittelbaren Umfeld.

Auch verkehrstechnisch gesehen befindet sich das Objekt in guter Lage. Die U-Bahn Linie U1 und diverse Bus- und Straßenbahnlinien sind in kürzester Zeit zu erreichen.

Ausstattung

  • vollausgestattete Küche
  • Bad mit Wanne, Waschmaschinenanschluss und Handtuchheizkörper
  • hochwertiger Parkettboden in den Wohnräumen
  • helle Fliesen in den Nassräumen


Ein Lift, Kellerabteile, ein Kinderwagen- und Fahrradabstellraum sowie eine Waschküche befinden sich ebenfalls im Haus. In der hauseigenen Tiefgarage besteht außerdem die Möglichkeit einer Stellplatzanmietung.

Öffentliche Verkehrsanbindung:
U-Bahn Linie U1 - "Reumannplatz"
Straßenbahnlinie 6, 67
Buslinien 70A
Regionalbuslinien 266, 271

Heizung und Warmwasser werden nach Verbrauch abgerechnet.

Befristung: 5 Jahre,  1 Jahr Kündigungsverzicht, 1 Monate Kündigungsfrist

Nebenkosten:
3 BMM Kaution, Vertragserrichtungsgebühr

Wir weisen darauf hin, dass zwischen dem Vermittler und dem zu vermittelnden Dritten ein familiäres oder wirtschaftliches Naheverhältnis besteht.

Der Immobilienmakler erklärt, dass er – entgegen dem in der Immobilienwirtschaft üblichen Geschäftsgebrauch des Doppelmaklers – einseitig nur für den Vermieter tätig ist.


Infrastruktur / Entfernungen

Gesundheit
Arzt <250m
Apotheke <250m
Klinik <500m
Krankenhaus <2.000m

Kinder & Schulen
Schule <250m
Kindergarten <500m
Universität <750m
Höhere Schule <2.500m

Nahversorgung
Supermarkt <250m
Bäckerei <250m
Einkaufszentrum <1.000m

Sonstige
Geldautomat <250m
Bank <250m
Post <250m
Polizei <750m

Verkehr
Bus <250m
U-Bahn <250m
Straßenbahn <250m
Bahnhof <250m
Autobahnanschluss <1.250m

Angaben Entfernung Luftlinie / Quelle: OpenStreetMap


*Der Vertrag kommt nicht mit der INFINA Credit Broker GmbH zustande. Das Objekt wird von einem externen Immobilienunternehmen angeboten. Allfällige aus dem Vertragsabschluss resultierende Rechte sind ausschließlich gegenüber dem anbietenden Immobilienunternehmen geltend zu machen. Wir weisen Sie darauf hin, dass die gemachten Angaben und Informationen lediglich unverbindliche Vorabinformationen sind und daher ohne Gewähr erfolgen.

Energieausweis & Heizung
HWB (kWh/m2/Jahr): 38.4
HWB Energieklasse: Energieeffizienzklasse B
fGEE: 0.85
fGEE Energieklasse: Energieeffizienzklasse B
Gültig bis: 21.04.2035
Heizung: Fußbodenheizung
Befeuerung: Fernwärme
Dokumente & Videos Pläne Dokument 1 Lagereport - Leibnizgasse 34
Partner von Infina EHL Wohnen Immobilienmakler
Gesundheit:
Apotheke: 170 m
Arzt: 220 m
Klinik: 290 m
Krankenhaus: 1110 m
Sonstige:
Polizei: 500 m
Post: 250 m
Geldautomat: 140 m
Bank: 250 m
Verkehr:
Autobahnanschluss: 1820 m
Bus: 170 m
Straßenbahn: 250 m
U-Bahn: 900 m
Bahnhof: 890 m
Nahversorgung:
Bäckerei: 180 m
Supermarkt: 60 m
Einkaufszentrum: 1180 m
Kinder & Schulen:
Kindergarten: 220 m
Höhere Schule: 1960 m
Universität: 1100 m
Schule: 340 m

Jetzt Experten kontaktieren

Weitere interessante Objekte

Partner von Infina
Jetzt anfragen
ca. 51,48 m² Wohnfläche 2 Zimmer
863 €
Partner von Infina
Jetzt anfragen
ca. 51,74 m² Wohnfläche 2 Zimmer
468.000 €
Partner von Infina
Jetzt anfragen
ca. 46,04 m² Wohnfläche 1,5 Zimmer
442.000 €
Partner von Infina
Jetzt anfragen
ca. 51,34 m² Wohnfläche 2 Zimmer
486.000 €
Partner von Infina
Jetzt anfragen
ca. 34,89 m² Wohnfläche 1,5 Zimmer
357.000 €
Partner von Infina
Jetzt anfragen
ca. 54,04 m² Wohnfläche 2 Zimmer
499.000 €
Partner von Infina
Jetzt anfragen
ca. 51,34 m² Wohnfläche 2 Zimmer
499.000 €

Immobilie kaufen: Das passende Angebot finden

Der Kauf einer Immobilie ist eine wichtige Entscheidung – sei es für die Eigennutzung oder zur Vermietung. Mit unserem Portal unterstützen wir Sie dabei, die richtige Immobilie zu kaufen. Nutzen Sie unsere Suchmöglichkeiten, um gezielt eine Immobilie zu suchen, die Ihren Vorstellungen entspricht. Unsere Immobilienangebote decken eine breite Palette ab: vom Einfamilienhaus über die Eigentumswohnung bis hin zum Grundstück für Ihr Bauvorhaben. Mit uns können Sie sicher und unkompliziert Eigentum erwerben – ob für die private Nutzung oder als Investition als Immobilie. Erkunden Sie jetzt unsere Angebote und finden Sie die perfekte Lösung, die zu Ihren Wohn- oder Anlagezielen passt.

Fundiertes Wissen für Ihre Entscheidung, eine Immobilie zu kaufen

Bereiten Sie sich bestens vor: Infina stellt Ihnen kostenlos über 300 Ratgeber und Beiträge zu den Themen Immobilie, Finanzierung, Zinsen und Recht zur Verfügung. Nutzen Sie unser umfassendes Wissen, um richtige Entscheidungen zu treffen.

Bei jedem Kauf einer Immobilie oder eines Grundstücks ist es wichtig, die passende Finanzierung zu finden. Mit seiner eigenen Vertriebsorganisation ist Infina als Wohnbau-Finanz-Experte an über 100 Standorten in ganz Österreich vertreten und vermittelt Finanzierungen an über 120 Banken und Bausparkassen. Nutzen Sie unseren kostenlosen Kreditvergleich für den passenden Wohnkredit: 

Kreditvergleich

Kostenlos und unverbindlich

Immobilie mieten: Ihr neues Zuhause wartet

Die Entscheidung, eine Immobilie zu mieten, bietet Flexibilität und zahlreiche Möglichkeiten – ob eine Wohnung für den Alltag oder ein Haus für die Familie. Bei Infina können Sie gezielt sowohl eine Wohnung suchen als auch ein Haus suchen, das Ihren Bedürfnissen entspricht. Unsere Angebote erleichtern es Ihnen, eine Mietwohnung zu suchen und Ihre ideale Wohnung finden zu können. Entdecken Sie vielfältige Optionen, um die passende Immobilie zu finden und Ihre Wohnträume zu verwirklichen. Starten Sie noch heute Ihre Suche und profitieren Sie von einer großen Auswahl an Mietobjekten in Ihrer Wunschregion.

Hilfreiche Informationen zu Immobilie mieten

Starten Sie gut vorbereitet in Ihre Mietentscheidung: Infina stellt Ihnen vielseitige Ratgeber und Beiträge zu Themen wie Immobilie, Mietrecht, Finanzierung und Wohntrends zur Verfügung. Verschaffen Sie sich einen Überblick über alle relevanten Aspekte und gestalten Sie Ihren Weg ins neue Zuhause einfacher und sicherer.

Erfolgreich zur neuen Immobilie

Mit Infina haben Sie einen verlässlichen Partner an Ihrer Seite, der Sie von der ersten Beratung bis zum erfolgreichen Abschluss ganzheitlich unterstützt. Erfahren Sie hier, wie wir gemeinsam Ihren Immobilienerfolg gestalten.

Starten Sie jetzt Ihre Immobiliensuche

Nach zahlreichen Informationen rund um die Themen Immobilie kaufen und Immobilie mieten können Sie nun den nächsten Schritt machen. Starten Sie die Immobiliensuche, um Ihr neues Zuhause oder Ihre nächste Investition zu finden und entdecken Sie die passenden Angebote:

Das innovative Portal für Immobilien und Finanzierung 

Als Kunde von Infina profitieren Sie von unserer umfangreichen und unabhängigen Expertise als Teil einer wachsenden, unabhängigen Immobilien- und Finanzierungsnetzwerkgruppe. Bereits 50.000 Kunden hat Infina erfolgreich bei Ihrem Vorhaben begleitet. Infina bietet Ihnen eine umfassende Beratung in allen Bereichen rund um Ihre Immobilienvorhaben:

Die passende Finanzierung für Ihre Immobilie

Mit Infina erhalten Sie nicht nur eine unabhängige Beratung, sondern auch die passende Finanzierungslösung für Ihre Immobilie. Aus den Angeboten von über 120 Banken und Bausparkassen vermitteln wir Ihnen das, was perfekt zu Ihren Bedürfnissen passt. Wir begleiten Sie professionell und verlässlich – von der ersten Beratung bis zum erfolgreichen Abschluss.

Kreditvergleich

Kostenlos und unverbindlich

Wir holen das Beste für Sie heraus

Verkaufen Sie Ihre Immobilie mit uns & profitieren Sie von unserer Expertise. Wir bringen Ihre Immobilie optimal auf den Markt & erzielen den besten Preis. 

Kontaktieren Sie uns jetzt.

Jetzt Experten kontaktieren
Junge Frau im pinken Blazer hält ein Modellhaus in der linken Hand und zeigt mit der rechten Hand nach oben, als hätte sie eine Idee. Sie lächelt und blickt leicht nach oben – symbolisch für Inspiration oder Immobilienberatung.