INFINA LOGO
Entspannt zur Immobilie Persönlich & kompetent beraten Finanzierbarkeit sofort überprüfbar
847 € Gesamtmiete inkl. USt.
Kostenlos &
unverbindlich.
Kontakt aufnehmen

BALKONWOHNUNG! 2-Zimmer Wohnung in 1210 Wien zu vermieten!

Obj. Nr.: 40226

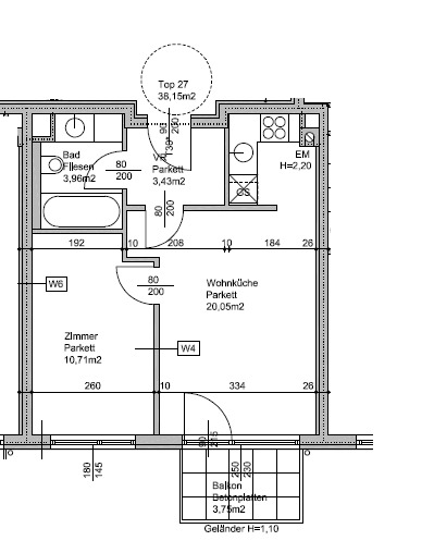
ca. 38,15 m² Wohnfläche 2 Zimmer
Partner von Infina Moritz Immobilien Immobilienmakler 
Partner von Infina Moritz Immobilien Immobilienmakler
847 € Gesamtmiete inkl. USt. Mietkaution finanzieren?
Jetzt beantragen
Mehr Informationen zur Immobilie: Detaillierte Einblicke in dieses Objekt.
Zurück zur Übersicht

Objektstandort

1210 Wien Adresse anfragen

Directions Icon Fahrtzeit berechnen
Preisinformationen
Betriebskosten (exkl. USt.) € 83,93
Gesamtbelastung € 846,93
Maklerprovision:
Gemäß Erstauftraggeberprinzip bezahlt der Vermieter/Verpächter die Provision.

Objektinformationen

Objektart: Wohnung
Nutzungsart: Wohnen
Bauart: Neubau
Zustand: gepflegt
barrierefrei: Ja

Rauminformationen & Flächen

Wohnfläche: ca. 38,15 m²
Anzahl Zimmer: 2
Anzahl WC: 1
Anzahl Bäder: 1

Ausstattung

Boden: Fliesen, Laminat, Parkett
Befeuerung: Gas
Heizungsart: Zentralheizung
Küche: Einbauküche
Fahrstuhl: Personenaufzug
Balkon: Südbalkon / -terrasse
Bad: Badewanne
Extras: Wasch- / Trockenraum, Abstellraum, Fahrradraum

Lage

Brünner Straße, 1210 Wien

Beschreibung *

Moderne 2-Zimmer-Wohnung mit Balkon – Brünner Straße 10, 1210 Wien

Zur Vermietung gelangt eine helle, modern ausgestattete 2-Zimmer-Wohnung mit einer Wohnfläche von rund 36,15 m² sowie einem Balkon mit ca. 3,75 m² , gelegen im 2. Obergeschoss eines gepflegten Neubaus in der Brünner Straße 10.
Die Wohnung überzeugt durch ihre durchdachte Raumaufteilung , hochwertige Ausstattung und die ausgezeichnete Anbindung im beliebten Wiener Bezirk Floridsdorf .

Raumaufteilung

  • Vorraum (ca. 3,43 m²) – zentral begehbar, mit Platz für Garderobe oder Kommode

  • Wohnküche (ca. 20,05 m²) – großzügig gestaltet, mit moderner Einbauküche und ausreichend Platz für Wohn- und Essbereich

  • Schlafzimmer (ca. 10,71 m²) – ruhig gelegen und gut möblierbar

  • Badezimmer (ca. 3,96 m²) – mit Badewanne, Waschbecken, WC und Waschmaschinenanschluss

  • Balkon (ca. 3,75 m²) – nach außen orientiert, ideal zum Entspannen an warmen Tagen

Diese Wohnung besticht durch ihre helle Atmosphäre , den klar strukturierten Grundriss und eignet sich perfekt für Singles oder Paare , die modernen Wohnkomfort mit urbaner Lage verbinden möchten.

Ausstattung

  • Hochwertige Einbauküche mit modernen Geräten

  • Parkettboden in Wohn- und Schlafbereich, Fliesen in den Nassräumen

  • Fußbodenheizung für angenehmes Raumklima

  • Moderne Fenster mit Wärmeschutzverglasung

  • Lift im Haus , barrierefreier Zugang

  • Effizienter Neubau-Standard mit geringem Energieverbrauch

Lage & Infrastruktur

Die Wohnung liegt in der Brünner Straße 10 , einer verkehrsgünstigen und zugleich lebenswerten Lage im Herzen von Floridsdorf .
In der unmittelbaren Umgebung befinden sich zahlreiche Supermärkte (Billa, Hofer, Lidl) , Apotheken , Ärzte , Restaurants , Cafés sowie das beliebte Shopping Center Nord .
Für Freizeit und Erholung sorgen die Donauinsel , der Floridsdorfer Wasserpark und die Alte Donau , die allesamt rasch erreichbar sind.

Öffentliche Verkehrsanbindung

Die Lage bietet eine hervorragende Anbindung an das öffentliche Verkehrsnetz :

  • Straßenbahnlinien 30 und 31 – direkt vor der Haustür, mit schneller Verbindung zur U6 (Floridsdorf) und ins Stadtzentrum

  • Buslinien 30A, 36A, 36B – mit Verbindung Richtung Strebersdorf, Leopoldau und Floridsdorf Bahnhof

  • Bahnhof Floridsdorf – in wenigen Minuten erreichbar (U6, S-Bahn, Regionalzüge)

  • Rasche Anbindung an die A22 Donauuferautobahn und die B3 Richtung Innenstadt

Nebenkosten:

  • 3 Bruttomonatsmieten Kaution

Wir möchten Sie höflichst darauf hinweisen, dass der Mietvertrag jährlich an den Verbraucherpreisindex angepasst wird.

Maklervereinbarung: Wir ersuchen um Verständnis, dass wir bei Anfragen zur Objektadresse, bzw. Besichtigungstermin aufgrund neuer gesetzlicher Bestimmungen Unterlagen erst dann zusenden können, wenn Sie vorab bestätigen, dass Sie unser sofortiges Tätigwerden wünschen und über Ihre Rücktrittsrechte aufgeklärt wurden. Sie bekommen nach Ihrer schriftlichen Anfrage mit vollständiger Angabe des Namens, Anschrift und Telefonnummer ein Email, in dem Sie diese Punkte bestätigen müssen.


Haftungsausschluss: Wir weisen darauf hin, dass sämtliche Daten im vorliegenden Angebot sowie die von unserem Büro an Sie weitergegebenen Auskünfte, vom Eigentümer der Immobilie zur Verfügung gestellt wurden. Ebenso sind Informationen von Dritten (z.B. behördliche Informationen) eingeholt worden, auch für diese können wir unsererseits keinerlei Haftung für deren uneingeschränkte Richtigkeit übernehmen.

Wir weisen darauf hin, dass zwischen dem Vermittler und dem zu vermittelnden Dritten ein familiäres oder wirtschaftliches Naheverhältnis besteht.

Der Immobilienmakler erklärt, dass er – entgegen dem in der Immobilienwirtschaft üblichen Geschäftsgebrauch des Doppelmaklers – einseitig nur für den Vermieter tätig ist.


*Der Vertrag kommt nicht mit der INFINA Credit Broker GmbH zustande. Das Objekt wird von einem externen Immobilienunternehmen angeboten. Allfällige aus dem Vertragsabschluss resultierende Rechte sind ausschließlich gegenüber dem anbietenden Immobilienunternehmen geltend zu machen. Wir weisen Sie darauf hin, dass die gemachten Angaben und Informationen lediglich unverbindliche Vorabinformationen sind und daher ohne Gewähr erfolgen.

Energieausweis & Heizung
HWB (kWh/m2/Jahr): 27.2
HWB Energieklasse: Energieeffizienzklasse B
fGEE: 3.86
fGEE Energieklasse: Energieeffizienzklasse F
Gültig bis: 15.05.2030
Heizung: Zentralheizung
Befeuerung: Gas
Dokumente & Videos Pläne
Partner von Infina Moritz Immobilien Immobilienmakler
Sonstige:
Bank: 40 m
Post: 40 m
Polizei: 470 m
Geldautomat: 400 m
Nahversorgung:
Bäckerei: 100 m
Supermarkt: 110 m
Einkaufszentrum: 560 m
Gesundheit:
Apotheke: 30 m
Arzt: 30 m
Klinik: 1040 m
Krankenhaus: 1060 m
Kinder & Schulen:
Höhere Schule: 2290 m
Schule: 70 m
Kindergarten: 120 m
Universität: 1920 m
Verkehr:
Straßenbahn: 50 m
U-Bahn: 2340 m
Autobahnanschluss: 1050 m
Bus: 40 m
Bahnhof: 2330 m

Jetzt Experten kontaktieren

Weitere interessante Objekte

Immobilie kaufen: Das passende Angebot finden

Der Kauf einer Immobilie ist eine wichtige Entscheidung – sei es für die Eigennutzung oder zur Vermietung. Mit unserem Portal unterstützen wir Sie dabei, die richtige Immobilie zu kaufen. Nutzen Sie unsere Suchmöglichkeiten, um gezielt eine Immobilie zu suchen, die Ihren Vorstellungen entspricht. Unsere Immobilienangebote decken eine breite Palette ab: vom Einfamilienhaus über die Eigentumswohnung bis hin zum Grundstück für Ihr Bauvorhaben. Mit uns können Sie sicher und unkompliziert Eigentum erwerben – ob für die private Nutzung oder als Investition als Immobilie. Erkunden Sie jetzt unsere Angebote und finden Sie die perfekte Lösung, die zu Ihren Wohn- oder Anlagezielen passt.

Fundiertes Wissen für Ihre Entscheidung, eine Immobilie zu kaufen

Bereiten Sie sich bestens vor: Infina stellt Ihnen kostenlos über 300 Ratgeber und Beiträge zu den Themen Immobilie, Finanzierung, Zinsen und Recht zur Verfügung. Nutzen Sie unser umfassendes Wissen, um richtige Entscheidungen zu treffen.

Bei jedem Kauf einer Immobilie oder eines Grundstücks ist es wichtig, die passende Finanzierung zu finden. Mit seiner eigenen Vertriebsorganisation ist Infina als Wohnbau-Finanz-Experte an über 100 Standorten in ganz Österreich vertreten und vermittelt Finanzierungen an über 120 Banken und Bausparkassen. Nutzen Sie unseren kostenlosen Kreditvergleich für den passenden Wohnkredit: 

Kreditvergleich

Kostenlos und unverbindlich

Immobilie mieten: Ihr neues Zuhause wartet

Die Entscheidung, eine Immobilie zu mieten, bietet Flexibilität und zahlreiche Möglichkeiten – ob eine Wohnung für den Alltag oder ein Haus für die Familie. Bei Infina können Sie gezielt sowohl eine Wohnung suchen als auch ein Haus suchen, das Ihren Bedürfnissen entspricht. Unsere Angebote erleichtern es Ihnen, eine Mietwohnung zu suchen und Ihre ideale Wohnung finden zu können. Entdecken Sie vielfältige Optionen, um die passende Immobilie zu finden und Ihre Wohnträume zu verwirklichen. Starten Sie noch heute Ihre Suche und profitieren Sie von einer großen Auswahl an Mietobjekten in Ihrer Wunschregion.

Hilfreiche Informationen zu Immobilie mieten

Starten Sie gut vorbereitet in Ihre Mietentscheidung: Infina stellt Ihnen vielseitige Ratgeber und Beiträge zu Themen wie Immobilie, Mietrecht, Finanzierung und Wohntrends zur Verfügung. Verschaffen Sie sich einen Überblick über alle relevanten Aspekte und gestalten Sie Ihren Weg ins neue Zuhause einfacher und sicherer.

Erfolgreich zur neuen Immobilie

Mit Infina haben Sie einen verlässlichen Partner an Ihrer Seite, der Sie von der ersten Beratung bis zum erfolgreichen Abschluss ganzheitlich unterstützt. Erfahren Sie hier, wie wir gemeinsam Ihren Immobilienerfolg gestalten.

Starten Sie jetzt Ihre Immobiliensuche

Nach zahlreichen Informationen rund um die Themen Immobilie kaufen und Immobilie mieten können Sie nun den nächsten Schritt machen. Starten Sie die Immobiliensuche, um Ihr neues Zuhause oder Ihre nächste Investition zu finden und entdecken Sie die passenden Angebote:

Das innovative Portal für Immobilien und Finanzierung 

Als Kunde von Infina profitieren Sie von unserer umfangreichen und unabhängigen Expertise als Teil einer wachsenden, unabhängigen Immobilien- und Finanzierungsnetzwerkgruppe. Bereits 50.000 Kunden hat Infina erfolgreich bei Ihrem Vorhaben begleitet. Infina bietet Ihnen eine umfassende Beratung in allen Bereichen rund um Ihre Immobilienvorhaben:

Die passende Finanzierung für Ihre Immobilie

Mit Infina erhalten Sie nicht nur eine unabhängige Beratung, sondern auch die passende Finanzierungslösung für Ihre Immobilie. Aus den Angeboten von über 120 Banken und Bausparkassen vermitteln wir Ihnen das, was perfekt zu Ihren Bedürfnissen passt. Wir begleiten Sie professionell und verlässlich – von der ersten Beratung bis zum erfolgreichen Abschluss.

Kreditvergleich

Kostenlos und unverbindlich

Wir holen das Beste für Sie heraus

Verkaufen Sie Ihre Immobilie mit uns & profitieren Sie von unserer Expertise. Wir bringen Ihre Immobilie optimal auf den Markt & erzielen den besten Preis. 

Kontaktieren Sie uns jetzt.

Jetzt Experten kontaktieren
Junge Frau im pinken Blazer hält ein Modellhaus in der linken Hand und zeigt mit der rechten Hand nach oben, als hätte sie eine Idee. Sie lächelt und blickt leicht nach oben – symbolisch für Inspiration oder Immobilienberatung.