INFINA LOGO
Entspannt zur Immobilie Persönlich & kompetent beraten Finanzierbarkeit sofort überprüfbar
2.210 € Gesamtmiete inkl. USt.
Kostenlos &
unverbindlich.
Kontakt aufnehmen

Vienna City Flair & Nature Combined: Living at Nordwestbahnhof

Obj. Nr.: 24045

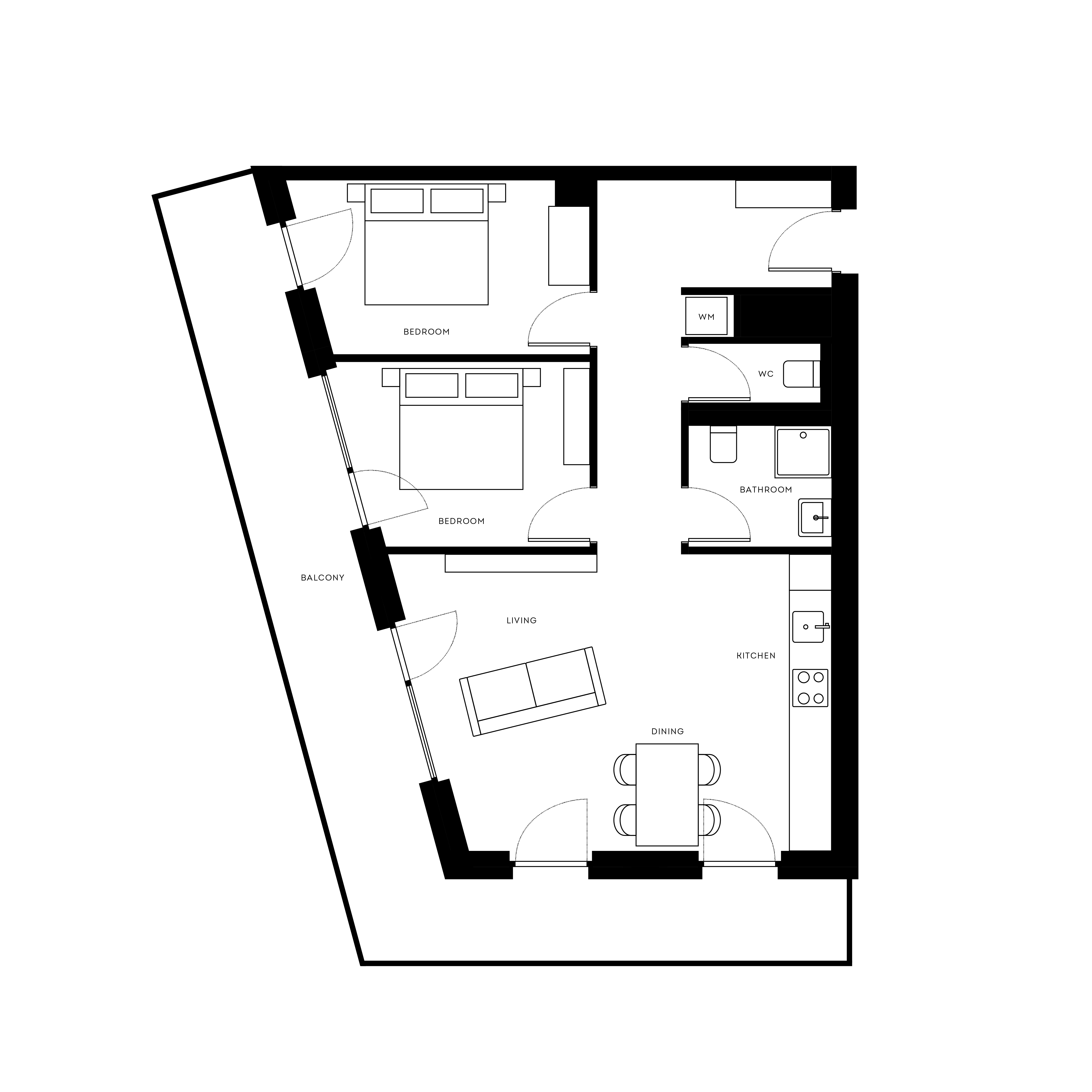
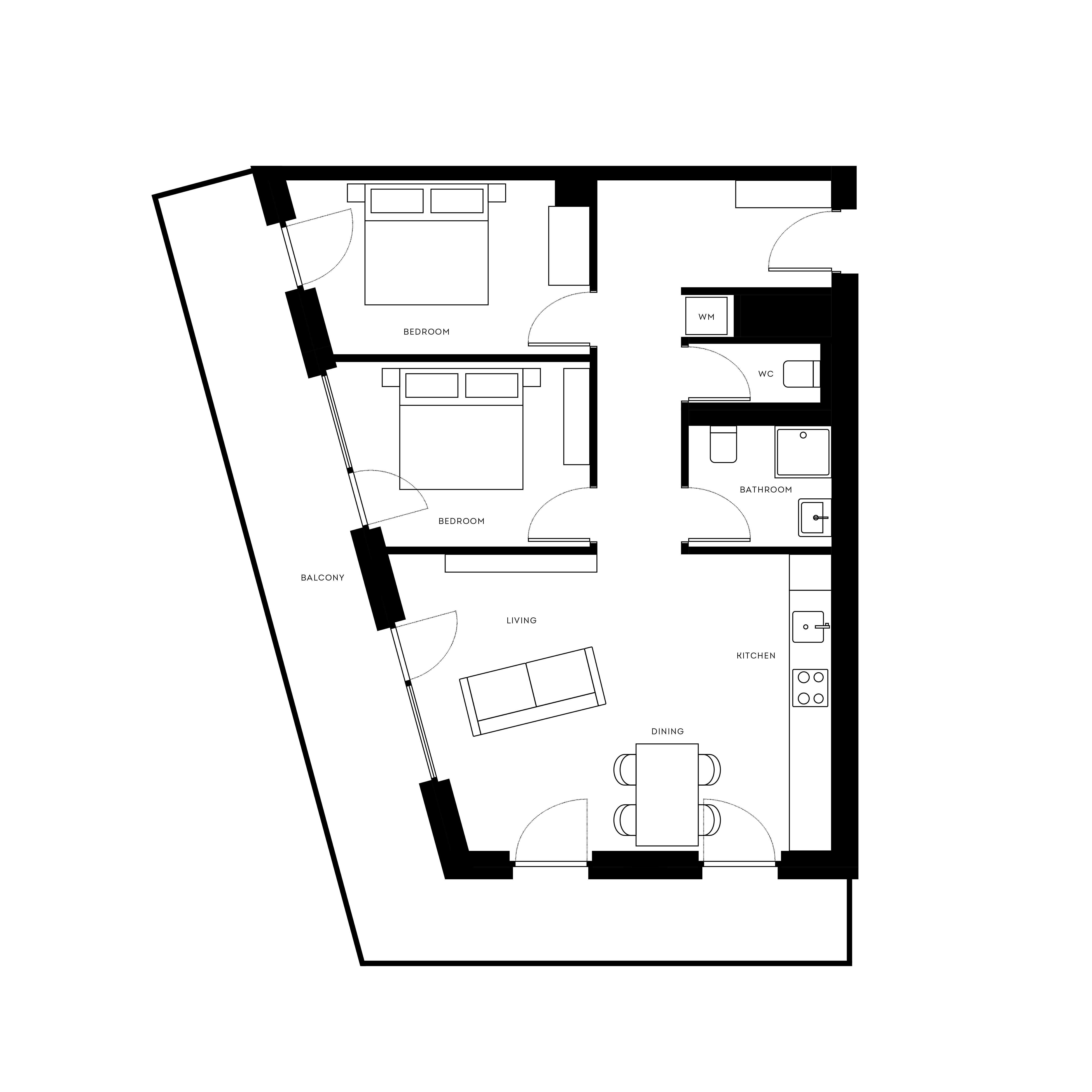
ca. 69,10 m² Wohnfläche 3 Zimmer
Partner von Infina EHL Wohnen Immobilienmakler 
Partner von Infina EHL Wohnen Immobilienmakler
2.210 € Gesamtmiete inkl. USt. Mietkaution finanzieren?
Jetzt beantragen
Mehr Informationen zur Immobilie: Detaillierte Einblicke in dieses Objekt.
Zurück zur Übersicht

Objektstandort

1200 Wien, Dresdner Straße 1304

Directions Icon Fahrtzeit berechnen
Preisinformationen
Betriebskosten (exkl. USt.) € 245,00
Gesamtbelastung € 2.210,00
Maklerprovision:
Gemäß Erstauftraggeberprinzip bezahlt der Vermieter/Verpächter die Provision.

Objektinformationen

Objektart: Wohnung
Nutzungsart: Wohnen
Bauart: Neubau
Zustand: Erstbezug
Baujahr: 2025

Rauminformationen & Flächen

Wohnfläche: ca. 69,10 m²
Balkonfläche: ca. 27,71 m²
Anzahl Balkone: 1
Anzahl Zimmer: 3
Anzahl WC: 2
Anzahl Bäder: 1

Ausstattung

Boden: Fliesen, Parkett
Befeuerung: Fernwärme
Heizungsart: Fußbodenheizung
Küche: Wohnküche / offene Küche
Fahrstuhl: Personenaufzug
Balkon: Nordostbalkon / -terrasse, Nordwestbalkon / -terrasse
Bad: Dusche
Stellplatzart: Tiefgarage
Extras: Wasch- / Trockenraum, Fahrradraum
WCs: Gäste-WC

Beschreibung *

Dresdner Straße is located in the 20th district of Vienna, Brigittenau, directly at the edge of the newly emerging urban development area Nordwestbahnhof.

This area is referred to as the "Green Center" and is intended to provide a central public open and green space that serves as the gateway to this modern urban quarter.

The immediate surroundings offer an established infrastructure with diverse local supply options and services that facilitate urban daily life.

Overall, Dresdner Straße presents itself as a centrally located site with excellent connections and an emerging environment.

Experience a living concept that combines contemporary demands with a conscious, future-oriented lifestyle. Centrally located, this modern rental apartment complex blends urban flair with sustainable architecture, creating space for encounters, inspiration, and relaxation.

In addition to your private living area, you will benefit from spacious, high-quality designed communal areas that go far beyond the usual: Whether focused work in the co-working space, relaxed hours in the stylish residents' lounge, or active breaks in the in-house fitness and yoga studio – here you will find exactly the place you need. For social moments, you have access to an exclusive private dining room, a gaming room, and an inviting cinema. Those who wish to engage in creative activities will find the ideal setting in the professionally equipped podcast room. A special highlight is the green rooftop terrace with a community garden – a retreat above the city rooftops, inviting you to relax, garden, and enjoy.

This residential complex is not just a place to live – it is an expression of an urban lifestyle that puts sustainability, networking, and quality of life at the forefront.

The Project

  • approximately 262 apartments
  • partially furnished apartments
  • 1-4 room apartments
  • a total of 29 floors
  • low-energy construction
  • elevator available
  • bicycle and stroller storage
  • green rooftop terrace
  • rentable event room
  • in-house underground garage with 76 parking spaces, 16 of which have electric charging stations

A parking space can be rented for € 192.00 gross per month.

The Amenities

  • outdoor areas for all apartments
  • high-quality sanitary facilities
  • modern parquet floors
  • high-quality ceramic tiles in wet areas
  • underfloor heating using district heating
  • ceiling cooling
  • high-speed internet in all apartments and communal areas
  • on-site team
  • security cameras

The Common Areas

  • residents' lounge
  • co-working space
  • fitness studio
  • yoga studio
  • cinema room
  • podcast room
  • gaming room
  • private dining
  • rooftop terrace with garden

The Location

  • U-Bahn station Dresdner Straße (U6)
  • S-Bahn station Traisengasse (S1, S2, S3, S7)
  • tram line 2 and several bus lines (10A, 11A, 34A, 37A, 5A)
  • In addition, Vienna's cycling network runs directly along the property.

plus heating costs between € 1.24 gross/m² and € 1.89 gross/m²

Internet is already included in the total rent.

Duration:  5 years, 1 year termination waiver, 3 months notice period

Additional Costs: 2 months' rent as a deposit

Moving in and feeling at home – at Dresdner Straße 90, modern living, thoughtful amenities, and urban comfort come together at the highest level.

Here, you not only enjoy the best infrastructure and high-quality living standards but also a lifestyle that connects: community, tranquility, and a touch of big city flair. Welcome to your new home at Dresdner Straße 90.

Die Dresdner Straße befindet sich im 20. Wiener Gemeindebezirk Brigittenau, direkt am Rand des neu entstehenden Stadtentwicklungsgebiets Nordwestbahnhof.

Dieses Areal wird als „Grüne Mitte“ bezeichnet und soll einen zentralen öffentlichen Frei- und Grünraum bieten, der das Tor zu diesem modernen Stadtquartier bildet .

Die unmittelbare Umgebung bietet eine etablierte Infrastruktur mit vielfältigen Nahversorgungsmöglichkeiten und Dienstleistungen, die den urbanen Alltag erleichtern.

Insgesamt präsentiert sich die Dresdner Straße als ein zentral gelegener Standort mit hervorragender Anbindung und einem aufstrebenden Umfeld.

Erleben Sie ein Wohnkonzept, das zeitgemäße Ansprüche mit einem bewussten, zukunftsorientierten Lebensstil vereint. Zentral gelegen, verbindet diese moderne Mietwohnanlage urbanes Flair mit nachhaltiger Architektur und schafft dabei Raum für Begegnung, Inspiration und Erholung.

Neben Ihrem privaten Wohnbereich profitieren Sie von großzügigen, hochwertig gestalteten Gemeinschaftsflächen, die weit über das Übliche hinausgehen: Ob konzentriertes Arbeiten im Co-Working Space, entspannte Stunden in der stilvollen Bewohner Lounge oder aktive Pausen im hauseigenen Fitness- und Yogastudio – hier finden Sie genau den Ort, den Sie gerade brauchen. Für gesellige Momente stehen Ihnen ein exklusiver Private-Dining-Raum, ein Gaming Room und ein einladender Kinosaal zur Verfügung. Wer kreativ tätig werden möchte, findet im professionell ausgestatteten Podcast Raum den idealen Rahmen. Ein besonderes Highlight ist die grüne Dachterrasse mit Gemeinschaftsgarten – ein Rückzugsort über den Dächern der Stadt, der zum Entspannen, Gärtnern und Genießen einlädt.

Diese Wohnanlage ist nicht nur ein Ort zum Wohnen – sie ist Ausdruck eines urbanen Lebensstils, der Nachhaltigkeit, Vernetzung und Lebensqualität in den Mittelpunkt stellt.

DAS PROJEKT

* rund 262 Wohnungen
* 1-4 Zimmer Wohnungen
* insgesamt 29 Etagen
* Niedrigenergiebauweise
* Lift vorhanden
* Fahrrad und Kinderwagenabstellraum
* begrünte Dachterrasse
* anmietbarer Eventraum
* hauseigene Tiefgarage mit 76 Stellplätze, 16 davon mit E-Ladestation

Ein Stellplatz kann um € 192,00 brutto pro Monat angemietet werden.

DIE AUSSTATTUNG

* Freiflächen bei allen Wohnungen
* hochwertige Sanitärausstattung
* moderne Parkettböden
* hochqualitatives Feinsteinzeug in den Nassräumen
* Fußbodenheizung mittels Fernwärme
* Deckenkühlung
* Highspeed-Internet in allen Wohnungen und den Gemeinschaftsflächen
* On-site-Team
* Sicherheitskameras

DIE ALLGEMEINFLÄCHEN

* Bewohner Lounge
* Co-Working Space
* Fitnessstudio
* Yogastudio
* Kinoraum
* Podcast Raum
* Gaming Room
* Private Dining
* Dachterrasse mit Garten

DIE LAGE

* U-Bahn-Station Dresdner Straße (U6)
* S-Bahn-Station Traisengasse (S1, S2, S3, S7)
* Straßenbahnlinie 2 sowie mehrere Buslinien (10A, 11A, 34A, 37A, 5A)
* Zudem verläuft das Radwegenetz Wiens direkt entlang der Liegenschaft.

zzgl. Heizkosten zwischen € 1,24 brutto/m² und € 1,89 brutto/m²

In der Gesamtmiete ist Internet bereits inkludiert.

BEFRISTUNG: 3 Jahre, 1 Jahr Kündigungsverzicht, 3 Monate Kündigungsfrist

NEBENKOSTEN: 2BMM

EINZIEHEN UND ANKOMMEN – IN DER DRESDNER STRASSE 90 VEREINEN SICH MODERNES WOHNEN, DURCHDACHTE AUSSTATTUNG UND URBANER KOMFORT AUF HÖCHSTEM NIVEAU.

HIER GENIESSEN SIE NICHT NUR BESTE INFRASTRUKTUR UND HOCHWERTIGE WOHNQUALITÄT, SONDERN AUCH EIN LEBENSGEFÜHL, DAS VERBINDET: GEMEINSCHAFT, RUHE UND EIN HAUCH GROSSSTADTFLAIR. WILLKOMMEN IN IHREM NEUEN ZUHAUSE AN DER DRESDNER STRASSE 90.

Wir weisen darauf hin, dass zwischen dem Vermittler und dem zu vermittelnden Dritten ein familiäres oder wirtschaftliches Naheverhältnis besteht.

Der Immobilienmakler erklärt, dass er – entgegen dem in der Immobilienwirtschaft üblichen Geschäftsgebrauch des Doppelmaklers – einseitig nur für den Vermieter tätig ist.


Infrastruktur / Entfernungen

Gesundheit
Arzt <250m
Apotheke <500m
Klinik <500m
Krankenhaus <500m

Kinder & Schulen
Schule <500m
Kindergarten <250m
Universität <1.000m
Höhere Schule <1.500m

Nahversorgung
Supermarkt <250m
Bäckerei <250m
Einkaufszentrum <1.000m

Sonstige
Geldautomat <250m
Bank <250m
Post <250m
Polizei <250m

Verkehr
Bus <250m
U-Bahn <750m
Straßenbahn <250m
Bahnhof <250m
Autobahnanschluss <1.750m

Angaben Entfernung Luftlinie / Quelle: OpenStreetMap


*Der Vertrag kommt nicht mit der INFINA Credit Broker GmbH zustande. Das Objekt wird von einem externen Immobilienunternehmen angeboten. Allfällige aus dem Vertragsabschluss resultierende Rechte sind ausschließlich gegenüber dem anbietenden Immobilienunternehmen geltend zu machen. Wir weisen Sie darauf hin, dass die gemachten Angaben und Informationen lediglich unverbindliche Vorabinformationen sind und daher ohne Gewähr erfolgen. Der Immobilienmakler erklärt, dass er – entgegen dem in der Immobilienwirtschaft üblichen Geschäftsgebrauch des Doppelmaklers – einseitig nur für den Vermieter tätig ist.

Energieausweis & Heizung
HWB (kWh/m2/Jahr): 19.8
HWB Energieklasse A
fGEE: 0.73
fGEE Energieklasse A
Gültig bis: 11.01.2035
Heizung: Fußbodenheizung
Befeuerung: Fernwärme
Dokumente & Videos Pläne Exposé Preisliste Planmappe
Partner von Infina EHL Wohnen Immobilienmakler
Kinder & Schulen:
Universität: 480 m
Höhere Schule: 1120 m
Kindergarten: 30 m
Schule: 440 m
Verkehr:
Autobahnanschluss: 1410 m
U-Bahn: 200 m
Straßenbahn: 230 m
Bus: 180 m
Bahnhof: 110 m
Gesundheit:
Apotheke: 360 m
Arzt: 140 m
Krankenhaus: 2280 m
Klinik: 240 m
Sonstige:
Post: 160 m
Bank: 420 m
Geldautomat: 160 m
Polizei: 250 m
Nahversorgung:
Supermarkt: 50 m
Bäckerei: 210 m
Einkaufszentrum: 450 m

Jetzt Experten kontaktieren

Weitere interessante Objekte

Partner von Infina
Jetzt anfragen
ca. 69,12 m² Wohnfläche 3 Zimmer
1.545 €

Immobilie kaufen: Das passende Angebot finden

Der Kauf einer Immobilie ist eine wichtige Entscheidung – sei es für die Eigennutzung oder zur Vermietung. Mit unserem Portal unterstützen wir Sie dabei, die richtige Immobilie zu kaufen. Nutzen Sie unsere Suchmöglichkeiten, um gezielt eine Immobilie zu suchen, die Ihren Vorstellungen entspricht. Unsere Immobilienangebote decken eine breite Palette ab: vom Einfamilienhaus über die Eigentumswohnung bis hin zum Grundstück für Ihr Bauvorhaben. Mit uns können Sie sicher und unkompliziert Eigentum erwerben – ob für die private Nutzung oder als Investition als Immobilie. Erkunden Sie jetzt unsere Angebote und finden Sie die perfekte Lösung, die zu Ihren Wohn- oder Anlagezielen passt.

Fundiertes Wissen für Ihre Entscheidung, eine Immobilie zu kaufen

Bereiten Sie sich bestens vor: Infina stellt Ihnen kostenlos über 300 Ratgeber und Beiträge zu den Themen Immobilie, Finanzierung, Zinsen und Recht zur Verfügung. Nutzen Sie unser umfassendes Wissen, um richtige Entscheidungen zu treffen.

Bei jedem Kauf einer Immobilie oder eines Grundstücks ist es wichtig, die passende Finanzierung zu finden. Mit seiner eigenen Vertriebsorganisation ist Infina als Wohnbau-Finanz-Experte an über 100 Standorten in ganz Österreich vertreten und vermittelt Finanzierungen an über 150 Banken und Bausparkassen. Nutzen Sie unseren kostenlosen Kreditvergleich für den passenden Wohnkredit: 

Kreditvergleich

Kostenlos und unverbindlich

Immobilie mieten: Ihr neues Zuhause wartet

Die Entscheidung, eine Immobilie zu mieten, bietet Flexibilität und zahlreiche Möglichkeiten – ob eine Wohnung für den Alltag oder ein Haus für die Familie. Bei Infina können Sie gezielt sowohl eine Wohnung suchen als auch ein Haus suchen, das Ihren Bedürfnissen entspricht. Unsere Angebote erleichtern es Ihnen, eine Mietwohnung zu suchen und Ihre ideale Wohnung finden zu können. Entdecken Sie vielfältige Optionen, um die passende Immobilie zu finden und Ihre Wohnträume zu verwirklichen. Starten Sie noch heute Ihre Suche und profitieren Sie von einer großen Auswahl an Mietobjekten in Ihrer Wunschregion.

Hilfreiche Informationen zu Immobilie mieten

Starten Sie gut vorbereitet in Ihre Mietentscheidung: Infina stellt Ihnen vielseitige Ratgeber und Beiträge zu Themen wie Immobilie, Mietrecht, Finanzierung und Wohntrends zur Verfügung. Verschaffen Sie sich einen Überblick über alle relevanten Aspekte und gestalten Sie Ihren Weg ins neue Zuhause einfacher und sicherer.

Erfolgreich zur neuen Immobilie

Mit Infina haben Sie einen verlässlichen Partner an Ihrer Seite, der Sie von der ersten Beratung bis zum erfolgreichen Abschluss ganzheitlich unterstützt. Erfahren Sie hier, wie wir gemeinsam Ihren Immobilienerfolg gestalten.

Starten Sie jetzt Ihre Immobiliensuche

Nach zahlreichen Informationen rund um die Themen Immobilie kaufen und Immobilie mieten können Sie nun den nächsten Schritt machen. Starten Sie die Immobiliensuche, um Ihr neues Zuhause oder Ihre nächste Investition zu finden und entdecken Sie die passenden Angebote:

Das innovative Portal für Immobilien und Finanzierung 

Als Kunde von Infina profitieren Sie von unserer umfangreichen und unabhängigen Expertise als Teil einer wachsenden, unabhängigen Immobilien- und Finanzierungsnetzwerkgruppe. Bereits 50.000 Kunden hat Infina erfolgreich bei Ihrem Vorhaben begleitet. Infina bietet Ihnen eine umfassende Beratung in allen Bereichen rund um Ihre Immobilienvorhaben:

Die passende Finanzierung für Ihre Immobilie

Mit Infina erhalten Sie nicht nur eine unabhängige Beratung, sondern auch die passende Finanzierungslösung für Ihre Immobilie. Aus den Angeboten von über 150 Banken und Bausparkassen vermitteln wir Ihnen das, was perfekt zu Ihren Bedürfnissen passt. Wir begleiten Sie professionell und verlässlich – von der ersten Beratung bis zum erfolgreichen Abschluss.

Kreditvergleich

Kostenlos und unverbindlich

Wir holen das Beste für Sie heraus

Verkaufen Sie Ihre Immobilie mit uns & profitieren Sie von unserer Expertise. Wir bringen Ihre Immobilie optimal auf den Markt & erzielen den besten Preis. 

Kontaktieren Sie uns jetzt.

Jetzt Experten kontaktieren
Junge Frau im pinken Blazer hält ein Modellhaus in der linken Hand und zeigt mit der rechten Hand nach oben, als hätte sie eine Idee. Sie lächelt und blickt leicht nach oben – symbolisch für Inspiration oder Immobilienberatung.