INFINA LOGO
Entspannt zur Immobilie Persönlich & kompetent beraten Finanzierbarkeit sofort überprüfbar
647.000 €
Kostenlos &
unverbindlich.
Kontakt aufnehmen

CLOUD 9 – Grüne Höhe. Goldene Lage.

Obj. Nr.: 136001

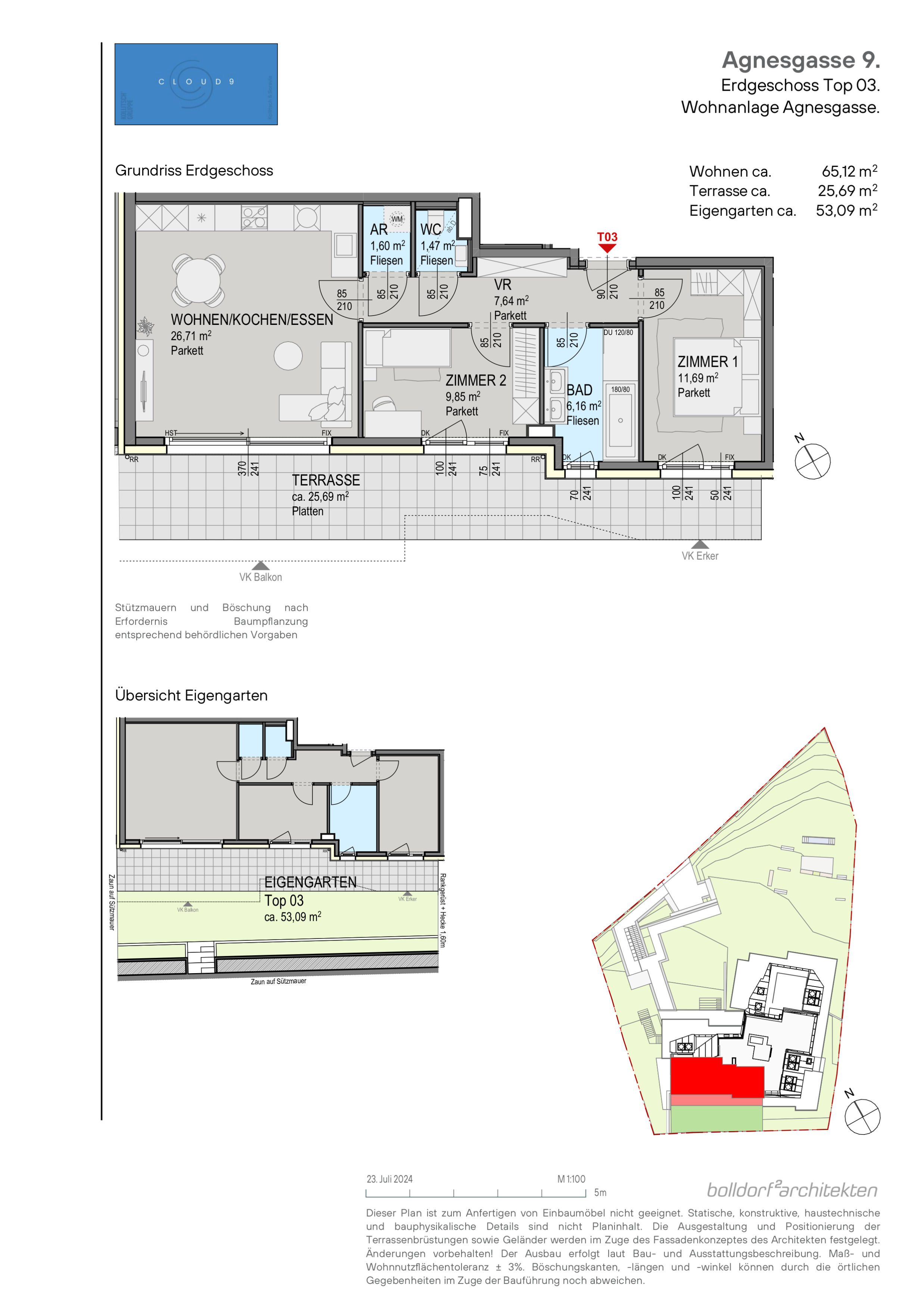
ca. 65,12 m² Wohnfläche 3 Zimmer
Partner von Infina EHL Wohnen Immobilienmakler 
Partner von Infina EHL Wohnen Immobilienmakler
647.000 € Kaufpreis der Immobilie Kreditvergleich von über 150 Banken mit Infina.
Immobilie finanzieren
Mehr Informationen zur Immobilie: Detaillierte Einblicke in dieses Objekt.
Zurück zur Übersicht

Objektstandort

1190 Wien, Agnesgasse

Directions Icon Fahrtzeit berechnen
Preisinformationen
Kaufpreis 647.000 €
Grundbucheintragung: 1.1 %
Grunderwerbsteuer: 3.5 %
Was kann ich mir leisten?
Jetzt berechnen
Maklerprovision:
3,00 % des Kaufpreises zzgl. 20 % USt.

Objektinformationen

Objektart: Wohnung
Nutzungsart: Wohnen
Bauart: Neubau
Zustand: Erstbezug

Rauminformationen & Flächen

Wohnfläche: ca. 65,12 m²
Gartenfläche: ca. 53,09 m²
Kellerfläche: ca. 11,23 m²
Terrassenfläche: ca. 25,69 m²
Anzahl Terrassen: 1
Anzahl Zimmer: 3
Anzahl WC: 1
Anzahl Bäder: 1

Ausstattung

Boden: Fliesen, Parkett
Befeuerung: Luftwärmepumpe
Fahrstuhl: Personenaufzug
Balkon: Südwestbalkon / -terrasse
Bad: Dusche, Badewanne, Bad mit Fenster
Belüftung: Klimaanlage

Beschreibung *

Agnesgasse 9 – Exklusiv wohnen über der Stadt

In erhöhter Grünlage des noblen 19. Bezirks, zwischen Weingärten und Wienerwald, entsteht mit CLOUD 9 ein Rückzugsort für Menschen mit höchsten Ansprüchen. In der Agnesgasse 9, umgeben von eleganten Villen und gepflegten Gärten, verbinden sich Ruhe, Natur und Stadtblick zu einem einzigartigen Lebensgefühl. Die Innenstadt ist nur 15 Fahrminuten entfernt – der Wienerwald beginnt direkt vor der Haustür.

CLOUD 9 umfasst 11 hochwertig ausgestattete Eigentumswohnungen mit Wohnflächen von ca. 65 bis 169 m². Jede Einheit verfügt über großzügige Außenflächen – Eigengärten, Terrassen oder Balkone mit beeindruckenden Ausblicken. Die durchdachte Architektur sorgt für helle Räume, fließende Übergänge und maximale Privatsphäre. Ein automatisiertes Zufahrtssystem mit Kennzeichenerkennung öffnet die Tiefgarage mit 11 Stellplätzen – optional mit E-Ladestationen.

Nachhaltiges Bauen wird hier konsequent umgesetzt – diskret und effizient. Eine hauseigene Photovoltaikanlage, Luftwärmepumpe, Deckenkühlung sowie eine Regenwasserzisterne für die Gartenbewässerung schaffen ökologische und ökonomische Vorteile – ganz ohne Kompromisse beim Wohnkomfort.

Das barrierefreie Gebäude überzeugt mit einem stilvollen, repräsentativen Entree und exklusiven Gemeinschaftsbereichen. Eine private Yoga- und Fitnesslounge mit Infrarotkabine, ein Kneippbecken im Garten sowie ruhige Rückzugszonen bieten vielfältige Möglichkeiten zur Regeneration. Der Concierge-Service rundet das Angebot ab – ob Personal Training, Massage, Tischreservierung oder Besorgungen des täglichen Bedarfs: alles ist nur einen Anruf entfernt.

Diese Wohnungen bieten mehr als nur Raum – sie bieten Lebensraum für Menschen mit Anspruch. Architektur, Lage und Ausstattung bilden eine stimmige Einheit. Wer in Wien-Sievering eine Luxusimmobilie kaufen möchte, findet in CLOUD 9 ein seltenes Angebot.

Das Projekt - Luxus in Bestlage

  • 11 Eigentumswohnungen (2,5 bis 5 Zimmer)
  • Wohnflächen von  ca. 65 m² bis 169 m²
  • großzügige Freiflächen
  • 11 Kfz-Tiefgaragenstellplätze (E-Ladestationen optional)
  • Fahrrad- und Kinderwagenabstellraum
  • Einlagerungsräume im Gartengeschoß
  • Yoga-/Fitnessraum 
  • Wellnessoase mit Infrarotkabine, Dusche und WC
  • Photovoltaik
  • Regenwasserzisterne

 

Ausstattung auf First-Class-Niveau 

  • Fußbodenheizung mittels Luftwärmepumpe
  • Temperierung (Kühlung) mittels Bauteilaktivierung
  • Holz-Alu-Fenster 3fach verglast
  • Außenraffstores
  • Elegante Landhausdielen (Eiche)
  • Hochwertige Marken-Sanitäreinrichtungsgegenstände
  • Geschmackvolles Feinsteinzeug in den Nassräumen
  • Einbruchshemmende Sicherheitseingangstüren
  • Videosprechanlage

 

Leben in einer der begehrtesten Wohngegenden Wiens 

Sievering steht für Lebensqualität auf höchstem Niveau. Die Umgebung bietet idyllische Spazier- und Laufstrecken, Radwege, elegante Heurige und eine spektakuläre Aussicht über Wien. Der nahegelegene Stadtwanderweg 2, das Areal Am Himmel oder der Cobenzl liegen nur wenige Gehminuten entfernt.

Sievering ist bekannt für seine renommierten Heurigenlokale und gepflegte Gastronomie – viele davon fußläufig erreichbar. Der Weinort Grinzing liegt nur wenige Minuten entfernt. Zahlreiche gehobene Nahversorger, Feinkostläden und Supermärkte befinden sich in der nahegelegenen Obkirchergasse und Umgebung. Das Q19 Einkaufsquartier Döbling ist mit dem Auto in ca. 10 Minuten erreichbar. 

In unmittelbarer Nähe befinden sich Kindergärten , Volksschulen und internationale Bildungseinrichtungen, darunter die renommierte American International School und die Schule der Dominikanerinnen . Zahlreiche niedergelassene Ärzte, Apotheken sowie das Krankenhaus Göttlicher Heiland und das Rudolfinerhaus garantieren eine ausgezeichnete medizinische Versorgung.

Exzellent angebunden - ruhig gelegen

  • Die Buslinie 39A befindet sich nur wenige Schritte von der Haustür entfernt (Haltestelle Agnesgasse). Sie verbindet Sie bequem mit dem Bahnhof Wien Heiligenstadt (U4, S-Bahn, Regionalzüge) sowie mit dem 19. Bezirkszentrum (Obkirchergasse, Krottenbachstraße).

  • Die Wiener Innenstadt (Stephansplatz) ist mit dem Auto in ca. 15–20 Minuten , mit öffentlichen Verkehrsmitteln in rund 30 Minuten erreichbar.

  • Der Flughafen Wien-Schwechat ist über die A23 und S1 in ca. 30–35 Minuten erreichbar.

Ein detaillierten Überblick finden Sie auf unsere EHL-Projekthomepage .

Provisionsfrei für den Käufer!
Fertigstellung voraussichtlich Q4/2027

Wir weisen darauf hin, dass zwischen dem Vermittler und dem zu vermittelnden Dritten ein familiäres oder wirtschaftliches Naheverhältnis besteht.

Der Vermittler ist als Doppelmakler tätig.


Infrastruktur / Entfernungen

Gesundheit
Arzt <1.000m
Apotheke <1.000m
Klinik <2.500m
Krankenhaus <2.750m

Kinder & Schulen
Schule <1.000m
Kindergarten <750m
Universität <2.250m
Höhere Schule <2.250m

Nahversorgung
Supermarkt <750m
Bäckerei <1.250m
Einkaufszentrum <4.000m

Sonstige
Geldautomat <1.250m
Bank <1.250m
Post <1.000m
Polizei <1.750m

Verkehr
Bus <250m
Straßenbahn <1.500m
U-Bahn <3.500m
Bahnhof <2.500m
Autobahnanschluss <4.000m

Angaben Entfernung Luftlinie / Quelle: OpenStreetMap


*Der Vertrag kommt nicht mit der INFINA Credit Broker GmbH zustande. Das Objekt wird von einem externen Immobilienunternehmen angeboten. Allfällige aus dem Vertragsabschluss resultierende Rechte sind ausschließlich gegenüber dem anbietenden Immobilienunternehmen geltend zu machen. Wir weisen Sie darauf hin, dass die gemachten Angaben und Informationen lediglich unverbindliche Vorabinformationen sind und daher ohne Gewähr erfolgen. Der Vermittler ist als Doppelmakler tätig.

Energieausweis & Heizung
HWB (kWh/m2/Jahr): 27.9
HWB Energieklasse B
fGEE: 0.61
fGEE Energieklasse B
Gültig bis: 09.09.2033
Befeuerung: Luftwärmepumpe
Dokumente & Videos Pläne Exposé Preisliste Planmappe
Partner von Infina EHL Wohnen Immobilienmakler
Gesundheit:
Apotheke: 570 m
Arzt: 820 m
Klinik: 2420 m
Krankenhaus: 2800 m
Kinder & Schulen:
Kindergarten: 520 m
Höhere Schule: 2830 m
Schule: 900 m
Universität: 2230 m
Verkehr:
Autobahnanschluss: 4080 m
Straßenbahn: 1430 m
U-Bahn: 3880 m
Bus: 10 m
Bahnhof: 2590 m
Sonstige:
Polizei: 1740 m
Geldautomat: 1350 m
Bank: 1340 m
Post: 570 m
Nahversorgung:
Supermarkt: 520 m
Einkaufszentrum: 1340 m
Bäckerei: 1230 m

Jetzt Experten kontaktieren

Immobilie kaufen: Das passende Angebot finden

Der Kauf einer Immobilie ist eine wichtige Entscheidung – sei es für die Eigennutzung oder zur Vermietung. Mit unserem Portal unterstützen wir Sie dabei, die richtige Immobilie zu kaufen. Nutzen Sie unsere Suchmöglichkeiten, um gezielt eine Immobilie zu suchen, die Ihren Vorstellungen entspricht. Unsere Immobilienangebote decken eine breite Palette ab: vom Einfamilienhaus über die Eigentumswohnung bis hin zum Grundstück für Ihr Bauvorhaben. Mit uns können Sie sicher und unkompliziert Eigentum erwerben – ob für die private Nutzung oder als Investition als Immobilie. Erkunden Sie jetzt unsere Angebote und finden Sie die perfekte Lösung, die zu Ihren Wohn- oder Anlagezielen passt.

Fundiertes Wissen für Ihre Entscheidung, eine Immobilie zu kaufen

Bereiten Sie sich bestens vor: Infina stellt Ihnen kostenlos über 300 Ratgeber und Beiträge zu den Themen Immobilie, Finanzierung, Zinsen und Recht zur Verfügung. Nutzen Sie unser umfassendes Wissen, um richtige Entscheidungen zu treffen.

Bei jedem Kauf einer Immobilie oder eines Grundstücks ist es wichtig, die passende Finanzierung zu finden. Mit seiner eigenen Vertriebsorganisation ist Infina als Wohnbau-Finanz-Experte an über 100 Standorten in ganz Österreich vertreten und vermittelt Finanzierungen an über 150 Banken und Bausparkassen. Nutzen Sie unseren kostenlosen Kreditvergleich für den passenden Wohnkredit: 

Kreditvergleich

Kostenlos und unverbindlich

Immobilie mieten: Ihr neues Zuhause wartet

Die Entscheidung, eine Immobilie zu mieten, bietet Flexibilität und zahlreiche Möglichkeiten – ob eine Wohnung für den Alltag oder ein Haus für die Familie. Bei Infina können Sie gezielt sowohl eine Wohnung suchen als auch ein Haus suchen, das Ihren Bedürfnissen entspricht. Unsere Angebote erleichtern es Ihnen, eine Mietwohnung zu suchen und Ihre ideale Wohnung finden zu können. Entdecken Sie vielfältige Optionen, um die passende Immobilie zu finden und Ihre Wohnträume zu verwirklichen. Starten Sie noch heute Ihre Suche und profitieren Sie von einer großen Auswahl an Mietobjekten in Ihrer Wunschregion.

Hilfreiche Informationen zu Immobilie mieten

Starten Sie gut vorbereitet in Ihre Mietentscheidung: Infina stellt Ihnen vielseitige Ratgeber und Beiträge zu Themen wie Immobilie, Mietrecht, Finanzierung und Wohntrends zur Verfügung. Verschaffen Sie sich einen Überblick über alle relevanten Aspekte und gestalten Sie Ihren Weg ins neue Zuhause einfacher und sicherer.

Erfolgreich zur neuen Immobilie

Mit Infina haben Sie einen verlässlichen Partner an Ihrer Seite, der Sie von der ersten Beratung bis zum erfolgreichen Abschluss ganzheitlich unterstützt. Erfahren Sie hier, wie wir gemeinsam Ihren Immobilienerfolg gestalten.

Starten Sie jetzt Ihre Immobiliensuche

Nach zahlreichen Informationen rund um die Themen Immobilie kaufen und Immobilie mieten können Sie nun den nächsten Schritt machen. Starten Sie die Immobiliensuche, um Ihr neues Zuhause oder Ihre nächste Investition zu finden und entdecken Sie die passenden Angebote:

Das innovative Portal für Immobilien und Finanzierung 

Als Kunde von Infina profitieren Sie von unserer umfangreichen und unabhängigen Expertise als Teil einer wachsenden, unabhängigen Immobilien- und Finanzierungsnetzwerkgruppe. Bereits 50.000 Kunden hat Infina erfolgreich bei Ihrem Vorhaben begleitet. Infina bietet Ihnen eine umfassende Beratung in allen Bereichen rund um Ihre Immobilienvorhaben:

Die passende Finanzierung für Ihre Immobilie

Mit Infina erhalten Sie nicht nur eine unabhängige Beratung, sondern auch die passende Finanzierungslösung für Ihre Immobilie. Aus den Angeboten von über 150 Banken und Bausparkassen vermitteln wir Ihnen das, was perfekt zu Ihren Bedürfnissen passt. Wir begleiten Sie professionell und verlässlich – von der ersten Beratung bis zum erfolgreichen Abschluss.

Kreditvergleich

Kostenlos und unverbindlich

Wir holen das Beste für Sie heraus

Verkaufen Sie Ihre Immobilie mit uns & profitieren Sie von unserer Expertise. Wir bringen Ihre Immobilie optimal auf den Markt & erzielen den besten Preis. 

Kontaktieren Sie uns jetzt.

Jetzt Experten kontaktieren
Junge Frau im pinken Blazer hält ein Modellhaus in der linken Hand und zeigt mit der rechten Hand nach oben, als hätte sie eine Idee. Sie lächelt und blickt leicht nach oben – symbolisch für Inspiration oder Immobilienberatung.