INFINA LOGO
Entspannt zur Immobilie Persönlich & kompetent beraten Finanzierbarkeit sofort überprüfbar
2.136 € Gesamtmiete inkl. USt.
Kostenlos &
unverbindlich.
Kontakt aufnehmen

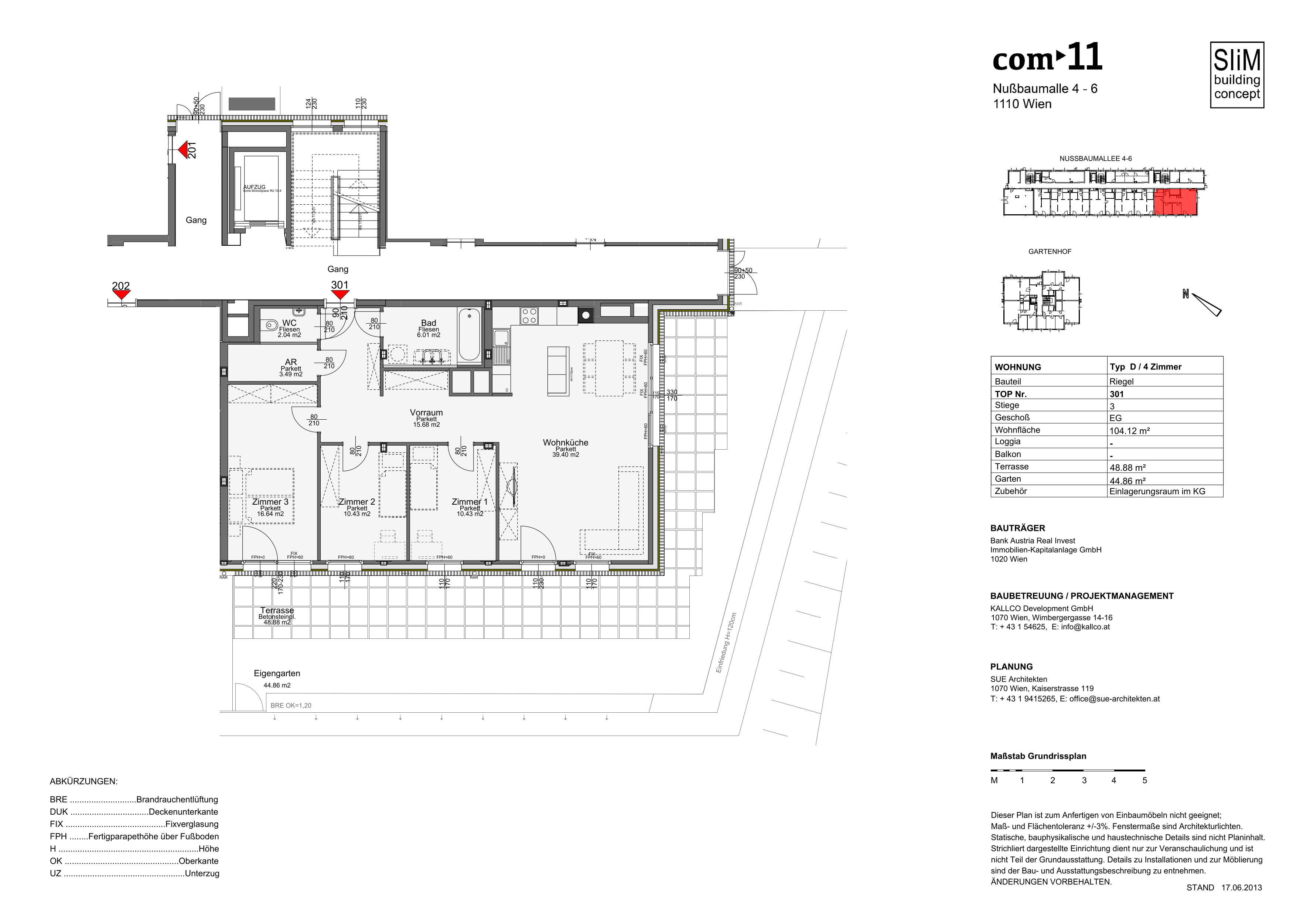
Top 4 Zimmergartenwohnung mit Terrasse Nähe Gasometer

Obj. Nr.: 128962

ca. 104,12 m² Wohnfläche 4 Zimmer
Partner von Infina EHL Wohnen Immobilienmakler 
Partner von Infina EHL Wohnen Immobilienmakler
2.136 € Gesamtmiete inkl. USt. Mietkaution finanzieren?
Jetzt beantragen
Mehr Informationen zur Immobilie: Detaillierte Einblicke in dieses Objekt.
Zurück zur Übersicht

Objektstandort

1110 Wien, Nussbaumallee

Directions Icon Fahrtzeit berechnen
Preisinformationen
Betriebskosten (exkl. USt.) € 239,48
Gesamtbelastung € 2.135,50
Maklerprovision:
Gemäß Erstauftraggeberprinzip bezahlt der Vermieter/Verpächter die Provision.

Objektinformationen

Objektart: Wohnung
Nutzungsart: Wohnen
Bauart: Neubau
Zustand: gepflegt
Baujahr: 2013
barrierefrei: Ja

Rauminformationen & Flächen

Wohnfläche: ca. 104,12 m²
Gartenfläche: ca. 44,86 m²
Terrassenfläche: ca. 48,88 m²
Anzahl Terrassen: 1
Anzahl Zimmer: 4
Anzahl WC: 1
Anzahl Bäder: 1

Ausstattung

Boden: Fliesen, Parkett
Befeuerung: Gas
Heizungsart: Zentralheizung
Küche: Wohnküche / offene Küche, Einbauküche
Fahrstuhl: Personenaufzug
Balkon: Südbalkon / -terrasse
Bad: Badewanne
Fernsehen: Kabel / Satelliten-TV
Extras: Abstellraum

Beschreibung *

Top 4 Zimmerwohnung mit Terrasse und Garten Nähe Gasometer


Diese Wohnung befindet sich im Erdgeschoss und verfügt über einen Wohnraum mit Küche, drei getrennt begehbare Schlafzimmer, ein Badezimmer mit Badewanne und Waschmaschinenanschluss, ein separates WC, einen Abstellraum, sowie einen Vorraum. Die Terrasse wie auch der Garten runden dieses Angebot perfekt ab.

Moderner Gebäudekomplex in markanter Lage, durch die Anbindung an die Südosttangente sind sowohl der Flughafen als auch das Zentrum Wiens schnell erreichbar. Durch die fußläufig erreichbare U-Bahnstation U3 ist man öffentlich in nur 15 Minuten in der City. Die in der Nähe gelegenen Gasometer mit einer großen Shoppingmall sowie ein Entertainment Center bieten eine optimale Versorgung.

Ausstattung:
voll ausgestattete Küche
Badezimmer mit Wanne und Waschmaschinenanschluss
separates WC
Abstellraum
In den Wohnräumen ist ein Parkettboden verlegt und die Nassräume sind verfliest.

Einen Lift, eine Waschküche sowie ein Fahrrad- und Kinderwagenabstellraum sind im Haus vorhanden, ebenso wie ein der Wohnung zugehöriges Kellerabteil.

Bei den Fotos handlet es sich um Musterfotos einer vergelichbaren Wohnung in dem Haus
Die Wohnung ist bis zum 30.06. bewohnt. Besichtigungen können nach Rücksprache mit den Mietern stattfinden. 

Öffentliche Verkehrsanbindung
U-Bahnlinie U3 "Gasometer"
Buslinie 77-A

zzgl. Heizung & Warmwasser EUR 92,51 + USt. EUR 18,50 = Brutto EUR 111,01

Befristung: 5 Jahre, 1 Jahr Kündigungsverzicht und 3 Monate Kündigungsfrist

Energiekennzahlen:
Laut Energieausweis beträgt der Heizwärmebedarf 23,73 kWh/m²a (A).

Nebenkosten :
3 BMM Kaution, Vertragserrichtungsgebühr,
 

Wir weisen darauf hin, dass zwischen dem Vermittler und dem zu vermittelnden Dritten ein familiäres oder wirtschaftliches Naheverhältnis besteht.

Der Immobilienmakler erklärt, dass er – entgegen dem in der Immobilienwirtschaft üblichen Geschäftsgebrauch des Doppelmaklers – einseitig nur für den Vermieter tätig ist.


Infrastruktur / Entfernungen

Gesundheit
Arzt <500m
Apotheke <250m
Klinik <500m
Krankenhaus <2.000m

Kinder & Schulen
Schule <250m
Kindergarten <500m
Universität <1.250m
Höhere Schule <1.250m

Nahversorgung
Supermarkt <250m
Bäckerei <250m
Einkaufszentrum <250m

Sonstige
Geldautomat <250m
Bank <750m
Post <750m
Polizei <1.000m

Verkehr
Bus <250m
U-Bahn <250m
Straßenbahn <750m
Bahnhof <250m
Autobahnanschluss <1.000m

Angaben Entfernung Luftlinie / Quelle: OpenStreetMap


*Der Vertrag kommt nicht mit der INFINA Credit Broker GmbH zustande. Das Objekt wird von einem externen Immobilienunternehmen angeboten. Allfällige aus dem Vertragsabschluss resultierende Rechte sind ausschließlich gegenüber dem anbietenden Immobilienunternehmen geltend zu machen. Wir weisen Sie darauf hin, dass die gemachten Angaben und Informationen lediglich unverbindliche Vorabinformationen sind und daher ohne Gewähr erfolgen. Der Immobilienmakler erklärt, dass er – entgegen dem in der Immobilienwirtschaft üblichen Geschäftsgebrauch des Doppelmaklers – einseitig nur für den Vermieter tätig ist.

Energieausweis & Heizung
HWB (kWh/m2/Jahr): 25.3
HWB Energieklasse B
fGEE: 0.84
fGEE Energieklasse B
Gültig bis: 08.11.2033
Heizung: Zentralheizung
Befeuerung: Gas
Dokumente & Videos Pläne Lagereport - Nussbaumallee 4-6 Energieausweis - Nussbaumallee 4-6
Partner von Infina EHL Wohnen Immobilienmakler
Sonstige:
Geldautomat: 320 m
Polizei: 930 m
Bank: 790 m
Post: 840 m
Nahversorgung:
Supermarkt: 340 m
Bäckerei: 440 m
Einkaufszentrum: 310 m
Gesundheit:
Krankenhaus: 2270 m
Apotheke: 410 m
Klinik: 660 m
Arzt: 310 m
Verkehr:
Bahnhof: 440 m
Autobahnanschluss: 750 m
Straßenbahn: 780 m
Bus: 300 m
U-Bahn: 440 m
Flughafen: 13390 m
Kinder & Schulen:
Kindergarten: 320 m
Höhere Schule: 1520 m
Schule: 220 m
Universität: 1640 m

Jetzt Experten kontaktieren

Weitere interessante Objekte

Partner von Infina
Jetzt anfragen
ca. 94,96 m² Wohnfläche 3 Zimmer
924.800 €
Partner von Infina
Jetzt anfragen
ca. 123,93 m² Wohnfläche 4 Zimmer
1.520.200 €
Partner von Infina
Jetzt anfragen
ca. 122,87 m² Wohnfläche 4 Zimmer
1.525.800 €
Partner von Infina
Jetzt anfragen
ca. 108,00 m² Wohnfläche 3 Zimmer
Auf Anfrage
Partner von Infina
Jetzt anfragen
ca. 85,00 m² Wohnfläche 3 Zimmer
480.000 €
Partner von Infina
Jetzt anfragen
ca. 99,00 m² Wohnfläche 3 Zimmer
Auf Anfrage
Partner von Infina
Jetzt anfragen
519.000 €
Partner von Infina
Jetzt anfragen
ca. 92,00 m² Wohnfläche 4 Zimmer
339.000 €

Immobilie kaufen: Das passende Angebot finden

Der Kauf einer Immobilie ist eine wichtige Entscheidung – sei es für die Eigennutzung oder zur Vermietung. Mit unserem Portal unterstützen wir Sie dabei, die richtige Immobilie zu kaufen. Nutzen Sie unsere Suchmöglichkeiten, um gezielt eine Immobilie zu suchen, die Ihren Vorstellungen entspricht. Unsere Immobilienangebote decken eine breite Palette ab: vom Einfamilienhaus über die Eigentumswohnung bis hin zum Grundstück für Ihr Bauvorhaben. Mit uns können Sie sicher und unkompliziert Eigentum erwerben – ob für die private Nutzung oder als Investition als Immobilie. Erkunden Sie jetzt unsere Angebote und finden Sie die perfekte Lösung, die zu Ihren Wohn- oder Anlagezielen passt.

Fundiertes Wissen für Ihre Entscheidung, eine Immobilie zu kaufen

Bereiten Sie sich bestens vor: Infina stellt Ihnen kostenlos über 300 Ratgeber und Beiträge zu den Themen Immobilie, Finanzierung, Zinsen und Recht zur Verfügung. Nutzen Sie unser umfassendes Wissen, um richtige Entscheidungen zu treffen.

Bei jedem Kauf einer Immobilie oder eines Grundstücks ist es wichtig, die passende Finanzierung zu finden. Mit seiner eigenen Vertriebsorganisation ist Infina als Wohnbau-Finanz-Experte an über 100 Standorten in ganz Österreich vertreten und vermittelt Finanzierungen an über 150 Banken und Bausparkassen. Nutzen Sie unseren kostenlosen Kreditvergleich für den passenden Wohnkredit: 

Kreditvergleich

Kostenlos und unverbindlich

Immobilie mieten: Ihr neues Zuhause wartet

Die Entscheidung, eine Immobilie zu mieten, bietet Flexibilität und zahlreiche Möglichkeiten – ob eine Wohnung für den Alltag oder ein Haus für die Familie. Bei Infina können Sie gezielt sowohl eine Wohnung suchen als auch ein Haus suchen, das Ihren Bedürfnissen entspricht. Unsere Angebote erleichtern es Ihnen, eine Mietwohnung zu suchen und Ihre ideale Wohnung finden zu können. Entdecken Sie vielfältige Optionen, um die passende Immobilie zu finden und Ihre Wohnträume zu verwirklichen. Starten Sie noch heute Ihre Suche und profitieren Sie von einer großen Auswahl an Mietobjekten in Ihrer Wunschregion.

Hilfreiche Informationen zu Immobilie mieten

Starten Sie gut vorbereitet in Ihre Mietentscheidung: Infina stellt Ihnen vielseitige Ratgeber und Beiträge zu Themen wie Immobilie, Mietrecht, Finanzierung und Wohntrends zur Verfügung. Verschaffen Sie sich einen Überblick über alle relevanten Aspekte und gestalten Sie Ihren Weg ins neue Zuhause einfacher und sicherer.

Erfolgreich zur neuen Immobilie

Mit Infina haben Sie einen verlässlichen Partner an Ihrer Seite, der Sie von der ersten Beratung bis zum erfolgreichen Abschluss ganzheitlich unterstützt. Erfahren Sie hier, wie wir gemeinsam Ihren Immobilienerfolg gestalten.

Starten Sie jetzt Ihre Immobiliensuche

Nach zahlreichen Informationen rund um die Themen Immobilie kaufen und Immobilie mieten können Sie nun den nächsten Schritt machen. Starten Sie die Immobiliensuche, um Ihr neues Zuhause oder Ihre nächste Investition zu finden und entdecken Sie die passenden Angebote:

Das innovative Portal für Immobilien und Finanzierung 

Als Kunde von Infina profitieren Sie von unserer umfangreichen und unabhängigen Expertise als Teil einer wachsenden, unabhängigen Immobilien- und Finanzierungsnetzwerkgruppe. Bereits 50.000 Kunden hat Infina erfolgreich bei Ihrem Vorhaben begleitet. Infina bietet Ihnen eine umfassende Beratung in allen Bereichen rund um Ihre Immobilienvorhaben:

Die passende Finanzierung für Ihre Immobilie

Mit Infina erhalten Sie nicht nur eine unabhängige Beratung, sondern auch die passende Finanzierungslösung für Ihre Immobilie. Aus den Angeboten von über 150 Banken und Bausparkassen vermitteln wir Ihnen das, was perfekt zu Ihren Bedürfnissen passt. Wir begleiten Sie professionell und verlässlich – von der ersten Beratung bis zum erfolgreichen Abschluss.

Kreditvergleich

Kostenlos und unverbindlich

Wir holen das Beste für Sie heraus

Verkaufen Sie Ihre Immobilie mit uns & profitieren Sie von unserer Expertise. Wir bringen Ihre Immobilie optimal auf den Markt & erzielen den besten Preis. 

Kontaktieren Sie uns jetzt.

Jetzt Experten kontaktieren
Junge Frau im pinken Blazer hält ein Modellhaus in der linken Hand und zeigt mit der rechten Hand nach oben, als hätte sie eine Idee. Sie lächelt und blickt leicht nach oben – symbolisch für Inspiration oder Immobilienberatung.