INFINA LOGO
Entspannt zur Immobilie Persönlich & kompetent beraten Finanzierbarkeit sofort überprüfbar
869 € Gesamtmiete inkl. USt.
Kostenlos &
unverbindlich.
Kontakt aufnehmen

Urbaner Wohnkomfort in Parknähe – 2-Zimmer-Neubauwohnung im 3. Liftstock zur Miete inkl. Heizung

Obj. Nr.: 113642

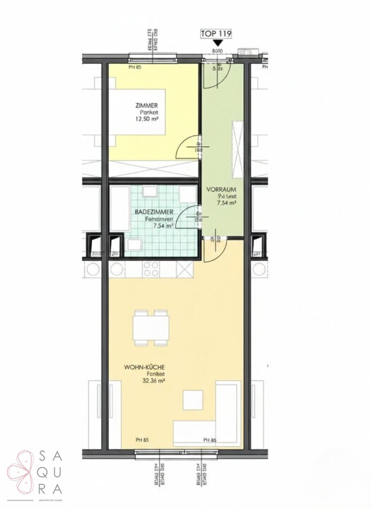
ca. 61,60 m² Nutzfläche 2 Zimmer
Partner von Infina SAQURA Immobilien Immobilienmakler 
Partner von Infina SAQURA Immobilien Immobilienmakler
869 € Gesamtmiete inkl. USt. Mietkaution finanzieren?
Jetzt beantragen
Mehr Informationen zur Immobilie: Detaillierte Einblicke in dieses Objekt.
Zurück zur Übersicht

Objektstandort

1100 Wien, Favoriten / Wien 10., Favoriten, Wien Adresse anfragen

Directions Icon Fahrtzeit berechnen
Preisinformationen
Betriebskosten (exkl. USt.) € 160,16
Gesamtbelastung € 868,56
Maklerprovision:
Gemäß Erstauftraggeberprinzip bezahlt der Vermieter/Verpächter die Provision.

Objektinformationen

Objektart: Wohnung
Unterobjektart: Etagenwohnung
Nutzungsart: Wohnen

Rauminformationen & Flächen

Nutzfläche: ca. 61,60 m²
Anzahl Zimmer: 2

Ausstattung

Heizungsart: Fernwärme, Zentralheizung
Küche: Einbauküche
Bad: Badewanne

Beschreibung *

Urbaner Wohnkomfort in Parknähe – Stilvolle 2-Zimmer-Neubauwohnung im 3. Liftstock zur Miete

Licht, Qualität und perfekte Infrastruktur auf ca. 61,60 m²
Diese moderne 2-Zimmer-Wohnung befindet sich im 3. Liftstock eines gepflegten Neubaus und überzeugt durch hochwertige Ausstattung, eine durchdachte Raumaufteilung sowie eine ausgezeichnete Lage in unmittelbarer Nähe zum beliebten Waldmüllerpark.

Dank der erhöhten Lage genießt die Wohnung besonders angenehmes Tageslicht und eine ruhige Wohnatmosphäre. Zwei barrierefreie Lifte sorgen für komfortablen Zugang. Ideal geeignet für Singles oder Paare, die urbanes Wohnen mit Grünraumnähe verbinden möchten.
________________________________________

Wohnkomfort & Ausstattung

• Wohnfläche: ca. 61,60 m²
• 2 Zimmer
• 3. Liftstock
• Moderne Einbauküche
• Badezimmer mit Badewanne
• Eiche-Massivparkett in den Wohnräumen
• Feinsteinzeug in Bad & WC
• Kunststofffenster mit 3-fach-Isolierverglasung
• Fernwärme-Zentralheizung (Direktverrechnung über ISTA)
• Telefon- & Telekabelanschluss
• Gegensprechanlage
• Zustand: gepflegt
• Rollstuhlgerecht
• Personenaufzug vorhanden
Energiekennzahl: 24,0 kWh/m²a – sehr gute Energieeffizienz
________________________________________

Haus & Allgemeinbereiche

• Zwei barrierefreie Lifte
• Zugang über Fernkorngasse und Sonnleithnergasse
• Garage mit 15 Stellplätzen im Erdgeschoss (optional anmietbar, nach Verfügbarkeit)
• Fahrrad- und Kinderwagenräume
• Einlagerungsraum pro Wohnung im Kellergeschoss
________________________________________

Lage & Verkehr

Die unmittelbare Nähe zum Waldmüllerpark bietet eine ideale Kombination aus urbanem Leben und Erholung im Grünen.
• Geschäfte des täglichen Bedarfs fußläufig erreichbar
• Nähe zum Hauptbahnhof und neuem Einkaufszentrum
• Buslinie 14A direkt vor der Haustür
→ schnelle Verbindung zum Matzleinsdorfer Platz (S1, S2, S60, S80)
• Mit dem Auto in wenigen Minuten auf der A23
________________________________________

Mietkonditionen

• Hauptmietzins (netto): € 831,60
• Betriebskosten: € 209,07
• Umsatzsteuer: € 104,14
• Gesamtmiete (brutto): € 1.145,54 exklusive Strom- und Heizkosten
• Netto-Mietzins pro m²: € 13,50
• Mietdauer: 5 Jahre
• Kaution: € 4.100
________________________________________

Diese Wohnung bietet modernen Wohnkomfort, ausgezeichnete Energieeffizienz und eine hervorragende Infrastruktur – ideal für alle, die langfristig stilvoll und gut angebunden wohnen möchten.

*Der Vertrag kommt nicht mit der INFINA Credit Broker GmbH zustande. Das Objekt wird von einem externen Immobilienunternehmen angeboten. Allfällige aus dem Vertragsabschluss resultierende Rechte sind ausschließlich gegenüber dem anbietenden Immobilienunternehmen geltend zu machen. Wir weisen Sie darauf hin, dass die gemachten Angaben und Informationen lediglich unverbindliche Vorabinformationen sind und daher ohne Gewähr erfolgen. Der Immobilienmakler erklärt, dass er – entgegen dem in der Immobilienwirtschaft üblichen Geschäftsgebrauch des Doppelmaklers – einseitig nur für den Vermieter tätig ist.

Heizung: Fernwärme, Zentralheizung
Partner von Infina SAQURA Immobilien Immobilienmakler
Kinder & Schulen:
Kindergarten: 320 m
Höhere Schule: 1440 m
Universität: 970 m
Schule: 200 m
Gesundheit:
Apotheke: 450 m
Arzt: 30 m
Klinik: 310 m
Krankenhaus: 1060 m
Verkehr:
Autobahnanschluss: 2290 m
Bus: 30 m
Straßenbahn: 330 m
U-Bahn: 960 m
Bahnhof: 950 m
Nahversorgung:
Bäckerei: 50 m
Supermarkt: 190 m
Einkaufszentrum: 1010 m
Sonstige:
Polizei: 510 m
Bank: 30 m
Post: 580 m
Geldautomat: 190 m

Jetzt Experten kontaktieren

Weitere interessante Objekte

Immobilie kaufen: Das passende Angebot finden

Der Kauf einer Immobilie ist eine wichtige Entscheidung – sei es für die Eigennutzung oder zur Vermietung. Mit unserem Portal unterstützen wir Sie dabei, die richtige Immobilie zu kaufen. Nutzen Sie unsere Suchmöglichkeiten, um gezielt eine Immobilie zu suchen, die Ihren Vorstellungen entspricht. Unsere Immobilienangebote decken eine breite Palette ab: vom Einfamilienhaus über die Eigentumswohnung bis hin zum Grundstück für Ihr Bauvorhaben. Mit uns können Sie sicher und unkompliziert Eigentum erwerben – ob für die private Nutzung oder als Investition als Immobilie. Erkunden Sie jetzt unsere Angebote und finden Sie die perfekte Lösung, die zu Ihren Wohn- oder Anlagezielen passt.

Fundiertes Wissen für Ihre Entscheidung, eine Immobilie zu kaufen

Bereiten Sie sich bestens vor: Infina stellt Ihnen kostenlos über 300 Ratgeber und Beiträge zu den Themen Immobilie, Finanzierung, Zinsen und Recht zur Verfügung. Nutzen Sie unser umfassendes Wissen, um richtige Entscheidungen zu treffen.

Bei jedem Kauf einer Immobilie oder eines Grundstücks ist es wichtig, die passende Finanzierung zu finden. Mit seiner eigenen Vertriebsorganisation ist Infina als Wohnbau-Finanz-Experte an über 100 Standorten in ganz Österreich vertreten und vermittelt Finanzierungen an über 150 Banken und Bausparkassen. Nutzen Sie unseren kostenlosen Kreditvergleich für den passenden Wohnkredit: 

Kreditvergleich

Kostenlos und unverbindlich

Immobilie mieten: Ihr neues Zuhause wartet

Die Entscheidung, eine Immobilie zu mieten, bietet Flexibilität und zahlreiche Möglichkeiten – ob eine Wohnung für den Alltag oder ein Haus für die Familie. Bei Infina können Sie gezielt sowohl eine Wohnung suchen als auch ein Haus suchen, das Ihren Bedürfnissen entspricht. Unsere Angebote erleichtern es Ihnen, eine Mietwohnung zu suchen und Ihre ideale Wohnung finden zu können. Entdecken Sie vielfältige Optionen, um die passende Immobilie zu finden und Ihre Wohnträume zu verwirklichen. Starten Sie noch heute Ihre Suche und profitieren Sie von einer großen Auswahl an Mietobjekten in Ihrer Wunschregion.

Hilfreiche Informationen zu Immobilie mieten

Starten Sie gut vorbereitet in Ihre Mietentscheidung: Infina stellt Ihnen vielseitige Ratgeber und Beiträge zu Themen wie Immobilie, Mietrecht, Finanzierung und Wohntrends zur Verfügung. Verschaffen Sie sich einen Überblick über alle relevanten Aspekte und gestalten Sie Ihren Weg ins neue Zuhause einfacher und sicherer.

Erfolgreich zur neuen Immobilie

Mit Infina haben Sie einen verlässlichen Partner an Ihrer Seite, der Sie von der ersten Beratung bis zum erfolgreichen Abschluss ganzheitlich unterstützt. Erfahren Sie hier, wie wir gemeinsam Ihren Immobilienerfolg gestalten.

Starten Sie jetzt Ihre Immobiliensuche

Nach zahlreichen Informationen rund um die Themen Immobilie kaufen und Immobilie mieten können Sie nun den nächsten Schritt machen. Starten Sie die Immobiliensuche, um Ihr neues Zuhause oder Ihre nächste Investition zu finden und entdecken Sie die passenden Angebote:

Das innovative Portal für Immobilien und Finanzierung 

Als Kunde von Infina profitieren Sie von unserer umfangreichen und unabhängigen Expertise als Teil einer wachsenden, unabhängigen Immobilien- und Finanzierungsnetzwerkgruppe. Bereits 50.000 Kunden hat Infina erfolgreich bei Ihrem Vorhaben begleitet. Infina bietet Ihnen eine umfassende Beratung in allen Bereichen rund um Ihre Immobilienvorhaben:

Die passende Finanzierung für Ihre Immobilie

Mit Infina erhalten Sie nicht nur eine unabhängige Beratung, sondern auch die passende Finanzierungslösung für Ihre Immobilie. Aus den Angeboten von über 150 Banken und Bausparkassen vermitteln wir Ihnen das, was perfekt zu Ihren Bedürfnissen passt. Wir begleiten Sie professionell und verlässlich – von der ersten Beratung bis zum erfolgreichen Abschluss.

Kreditvergleich

Kostenlos und unverbindlich

Wir holen das Beste für Sie heraus

Verkaufen Sie Ihre Immobilie mit uns & profitieren Sie von unserer Expertise. Wir bringen Ihre Immobilie optimal auf den Markt & erzielen den besten Preis. 

Kontaktieren Sie uns jetzt.

Jetzt Experten kontaktieren
Junge Frau im pinken Blazer hält ein Modellhaus in der linken Hand und zeigt mit der rechten Hand nach oben, als hätte sie eine Idee. Sie lächelt und blickt leicht nach oben – symbolisch für Inspiration oder Immobilienberatung.