INFINA LOGO
Entspannt zur Immobilie Persönlich & kompetent beraten Finanzierbarkeit sofort überprüfbar
927 € Gesamtmiete inkl. USt.
Kostenlos &
unverbindlich.
Kontakt aufnehmen

FRANZ JOSEPH - RUHIGER WOHNTRAUM IM TRENDIGEN SONNWENDVIERTEL!

Obj. Nr.: 104283

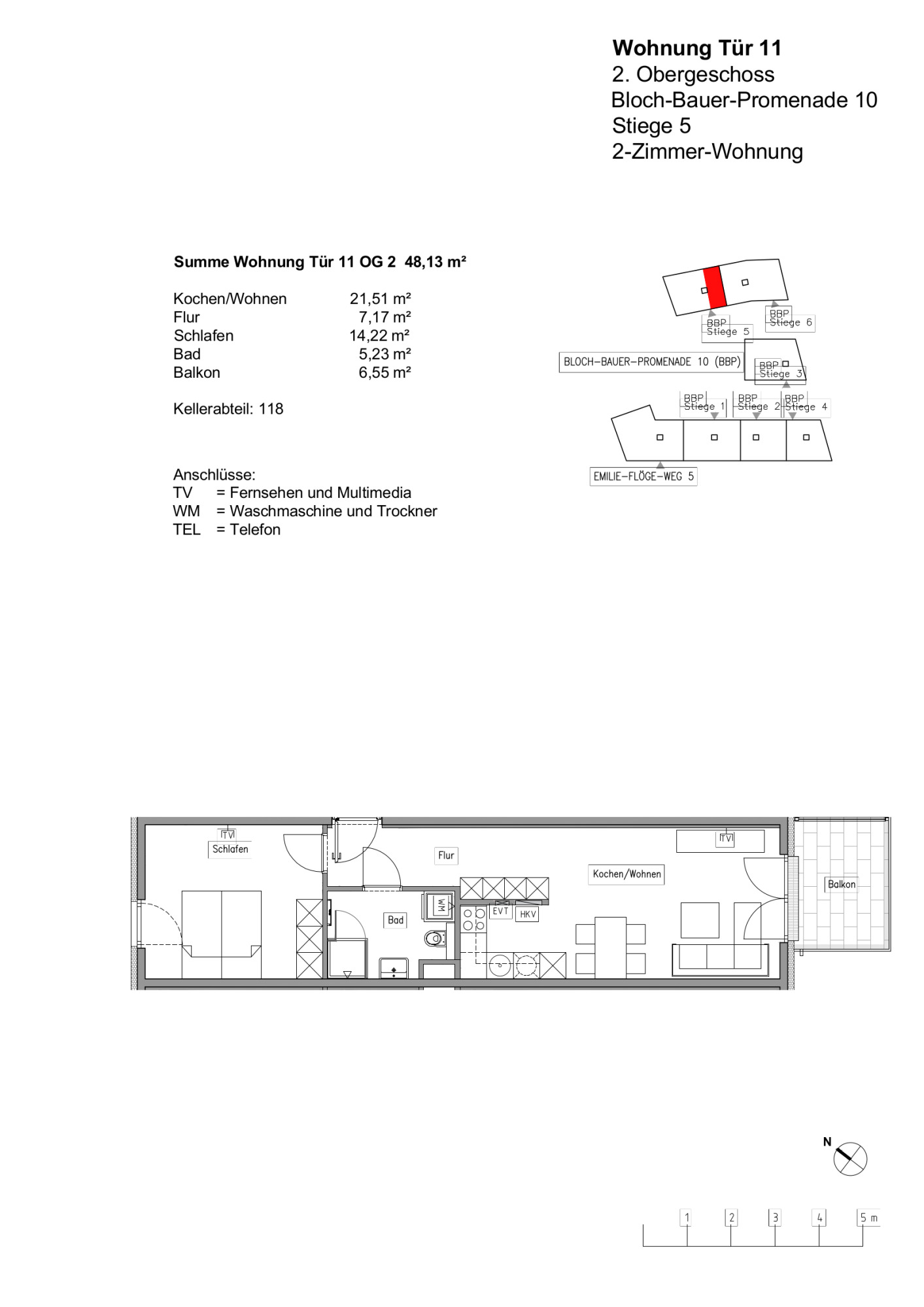
ca. 48,13 m² Wohnfläche 2 Zimmer
Partner von Infina EHL Wohnen Immobilienmakler 
Partner von Infina EHL Wohnen Immobilienmakler
927 € Gesamtmiete inkl. USt. Mietkaution finanzieren?
Jetzt beantragen
Mehr Informationen zur Immobilie: Detaillierte Einblicke in dieses Objekt.
Zurück zur Übersicht

Objektstandort

1100 Wien, Bloch Bauer Promenade 10/11

Directions Icon Fahrtzeit berechnen
Preisinformationen
Betriebskosten (exkl. USt.) € 125,14
Gesamtbelastung € 927,27
Maklerprovision:
Gemäß Erstauftraggeberprinzip bezahlt der Vermieter/Verpächter die Provision.

Objektinformationen

Objektart: Wohnung
Nutzungsart: Wohnen
Bauart: Neubau
Zustand: gepflegt

Rauminformationen & Flächen

Wohnfläche: ca. 48,13 m²
Balkonfläche: ca. 6,55 m²
Anzahl Balkone: 1
Anzahl Zimmer: 2
Anzahl WC: 1
Anzahl Bäder: 1

Ausstattung

Boden: Fliesen, Parkett
Befeuerung: Fernwärme
Heizungsart: Fußbodenheizung
Küche: Wohnküche / offene Küche, Einbauküche
Fahrstuhl: Personenaufzug
Balkon: Ostbalkon / -terrasse
Bad: Dusche

Beschreibung *

FRANZ JOSEPH -  RUHIGER WOHNTRAUM IM TRENDIGEN SONNWENDVIERTEL!

Erleben Sie im Franz Joseph ein einzigartiges Wohngefühl zwischen dem Helmut-Zilk-Park und dem Wiener Hauptbahnhof!

Durch den angrenzenden Helmut-Zilk-Park, die guten Nahversorgungsmöglichkeiten und eine perfekte Verkehrsanbindung (U1) in das Stadtzentrum, überzeugt dieses Areal mit einzigartiger Wohnqualität.
Lassen Sie Ihrer Bewegung freien Lauf im angrenzenden  "Motorikpark"  sowie in den umliegenden Sportstätten.
Zahlreiche Geschäfte für den täglichen Bedarf und Gastronomiebetriebe für den kulinarischen Genuss stehen Ihnen in der BahnhofCity Wien Hauptbahnhof zur Verfügung.
Mit dem Auto sind Sie innerhalb weniger Minuten auf der A23 und erreichen so alle weiterführenden Autobahnen. 

Die Wohnung befindet sich in der 2. Etage und gliedert sich in eine Wohnküche, ein getrennt begehbares Schlafzimmer, ein Badezimmer mit Dusche, Waschmaschinenanschluss und WC, sowie einen Vorraum. Der Balkon rundet das perfekte Wohnerlebnis ab!

Ausstattung

  • Attraktive Einbauküchen teils mit Kücheninsel
  • Moderne Bäder mit Wannen oder Duschen 
  • Hochwertige Parkettböden in den Wohnräumen
  • Fernwärme mit Fußbodenheizung 
  • Traumhafte Ausblicke auf Wien 
  • Kellerabteil inkl. Steckdose pro Wohnung 
  • Tiefgaragenplatz
  • Außenliegender Sonnenschutz
  • Kinder- und Jugendspielplatz direkt beim Helmut-Zilk-Park (Motorikpark)
  • Kinderwagen- und Fahrradabstellräume sowie ein Lift befinden sich im Haus

Öffentliche Verkehrsanbindung:

Hauptbahnhof - U-Bahn Linie U1

Hauptbahnhof - Schnellbahnlinien S1, S2, S3, S 60 und S 80 sowie Fernverkehr
Buslinie 14A, 69A
Straßenbahnlinie D

Befristung : 5 Jahre, 1 Jahr Kündigungsverzicht, 3 Monate Kündigungsfrist

Heizung und Warmwasser werden nach Verbrauch abgerechnet.

Bezug: ab sofort

Nebenkosten  
3 BMM Kaution, Vertragserrichtungsgebühr

Wir weisen darauf hin, dass zwischen dem Vermittler und dem zu vermittelnden Dritten ein familiäres oder wirtschaftliches Naheverhältnis besteht.

Der Immobilienmakler erklärt, dass er – entgegen dem in der Immobilienwirtschaft üblichen Geschäftsgebrauch des Doppelmaklers – einseitig nur für den Vermieter tätig ist.


Infrastruktur / Entfernungen

Gesundheit
Arzt <150m
Apotheke <400m
Klinik <625m
Krankenhaus <1.725m

Kinder & Schulen
Schule <275m
Kindergarten <150m
Universität <850m
Höhere Schule <1.575m

Nahversorgung
Supermarkt <125m
Bäckerei <100m
Einkaufszentrum <625m

Sonstige
Geldautomat <300m
Bank <550m
Post <650m
Polizei <550m

Verkehr
Bus <225m
U-Bahn <625m
Straßenbahn <225m
Bahnhof <625m
Autobahnanschluss <1.275m

Angaben Entfernung Luftlinie / Quelle: OpenStreetMap


*Der Vertrag kommt nicht mit der INFINA Credit Broker GmbH zustande. Das Objekt wird von einem externen Immobilienunternehmen angeboten. Allfällige aus dem Vertragsabschluss resultierende Rechte sind ausschließlich gegenüber dem anbietenden Immobilienunternehmen geltend zu machen. Wir weisen Sie darauf hin, dass die gemachten Angaben und Informationen lediglich unverbindliche Vorabinformationen sind und daher ohne Gewähr erfolgen. Der Immobilienmakler erklärt, dass er – entgegen dem in der Immobilienwirtschaft üblichen Geschäftsgebrauch des Doppelmaklers – einseitig nur für den Vermieter tätig ist.

Energieausweis & Heizung
HWB (kWh/m2/Jahr): 24
HWB Energieklasse A
fGEE: 0.76
fGEE Energieklasse A
Gültig bis: 14.07.2031
Heizung: Fußbodenheizung
Befeuerung: Fernwärme
Dokumente & Videos Pläne
Partner von Infina EHL Wohnen Immobilienmakler
Verkehr:
U-Bahn: 610 m
Autobahnanschluss: 1020 m
Bus: 250 m
Bahnhof: 620 m
Straßenbahn: 220 m
Sonstige:
Bank: 530 m
Polizei: 610 m
Post: 780 m
Geldautomat: 210 m
Kinder & Schulen:
Höhere Schule: 1580 m
Kindergarten: 140 m
Schule: 280 m
Universität: 890 m
Nahversorgung:
Supermarkt: 110 m
Bäckerei: 90 m
Einkaufszentrum: 640 m
Gesundheit:
Klinik: 630 m
Apotheke: 400 m
Arzt: 140 m
Krankenhaus: 1760 m

Jetzt Experten kontaktieren

Weitere interessante Objekte

Partner von Infina
Jetzt anfragen
ca. 55,00 m² Wohnfläche 2 Zimmer
Auf Anfrage
Partner von Infina
Jetzt anfragen
262.000 €
Partner von Infina
Jetzt anfragen
268.000 €
Wien
Partner von Infina
Jetzt anfragen
ca. 35,00 m² Wohnfläche 1 Zimmer
144.000 €
Partner von Infina
Jetzt anfragen
299.000 €
Partner von Infina
Jetzt anfragen
ca. 67,00 m² Wohnfläche 3 Zimmer
239.000 €
Partner von Infina
Jetzt anfragen
ca. 62,00 m² Wohnfläche 4 Zimmer
299.000 €
Partner von Infina
Jetzt anfragen
ca. 54,00 m² Wohnfläche 2 Zimmer
268.000 €

Immobilie kaufen: Das passende Angebot finden

Der Kauf einer Immobilie ist eine wichtige Entscheidung – sei es für die Eigennutzung oder zur Vermietung. Mit unserem Portal unterstützen wir Sie dabei, die richtige Immobilie zu kaufen. Nutzen Sie unsere Suchmöglichkeiten, um gezielt eine Immobilie zu suchen, die Ihren Vorstellungen entspricht. Unsere Immobilienangebote decken eine breite Palette ab: vom Einfamilienhaus über die Eigentumswohnung bis hin zum Grundstück für Ihr Bauvorhaben. Mit uns können Sie sicher und unkompliziert Eigentum erwerben – ob für die private Nutzung oder als Investition als Immobilie. Erkunden Sie jetzt unsere Angebote und finden Sie die perfekte Lösung, die zu Ihren Wohn- oder Anlagezielen passt.

Fundiertes Wissen für Ihre Entscheidung, eine Immobilie zu kaufen

Bereiten Sie sich bestens vor: Infina stellt Ihnen kostenlos über 300 Ratgeber und Beiträge zu den Themen Immobilie, Finanzierung, Zinsen und Recht zur Verfügung. Nutzen Sie unser umfassendes Wissen, um richtige Entscheidungen zu treffen.

Bei jedem Kauf einer Immobilie oder eines Grundstücks ist es wichtig, die passende Finanzierung zu finden. Mit seiner eigenen Vertriebsorganisation ist Infina als Wohnbau-Finanz-Experte an über 100 Standorten in ganz Österreich vertreten und vermittelt Finanzierungen an über 150 Banken und Bausparkassen. Nutzen Sie unseren kostenlosen Kreditvergleich für den passenden Wohnkredit: 

Kreditvergleich

Kostenlos und unverbindlich

Immobilie mieten: Ihr neues Zuhause wartet

Die Entscheidung, eine Immobilie zu mieten, bietet Flexibilität und zahlreiche Möglichkeiten – ob eine Wohnung für den Alltag oder ein Haus für die Familie. Bei Infina können Sie gezielt sowohl eine Wohnung suchen als auch ein Haus suchen, das Ihren Bedürfnissen entspricht. Unsere Angebote erleichtern es Ihnen, eine Mietwohnung zu suchen und Ihre ideale Wohnung finden zu können. Entdecken Sie vielfältige Optionen, um die passende Immobilie zu finden und Ihre Wohnträume zu verwirklichen. Starten Sie noch heute Ihre Suche und profitieren Sie von einer großen Auswahl an Mietobjekten in Ihrer Wunschregion.

Hilfreiche Informationen zu Immobilie mieten

Starten Sie gut vorbereitet in Ihre Mietentscheidung: Infina stellt Ihnen vielseitige Ratgeber und Beiträge zu Themen wie Immobilie, Mietrecht, Finanzierung und Wohntrends zur Verfügung. Verschaffen Sie sich einen Überblick über alle relevanten Aspekte und gestalten Sie Ihren Weg ins neue Zuhause einfacher und sicherer.

Erfolgreich zur neuen Immobilie

Mit Infina haben Sie einen verlässlichen Partner an Ihrer Seite, der Sie von der ersten Beratung bis zum erfolgreichen Abschluss ganzheitlich unterstützt. Erfahren Sie hier, wie wir gemeinsam Ihren Immobilienerfolg gestalten.

Starten Sie jetzt Ihre Immobiliensuche

Nach zahlreichen Informationen rund um die Themen Immobilie kaufen und Immobilie mieten können Sie nun den nächsten Schritt machen. Starten Sie die Immobiliensuche, um Ihr neues Zuhause oder Ihre nächste Investition zu finden und entdecken Sie die passenden Angebote:

Das innovative Portal für Immobilien und Finanzierung 

Als Kunde von Infina profitieren Sie von unserer umfangreichen und unabhängigen Expertise als Teil einer wachsenden, unabhängigen Immobilien- und Finanzierungsnetzwerkgruppe. Bereits 50.000 Kunden hat Infina erfolgreich bei Ihrem Vorhaben begleitet. Infina bietet Ihnen eine umfassende Beratung in allen Bereichen rund um Ihre Immobilienvorhaben:

Die passende Finanzierung für Ihre Immobilie

Mit Infina erhalten Sie nicht nur eine unabhängige Beratung, sondern auch die passende Finanzierungslösung für Ihre Immobilie. Aus den Angeboten von über 150 Banken und Bausparkassen vermitteln wir Ihnen das, was perfekt zu Ihren Bedürfnissen passt. Wir begleiten Sie professionell und verlässlich – von der ersten Beratung bis zum erfolgreichen Abschluss.

Kreditvergleich

Kostenlos und unverbindlich

Wir holen das Beste für Sie heraus

Verkaufen Sie Ihre Immobilie mit uns & profitieren Sie von unserer Expertise. Wir bringen Ihre Immobilie optimal auf den Markt & erzielen den besten Preis. 

Kontaktieren Sie uns jetzt.

Jetzt Experten kontaktieren
Junge Frau im pinken Blazer hält ein Modellhaus in der linken Hand und zeigt mit der rechten Hand nach oben, als hätte sie eine Idee. Sie lächelt und blickt leicht nach oben – symbolisch für Inspiration oder Immobilienberatung.