INFINA LOGO
Entspannt zur Immobilie Persönlich & kompetent beraten Finanzierbarkeit sofort überprüfbar
2.665 € Gesamtmiete inkl. USt.
Kostenlos &
unverbindlich.
Kontakt aufnehmen

Elegante Maisonette mit Garten beim Lainzer Platz´l

Obj. Nr.: 103284

ca. 167,79 m² Nutzfläche 5 Zimmer
Partner von Infina Bieber Immobilien Immobilienmakler 
Partner von Infina Bieber Immobilien Immobilienmakler
2.665 € Gesamtmiete inkl. USt. Mietkaution finanzieren?
Jetzt beantragen
Mehr Informationen zur Immobilie: Detaillierte Einblicke in dieses Objekt.
Zurück zur Übersicht

Objektstandort

1130 Wien Adresse anfragen

Directions Icon Fahrtzeit berechnen
Preisinformationen
Betriebskosten (exkl. USt.) € 314,34
Gesamtbelastung € 2.665,07
Maklerprovision:
Gemäß Erstauftraggeberprinzip bezahlt der Vermieter/Verpächter die Provision.

Objektinformationen

Objektart: Wohnung
Unterobjektart: Maisonette
Nutzungsart: Wohnen
Bauart: Neubau
Zustand: neuwertig
Baujahr: 2004

Rauminformationen & Flächen

Wohnfläche: ca. 154,29 m²
Nutzfläche: ca. 167,79 m²
Gartenfläche: ca. 70,00 m²
Balkonfläche: ca. 4,85 m²
Terrassenfläche: ca. 8,65 m²
Anzahl Balkone: 1
Anzahl Terrassen: 1
Anzahl Zimmer: 5
Anzahl WC: 2
Anzahl Bäder: 2

Ausstattung

Boden: Fliesen, Parkett
Befeuerung: Gas
Heizungsart: Etagenheizung
Küche: Einbauküche
Balkon: Südostbalkon / -terrasse, Nordbalkon / -terrasse
Bad: Dusche, Badewanne, Bad mit Fenster
Fernsehen: Kabel / Satelliten-TV
Stellplatzart: Garage
Extras: Gartennutzung, Abstellraum
WCs: Gäste-WC

Beschreibung *

Beim Lainzer Platz´l steht diese elegante Maisonette und dem entzückenden Garten zur Verfügung, für Ruhesuchende und die eine grüne Umgebung zu schätzen wissen!

Die von der Strasse aus abgewendete, uneingesehene, gepflegte Anlage vermittelt "dörflichen" Charakter.

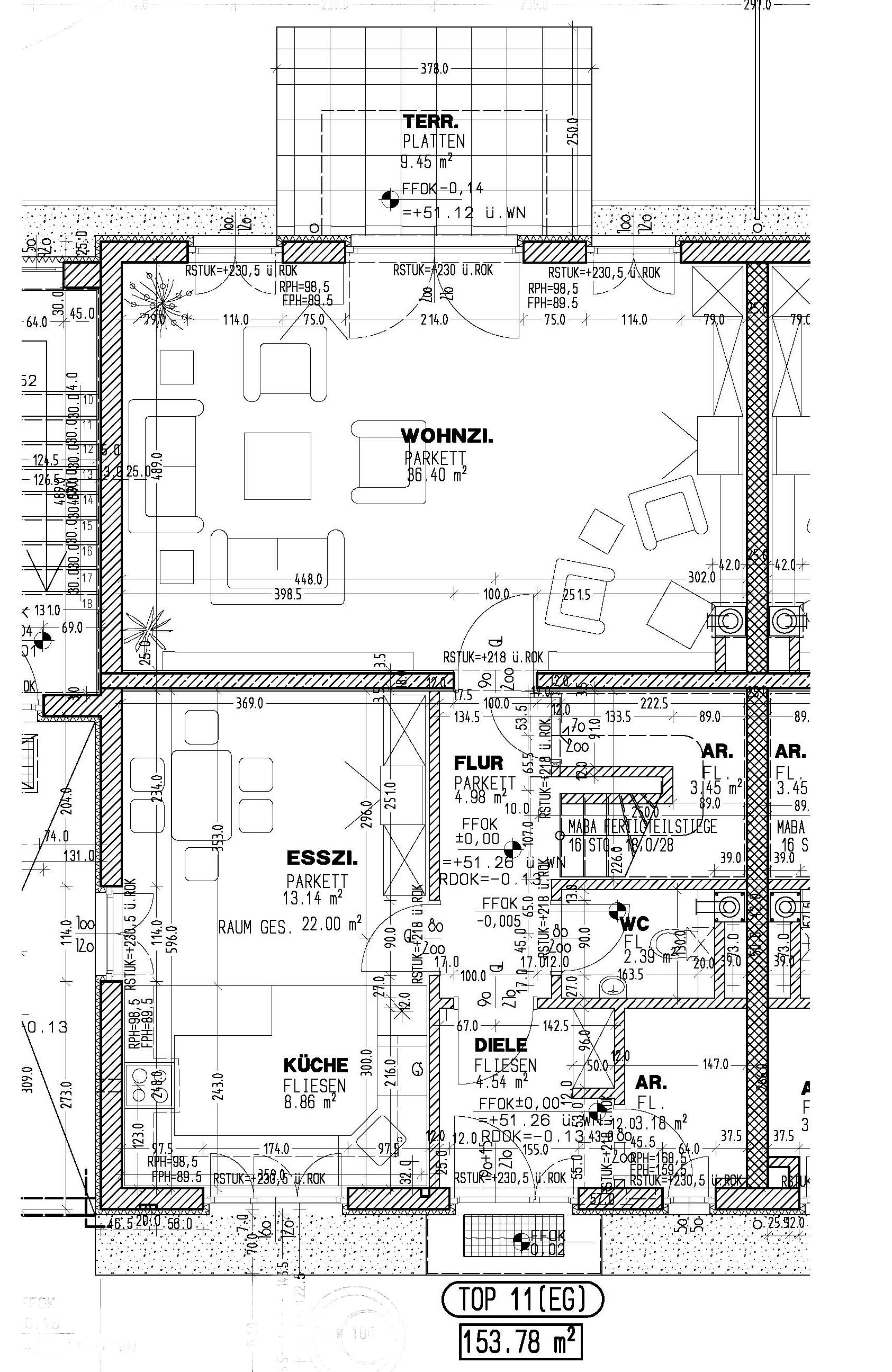
Die Maisonette verfügt über eine Wohnfläche von ca. 154m², die sich über 2 Etagen verteilen. Über den Vorraum, mit Garderoberaum, gelangt man in das große Wohnzimmer, von dem aus die ca. 9m² große Terrasse zu betreten ist die in den kleinen, jedoch feinen 70m² Garten führt. Ebenfalls vom Vorraum aus ist das Esszimmer, mit der offen gehaltenen, komplett eingerichteten Miele-Küche erreichbar und ein separates Gäste-WC.

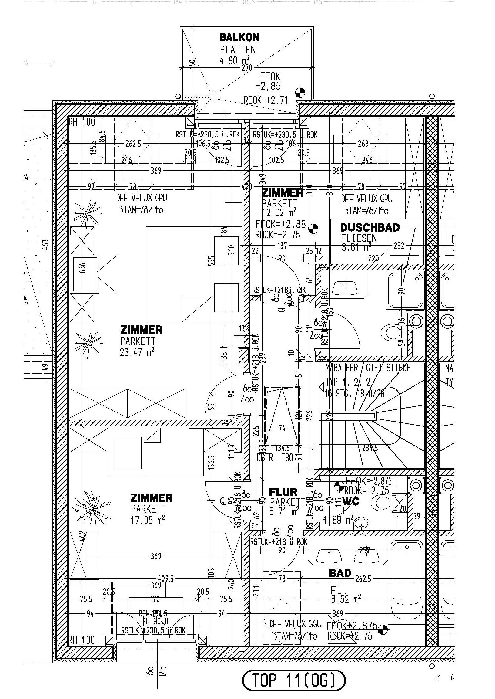
Der Stiegenaufgang führt in das Obergeschoss in dem sich 2 Zimmer, eines davon mit begehbarer Garderobe, mit Ausgang auf den ca. 5m² großen Balkon befinden sowie ein weiteres Zimmer, ein Duschbad und ein großes Bad mit Wanne, Doppelwaschtisch, Waschmaschinenanschluß und ein separates WC.

Als Stauraum dient der große, verschalte Dachboden, da das Objekt über keinen Keller verfügt.

Ruhelage, Grünblick, Terrasse, Eigengarten, hochwertige Ausstattung wie Parkett/Fliesenböden, Gasetagenheizung, Isolierglasfenster, Telefon-SAT-Anschluß und die hervorragende Infrastruktur zeichnen dieses Objekt besonders aus.

Ein Garagenplatz kann um EUR 190,00/p.m. dazu gemietet werden.

Die öffentliche Verkehrsanbindung ist mit der Strassenbahnlinie 60 vor der Haustüre gegeben, sodass man in wenigen Minuten die U4-Hietzing erreicht. Die Nahversorgung und das Bildungsangebot lassen keine Wünsche offen!

Das Objekt wird auf 5 Jahre befristet, mit Verlängerung, vermietet.

Miete (netto): 2.350,73 EUR
Betriebskosten (netto): 314,34 EUR
Umsatzsteuer (gesamt): 266,51 EUR
Gesamtmiete: 2.931,57 EUR

Kaution: 13.192,06 EUR
MV-Errichtungsgebühr: 600,00 EUR

Der Immobilienmakler erklärt, dass er – entgegen dem in der Immobilienwirtschaft üblichen Geschäftsgebrauch des Doppelmaklers – einseitig nur für den Vermieter tätig ist.


*Der Vertrag kommt nicht mit der INFINA Credit Broker GmbH zustande. Das Objekt wird von einem externen Immobilienunternehmen angeboten. Allfällige aus dem Vertragsabschluss resultierende Rechte sind ausschließlich gegenüber dem anbietenden Immobilienunternehmen geltend zu machen. Wir weisen Sie darauf hin, dass die gemachten Angaben und Informationen lediglich unverbindliche Vorabinformationen sind und daher ohne Gewähr erfolgen. Der Immobilienmakler erklärt, dass er – entgegen dem in der Immobilienwirtschaft üblichen Geschäftsgebrauch des Doppelmaklers – einseitig nur für den Vermieter tätig ist.

Energieausweis & Heizung
HWB (kWh/m2/Jahr): 58.7
HWB Energieklasse B
fGEE: 1.06
fGEE Energieklasse B
Gültig bis: 26.11.2029
Heizung: Etagenheizung
Befeuerung: Gas
Dokumente & Videos Pläne Pläne
Partner von Infina Bieber Immobilien Immobilienmakler
Nahversorgung:
Supermarkt: 40 m
Bäckerei: 70 m
Einkaufszentrum: 3240 m
Gesundheit:
Apotheke: 30 m
Arzt: 30 m
Klinik: 830 m
Krankenhaus: 810 m
Kinder & Schulen:
Höhere Schule: 3830 m
Universität: 1520 m
Kindergarten: 150 m
Schule: 240 m
Verkehr:
Autobahnanschluss: 3440 m
U-Bahn: 1570 m
Bus: 30 m
Straßenbahn: 30 m
Bahnhof: 1570 m
Sonstige:
Post: 880 m
Bank: 130 m
Polizei: 100 m
Geldautomat: 790 m

Jetzt Experten kontaktieren

Weitere interessante Objekte

Partner von Infina
Jetzt anfragen
Auf Anfrage
Partner von Infina
Jetzt anfragen
ca. 180,00 m² Wohnfläche 4 Zimmer
Auf Anfrage
Partner von Infina
Jetzt anfragen
ca. 185,50 m² Nutzfläche 3 Zimmer
7.385 €/m²
1.370.000 €
Partner von Infina
Jetzt anfragen
ca. 162,87 m² Wohnfläche 4 Zimmer
1.962.900 €
Partner von Infina
Jetzt anfragen
ca. 148,12 m² Wohnfläche 4 Zimmer
1.774.900 €

Immobilie kaufen: Das passende Angebot finden

Der Kauf einer Immobilie ist eine wichtige Entscheidung – sei es für die Eigennutzung oder zur Vermietung. Mit unserem Portal unterstützen wir Sie dabei, die richtige Immobilie zu kaufen. Nutzen Sie unsere Suchmöglichkeiten, um gezielt eine Immobilie zu suchen, die Ihren Vorstellungen entspricht. Unsere Immobilienangebote decken eine breite Palette ab: vom Einfamilienhaus über die Eigentumswohnung bis hin zum Grundstück für Ihr Bauvorhaben. Mit uns können Sie sicher und unkompliziert Eigentum erwerben – ob für die private Nutzung oder als Investition als Immobilie. Erkunden Sie jetzt unsere Angebote und finden Sie die perfekte Lösung, die zu Ihren Wohn- oder Anlagezielen passt.

Fundiertes Wissen für Ihre Entscheidung, eine Immobilie zu kaufen

Bereiten Sie sich bestens vor: Infina stellt Ihnen kostenlos über 300 Ratgeber und Beiträge zu den Themen Immobilie, Finanzierung, Zinsen und Recht zur Verfügung. Nutzen Sie unser umfassendes Wissen, um richtige Entscheidungen zu treffen.

Bei jedem Kauf einer Immobilie oder eines Grundstücks ist es wichtig, die passende Finanzierung zu finden. Mit seiner eigenen Vertriebsorganisation ist Infina als Wohnbau-Finanz-Experte an über 100 Standorten in ganz Österreich vertreten und vermittelt Finanzierungen an über 150 Banken und Bausparkassen. Nutzen Sie unseren kostenlosen Kreditvergleich für den passenden Wohnkredit: 

Kreditvergleich

Kostenlos und unverbindlich

Immobilie mieten: Ihr neues Zuhause wartet

Die Entscheidung, eine Immobilie zu mieten, bietet Flexibilität und zahlreiche Möglichkeiten – ob eine Wohnung für den Alltag oder ein Haus für die Familie. Bei Infina können Sie gezielt sowohl eine Wohnung suchen als auch ein Haus suchen, das Ihren Bedürfnissen entspricht. Unsere Angebote erleichtern es Ihnen, eine Mietwohnung zu suchen und Ihre ideale Wohnung finden zu können. Entdecken Sie vielfältige Optionen, um die passende Immobilie zu finden und Ihre Wohnträume zu verwirklichen. Starten Sie noch heute Ihre Suche und profitieren Sie von einer großen Auswahl an Mietobjekten in Ihrer Wunschregion.

Hilfreiche Informationen zu Immobilie mieten

Starten Sie gut vorbereitet in Ihre Mietentscheidung: Infina stellt Ihnen vielseitige Ratgeber und Beiträge zu Themen wie Immobilie, Mietrecht, Finanzierung und Wohntrends zur Verfügung. Verschaffen Sie sich einen Überblick über alle relevanten Aspekte und gestalten Sie Ihren Weg ins neue Zuhause einfacher und sicherer.

Erfolgreich zur neuen Immobilie

Mit Infina haben Sie einen verlässlichen Partner an Ihrer Seite, der Sie von der ersten Beratung bis zum erfolgreichen Abschluss ganzheitlich unterstützt. Erfahren Sie hier, wie wir gemeinsam Ihren Immobilienerfolg gestalten.

Starten Sie jetzt Ihre Immobiliensuche

Nach zahlreichen Informationen rund um die Themen Immobilie kaufen und Immobilie mieten können Sie nun den nächsten Schritt machen. Starten Sie die Immobiliensuche, um Ihr neues Zuhause oder Ihre nächste Investition zu finden und entdecken Sie die passenden Angebote:

Das innovative Portal für Immobilien und Finanzierung 

Als Kunde von Infina profitieren Sie von unserer umfangreichen und unabhängigen Expertise als Teil einer wachsenden, unabhängigen Immobilien- und Finanzierungsnetzwerkgruppe. Bereits 50.000 Kunden hat Infina erfolgreich bei Ihrem Vorhaben begleitet. Infina bietet Ihnen eine umfassende Beratung in allen Bereichen rund um Ihre Immobilienvorhaben:

Die passende Finanzierung für Ihre Immobilie

Mit Infina erhalten Sie nicht nur eine unabhängige Beratung, sondern auch die passende Finanzierungslösung für Ihre Immobilie. Aus den Angeboten von über 150 Banken und Bausparkassen vermitteln wir Ihnen das, was perfekt zu Ihren Bedürfnissen passt. Wir begleiten Sie professionell und verlässlich – von der ersten Beratung bis zum erfolgreichen Abschluss.

Kreditvergleich

Kostenlos und unverbindlich

Wir holen das Beste für Sie heraus

Verkaufen Sie Ihre Immobilie mit uns & profitieren Sie von unserer Expertise. Wir bringen Ihre Immobilie optimal auf den Markt & erzielen den besten Preis. 

Kontaktieren Sie uns jetzt.

Jetzt Experten kontaktieren
Junge Frau im pinken Blazer hält ein Modellhaus in der linken Hand und zeigt mit der rechten Hand nach oben, als hätte sie eine Idee. Sie lächelt und blickt leicht nach oben – symbolisch für Inspiration oder Immobilienberatung.