INFINA LOGO
Entspannt zur Immobilie Persönlich & kompetent beraten Finanzierbarkeit sofort überprüfbar
995 € Gesamtmiete inkl. USt.
Kostenlos &
unverbindlich.
Kontakt aufnehmen

Ihr Wohnglück wartet: Moderne Mietwohnungen im Tullnerfeld

Obj. Nr.: 11081

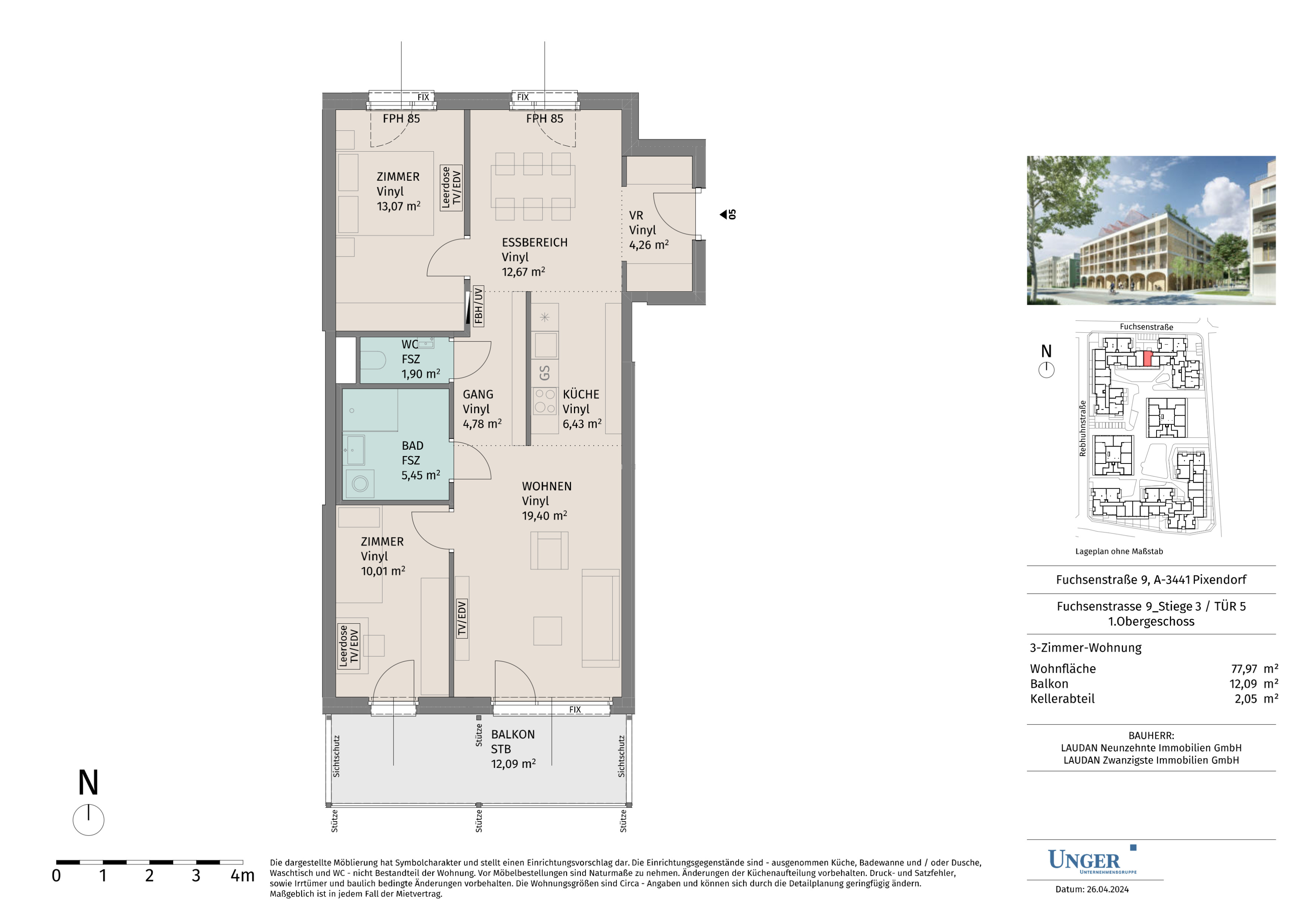
ca. 77,97 m² Wohnfläche 3 Zimmer
Partner von Infina EHL Wohnen Immobilienmakler 
Partner von Infina EHL Wohnen Immobilienmakler
995 € Gesamtmiete inkl. USt. Mietkaution finanzieren?
Jetzt beantragen
Mehr Informationen zur Immobilie: Detaillierte Einblicke in dieses Objekt.
Zurück zur Übersicht

Objektstandort

3451 Pixendorf, Fuchsenstraße 5, Tulln, Niederösterreich

Directions Icon Fahrtzeit berechnen
Preisinformationen
Betriebskosten (exkl. USt.) € 216,75
Gesamtbelastung € 995,45
Maklerprovision:
Gemäß Erstauftraggeberprinzip bezahlt der Vermieter/Verpächter die Provision.

Objektinformationen

Objektart: Wohnung
Nutzungsart: Wohnen
Bauart: Neubau
Zustand: Erstbezug
Baujahr: 2024

Rauminformationen & Flächen

Wohnfläche: ca. 77,97 m²
Balkonfläche: ca. 12,09 m²
Anzahl Balkone: 1
Anzahl Zimmer: 3
Anzahl WC: 1
Anzahl Bäder: 1

Ausstattung

Boden: Fliesen
Küche: Wohnküche / offene Küche
Fahrstuhl: Personenaufzug
Balkon: Südbalkon / -terrasse
Bad: Dusche

Beschreibung *

Moderne Mietwohnungen! "Lebensraum Tullnerfeld" - Entdecken Sie Ihre neue Wohnoase!

In grüner Lage wurde vor kurzem das beeindruckende Wohnbauprojekt " Lebensraum Tullnerfeld " fertig gestellt, mit gesamt 308 Mietwohnungen sowie 7 Gewerbeflächen! Die 2-5 Zimmerwohnungen bieten Wohnflächen zwischen ca. 38m² und 115 m², somit finden hier sowohl Singles, Pärchen als auch Familien ihr künftiges Zuhause! 

Ein Kindergarten und eine Tagesbetreuungsstätte für Kleinkinder direkt vor Ort machen das Leben besonders für Familien angenehm. Als besonderes Highlight ist ein gemütlicher Café/Hofladen geplant, der als Treffpunkt für Bewohner und Nachbarn dient. Zusätzlich stehen den Bewohnern Aufenthaltsmöglichkeiten auf den Dachflächen zur Verfügung, inklusive beschatteter Sitzmöglichkeiten und hauseigener Hochbeete für den Anbau von Gemüse und Kräutern.

Die ausgezeichnete Lage des " Lebensraum Tullnerfeld " mitten im Grünen, nur 10km von der Bezirkshauptstadt Tulln entfernt, verspricht Urbanes Wohnen mit bester Infrastruktur! Geschäfte des täglichen Bedarfs in Michelhausen und Langenrohr sind nur 5 Autominuten entfernt. Genießen Sie Einkaufsmöglichkeiten, gastronomische Angebote sowie Grünflächen, die Raum für Erholung und Entspannung bieten. Die ausgezeichnete Lage ist auch für Pendler nach Wien oder St. Pölten geeignet. Beide Städte sind über den Bahnhof Tullnerfeld innerhalb von 20 Minuten mit dem Zug erreichbar.

Allgemeines zum Wohnbauprojekt:

  • 308 Wohnungen & 7 Gewerbeeinheiten verteilt auf mehrere Bauteile
  • 2-5 Zimmerwohnungen mit Wohnflächen zwischen 38,² und 115m²
  • Jede Wohnung mit privater Freifläche in Form von Balkon, Loggia, Terrasse oder Garten
  • Einlagerungsraum für jede Wohnung
  • Kindergarten & Tagesbetreuungsstätte für Kleinkinder
  • Aufwendig gestaltete Außenanlagen und Gemeinschaftsterrassen mit Pergola
  • Café/Hofladen im Projekt geplant
  • Tiefgarage

Ausstattungsdetails:

  • Vollständig ausgestattete Küchen
  • Feinsteinzeug in den Badezimmern
  • Hochwertiger Design-Vinylboden in den Wohnräumen
  • 3 Scheiben Isolierverglasung mit außenliegendem Sonnenschutz
  • Betonkernaktivierung
  • im Dachgeschoß: Deckenkühlung

Bezugsfertig: ab sofort! 

Befristung:  5 Jahre,  1 Jahr Kündigungsverzicht, 3 Monate Kündigungsfrist

Strom, Heizung und Warm-/Wasser werden nach Verbrauch abgerechnet. 

Nebenkosten  
3 BMM Kaution, Vertragserrichtungsgebühr

Wir weisen darauf hin, dass zwischen dem Vermittler und dem zu vermittelnden Dritten ein familiäres oder wirtschaftliches Naheverhältnis besteht.

Der Immobilienmakler erklärt, dass er – entgegen dem in der Immobilienwirtschaft üblichen Geschäftsgebrauch des Doppelmaklers – einseitig nur für den Vermieter tätig ist.


Infrastruktur / Entfernungen

Gesundheit
Arzt <1.000m
Apotheke <1.250m
Klinik <1.000m
Krankenhaus <7.000m

Kinder & Schulen
Schule <2.750m
Kindergarten <1.000m
Universität <7.000m
Höhere Schule <6.250m

Nahversorgung
Supermarkt <3.250m
Bäckerei <1.250m
Einkaufszentrum <6.750m

Sonstige
Bank <3.250m
Geldautomat <3.250m
Post <2.000m
Polizei <4.750m

Verkehr
Bus <750m
Bahnhof <1.250m
Autobahnanschluss <10.000m

Angaben Entfernung Luftlinie / Quelle: OpenStreetMap


*Der Vertrag kommt nicht mit der INFINA Credit Broker GmbH zustande. Das Objekt wird von einem externen Immobilienunternehmen angeboten. Allfällige aus dem Vertragsabschluss resultierende Rechte sind ausschließlich gegenüber dem anbietenden Immobilienunternehmen geltend zu machen. Wir weisen Sie darauf hin, dass die gemachten Angaben und Informationen lediglich unverbindliche Vorabinformationen sind und daher ohne Gewähr erfolgen. Der Immobilienmakler erklärt, dass er – entgegen dem in der Immobilienwirtschaft üblichen Geschäftsgebrauch des Doppelmaklers – einseitig nur für den Vermieter tätig ist.

Energieausweis & Heizung
HWB (kWh/m2/Jahr): 20.92
HWB Energieklasse B
fGEE: 0.8
fGEE Energieklasse B
Dokumente & Videos Pläne Exposé Preisliste Planmappe
Partner von Infina EHL Wohnen Immobilienmakler
Nahversorgung:
Bäckerei: 4470 m
Einkaufszentrum: 4230 m
Supermarkt: 3300 m
Gesundheit:
Apotheke: 1260 m
Krankenhaus: 7160 m
Arzt: 1150 m
Klinik: 1160 m
Kinder & Schulen:
Schule: 2930 m
Universität: 7040 m
Kindergarten: 1200 m
Höhere Schule: 6400 m
Verkehr:
Bahnhof: 1320 m
Bus: 510 m
Flughafen: 10310 m
Sonstige:
Post: 2020 m
Bank: 2960 m
Geldautomat: 1330 m
Polizei: 4670 m

Jetzt Experten kontaktieren

Weitere interessante Objekte

Immobilie kaufen: Das passende Angebot finden

Der Kauf einer Immobilie ist eine wichtige Entscheidung – sei es für die Eigennutzung oder zur Vermietung. Mit unserem Portal unterstützen wir Sie dabei, die richtige Immobilie zu kaufen. Nutzen Sie unsere Suchmöglichkeiten, um gezielt eine Immobilie zu suchen, die Ihren Vorstellungen entspricht. Unsere Immobilienangebote decken eine breite Palette ab: vom Einfamilienhaus über die Eigentumswohnung bis hin zum Grundstück für Ihr Bauvorhaben. Mit uns können Sie sicher und unkompliziert Eigentum erwerben – ob für die private Nutzung oder als Investition als Immobilie. Erkunden Sie jetzt unsere Angebote und finden Sie die perfekte Lösung, die zu Ihren Wohn- oder Anlagezielen passt.

Fundiertes Wissen für Ihre Entscheidung, eine Immobilie zu kaufen

Bereiten Sie sich bestens vor: Infina stellt Ihnen kostenlos über 300 Ratgeber und Beiträge zu den Themen Immobilie, Finanzierung, Zinsen und Recht zur Verfügung. Nutzen Sie unser umfassendes Wissen, um richtige Entscheidungen zu treffen.

Bei jedem Kauf einer Immobilie oder eines Grundstücks ist es wichtig, die passende Finanzierung zu finden. Mit seiner eigenen Vertriebsorganisation ist Infina als Wohnbau-Finanz-Experte an über 100 Standorten in ganz Österreich vertreten und vermittelt Finanzierungen an über 150 Banken und Bausparkassen. Nutzen Sie unseren kostenlosen Kreditvergleich für den passenden Wohnkredit: 

Kreditvergleich

Kostenlos und unverbindlich

Immobilie mieten: Ihr neues Zuhause wartet

Die Entscheidung, eine Immobilie zu mieten, bietet Flexibilität und zahlreiche Möglichkeiten – ob eine Wohnung für den Alltag oder ein Haus für die Familie. Bei Infina können Sie gezielt sowohl eine Wohnung suchen als auch ein Haus suchen, das Ihren Bedürfnissen entspricht. Unsere Angebote erleichtern es Ihnen, eine Mietwohnung zu suchen und Ihre ideale Wohnung finden zu können. Entdecken Sie vielfältige Optionen, um die passende Immobilie zu finden und Ihre Wohnträume zu verwirklichen. Starten Sie noch heute Ihre Suche und profitieren Sie von einer großen Auswahl an Mietobjekten in Ihrer Wunschregion.

Hilfreiche Informationen zu Immobilie mieten

Starten Sie gut vorbereitet in Ihre Mietentscheidung: Infina stellt Ihnen vielseitige Ratgeber und Beiträge zu Themen wie Immobilie, Mietrecht, Finanzierung und Wohntrends zur Verfügung. Verschaffen Sie sich einen Überblick über alle relevanten Aspekte und gestalten Sie Ihren Weg ins neue Zuhause einfacher und sicherer.

Erfolgreich zur neuen Immobilie

Mit Infina haben Sie einen verlässlichen Partner an Ihrer Seite, der Sie von der ersten Beratung bis zum erfolgreichen Abschluss ganzheitlich unterstützt. Erfahren Sie hier, wie wir gemeinsam Ihren Immobilienerfolg gestalten.

Starten Sie jetzt Ihre Immobiliensuche

Nach zahlreichen Informationen rund um die Themen Immobilie kaufen und Immobilie mieten können Sie nun den nächsten Schritt machen. Starten Sie die Immobiliensuche, um Ihr neues Zuhause oder Ihre nächste Investition zu finden und entdecken Sie die passenden Angebote:

Das innovative Portal für Immobilien und Finanzierung 

Als Kunde von Infina profitieren Sie von unserer umfangreichen und unabhängigen Expertise als Teil einer wachsenden, unabhängigen Immobilien- und Finanzierungsnetzwerkgruppe. Bereits 50.000 Kunden hat Infina erfolgreich bei Ihrem Vorhaben begleitet. Infina bietet Ihnen eine umfassende Beratung in allen Bereichen rund um Ihre Immobilienvorhaben:

Die passende Finanzierung für Ihre Immobilie

Mit Infina erhalten Sie nicht nur eine unabhängige Beratung, sondern auch die passende Finanzierungslösung für Ihre Immobilie. Aus den Angeboten von über 150 Banken und Bausparkassen vermitteln wir Ihnen das, was perfekt zu Ihren Bedürfnissen passt. Wir begleiten Sie professionell und verlässlich – von der ersten Beratung bis zum erfolgreichen Abschluss.

Kreditvergleich

Kostenlos und unverbindlich

Wir holen das Beste für Sie heraus

Verkaufen Sie Ihre Immobilie mit uns & profitieren Sie von unserer Expertise. Wir bringen Ihre Immobilie optimal auf den Markt & erzielen den besten Preis. 

Kontaktieren Sie uns jetzt.

Jetzt Experten kontaktieren
Junge Frau im pinken Blazer hält ein Modellhaus in der linken Hand und zeigt mit der rechten Hand nach oben, als hätte sie eine Idee. Sie lächelt und blickt leicht nach oben – symbolisch für Inspiration oder Immobilienberatung.