INFINA LOGO
Entspannt zur Immobilie Persönlich & kompetent beraten Finanzierbarkeit sofort überprüfbar
1.380.500 €
Kostenlos &
unverbindlich.
Kontakt aufnehmen

Altbau-Zinshaus mit Ausbaupotenzial – im Paket oder wohnungsweise zu kaufen

Obj. Nr.: 50555

Partner von Infina Sinnvestment Immobilien Immobilienmakler 
Partner von Infina Sinnvestment Immobilien Immobilienmakler
1.380.500 € Kaufpreis der Immobilie Kreditvergleich von über 120 Banken mit Infina.
Immobilie finanzieren
Mehr Informationen zur Immobilie: Detaillierte Einblicke in dieses Objekt.
Zurück zur Übersicht

Objektstandort

8020 Graz, Steiermark Adresse anfragen

Directions Icon Fahrtzeit berechnen
Preisinformationen
Kaufpreis 1.380.500 €
Grundbucheintragung: 1.1 %
Grunderwerbsteuer: 3.5 %
Was kann ich mir leisten?
Jetzt berechnen

Objektinformationen

Objektart: Wohnung
Nutzungsart: Wohnen, Anlage
Baujahr: 1912

Rauminformationen & Flächen

Ausstattung

Befeuerung: Gas
Bauweise: Massiv

Lage

Gaswerkstraße 62 – zentrale Lage im aufstrebenden Bezirk Eggenberg. Nur wenige Gehminuten zur FH Joanneum, zum UKH und zur Straßenbahn. Alles da: Nahversorger, Parkanlagen und die Auster-Therme. Beliebte Wohnlage mit stabiler Nachfrage.

Beschreibung *

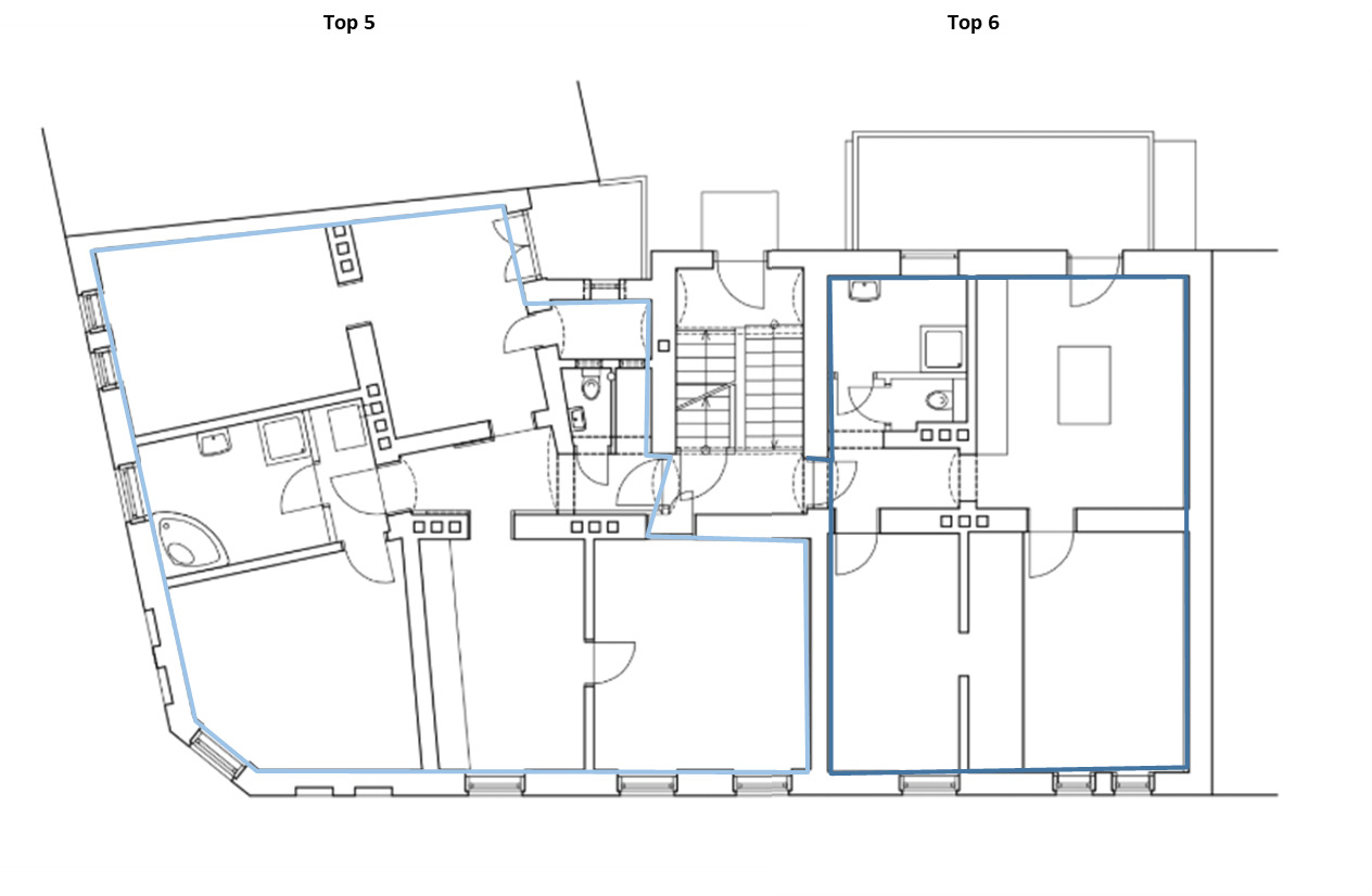
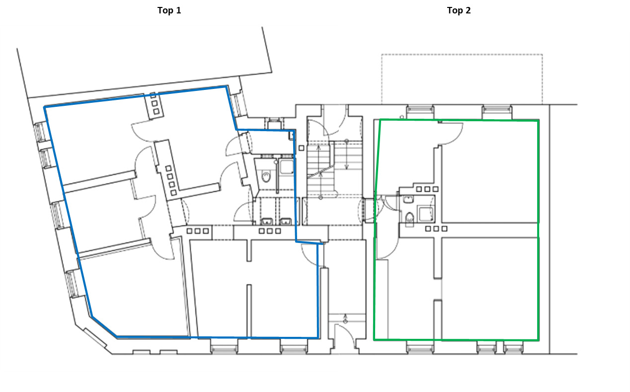
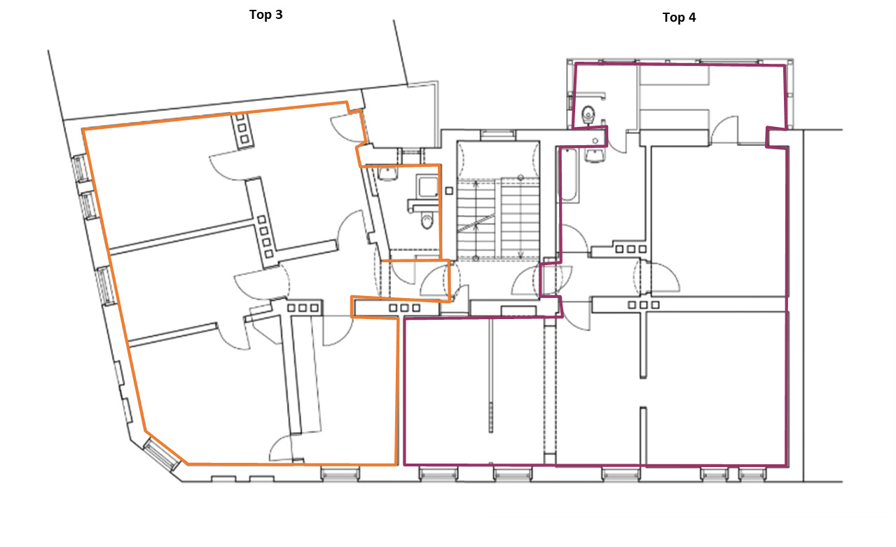
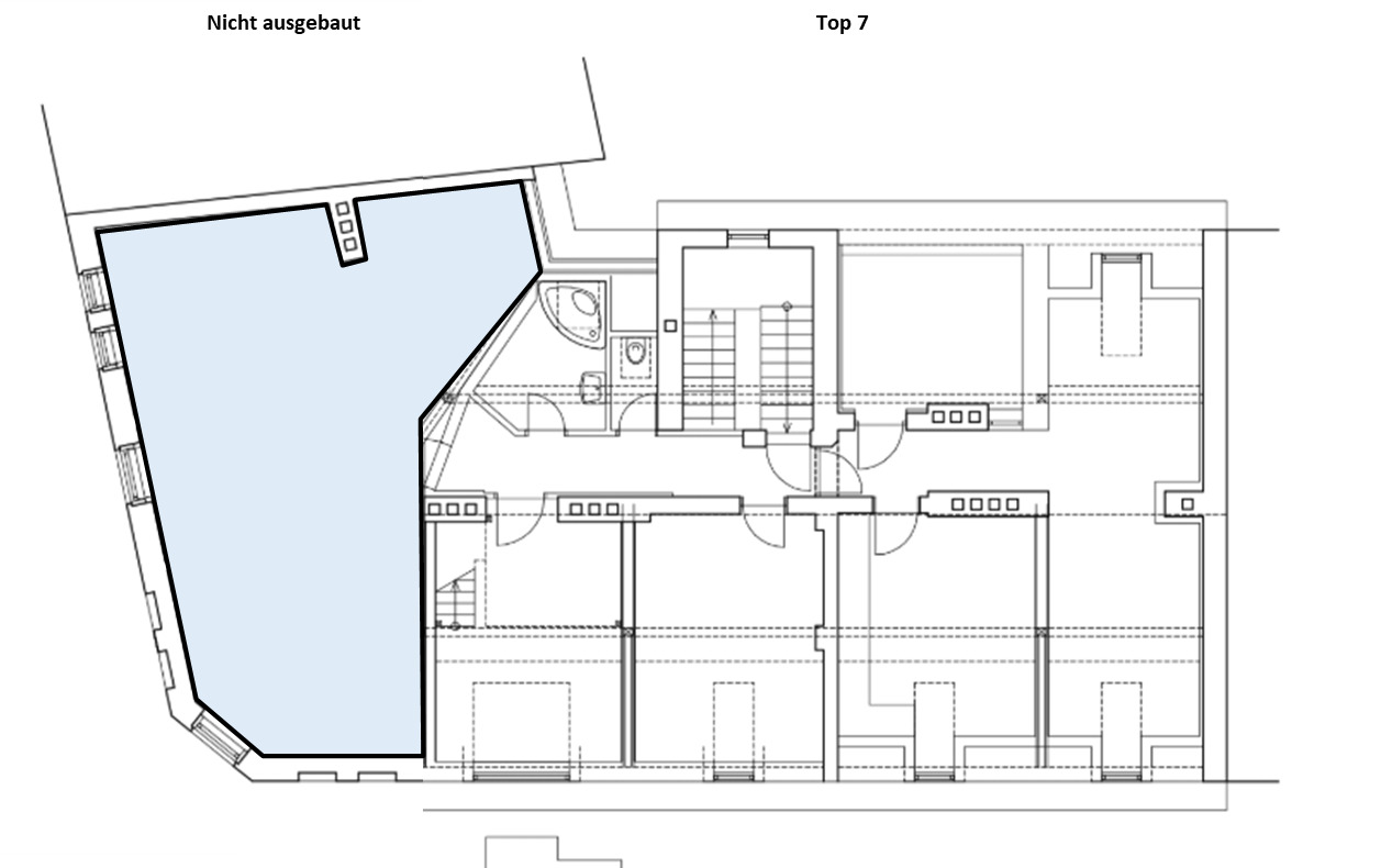
Zum Verkauf steht ein klassisches Eckzinshaus aus dem Jahr 1912 in attraktiver Lage von Graz-Eggenberg, Gaswerkstraße 62. Das gepflegte Altbauhaus umfasst insgesamt sieben Einheiten: eine seit 2014 vermietete Ordination im Erdgeschoss sowie sechs Wohnungen mit Wohnflächen von rund 57 m² bis ca. 105 m². Die Beheizung der Einheiten erfolgt derzeit mittels Gas. Ein besonderes Plus: Die Einheiten können sowohl im Paket als ganzes Zinshaus als auch einzeln erworben werden.

Die Nutzung ist gemischt aus langfristig vermieteten und freiwerdenden Einheiten: Mehrere Wohnungen sind seit vielen Jahren unbefristet vermietet und sorgen für laufende, gut kalkulierbare Mieteinnahmen. Zwei großzügige Altbauwohnungen im 1. Obergeschoss sind bereits bestandsfrei und eignen sich ideal für Eigennutzung, Neuvermietung oder Mietoptimierung. Die Dachgeschosswohnung Top 7 wird mit Jänner 2026 frei und bietet – neben der Möglichkeit zur Eigennutzung oder Neuvermietung – ein besonderes Entwicklungspotenzial: Direkt angrenzend liegt der Rohdachboden, der bei entsprechendem Ausbau eine deutliche Wohnflächenerweiterung dieser Einheit ermöglichen kann. 

Typische Altbauattribute wie hohe Räume, Fischgrätparkett, große Fensterflächen und teilweise modernisierte Bäder und Küchen unterstreichen den Charme der Liegenschaft. Insgesamt präsentiert sich das Zinshaus in einem dem Alter entsprechenden, gepflegten Zustand mit interessantem Wertsteigerungs- und Entwicklungspotenzial.

Die Lage im Westen von Graz punktet mit sehr guter Anbindung: Nähe FH Joanneum, UKH Graz, Straßenbahn, Auster, Nahversorger und diverse Freizeitangebote sorgen für eine dauerhaft gefragte Wohn- und Ordinationslage.

Highlights im Überblick:

  • Klassisches Eckzinshaus aus 1912 in attraktiver Lage Eggenberg

  • Gemischte Nutzung: Ordination + Wohnungen

  • Großteils langfristig vermietet, laufende Mieteinnahmen

  • Mehrere bestandsfreie bzw. freiwerdende Einheiten (inkl. Top 7 ab Jänner 2026)

  • Ausbaupotenzial durch angrenzenden Rohdachboden neben Top 7

  • Charmante Altbaumerkmale (hohe Räume, Parkett, große Fenster)

  • Gute Infrastruktur und öffentliche Anbindung, Nähe FH und UKH Graz

Gesamtkaufpreis: € 1.380.500,-

TOP Kaufpreis Größe m²-Preis Miete p.m. vermietet

1

249.800 € 84,40 m² 2.960 € 1.111 € ja 2 131.465 € 57,66 m² 2.280 € 154 € ja 3 189.605 € 80,08 m² 2.310 € 698 € nein 4 229.165 € 93,92 m² 2.440 € 798 € nein 5 210.021 € 100,01 m² 2.100 € 262 € ja 6 136.595 € 59,91 m² 2.280 € 248 € ja 7 233.882 € 104,88 m² 2.230 € 944 € nein

Der Vermittler ist als Doppelmakler tätig.


*Der Vertrag kommt nicht mit der INFINA Credit Broker GmbH zustande. Das Objekt wird von einem externen Immobilienunternehmen angeboten. Allfällige aus dem Vertragsabschluss resultierende Rechte sind ausschließlich gegenüber dem anbietenden Immobilienunternehmen geltend zu machen. Wir weisen Sie darauf hin, dass die gemachten Angaben und Informationen lediglich unverbindliche Vorabinformationen sind und daher ohne Gewähr erfolgen. Der Vermittler ist als Doppelmakler tätig.

Energieausweis & Heizung
HWB (kWh/m2/Jahr): 123.39
HWB Energieklasse D
fGEE Energieklasse D
Befeuerung: Gas
Dokumente & Videos Pläne Pläne Pläne Pläne
Partner von Infina Sinnvestment Immobilien Immobilienmakler
Nahversorgung:
Supermarkt: 240 m
Einkaufszentrum: 620 m
Bäckerei: 480 m
Gesundheit:
Apotheke: 580 m
Arzt: 190 m
Klinik: 660 m
Krankenhaus: 1130 m
Kinder & Schulen:
Höhere Schule: 300 m
Schule: 600 m
Universität: 180 m
Kindergarten: 370 m
Verkehr:
Autobahnanschluss: 4180 m
Bus: 120 m
Straßenbahn: 10 m
Flughafen: 9410 m
Bahnhof: 300 m
Sonstige:
Post: 410 m
Geldautomat: 350 m
Bank: 190 m
Polizei: 440 m

Jetzt Experten kontaktieren

Weitere interessante Objekte

Partner von Infina
Jetzt anfragen
ca. 76,74 m² Wohnfläche 3 Zimmer
405.801 €
Partner von Infina
Jetzt anfragen
199.305 €
Partner von Infina
Jetzt anfragen
269.000 €
Partner von Infina
Jetzt anfragen
ca. 83,00 m² Nutzfläche 4,5 Zimmer
Auf Anfrage
Partner von Infina
Jetzt anfragen
213.000 €
Partner von Infina
Jetzt anfragen
115.000 €
Partner von Infina
Jetzt anfragen
139.000 €

Immobilie kaufen: Das passende Angebot finden

Der Kauf einer Immobilie ist eine wichtige Entscheidung – sei es für die Eigennutzung oder zur Vermietung. Mit unserem Portal unterstützen wir Sie dabei, die richtige Immobilie zu kaufen. Nutzen Sie unsere Suchmöglichkeiten, um gezielt eine Immobilie zu suchen, die Ihren Vorstellungen entspricht. Unsere Immobilienangebote decken eine breite Palette ab: vom Einfamilienhaus über die Eigentumswohnung bis hin zum Grundstück für Ihr Bauvorhaben. Mit uns können Sie sicher und unkompliziert Eigentum erwerben – ob für die private Nutzung oder als Investition als Immobilie. Erkunden Sie jetzt unsere Angebote und finden Sie die perfekte Lösung, die zu Ihren Wohn- oder Anlagezielen passt.

Fundiertes Wissen für Ihre Entscheidung, eine Immobilie zu kaufen

Bereiten Sie sich bestens vor: Infina stellt Ihnen kostenlos über 300 Ratgeber und Beiträge zu den Themen Immobilie, Finanzierung, Zinsen und Recht zur Verfügung. Nutzen Sie unser umfassendes Wissen, um richtige Entscheidungen zu treffen.

Bei jedem Kauf einer Immobilie oder eines Grundstücks ist es wichtig, die passende Finanzierung zu finden. Mit seiner eigenen Vertriebsorganisation ist Infina als Wohnbau-Finanz-Experte an über 100 Standorten in ganz Österreich vertreten und vermittelt Finanzierungen an über 150 Banken und Bausparkassen. Nutzen Sie unseren kostenlosen Kreditvergleich für den passenden Wohnkredit: 

Kreditvergleich

Kostenlos und unverbindlich

Immobilie mieten: Ihr neues Zuhause wartet

Die Entscheidung, eine Immobilie zu mieten, bietet Flexibilität und zahlreiche Möglichkeiten – ob eine Wohnung für den Alltag oder ein Haus für die Familie. Bei Infina können Sie gezielt sowohl eine Wohnung suchen als auch ein Haus suchen, das Ihren Bedürfnissen entspricht. Unsere Angebote erleichtern es Ihnen, eine Mietwohnung zu suchen und Ihre ideale Wohnung finden zu können. Entdecken Sie vielfältige Optionen, um die passende Immobilie zu finden und Ihre Wohnträume zu verwirklichen. Starten Sie noch heute Ihre Suche und profitieren Sie von einer großen Auswahl an Mietobjekten in Ihrer Wunschregion.

Hilfreiche Informationen zu Immobilie mieten

Starten Sie gut vorbereitet in Ihre Mietentscheidung: Infina stellt Ihnen vielseitige Ratgeber und Beiträge zu Themen wie Immobilie, Mietrecht, Finanzierung und Wohntrends zur Verfügung. Verschaffen Sie sich einen Überblick über alle relevanten Aspekte und gestalten Sie Ihren Weg ins neue Zuhause einfacher und sicherer.

Erfolgreich zur neuen Immobilie

Mit Infina haben Sie einen verlässlichen Partner an Ihrer Seite, der Sie von der ersten Beratung bis zum erfolgreichen Abschluss ganzheitlich unterstützt. Erfahren Sie hier, wie wir gemeinsam Ihren Immobilienerfolg gestalten.

Starten Sie jetzt Ihre Immobiliensuche

Nach zahlreichen Informationen rund um die Themen Immobilie kaufen und Immobilie mieten können Sie nun den nächsten Schritt machen. Starten Sie die Immobiliensuche, um Ihr neues Zuhause oder Ihre nächste Investition zu finden und entdecken Sie die passenden Angebote:

Das innovative Portal für Immobilien und Finanzierung 

Als Kunde von Infina profitieren Sie von unserer umfangreichen und unabhängigen Expertise als Teil einer wachsenden, unabhängigen Immobilien- und Finanzierungsnetzwerkgruppe. Bereits 50.000 Kunden hat Infina erfolgreich bei Ihrem Vorhaben begleitet. Infina bietet Ihnen eine umfassende Beratung in allen Bereichen rund um Ihre Immobilienvorhaben:

Die passende Finanzierung für Ihre Immobilie

Mit Infina erhalten Sie nicht nur eine unabhängige Beratung, sondern auch die passende Finanzierungslösung für Ihre Immobilie. Aus den Angeboten von über 150 Banken und Bausparkassen vermitteln wir Ihnen das, was perfekt zu Ihren Bedürfnissen passt. Wir begleiten Sie professionell und verlässlich – von der ersten Beratung bis zum erfolgreichen Abschluss.

Kreditvergleich

Kostenlos und unverbindlich

Wir holen das Beste für Sie heraus

Verkaufen Sie Ihre Immobilie mit uns & profitieren Sie von unserer Expertise. Wir bringen Ihre Immobilie optimal auf den Markt & erzielen den besten Preis. 

Kontaktieren Sie uns jetzt.

Jetzt Experten kontaktieren
Junge Frau im pinken Blazer hält ein Modellhaus in der linken Hand und zeigt mit der rechten Hand nach oben, als hätte sie eine Idee. Sie lächelt und blickt leicht nach oben – symbolisch für Inspiration oder Immobilienberatung.