INFINA LOGO
Entspannt zur Immobilie Persönlich & kompetent beraten Finanzierbarkeit sofort überprüfbar
864 € Gesamtmiete inkl. USt.
Kostenlos &
unverbindlich.
Kontakt aufnehmen

Wohnen im Smart Quadrat: Komfort, Innovation und Urbanität vereint

Obj. Nr.: 11660

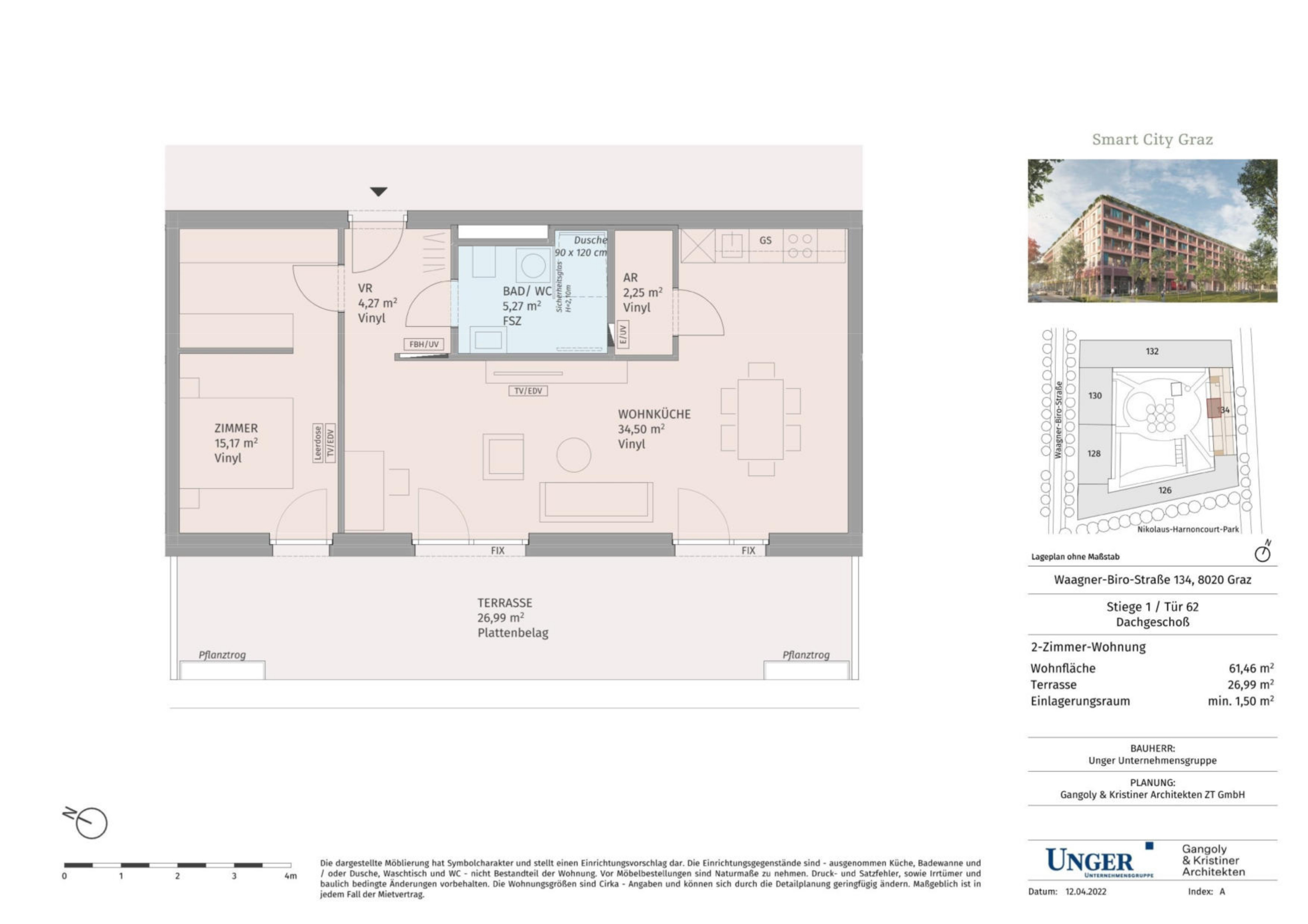
ca. 61,46 m² Wohnfläche 2 Zimmer
Partner von Infina EHL Wohnen Immobilienmakler 
Partner von Infina EHL Wohnen Immobilienmakler
864 € Gesamtmiete inkl. USt. Mietkaution finanzieren?
Jetzt beantragen
Mehr Informationen zur Immobilie: Detaillierte Einblicke in dieses Objekt.
Zurück zur Übersicht

Objektstandort

8020 Graz, Waagner-Biro-Straße 62a, Steiermark

Directions Icon Fahrtzeit berechnen
Preisinformationen
Betriebskosten (exkl. USt.) € 176,38
Gesamtbelastung € 863,63
Maklerprovision:
Gemäß Erstauftraggeberprinzip bezahlt der Vermieter/Verpächter die Provision.

Objektinformationen

Objektart: Wohnung
Nutzungsart: Wohnen
Bauart: Neubau
Zustand: Erstbezug

Rauminformationen & Flächen

Wohnfläche: ca. 61,46 m²
Kellerfläche: ca. 1,50 m²
Terrassenfläche: ca. 26,99 m²
Anzahl Terrassen: 1
Anzahl Zimmer: 2
Anzahl WC: 1
Anzahl Bäder: 1

Ausstattung

Boden: Fliesen, Parkett
Heizungsart: Fußbodenheizung
Küche: Einbauküche, Wohnküche / offene Küche
Fahrstuhl: Personenaufzug
Balkon: Westbalkon / -terrasse
Bad: Dusche

Beschreibung *

Modernes Wohnen im Smart Quadrat – Ihr Zuhause im Herzen der Smart City Graz

Das moderne Wohnprojekt Smart Quadrat im Herzen der Smart City Graz wartet mit einer Vielzahl an Vorteilen für Familien, Studenten, junge Berufstätige, Senioren und kreative Köpfe auf, die im modernen, ruhigeren Stadtteil von Graz zu Hause und nur wenige Minuten vom lebendigen, pulsierenden Stadtzentrum entfernt leben wollen.

Smarte Grundrisse, großzügige Wohnräume und ein vielfältiger Wohnungsmix gewährleisten höchsten Wohnkomfort und bieten die passende Wohnung für jedes Raumbedürfnis und jede Lebensphase.

Den zukünftigen Smart Quadrat -Bewohnern stehen zudem eine Vielzahl an Gemeinschaftsräumen, wie z.B. Fitnessräume, Shared Offices, Indoorspielplätze sowie ein Spielplatz im Innenhof, Washing-Lounges, eine Fahrradwerkstatt, Hobby- & Freizeiträume sowie Stellplätze in der hauseigenen Garage zur Verfügung. Ein Nahversorger und eine Bäckerei mit Caféhaus befinden sich ebenfalls direkt im Wohnkomplex. Weitere Geschäfte des täglichen Bedarfs, Ärzte, Schulen und Gastronomielokale sind fußläufig erreichbar. Auch eine große Parkanlage wird derzeit auf dem Nachbargrundstück realisiert. Ein perfekter Mix aus urbanem Leben und privater Erholung!

Smart Quadrat  ist ein Teil des innovativen Stadtviertels Smart City. Eine neue Straßenbahnlinie bringt Sie im Handumdrehen und umweltfreundlich zu Ihrem Zielort in Graz.

Sollte doch einmal ein Auto benötigt werden, steht Bewohnern des  Smart Quadrats  die Möglichkeit zur Verfügung gleich gegenüber durch ein Car Sharing Modell ein Auto zu mieten, um so kostengünstig und flexibel von A nach B zu gelangen. Um Ihr eigenes Fahrzeug vor der Witterung zu schützen, werden im Smart Quadrat auch Tiefgaragenparkplätze angeboten, welche zusätzlich angemietet werden können. Ebenso sind Abstellplätze für Fahrräder vorhanden.

Nicht nur das Projekt selbst, sondern auch sein Standort überzeugt mit einer optimalen Infrastruktur und Nahversorgung: Ihren Einkauf können Sie problemlos zu Fuß erledigen. Die gute Anbindung ans Stadtzentrum eröffnet Ihnen außerdem zahlreiche weitere Freizeitmöglichkeiten und kulturelle Angebote. 

Ausstattung:

Details, auf die Sie sind im neuen Wohnraum freuen können:

  • Vinyl oder Parkettböden
  • Hochwertige Fliesen in den Nassräumen
  • Markenküchen
  • Badezimmer mit Dusche oder Badewanne
  • Fußbodenheizung und Fußbodenkühlung
  • Fernwärme
  • Aufzüge
  • Lagerabteile
  • Tiefgaragenstellplätze
  • Fahrradabstellplätze

Heizung und Warmwasser werden nach Verbrauch abgerechnet.
    
Öffentliche Verkehrsanbindung:
Straßenbahn: 6 
Buslinie: 40, 48, 52, 62, 65, 65A, 67, N1
Bahn: Graz Hauptbahnhof (12min via Straßenbahnlinie 6)

Befristung : 5 Jahre, 1 Jahr Kündigungsverzicht, 3 Monate Kündigungsfrist

Nebenkosten  
3 BMM Kaution

Wir weisen darauf hin, dass zwischen dem Vermittler und dem zu vermittelnden Dritten ein familiäres oder wirtschaftliches Naheverhältnis besteht.

Der Immobilienmakler erklärt, dass er – entgegen dem in der Immobilienwirtschaft üblichen Geschäftsgebrauch des Doppelmaklers – einseitig nur für den Vermieter tätig ist.


Infrastruktur / Entfernungen

Gesundheit
Arzt <500m
Apotheke <500m
Klinik <250m
Krankenhaus <1.000m

Kinder & Schulen
Schule <250m
Kindergarten <250m
Universität <1.500m
Höhere Schule <1.500m

Nahversorgung
Supermarkt <250m
Bäckerei <250m
Einkaufszentrum <1.250m

Sonstige
Geldautomat <500m
Bank <500m
Post <500m
Polizei <1.000m

Verkehr
Bus <250m
Straßenbahn <250m
Autobahnanschluss <4.750m
Bahnhof <1.250m

Angaben Entfernung Luftlinie / Quelle: OpenStreetMap


*Der Vertrag kommt nicht mit der INFINA Credit Broker GmbH zustande. Das Objekt wird von einem externen Immobilienunternehmen angeboten. Allfällige aus dem Vertragsabschluss resultierende Rechte sind ausschließlich gegenüber dem anbietenden Immobilienunternehmen geltend zu machen. Wir weisen Sie darauf hin, dass die gemachten Angaben und Informationen lediglich unverbindliche Vorabinformationen sind und daher ohne Gewähr erfolgen. Der Immobilienmakler erklärt, dass er – entgegen dem in der Immobilienwirtschaft üblichen Geschäftsgebrauch des Doppelmaklers – einseitig nur für den Vermieter tätig ist.

Energieausweis & Heizung
HWB (kWh/m2/Jahr): 21.31
HWB Energieklasse B
fGEE: 0.78
fGEE Energieklasse B
Gültig bis: 03.04.2033
Heizung: Fußbodenheizung
Dokumente & Videos Pläne Preisliste Planmappe Lagereport Energieausweis 6A Energieausweis 6D Energieausweis 6E
Partner von Infina EHL Wohnen Immobilienmakler
Verkehr:
Bahnhof: 600 m
Autobahnanschluss: 4920 m
Straßenbahn: 160 m
Bus: 150 m
Flughafen: 10120 m
Nahversorgung:
Bäckerei: 520 m
Supermarkt: 220 m
Einkaufszentrum: 720 m
Sonstige:
Bank: 200 m
Polizei: 520 m
Geldautomat: 240 m
Post: 450 m
Kinder & Schulen:
Kindergarten: 400 m
Höhere Schule: 940 m
Universität: 890 m
Schule: 150 m
Gesundheit:
Arzt: 530 m
Apotheke: 190 m
Klinik: 550 m
Krankenhaus: 980 m

Jetzt Experten kontaktieren

Immobilie kaufen: Das passende Angebot finden

Der Kauf einer Immobilie ist eine wichtige Entscheidung – sei es für die Eigennutzung oder zur Vermietung. Mit unserem Portal unterstützen wir Sie dabei, die richtige Immobilie zu kaufen. Nutzen Sie unsere Suchmöglichkeiten, um gezielt eine Immobilie zu suchen, die Ihren Vorstellungen entspricht. Unsere Immobilienangebote decken eine breite Palette ab: vom Einfamilienhaus über die Eigentumswohnung bis hin zum Grundstück für Ihr Bauvorhaben. Mit uns können Sie sicher und unkompliziert Eigentum erwerben – ob für die private Nutzung oder als Investition als Immobilie. Erkunden Sie jetzt unsere Angebote und finden Sie die perfekte Lösung, die zu Ihren Wohn- oder Anlagezielen passt.

Fundiertes Wissen für Ihre Entscheidung, eine Immobilie zu kaufen

Bereiten Sie sich bestens vor: Infina stellt Ihnen kostenlos über 300 Ratgeber und Beiträge zu den Themen Immobilie, Finanzierung, Zinsen und Recht zur Verfügung. Nutzen Sie unser umfassendes Wissen, um richtige Entscheidungen zu treffen.

Bei jedem Kauf einer Immobilie oder eines Grundstücks ist es wichtig, die passende Finanzierung zu finden. Mit seiner eigenen Vertriebsorganisation ist Infina als Wohnbau-Finanz-Experte an über 100 Standorten in ganz Österreich vertreten und vermittelt Finanzierungen an über 120 Banken und Bausparkassen. Nutzen Sie unseren kostenlosen Kreditvergleich für den passenden Wohnkredit: 

Kreditvergleich

Kostenlos und unverbindlich

Immobilie mieten: Ihr neues Zuhause wartet

Die Entscheidung, eine Immobilie zu mieten, bietet Flexibilität und zahlreiche Möglichkeiten – ob eine Wohnung für den Alltag oder ein Haus für die Familie. Bei Infina können Sie gezielt sowohl eine Wohnung suchen als auch ein Haus suchen, das Ihren Bedürfnissen entspricht. Unsere Angebote erleichtern es Ihnen, eine Mietwohnung zu suchen und Ihre ideale Wohnung finden zu können. Entdecken Sie vielfältige Optionen, um die passende Immobilie zu finden und Ihre Wohnträume zu verwirklichen. Starten Sie noch heute Ihre Suche und profitieren Sie von einer großen Auswahl an Mietobjekten in Ihrer Wunschregion.

Hilfreiche Informationen zu Immobilie mieten

Starten Sie gut vorbereitet in Ihre Mietentscheidung: Infina stellt Ihnen vielseitige Ratgeber und Beiträge zu Themen wie Immobilie, Mietrecht, Finanzierung und Wohntrends zur Verfügung. Verschaffen Sie sich einen Überblick über alle relevanten Aspekte und gestalten Sie Ihren Weg ins neue Zuhause einfacher und sicherer.

Erfolgreich zur neuen Immobilie

Mit Infina haben Sie einen verlässlichen Partner an Ihrer Seite, der Sie von der ersten Beratung bis zum erfolgreichen Abschluss ganzheitlich unterstützt. Erfahren Sie hier, wie wir gemeinsam Ihren Immobilienerfolg gestalten.

Starten Sie jetzt Ihre Immobiliensuche

Nach zahlreichen Informationen rund um die Themen Immobilie kaufen und Immobilie mieten können Sie nun den nächsten Schritt machen. Starten Sie die Immobiliensuche, um Ihr neues Zuhause oder Ihre nächste Investition zu finden und entdecken Sie die passenden Angebote:

Das innovative Portal für Immobilien und Finanzierung 

Als Kunde von Infina profitieren Sie von unserer umfangreichen und unabhängigen Expertise als Teil einer wachsenden, unabhängigen Immobilien- und Finanzierungsnetzwerkgruppe. Bereits 50.000 Kunden hat Infina erfolgreich bei Ihrem Vorhaben begleitet. Infina bietet Ihnen eine umfassende Beratung in allen Bereichen rund um Ihre Immobilienvorhaben:

Die passende Finanzierung für Ihre Immobilie

Mit Infina erhalten Sie nicht nur eine unabhängige Beratung, sondern auch die passende Finanzierungslösung für Ihre Immobilie. Aus den Angeboten von über 120 Banken und Bausparkassen vermitteln wir Ihnen das, was perfekt zu Ihren Bedürfnissen passt. Wir begleiten Sie professionell und verlässlich – von der ersten Beratung bis zum erfolgreichen Abschluss.

Kreditvergleich

Kostenlos und unverbindlich

Wir holen das Beste für Sie heraus

Verkaufen Sie Ihre Immobilie mit uns & profitieren Sie von unserer Expertise. Wir bringen Ihre Immobilie optimal auf den Markt & erzielen den besten Preis. 

Kontaktieren Sie uns jetzt.

Jetzt Experten kontaktieren
Junge Frau im pinken Blazer hält ein Modellhaus in der linken Hand und zeigt mit der rechten Hand nach oben, als hätte sie eine Idee. Sie lächelt und blickt leicht nach oben – symbolisch für Inspiration oder Immobilienberatung.