INFINA LOGO
Entspannt zur Immobilie Persönlich & kompetent beraten Finanzierbarkeit sofort überprüfbar
1.199 € Gesamtmiete inkl. USt.
Kostenlos &
unverbindlich.
Kontakt aufnehmen

Charmante 2-Zimmer-Wohnung mit verglaster Loggia und Tiefgaragenplatz in Bregenz

Obj. Nr.: 160300

ca. 62,00 m² Wohnfläche 2 Zimmer
Partner von Infina Rimo Immobilien Immobilienmakler 
Partner von Infina Rimo Immobilien Immobilienmakler
1.199 € Gesamtmiete inkl. USt. Mietkaution finanzieren?
Jetzt beantragen
Mehr Informationen zur Immobilie: Detaillierte Einblicke in dieses Objekt.
Zurück zur Übersicht

Objektstandort

6900 Bregenz, Arlbergstraße 91/11, Vorarlberg

Directions Icon Fahrtzeit berechnen
Preisinformationen
Betriebskosten (exkl. USt.) € 281,13
Gesamtbelastung € 1.199,13
Maklerprovision:
Gemäß Erstauftraggeberprinzip bezahlt der Vermieter/Verpächter die Provision.

Objektinformationen

Objektart: Wohnung
Unterobjektart: Terrassenwohnung
Nutzungsart: Wohnen
Bauart: Neubau
Zustand: gepflegt
Baujahr: 1995
barrierefrei: Ja

Rauminformationen & Flächen

Wohnfläche: ca. 62,00 m²
Kellerfläche: ca. 5,00 m²
Loggiafläche: ca. 6,00 m²
Anzahl Loggias: 1
Anzahl Stellplätze: 1
Anzahl Zimmer: 2
Anzahl WC: 1
Anzahl Bäder: 1

Ausstattung

Boden: Fliesen, Parkett
Heizungsart: Zentralheizung
Küche: Einbauküche
Fahrstuhl: Personenaufzug
Balkon: Südbalkon / -terrasse
Dachform: Flachdach
Bauweise: Massiv

Lage

Die Lage in Bregenz ist attraktiv und alltagstauglich. Einkaufsmöglichkeiten, öffentliche Verkehrsmittel, Schulen sowie Freizeit- und Erholungsmöglichkeiten sind gut erreichbar. Gleichzeitig bietet die Wohnanlage ein angenehmes Wohnumfeld.

Beschreibung *

In einer gepflegten und schönen Wohnanlage in der Arlbergstraße 91 in Bregenz befindet sich diese attraktive Wohnung im 1. Obergeschoss . Die Wohnung präsentiert sich in einem sehr guten Zustand, wurde neu ausgemalt und die Böden wurden frisch geschliffen und versiegelt .

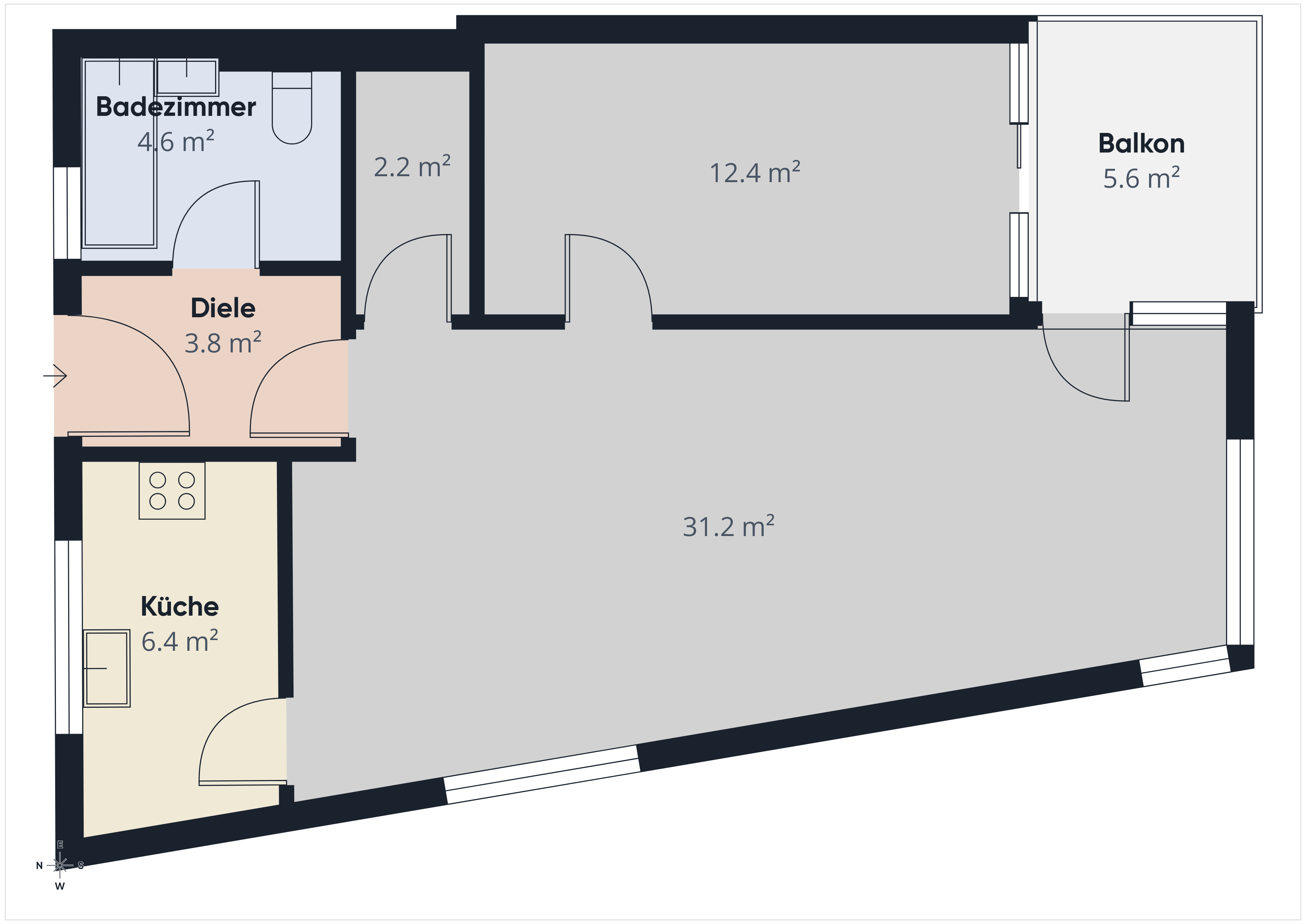
Der Grundriss überzeugt durch eine durchdachte Raumaufteilung: Über die Diele gelangt man zentral in die einzelnen Wohnbereiche. Es stehen ein großzügiger Wohn- und Essbereich mit rund 31 m² , ein weiteres Zimmer mit ca. 13 m² , eine separat abgetrennte Küche  sowie ein Badezimmer  zur Verfügung. Zusätzlich bietet ein Abstellraum praktischen Stauraum.

Besonders hervorzuheben ist die moderne Einbauküche , die bereits mit allen Geräten ausgestattet ist. Auch die schöne verglaste Loggia bietet einen echten Mehrwert: Die beweglichen Schiebeelemente lassen sich flexibel anpassen und schaffen so je nach Wetter und Wunsch einen geschützten oder offenen Außenbereich.

Ein weiterer Pluspunkt: Ein Tiefgaragenstellplatz ist bereits im Preis inkludiert.

Hinweis gemäß Energieausweisvorlagegesetz: Ein Energieausweis wurde vom Eigentümer bzw. Verkäufer, nach unserer Aufklärung über die generell geltende Vorlagepflicht, sowie Aufforderung zu seiner Erstellung noch nicht vorgelegt. Daher gilt zumindest eine dem Alter und der Art des Gebäudes entsprechende Gesamtenergieeffizienz als vereinbart. Wir übernehmen keinerlei Gewähr oder Haftung für die tatsächliche Energieeffizienz der angebotenen Immobilie.

Der Immobilienmakler erklärt, dass er – entgegen dem in der Immobilienwirtschaft üblichen Geschäftsgebrauch des Doppelmaklers – einseitig nur für den Vermieter tätig ist.


Infrastruktur / Entfernungen

Gesundheit
Arzt <600m
Apotheke <575m
Krankenhaus <975m
Klinik <1.175m

Kinder & Schulen
Schule <75m
Kindergarten <525m
Universität <1.600m
Höhere Schule <5.100m

Nahversorgung
Supermarkt <400m
Bäckerei <475m
Einkaufszentrum <1.350m

Sonstige
Bank <500m
Geldautomat <575m
Post <800m
Polizei <975m

Verkehr
Bus <50m
Autobahnanschluss <950m
Bahnhof <975m

Angaben Entfernung Luftlinie / Quelle: OpenStreetMap


*Der Vertrag kommt nicht mit der INFINA Credit Broker GmbH zustande. Das Objekt wird von einem externen Immobilienunternehmen angeboten. Allfällige aus dem Vertragsabschluss resultierende Rechte sind ausschließlich gegenüber dem anbietenden Immobilienunternehmen geltend zu machen. Wir weisen Sie darauf hin, dass die gemachten Angaben und Informationen lediglich unverbindliche Vorabinformationen sind und daher ohne Gewähr erfolgen. Der Immobilienmakler erklärt, dass er – entgegen dem in der Immobilienwirtschaft üblichen Geschäftsgebrauch des Doppelmaklers – einseitig nur für den Vermieter tätig ist.

Heizung: Zentralheizung
Dokumente & Videos Pläne
Partner von Infina Rimo Immobilien Immobilienmakler
Sonstige:
Post: 800 m
Geldautomat: 580 m
Polizei: 960 m
Bank: 490 m
Verkehr:
Autobahnanschluss: 940 m
Bus: 40 m
Bahnhof: 1170 m
Gesundheit:
Arzt: 600 m
Klinik: 1180 m
Apotheke: 580 m
Krankenhaus: 990 m
Nahversorgung:
Supermarkt: 390 m
Bäckerei: 460 m
Einkaufszentrum: 1350 m
Kinder & Schulen:
Schule: 70 m
Höhere Schule: 5090 m
Universität: 1600 m
Kindergarten: 510 m

Jetzt Experten kontaktieren

Immobilie kaufen: Das passende Angebot finden

Der Kauf einer Immobilie ist eine wichtige Entscheidung – sei es für die Eigennutzung oder zur Vermietung. Mit unserem Portal unterstützen wir Sie dabei, die richtige Immobilie zu kaufen. Nutzen Sie unsere Suchmöglichkeiten, um gezielt eine Immobilie zu suchen, die Ihren Vorstellungen entspricht. Unsere Immobilienangebote decken eine breite Palette ab: vom Einfamilienhaus über die Eigentumswohnung bis hin zum Grundstück für Ihr Bauvorhaben. Mit uns können Sie sicher und unkompliziert Eigentum erwerben – ob für die private Nutzung oder als Investition als Immobilie. Erkunden Sie jetzt unsere Angebote und finden Sie die perfekte Lösung, die zu Ihren Wohn- oder Anlagezielen passt.

Fundiertes Wissen für Ihre Entscheidung, eine Immobilie zu kaufen

Bereiten Sie sich bestens vor: Infina stellt Ihnen kostenlos über 300 Ratgeber und Beiträge zu den Themen Immobilie, Finanzierung, Zinsen und Recht zur Verfügung. Nutzen Sie unser umfassendes Wissen, um richtige Entscheidungen zu treffen.

Bei jedem Kauf einer Immobilie oder eines Grundstücks ist es wichtig, die passende Finanzierung zu finden. Mit seiner eigenen Vertriebsorganisation ist Infina als Wohnbau-Finanz-Experte an über 100 Standorten in ganz Österreich vertreten und vermittelt Finanzierungen an über 150 Banken und Bausparkassen. Nutzen Sie unseren kostenlosen Kreditvergleich für den passenden Wohnkredit: 

Kreditvergleich

Kostenlos und unverbindlich

Immobilie mieten: Ihr neues Zuhause wartet

Die Entscheidung, eine Immobilie zu mieten, bietet Flexibilität und zahlreiche Möglichkeiten – ob eine Wohnung für den Alltag oder ein Haus für die Familie. Bei Infina können Sie gezielt sowohl eine Wohnung suchen als auch ein Haus suchen, das Ihren Bedürfnissen entspricht. Unsere Angebote erleichtern es Ihnen, eine Mietwohnung zu suchen und Ihre ideale Wohnung finden zu können. Entdecken Sie vielfältige Optionen, um die passende Immobilie zu finden und Ihre Wohnträume zu verwirklichen. Starten Sie noch heute Ihre Suche und profitieren Sie von einer großen Auswahl an Mietobjekten in Ihrer Wunschregion.

Hilfreiche Informationen zu Immobilie mieten

Starten Sie gut vorbereitet in Ihre Mietentscheidung: Infina stellt Ihnen vielseitige Ratgeber und Beiträge zu Themen wie Immobilie, Mietrecht, Finanzierung und Wohntrends zur Verfügung. Verschaffen Sie sich einen Überblick über alle relevanten Aspekte und gestalten Sie Ihren Weg ins neue Zuhause einfacher und sicherer.

Erfolgreich zur neuen Immobilie

Mit Infina haben Sie einen verlässlichen Partner an Ihrer Seite, der Sie von der ersten Beratung bis zum erfolgreichen Abschluss ganzheitlich unterstützt. Erfahren Sie hier, wie wir gemeinsam Ihren Immobilienerfolg gestalten.

Starten Sie jetzt Ihre Immobiliensuche

Nach zahlreichen Informationen rund um die Themen Immobilie kaufen und Immobilie mieten können Sie nun den nächsten Schritt machen. Starten Sie die Immobiliensuche, um Ihr neues Zuhause oder Ihre nächste Investition zu finden und entdecken Sie die passenden Angebote:

Das innovative Portal für Immobilien und Finanzierung 

Als Kunde von Infina profitieren Sie von unserer umfangreichen und unabhängigen Expertise als Teil einer wachsenden, unabhängigen Immobilien- und Finanzierungsnetzwerkgruppe. Bereits 50.000 Kunden hat Infina erfolgreich bei Ihrem Vorhaben begleitet. Infina bietet Ihnen eine umfassende Beratung in allen Bereichen rund um Ihre Immobilienvorhaben:

Die passende Finanzierung für Ihre Immobilie

Mit Infina erhalten Sie nicht nur eine unabhängige Beratung, sondern auch die passende Finanzierungslösung für Ihre Immobilie. Aus den Angeboten von über 150 Banken und Bausparkassen vermitteln wir Ihnen das, was perfekt zu Ihren Bedürfnissen passt. Wir begleiten Sie professionell und verlässlich – von der ersten Beratung bis zum erfolgreichen Abschluss.

Kreditvergleich

Kostenlos und unverbindlich

Wir holen das Beste für Sie heraus

Verkaufen Sie Ihre Immobilie mit uns & profitieren Sie von unserer Expertise. Wir bringen Ihre Immobilie optimal auf den Markt & erzielen den besten Preis. 

Kontaktieren Sie uns jetzt.

Jetzt Experten kontaktieren
Junge Frau im pinken Blazer hält ein Modellhaus in der linken Hand und zeigt mit der rechten Hand nach oben, als hätte sie eine Idee. Sie lächelt und blickt leicht nach oben – symbolisch für Inspiration oder Immobilienberatung.