INFINA LOGO
Entspannt zur Immobilie Persönlich & kompetent beraten Finanzierbarkeit sofort überprüfbar
Auf Anfrage Gesamtmiete inkl. USt.
Kostenlos &
unverbindlich.
Kontakt aufnehmen

Günstige Lager- & Büroflächen in Hohenems von 28 - 700 m²

Obj. Nr.: 17380

Partner von Infina Rimo Immobilien Immobilienmakler 
Partner von Infina Rimo Immobilien Immobilienmakler
Auf Anfrage Gesamtmiete inkl. USt. Mietkaution finanzieren?
Jetzt beantragen
Mehr Informationen zur Immobilie: Detaillierte Einblicke in dieses Objekt.
Zurück zur Übersicht

Objektstandort

6845 Hohenems, Friedhofstraße 7, Dornbirn, Vorarlberg

Directions Icon Fahrtzeit berechnen
Preisinformationen
Maklerprovision:
Gemäß Erstauftraggeberprinzip bezahlt der Vermieter/Verpächter die Provision.

Objektinformationen

Objektart: Industrie / Gewerbe
Unterobjektart: Lager
Nutzungsart: Gewerbe
Erschließung: Vollerschlossen

Rauminformationen & Flächen

Anzahl Stellplätze: 6
Anzahl WC: 2

Ausstattung

Befeuerung: Öl
Stellplatzart: Parkplatz
Dachform: Flachdach
Bauweise: Massiv

Lage

Sie suchen ein günstiges Lager u/o ein Büro in der Region Vorarlberg? Dann haben wir genau das Richtige für Sie! Das Objekt bietet Ihnen auf einer Fläche bis zu 694 m² alle Möglichkeiten für Ihr erfolgreiches Gewerbe. Die Immobilie besticht durch Ihre Lage und Ihre großzügige Fläche, die Ihnen den Arbeitsalltag erleichtern werden.

Beschreibung *

Die Immobilie ist ab   ab sofort verfügbar und kann ganz nach Ihren individuellen Bedürfnissen gestaltet werden. Zudem sind 6 Stellplätze direkt am Objekt vorhanden, sodass Ihre Mitarbeiter und Kunden bequem parken können. Sanitäranlagen sind ebenfalls vorhanden.

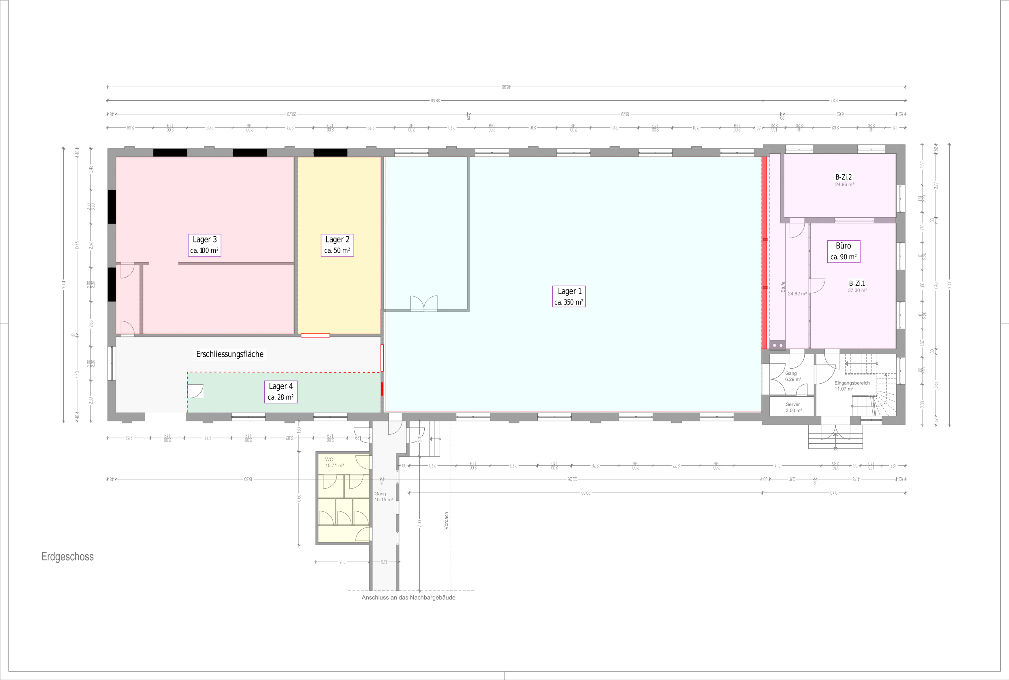
Die Fläche kann gesamt oder einzeln wie folgt gemietet werden:

  • Lager 1 + Büro = 395 m² (305 m² + 90 m²)
  • Lager 1 = 305 m²
  • Lager 1a = 45 m² - VERMIETET
  • Lager 2 = 50 m² - VERMIETET
  • Lager 3 = 100 m²
  • Lager 4 = 28 m² - VERMIETET
  • Lager 5 = 50 m² - nicht im Grundriss eingezeichnet
  • Lager 6 = 100 m² - nicht im Grundriss eingezeichnet
  • 6 KFZ

Preisliste finden Sie unten zum Downloaden.

Abmessungen der Laderampe mit Tor:

  • Torhöhe = 3,00 m
  • Torbreite = 2,10 m


Im Außenbereich stehen etliche Flächen für eine Lagerung zu Verfügung.

Eine Bushaltestelle befindet sich direkt vor der Tür und auch der Bahnhof ist nur wenige Gehminuten entfernt. Somit sind Sie und Ihre Mitarbeiter jederzeit gut erreichbar. 

Überzeugt? Dann zögern Sie nicht und vereinbaren Sie noch heute einen Besichtigungstermin. 

Unsere Angaben beziehen sich auf die Auskünfte des Eigentümers. Irrtum und Änderungen vorbehalten.

Wir weisen darauf hin, dass zwischen dem Vermittler und dem zu vermittelnden Dritten ein familiäres oder wirtschaftliches Naheverhältnis besteht.

Der Vermittler ist als Doppelmakler tätig.


Infrastruktur / Entfernungen

Gesundheit
Arzt <125m
Apotheke <450m
Krankenhaus <675m

Kinder & Schulen
Schule <575m
Kindergarten <125m
Universität <6.750m
Höhere Schule <3.950m

Nahversorgung
Supermarkt <525m
Bäckerei <525m
Einkaufszentrum <2.000m

Sonstige
Bank <300m
Geldautomat <300m
Post <725m
Polizei <375m

Verkehr
Bus <200m
Autobahnanschluss <2.200m
Bahnhof <875m
Flughafen <3.050m

Angaben Entfernung Luftlinie / Quelle: OpenStreetMap


*Der Vertrag kommt nicht mit der INFINA Credit Broker GmbH zustande. Das Objekt wird von einem externen Immobilienunternehmen angeboten. Allfällige aus dem Vertragsabschluss resultierende Rechte sind ausschließlich gegenüber dem anbietenden Immobilienunternehmen geltend zu machen. Wir weisen Sie darauf hin, dass die gemachten Angaben und Informationen lediglich unverbindliche Vorabinformationen sind und daher ohne Gewähr erfolgen. Der Immobilienmakler erklärt, dass er – entgegen dem in der Immobilienwirtschaft üblichen Geschäftsgebrauch des Doppelmaklers – einseitig nur für den Vermieter tätig ist.

Energieausweis & Heizung
HWB (kWh/m2/Jahr): 189
HWB Energieklasse E
Befeuerung: Öl
Dokumente & Videos Pläne Dokument 1 Grundriss - Lager Schnittplan Ansichten
Partner von Infina Rimo Immobilien Immobilienmakler
Sonstige:
Post: 710 m
Polizei: 760 m
Bank: 290 m
Geldautomat: 830 m
Kinder & Schulen:
Höhere Schule: 3950 m
Schule: 560 m
Universität: 6750 m
Kindergarten: 120 m
Nahversorgung:
Supermarkt: 510 m
Einkaufszentrum: 1990 m
Bäckerei: 510 m
Verkehr:
Autobahnanschluss: 2200 m
Bus: 200 m
Bahnhof: 830 m
Flughafen: 3030 m
Gesundheit:
Arzt: 120 m
Krankenhaus: 670 m
Apotheke: 450 m

Jetzt Experten kontaktieren

Immobilie kaufen: Das passende Angebot finden

Der Kauf einer Immobilie ist eine wichtige Entscheidung – sei es für die Eigennutzung oder zur Vermietung. Mit unserem Portal unterstützen wir Sie dabei, die richtige Immobilie zu kaufen. Nutzen Sie unsere Suchmöglichkeiten, um gezielt eine Immobilie zu suchen, die Ihren Vorstellungen entspricht. Unsere Immobilienangebote decken eine breite Palette ab: vom Einfamilienhaus über die Eigentumswohnung bis hin zum Grundstück für Ihr Bauvorhaben. Mit uns können Sie sicher und unkompliziert Eigentum erwerben – ob für die private Nutzung oder als Investition als Immobilie. Erkunden Sie jetzt unsere Angebote und finden Sie die perfekte Lösung, die zu Ihren Wohn- oder Anlagezielen passt.

Fundiertes Wissen für Ihre Entscheidung, eine Immobilie zu kaufen

Bereiten Sie sich bestens vor: Infina stellt Ihnen kostenlos über 300 Ratgeber und Beiträge zu den Themen Immobilie, Finanzierung, Zinsen und Recht zur Verfügung. Nutzen Sie unser umfassendes Wissen, um richtige Entscheidungen zu treffen.

Bei jedem Kauf einer Immobilie oder eines Grundstücks ist es wichtig, die passende Finanzierung zu finden. Mit seiner eigenen Vertriebsorganisation ist Infina als Wohnbau-Finanz-Experte an über 100 Standorten in ganz Österreich vertreten und vermittelt Finanzierungen an über 120 Banken und Bausparkassen. Nutzen Sie unseren kostenlosen Kreditvergleich für den passenden Wohnkredit: 

Kreditvergleich

Kostenlos und unverbindlich

Immobilie mieten: Ihr neues Zuhause wartet

Die Entscheidung, eine Immobilie zu mieten, bietet Flexibilität und zahlreiche Möglichkeiten – ob eine Wohnung für den Alltag oder ein Haus für die Familie. Bei Infina können Sie gezielt sowohl eine Wohnung suchen als auch ein Haus suchen, das Ihren Bedürfnissen entspricht. Unsere Angebote erleichtern es Ihnen, eine Mietwohnung zu suchen und Ihre ideale Wohnung finden zu können. Entdecken Sie vielfältige Optionen, um die passende Immobilie zu finden und Ihre Wohnträume zu verwirklichen. Starten Sie noch heute Ihre Suche und profitieren Sie von einer großen Auswahl an Mietobjekten in Ihrer Wunschregion.

Hilfreiche Informationen zu Immobilie mieten

Starten Sie gut vorbereitet in Ihre Mietentscheidung: Infina stellt Ihnen vielseitige Ratgeber und Beiträge zu Themen wie Immobilie, Mietrecht, Finanzierung und Wohntrends zur Verfügung. Verschaffen Sie sich einen Überblick über alle relevanten Aspekte und gestalten Sie Ihren Weg ins neue Zuhause einfacher und sicherer.

Erfolgreich zur neuen Immobilie

Mit Infina haben Sie einen verlässlichen Partner an Ihrer Seite, der Sie von der ersten Beratung bis zum erfolgreichen Abschluss ganzheitlich unterstützt. Erfahren Sie hier, wie wir gemeinsam Ihren Immobilienerfolg gestalten.

Starten Sie jetzt Ihre Immobiliensuche

Nach zahlreichen Informationen rund um die Themen Immobilie kaufen und Immobilie mieten können Sie nun den nächsten Schritt machen. Starten Sie die Immobiliensuche, um Ihr neues Zuhause oder Ihre nächste Investition zu finden und entdecken Sie die passenden Angebote:

Das innovative Portal für Immobilien und Finanzierung 

Als Kunde von Infina profitieren Sie von unserer umfangreichen und unabhängigen Expertise als Teil einer wachsenden, unabhängigen Immobilien- und Finanzierungsnetzwerkgruppe. Bereits 50.000 Kunden hat Infina erfolgreich bei Ihrem Vorhaben begleitet. Infina bietet Ihnen eine umfassende Beratung in allen Bereichen rund um Ihre Immobilienvorhaben:

Die passende Finanzierung für Ihre Immobilie

Mit Infina erhalten Sie nicht nur eine unabhängige Beratung, sondern auch die passende Finanzierungslösung für Ihre Immobilie. Aus den Angeboten von über 120 Banken und Bausparkassen vermitteln wir Ihnen das, was perfekt zu Ihren Bedürfnissen passt. Wir begleiten Sie professionell und verlässlich – von der ersten Beratung bis zum erfolgreichen Abschluss.

Kreditvergleich

Kostenlos und unverbindlich

Wir holen das Beste für Sie heraus

Verkaufen Sie Ihre Immobilie mit uns & profitieren Sie von unserer Expertise. Wir bringen Ihre Immobilie optimal auf den Markt & erzielen den besten Preis. 

Kontaktieren Sie uns jetzt.

Jetzt Experten kontaktieren
Junge Frau im pinken Blazer hält ein Modellhaus in der linken Hand und zeigt mit der rechten Hand nach oben, als hätte sie eine Idee. Sie lächelt und blickt leicht nach oben – symbolisch für Inspiration oder Immobilienberatung.