INFINA LOGO
Entspannt zur Immobilie Persönlich & kompetent beraten Finanzierbarkeit sofort überprüfbar
420.100 €
Kostenlos &
unverbindlich.
Kontakt aufnehmen
+ 1 Bilder

Attraktives Geschäftslokal inkl. Stellplatz im Herzen Ottakrings

Obj. Nr.: 4017

1 Zimmer
Partner von Infina EHL Wohnen Immobilienmakler 
Partner von Infina EHL Wohnen Immobilienmakler
420.100 € Kaufpreis der Immobilie Kreditvergleich von über 150 Banken mit Infina.
Immobilie finanzieren
Mehr Informationen zur Immobilie: Detaillierte Einblicke in dieses Objekt.
Zurück zur Übersicht

Objektstandort

1170 Wien, Ottakringer Straße 1

Directions Icon Fahrtzeit berechnen
Preisinformationen
Kaufpreis 420.100 €
Grundbucheintragung: 1.1 %
Grunderwerbsteuer: 3.5 %
Was kann ich mir leisten?
Jetzt berechnen
Maklerprovision:
3,00 % des Kaufpreises zzgl. 20 % USt.

Objektinformationen

Objektart: Büro / Praxis
Nutzungsart: Wohnen
Bauart: Neubau
Zustand: Erstbezug
Baujahr: 2024

Rauminformationen & Flächen

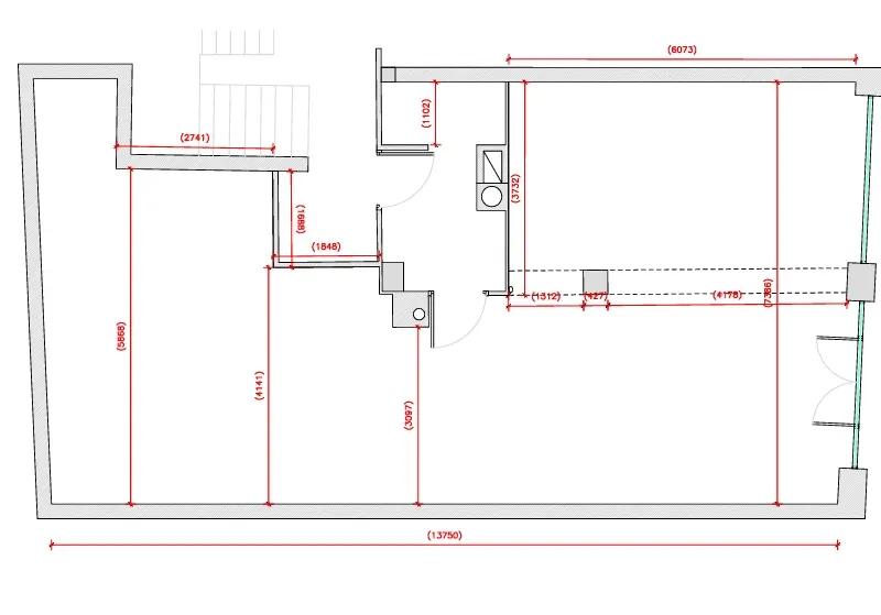
Bürofläche: ca. 89,47 m²
Anzahl Zimmer: 1
Anzahl WC: 1

Ausstattung

Boden: Fliesen, Parkett
Befeuerung: Fernwärme
Heizungsart: Fußbodenheizung
Fahrstuhl: Personenaufzug

Beschreibung *

Ihr neues zu Hause in der Nähe des Yppenplatzes!

Im Herzen des 17. Bezirks entsteht ein modernes Wohnensemble mit 60 Eigentumswohnungen und einem Geschäftslokal, welches sich durch die ansprechende Architektur, hochwertige Ausstattung und perfekte Lage auszeichnet. Geplant sind 2-4 Zimmer-Wohnungen mit ca. 33m²-121m². Jeder Wohnung ist eine Freifläche zugeordnet. Ein Fassadenbegrünungskonzept und ein begrünter Innenhof setzen ein Zeichen für Nachhaltigkeit und stellen damit Lebensqualität in den Vordergrund. Diese Wohlfühloase verteilt sich über zwei Wohnhäuser und ein Townhouse und fügt sich perfekt in dieses urbane Grätzl ein.

Die Wohnungen sind perfekt geschnitten und bieten durch ihre nachhaltige Ausstattung und hervorragende Lage beste Voraussetzungen für ein modernes zu Hause!

Fakten:

  • 60 Eigentumswohnungen
  • 30 Tiefgaragenplätze
  • 2-4 Zimmer mit 33-121m² Wohnflächen
  • Kleinkinderspielplatz
  • Fahrradabstellraum
  • Fassadenbegrünung und Innenhof-Ruheoase
  • DGNB-Vorzertifikat in Gold

Ausstattung:

  • Eichenparkettboden
  • Hochwertige Fliesen
  • Außenliegender elektrischer Sonnenschutz
  • Klimaanlage im DG
  • E-Mobilität
  • Fußbodenheizung mittels Fernwärme
  • Photovoltaik am Dach
  • Urban Gardening-Beete

Lage:

Diese Lage zeichnet sich durch den hippen Yppenplatz mit dem florierenden Brunnenmarkt aus. Kulturelle Vielfalt und das traditionelle Wien treffen hier einander und erschaffen eine einzigartige Atmosphäre. Restaurants, Bars, Geschäfte des täglichen Bedarfs, Ärzte, Kindergärten und Schulen sind in unmittelbarer Nähe zu finden. Öffentliche Verkehrsmittel transportieren Sie in die Innenstadt aber an den grünen Rand Wiens.

  • Straßenbahn: 43 und 44
  • U-Bahn: U6

Ein detaillierten Überblick finden Sie auf unserer Homepage unter https://www.ehl.at/wohnen/wohnprojekte/ottagkringer-strasse-26-1170-wien

Gewinnen Sie einen ersten Eindruck dieses Projekts in unserem Video!
© WINEGG | JAMJAM

Fertigstellung: voraussichtlich Juni 2026
3% Kundenprovision!

Wir weisen darauf hin, dass zwischen dem Vermittler und dem zu vermittelnden Dritten ein familiäres oder wirtschaftliches Naheverhältnis besteht.

Der Vermittler ist als Doppelmakler tätig.


Infrastruktur / Entfernungen

Gesundheit
Arzt <250m
Apotheke <500m
Klinik <250m
Krankenhaus <500m

Kinder & Schulen
Schule <250m
Kindergarten <250m
Universität <1.000m
Höhere Schule <750m

Nahversorgung
Supermarkt <250m
Bäckerei <250m
Einkaufszentrum <750m

Sonstige
Geldautomat <250m
Bank <250m
Post <500m
Polizei <500m

Verkehr
Bus <250m
U-Bahn <500m
Straßenbahn <250m
Bahnhof <500m
Autobahnanschluss <3.500m

Angaben Entfernung Luftlinie / Quelle: OpenStreetMap


*Der Vertrag kommt nicht mit der INFINA Credit Broker GmbH zustande. Das Objekt wird von einem externen Immobilienunternehmen angeboten. Allfällige aus dem Vertragsabschluss resultierende Rechte sind ausschließlich gegenüber dem anbietenden Immobilienunternehmen geltend zu machen. Wir weisen Sie darauf hin, dass die gemachten Angaben und Informationen lediglich unverbindliche Vorabinformationen sind und daher ohne Gewähr erfolgen. Der Vermittler ist als Doppelmakler tätig.

Energieausweis & Heizung
HWB (kWh/m2/Jahr): 18.9
HWB Energieklasse B
fGEE: 0.73
fGEE Energieklasse B
Gültig bis: 15.03.2031
Heizung: Fußbodenheizung
Befeuerung: Fernwärme
Dokumente & Videos Pläne Exposé Preisliste Planmappe Dokument 1
Partner von Infina EHL Wohnen Immobilienmakler
Gesundheit:
Apotheke: 320 m
Klinik: 230 m
Arzt: 260 m
Krankenhaus: 1660 m
Kinder & Schulen:
Kindergarten: 290 m
Höhere Schule: 710 m
Universität: 960 m
Schule: 480 m
Sonstige:
Polizei: 290 m
Post: 280 m
Bank: 280 m
Geldautomat: 280 m
Nahversorgung:
Supermarkt: 290 m
Bäckerei: 240 m
Einkaufszentrum: 900 m
Verkehr:
Autobahnanschluss: 4170 m
U-Bahn: 870 m
Straßenbahn: 210 m
Bus: 270 m
Bahnhof: 840 m

Jetzt Experten kontaktieren

Immobilie kaufen: Das passende Angebot finden

Der Kauf einer Immobilie ist eine wichtige Entscheidung – sei es für die Eigennutzung oder zur Vermietung. Mit unserem Portal unterstützen wir Sie dabei, die richtige Immobilie zu kaufen. Nutzen Sie unsere Suchmöglichkeiten, um gezielt eine Immobilie zu suchen, die Ihren Vorstellungen entspricht. Unsere Immobilienangebote decken eine breite Palette ab: vom Einfamilienhaus über die Eigentumswohnung bis hin zum Grundstück für Ihr Bauvorhaben. Mit uns können Sie sicher und unkompliziert Eigentum erwerben – ob für die private Nutzung oder als Investition als Immobilie. Erkunden Sie jetzt unsere Angebote und finden Sie die perfekte Lösung, die zu Ihren Wohn- oder Anlagezielen passt.

Fundiertes Wissen für Ihre Entscheidung, eine Immobilie zu kaufen

Bereiten Sie sich bestens vor: Infina stellt Ihnen kostenlos über 300 Ratgeber und Beiträge zu den Themen Immobilie, Finanzierung, Zinsen und Recht zur Verfügung. Nutzen Sie unser umfassendes Wissen, um richtige Entscheidungen zu treffen.

Bei jedem Kauf einer Immobilie oder eines Grundstücks ist es wichtig, die passende Finanzierung zu finden. Mit seiner eigenen Vertriebsorganisation ist Infina als Wohnbau-Finanz-Experte an über 100 Standorten in ganz Österreich vertreten und vermittelt Finanzierungen an über 150 Banken und Bausparkassen. Nutzen Sie unseren kostenlosen Kreditvergleich für den passenden Wohnkredit: 

Kreditvergleich

Kostenlos und unverbindlich

Immobilie mieten: Ihr neues Zuhause wartet

Die Entscheidung, eine Immobilie zu mieten, bietet Flexibilität und zahlreiche Möglichkeiten – ob eine Wohnung für den Alltag oder ein Haus für die Familie. Bei Infina können Sie gezielt sowohl eine Wohnung suchen als auch ein Haus suchen, das Ihren Bedürfnissen entspricht. Unsere Angebote erleichtern es Ihnen, eine Mietwohnung zu suchen und Ihre ideale Wohnung finden zu können. Entdecken Sie vielfältige Optionen, um die passende Immobilie zu finden und Ihre Wohnträume zu verwirklichen. Starten Sie noch heute Ihre Suche und profitieren Sie von einer großen Auswahl an Mietobjekten in Ihrer Wunschregion.

Hilfreiche Informationen zu Immobilie mieten

Starten Sie gut vorbereitet in Ihre Mietentscheidung: Infina stellt Ihnen vielseitige Ratgeber und Beiträge zu Themen wie Immobilie, Mietrecht, Finanzierung und Wohntrends zur Verfügung. Verschaffen Sie sich einen Überblick über alle relevanten Aspekte und gestalten Sie Ihren Weg ins neue Zuhause einfacher und sicherer.

Erfolgreich zur neuen Immobilie

Mit Infina haben Sie einen verlässlichen Partner an Ihrer Seite, der Sie von der ersten Beratung bis zum erfolgreichen Abschluss ganzheitlich unterstützt. Erfahren Sie hier, wie wir gemeinsam Ihren Immobilienerfolg gestalten.

Starten Sie jetzt Ihre Immobiliensuche

Nach zahlreichen Informationen rund um die Themen Immobilie kaufen und Immobilie mieten können Sie nun den nächsten Schritt machen. Starten Sie die Immobiliensuche, um Ihr neues Zuhause oder Ihre nächste Investition zu finden und entdecken Sie die passenden Angebote:

Das innovative Portal für Immobilien und Finanzierung 

Als Kunde von Infina profitieren Sie von unserer umfangreichen und unabhängigen Expertise als Teil einer wachsenden, unabhängigen Immobilien- und Finanzierungsnetzwerkgruppe. Bereits 50.000 Kunden hat Infina erfolgreich bei Ihrem Vorhaben begleitet. Infina bietet Ihnen eine umfassende Beratung in allen Bereichen rund um Ihre Immobilienvorhaben:

Die passende Finanzierung für Ihre Immobilie

Mit Infina erhalten Sie nicht nur eine unabhängige Beratung, sondern auch die passende Finanzierungslösung für Ihre Immobilie. Aus den Angeboten von über 150 Banken und Bausparkassen vermitteln wir Ihnen das, was perfekt zu Ihren Bedürfnissen passt. Wir begleiten Sie professionell und verlässlich – von der ersten Beratung bis zum erfolgreichen Abschluss.

Kreditvergleich

Kostenlos und unverbindlich

Wir holen das Beste für Sie heraus

Verkaufen Sie Ihre Immobilie mit uns & profitieren Sie von unserer Expertise. Wir bringen Ihre Immobilie optimal auf den Markt & erzielen den besten Preis. 

Kontaktieren Sie uns jetzt.

Jetzt Experten kontaktieren
Junge Frau im pinken Blazer hält ein Modellhaus in der linken Hand und zeigt mit der rechten Hand nach oben, als hätte sie eine Idee. Sie lächelt und blickt leicht nach oben – symbolisch für Inspiration oder Immobilienberatung.