INFINA LOGO
Entspannt zur Immobilie Persönlich & kompetent beraten Finanzierbarkeit sofort überprüfbar
1.518 € Gesamtmiete inkl. USt.
Kostenlos &
unverbindlich.
Kontakt aufnehmen
+ 2 Bilder

Büro-Praxis- Geschäftsräumlichkeiten in Lienz!

Obj. Nr.: 138336

6 Zimmer
Partner von Infina Sir Immobilien Immobilienmakler 
Partner von Infina Sir Immobilien Immobilienmakler
1.518 € Gesamtmiete inkl. USt. Mietkaution finanzieren?
Jetzt beantragen
Mehr Informationen zur Immobilie: Detaillierte Einblicke in dieses Objekt.
Zurück zur Übersicht

Objektstandort

9900 Lienz, Tirol Adresse anfragen

Directions Icon Fahrtzeit berechnen
Preisinformationen
Gesamtbelastung € 1.518,00
Maklerprovision:
Gemäß Erstauftraggeberprinzip bezahlt der Vermieter/Verpächter die Provision.

Objektinformationen

Objektart: Büro / Praxis
Unterobjektart: Bürofläche
Nutzungsart: Gewerbe
Zustand: gepflegt
Baujahr: 1996

Rauminformationen & Flächen

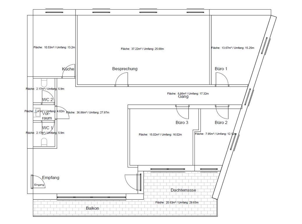
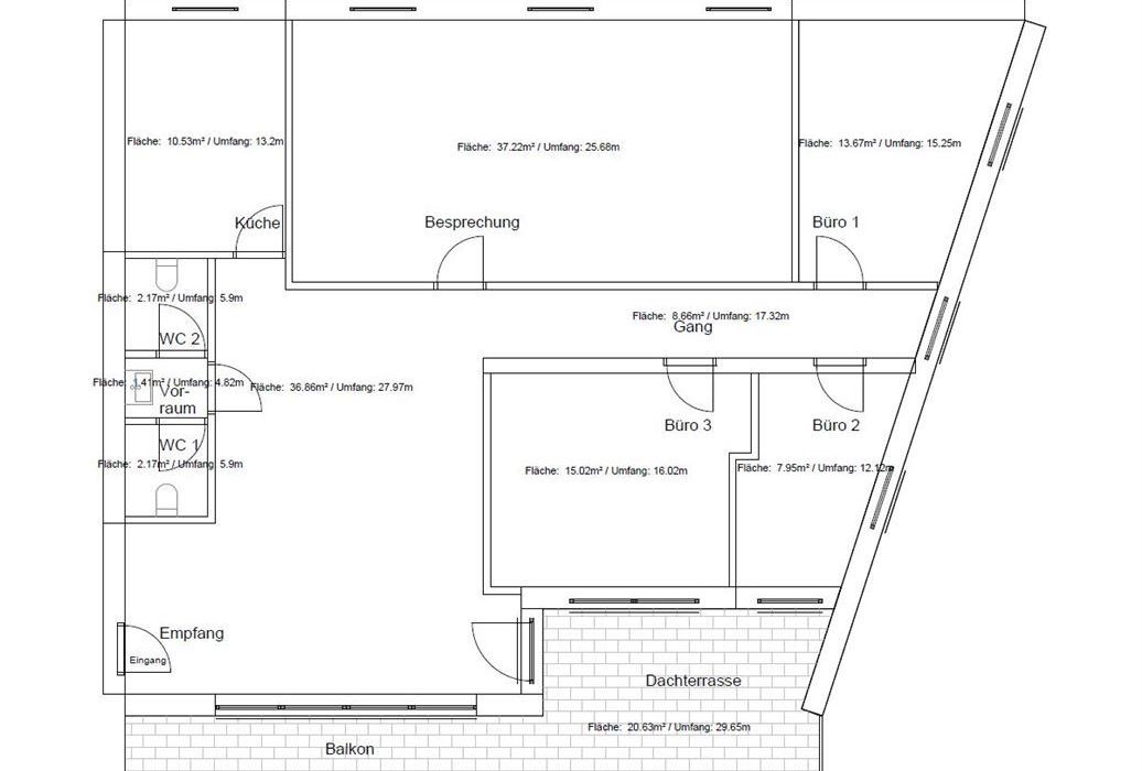
Bürofläche: ca. 138,00 m²
Anzahl Zimmer: 6
Anzahl Bäder: 1

Ausstattung

Befeuerung: Fernwärme
Heizungsart: Fernwärme
Stellplatzart: Parkplatz

Lage

Zentral in Lienz und trotzdem ruhig. Gute Verkehranbindung.

Beschreibung *

Interessante Räumlichkeiten warten auf neue Mieter!
Mitten in Lienz mit guter Verkehrsanbindung gelegen und trotzdem ruhig bieten diese Flächen im 2. Obergeschoss Platz für ein Büro mit 5 Räumen sowie einen großen Empfangsbereich und einer großen überdachten Terrasse.
Die überdachte Terrasse ist ein großer Pluspunkt und bietet den dort arbeitenden Menschen die Möglichkeit auf Erholungsphasen an der frischen Luft.
Profitieren Sie von einem Haus mit ausgewählten Betrieben, welche voneinander auch profitieren können.
Drei Parkplätze im Freien stehen für Sie und Ihre Kunden zur Verfügung, weitere öffentliche Parkmöglichkeiten befinden sich in der Nähe.
Im Erdgeschoss befinden sich noch ca. 108m² weitere Büro- bzw. Geschäftsflächen welche ebenfalls zur Vermietung zur Verfügung stehen.

Sollten Sie sich nach erfolgter Besichtigung dazu entschließen das Objekt zu mieten, entstehen folgende Nebenkosten:
3 BMM-Kaution: € 7.000,- (einmalige Zahlung welche nach ordnungsgemäßer Beendigung des Mietverhältnisses wieder zurückerstattet wird)
Kosten der Mietvertragserrichtung nach Vereinbarung.
2 Bruttomonatsmieten + 20% USt. Vermittlungshonorar
Mietvertrags Vergebührung: 1% der monatlichen Gesamtkosten gerechnet mal der Anzahl der Monate der vereinbarten Mietdauer (einmalige Zahlung an das Finanzamt)

Wir bitten um Verständnis, dass Anfragen nur eingeschränkt beantwortet werden können und keine Besichtigungstermine vereinbart werden, bevor nicht folgende Informationen zu den Interessenten vorliegen:
Namen des Ansprechpartners, die Firmenbezeichnung, Anschrift, die Telefonnummer des Ansprechpartners und Ihre Emailadresse. Wir schützen die Daten der Vermieter und der Interessenten gleichermaßen!

*Der Vertrag kommt nicht mit der INFINA Credit Broker GmbH zustande. Das Objekt wird von einem externen Immobilienunternehmen angeboten. Allfällige aus dem Vertragsabschluss resultierende Rechte sind ausschließlich gegenüber dem anbietenden Immobilienunternehmen geltend zu machen. Wir weisen Sie darauf hin, dass die gemachten Angaben und Informationen lediglich unverbindliche Vorabinformationen sind und daher ohne Gewähr erfolgen. Der Immobilienmakler erklärt, dass er – entgegen dem in der Immobilienwirtschaft üblichen Geschäftsgebrauch des Doppelmaklers – einseitig nur für den Vermieter tätig ist.

Energieausweis & Heizung
HWB (kWh/m2/Jahr): 70
HWB Energieklasse C
fGEE: 0.8
fGEE Energieklasse C
Heizung: Fernwärme
Befeuerung: Fernwärme
Partner von Infina Sir Immobilien Immobilienmakler
Sonstige:
Post: 370 m
Geldautomat: 390 m
Polizei: 530 m
Bank: 380 m
Verkehr:
Bus: 70 m
Flughafen: 9350 m
Bahnhof: 640 m
Nahversorgung:
Bäckerei: 370 m
Supermarkt: 210 m
Einkaufszentrum: 190 m
Gesundheit:
Apotheke: 260 m
Arzt: 110 m
Krankenhaus: 870 m
Kinder & Schulen:
Kindergarten: 180 m
Schule: 150 m

Jetzt Experten kontaktieren

Immobilie kaufen: Das passende Angebot finden

Der Kauf einer Immobilie ist eine wichtige Entscheidung – sei es für die Eigennutzung oder zur Vermietung. Mit unserem Portal unterstützen wir Sie dabei, die richtige Immobilie zu kaufen. Nutzen Sie unsere Suchmöglichkeiten, um gezielt eine Immobilie zu suchen, die Ihren Vorstellungen entspricht. Unsere Immobilienangebote decken eine breite Palette ab: vom Einfamilienhaus über die Eigentumswohnung bis hin zum Grundstück für Ihr Bauvorhaben. Mit uns können Sie sicher und unkompliziert Eigentum erwerben – ob für die private Nutzung oder als Investition als Immobilie. Erkunden Sie jetzt unsere Angebote und finden Sie die perfekte Lösung, die zu Ihren Wohn- oder Anlagezielen passt.

Fundiertes Wissen für Ihre Entscheidung, eine Immobilie zu kaufen

Bereiten Sie sich bestens vor: Infina stellt Ihnen kostenlos über 300 Ratgeber und Beiträge zu den Themen Immobilie, Finanzierung, Zinsen und Recht zur Verfügung. Nutzen Sie unser umfassendes Wissen, um richtige Entscheidungen zu treffen.

Bei jedem Kauf einer Immobilie oder eines Grundstücks ist es wichtig, die passende Finanzierung zu finden. Mit seiner eigenen Vertriebsorganisation ist Infina als Wohnbau-Finanz-Experte an über 100 Standorten in ganz Österreich vertreten und vermittelt Finanzierungen an über 150 Banken und Bausparkassen. Nutzen Sie unseren kostenlosen Kreditvergleich für den passenden Wohnkredit: 

Kreditvergleich

Kostenlos und unverbindlich

Immobilie mieten: Ihr neues Zuhause wartet

Die Entscheidung, eine Immobilie zu mieten, bietet Flexibilität und zahlreiche Möglichkeiten – ob eine Wohnung für den Alltag oder ein Haus für die Familie. Bei Infina können Sie gezielt sowohl eine Wohnung suchen als auch ein Haus suchen, das Ihren Bedürfnissen entspricht. Unsere Angebote erleichtern es Ihnen, eine Mietwohnung zu suchen und Ihre ideale Wohnung finden zu können. Entdecken Sie vielfältige Optionen, um die passende Immobilie zu finden und Ihre Wohnträume zu verwirklichen. Starten Sie noch heute Ihre Suche und profitieren Sie von einer großen Auswahl an Mietobjekten in Ihrer Wunschregion.

Hilfreiche Informationen zu Immobilie mieten

Starten Sie gut vorbereitet in Ihre Mietentscheidung: Infina stellt Ihnen vielseitige Ratgeber und Beiträge zu Themen wie Immobilie, Mietrecht, Finanzierung und Wohntrends zur Verfügung. Verschaffen Sie sich einen Überblick über alle relevanten Aspekte und gestalten Sie Ihren Weg ins neue Zuhause einfacher und sicherer.

Erfolgreich zur neuen Immobilie

Mit Infina haben Sie einen verlässlichen Partner an Ihrer Seite, der Sie von der ersten Beratung bis zum erfolgreichen Abschluss ganzheitlich unterstützt. Erfahren Sie hier, wie wir gemeinsam Ihren Immobilienerfolg gestalten.

Starten Sie jetzt Ihre Immobiliensuche

Nach zahlreichen Informationen rund um die Themen Immobilie kaufen und Immobilie mieten können Sie nun den nächsten Schritt machen. Starten Sie die Immobiliensuche, um Ihr neues Zuhause oder Ihre nächste Investition zu finden und entdecken Sie die passenden Angebote:

Das innovative Portal für Immobilien und Finanzierung 

Als Kunde von Infina profitieren Sie von unserer umfangreichen und unabhängigen Expertise als Teil einer wachsenden, unabhängigen Immobilien- und Finanzierungsnetzwerkgruppe. Bereits 50.000 Kunden hat Infina erfolgreich bei Ihrem Vorhaben begleitet. Infina bietet Ihnen eine umfassende Beratung in allen Bereichen rund um Ihre Immobilienvorhaben:

Die passende Finanzierung für Ihre Immobilie

Mit Infina erhalten Sie nicht nur eine unabhängige Beratung, sondern auch die passende Finanzierungslösung für Ihre Immobilie. Aus den Angeboten von über 150 Banken und Bausparkassen vermitteln wir Ihnen das, was perfekt zu Ihren Bedürfnissen passt. Wir begleiten Sie professionell und verlässlich – von der ersten Beratung bis zum erfolgreichen Abschluss.

Kreditvergleich

Kostenlos und unverbindlich

Wir holen das Beste für Sie heraus

Verkaufen Sie Ihre Immobilie mit uns & profitieren Sie von unserer Expertise. Wir bringen Ihre Immobilie optimal auf den Markt & erzielen den besten Preis. 

Kontaktieren Sie uns jetzt.

Jetzt Experten kontaktieren
Junge Frau im pinken Blazer hält ein Modellhaus in der linken Hand und zeigt mit der rechten Hand nach oben, als hätte sie eine Idee. Sie lächelt und blickt leicht nach oben – symbolisch für Inspiration oder Immobilienberatung.