INFINA LOGO
Entspannt zur Immobilie Persönlich & kompetent beraten Finanzierbarkeit sofort überprüfbar
Auf Anfrage Gesamtmiete inkl. USt.
Kostenlos &
unverbindlich.
Kontakt aufnehmen

Attraktive Büro-/Praxisräume in Going am Wilden Kaiser – Modern & flexibel gestalten!

Obj. Nr.: 53623

Partner von Infina Eisenmann Immobilien GmbH Immobilienmakler 
Partner von Infina Eisenmann Immobilien GmbH Immobilienmakler
Auf Anfrage Gesamtmiete inkl. USt. Mietkaution finanzieren?
Jetzt beantragen
Mehr Informationen zur Immobilie: Detaillierte Einblicke in dieses Objekt.
Zurück zur Übersicht

Objektstandort

6353 Going am Wilden Kaiser, Kitzbühel, Tirol Adresse anfragen

Directions Icon Fahrtzeit berechnen
Preisinformationen
Maklerprovision:
Gemäß Erstauftraggeberprinzip bezahlt der Vermieter/Verpächter die Provision.

Objektinformationen

Objektart: Büro / Praxis
Nutzungsart: Gewerbe
Bauart: Neubau
Zustand: gepflegt

Rauminformationen & Flächen

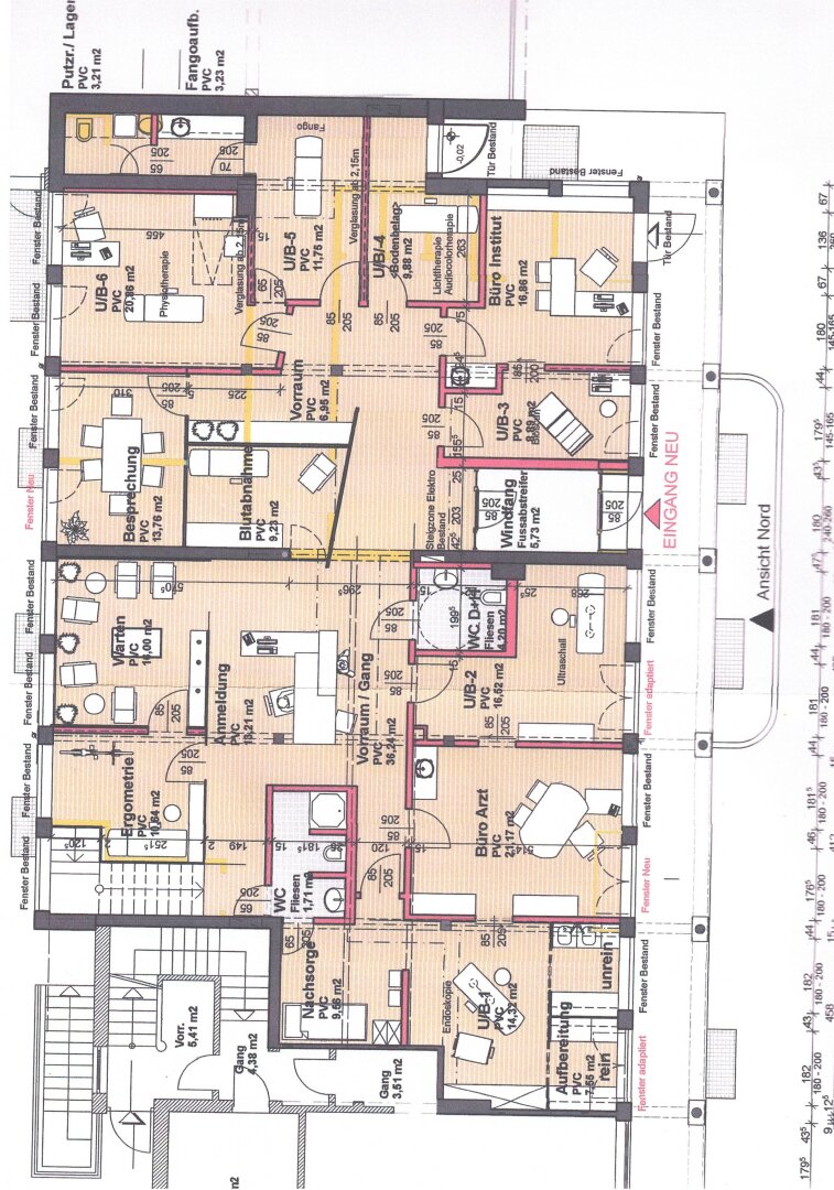
Bürofläche: ca. 276,00 m²
Gesamtfläche: ca. 301,00 m²
Kellerfläche: ca. 25,00 m²

Ausstattung

Boden: Fliesen, Parkett
Befeuerung: Pellets
Heizungsart: Fußbodenheizung
Stellplatzart: Parkplatz
Räume: Räume veränderbar
Bauweise: Massiv
Ausbaustufe: Schlüsselfertig mit Keller

Lage

Die Immobilie befindet sich in der charmanten Gemeinde Going am Wilden Kaiser, umgeben von der atemberaubenden Tiroler Berglandschaft. Ideale Anbindungen und eine hervorragende Infrastruktur sorgen für höchsten Komfort. In unmittelbarer Nähe finden Sie Arztpraxen, Schulen, einen Kindergarten, Supermärkte, Bäckereien und Banken. Zudem sind Post und Busanbindungen leicht erreichbar. Hier profitieren Sie von der perfekten Kombination aus ländlicher Idylle und urbaner Lebensqualität.

Beschreibung *

Entdecken Sie Ihre neue Büro- oder Praxisfläche in der malerischen Gemeinde Going am Wilden Kaiser, Tirol. Diese gepflegte Immobilie bietet Ihnen die perfekte Kombination aus Funktionalität und Ästhetik und ist ideal für eine Gemeinschaftspraxis/Rechtsanwaltkanzlei/Wirtschaftstreuhand.....

Vorzüge dieser Räumlichkeiten:

- zwei Eingänge

- ein ansprechender Empfangsbereich

- 20 Parkplätze

- Keller mit 25 m²

- zahlreiche luftige und lichtdurchflutete Räume mit großen Fensterfronten

- modernes Interieur mit modernster Technik

Die hochwertigen Materialien wie Fliesen und Parkett sorgen nicht nur für ein stilvolles Ambiente, sondern auch für eine angenehme Wohlfühlatmosphäre. Eine Fußbodenheizung bietet Ihnen an kalten Tagen den notwendigen Komfort, während die Massivbauweise für Stabilität und Langlebigkeit steht. 

Ein weiterer Vorteil dieser Immobilie ist die Verfügbarkeit von Parkplätzen, die sowohl für Sie als auch für Ihre Kunden den Zugang erleichtern. Die getrennten Toiletten sorgen für zusätzliche Privatsphäre und Komfort.

Die Lage könnte nicht besser sein: Mitten im Zentrum von Going und in unmittelbarer Nähe von  Arzt, einer Schule, einem Kindergarten sowie diverse Einkaufsmöglichkeiten wie Supermärkte und Bäckereien. Dies macht die Immobilie nicht nur für Sie, sondern auch für Ihre Klientel äußerst attraktiv.

Die hervorragende Verkehrsanbindung durch den Bus garantiert eine bequeme Erreichbarkeit für Ihre Mitarbeiter und Kunden. Sie profitieren von der ruhigen, naturnahen Umgebung, die gleichzeitig alle urbanen Annehmlichkeiten bietet.

Nutzen Sie die Chance und verwirklichen Sie Ihre Geschäftsideen in dieser traumhaften Immobilie in Going am Wilden Kaiser. Vereinbaren Sie noch heute einen Besichtigungstermin und überzeugen Sie sich selbst von den vielfältigen Möglichkeiten, die Ihnen diese Büro- oder Praxisfläche bietet. Ihr Erfolg beginnt hier!

Noch nichts gefunden? Wir informieren Sie über geeignete Immobilienangebote noch vor allen anderen.
Legen Sie jetzt Ihren individuellen Suchagenten unter folgendem Link an. Wir schicken Ihnen passende Immobilien exklusiv vorab zu.
Suchagent anlegen - https://herbert-eisenmann.service.immo/registrieren/de

Hinweis gemäß Energieausweisvorlagegesetz: Ein Energieausweis wurde vom Eigentümer bzw. Verkäufer, nach unserer Aufklärung über die generell geltende Vorlagepflicht, sowie Aufforderung zu seiner Erstellung noch nicht vorgelegt. Daher gilt zumindest eine dem Alter und der Art des Gebäudes entsprechende Gesamtenergieeffizienz als vereinbart. Wir übernehmen keinerlei Gewähr oder Haftung für die tatsächliche Energieeffizienz der angebotenen Immobilie.

Der Vermittler ist als Doppelmakler tätig.


*Der Vertrag kommt nicht mit der INFINA Credit Broker GmbH zustande. Das Objekt wird von einem externen Immobilienunternehmen angeboten. Allfällige aus dem Vertragsabschluss resultierende Rechte sind ausschließlich gegenüber dem anbietenden Immobilienunternehmen geltend zu machen. Wir weisen Sie darauf hin, dass die gemachten Angaben und Informationen lediglich unverbindliche Vorabinformationen sind und daher ohne Gewähr erfolgen. Der Immobilienmakler erklärt, dass er – entgegen dem in der Immobilienwirtschaft üblichen Geschäftsgebrauch des Doppelmaklers – einseitig nur für den Vermieter tätig ist.

Heizung: Fußbodenheizung
Befeuerung: Pellets
Dokumente & Videos Pläne Pläne Immobilienvideo
Partner von Infina Eisenmann Immobilien GmbH Immobilienmakler
Sonstige:
Post: 1930 m
Geldautomat: 5060 m
Bank: 1630 m
Polizei: 1960 m
Nahversorgung:
Supermarkt: 1760 m
Bäckerei: 1600 m
Kinder & Schulen:
Kindergarten: 1520 m
Schule: 1520 m
Gesundheit:
Apotheke: 2730 m
Arzt: 1520 m
Krankenhaus: 7130 m
Klinik: 9990 m
Verkehr:
Bus: 1230 m
Flughafen: 8580 m
Bahnhof: 7210 m

Jetzt Experten kontaktieren

Immobilie kaufen: Das passende Angebot finden

Der Kauf einer Immobilie ist eine wichtige Entscheidung – sei es für die Eigennutzung oder zur Vermietung. Mit unserem Portal unterstützen wir Sie dabei, die richtige Immobilie zu kaufen. Nutzen Sie unsere Suchmöglichkeiten, um gezielt eine Immobilie zu suchen, die Ihren Vorstellungen entspricht. Unsere Immobilienangebote decken eine breite Palette ab: vom Einfamilienhaus über die Eigentumswohnung bis hin zum Grundstück für Ihr Bauvorhaben. Mit uns können Sie sicher und unkompliziert Eigentum erwerben – ob für die private Nutzung oder als Investition als Immobilie. Erkunden Sie jetzt unsere Angebote und finden Sie die perfekte Lösung, die zu Ihren Wohn- oder Anlagezielen passt.

Fundiertes Wissen für Ihre Entscheidung, eine Immobilie zu kaufen

Bereiten Sie sich bestens vor: Infina stellt Ihnen kostenlos über 300 Ratgeber und Beiträge zu den Themen Immobilie, Finanzierung, Zinsen und Recht zur Verfügung. Nutzen Sie unser umfassendes Wissen, um richtige Entscheidungen zu treffen.

Bei jedem Kauf einer Immobilie oder eines Grundstücks ist es wichtig, die passende Finanzierung zu finden. Mit seiner eigenen Vertriebsorganisation ist Infina als Wohnbau-Finanz-Experte an über 100 Standorten in ganz Österreich vertreten und vermittelt Finanzierungen an über 120 Banken und Bausparkassen. Nutzen Sie unseren kostenlosen Kreditvergleich für den passenden Wohnkredit: 

Kreditvergleich

Kostenlos und unverbindlich

Immobilie mieten: Ihr neues Zuhause wartet

Die Entscheidung, eine Immobilie zu mieten, bietet Flexibilität und zahlreiche Möglichkeiten – ob eine Wohnung für den Alltag oder ein Haus für die Familie. Bei Infina können Sie gezielt sowohl eine Wohnung suchen als auch ein Haus suchen, das Ihren Bedürfnissen entspricht. Unsere Angebote erleichtern es Ihnen, eine Mietwohnung zu suchen und Ihre ideale Wohnung finden zu können. Entdecken Sie vielfältige Optionen, um die passende Immobilie zu finden und Ihre Wohnträume zu verwirklichen. Starten Sie noch heute Ihre Suche und profitieren Sie von einer großen Auswahl an Mietobjekten in Ihrer Wunschregion.

Hilfreiche Informationen zu Immobilie mieten

Starten Sie gut vorbereitet in Ihre Mietentscheidung: Infina stellt Ihnen vielseitige Ratgeber und Beiträge zu Themen wie Immobilie, Mietrecht, Finanzierung und Wohntrends zur Verfügung. Verschaffen Sie sich einen Überblick über alle relevanten Aspekte und gestalten Sie Ihren Weg ins neue Zuhause einfacher und sicherer.

Erfolgreich zur neuen Immobilie

Mit Infina haben Sie einen verlässlichen Partner an Ihrer Seite, der Sie von der ersten Beratung bis zum erfolgreichen Abschluss ganzheitlich unterstützt. Erfahren Sie hier, wie wir gemeinsam Ihren Immobilienerfolg gestalten.

Starten Sie jetzt Ihre Immobiliensuche

Nach zahlreichen Informationen rund um die Themen Immobilie kaufen und Immobilie mieten können Sie nun den nächsten Schritt machen. Starten Sie die Immobiliensuche, um Ihr neues Zuhause oder Ihre nächste Investition zu finden und entdecken Sie die passenden Angebote:

Das innovative Portal für Immobilien und Finanzierung 

Als Kunde von Infina profitieren Sie von unserer umfangreichen und unabhängigen Expertise als Teil einer wachsenden, unabhängigen Immobilien- und Finanzierungsnetzwerkgruppe. Bereits 50.000 Kunden hat Infina erfolgreich bei Ihrem Vorhaben begleitet. Infina bietet Ihnen eine umfassende Beratung in allen Bereichen rund um Ihre Immobilienvorhaben:

Die passende Finanzierung für Ihre Immobilie

Mit Infina erhalten Sie nicht nur eine unabhängige Beratung, sondern auch die passende Finanzierungslösung für Ihre Immobilie. Aus den Angeboten von über 120 Banken und Bausparkassen vermitteln wir Ihnen das, was perfekt zu Ihren Bedürfnissen passt. Wir begleiten Sie professionell und verlässlich – von der ersten Beratung bis zum erfolgreichen Abschluss.

Kreditvergleich

Kostenlos und unverbindlich

Wir holen das Beste für Sie heraus

Verkaufen Sie Ihre Immobilie mit uns & profitieren Sie von unserer Expertise. Wir bringen Ihre Immobilie optimal auf den Markt & erzielen den besten Preis. 

Kontaktieren Sie uns jetzt.

Jetzt Experten kontaktieren
Junge Frau im pinken Blazer hält ein Modellhaus in der linken Hand und zeigt mit der rechten Hand nach oben, als hätte sie eine Idee. Sie lächelt und blickt leicht nach oben – symbolisch für Inspiration oder Immobilienberatung.