INFINA LOGO
Entspannt zur Immobilie Persönlich & kompetent beraten Finanzierbarkeit sofort überprüfbar
289.000 € 2.656 €/m²
Kostenlos &
unverbindlich.
Kontakt aufnehmen

ERSTBEZÜGE I ~13 Minuten von Wien I schlüsselfertig I Luftwärmepumpe I Stellplätze I Bahnhofsnähe

Obj. Nr.: 18758

ca. 108,80 m² Nutzfläche 2 Zimmer
Partner von Infina Alexander Ringsmuth Immobilien Immobilienmakler 
Partner von Infina Alexander Ringsmuth Immobilien Immobilienmakler
289.000 € Kaufpreis der Immobilie Kreditvergleich von über 120 Banken mit Infina.
Immobilie finanzieren
Mehr Informationen zur Immobilie: Detaillierte Einblicke in dieses Objekt.
Zurück zur Übersicht

Objektstandort

2120 Wolkersdorf im Weinviertel, Mistelbach, Niederösterreich Adresse anfragen

Directions Icon Fahrtzeit berechnen
Preisinformationen
Kaufpreis 289.000 €
Grundbucheintragung: 1.1 %
Grunderwerbsteuer: 3.5 %
Was kann ich mir leisten?
Jetzt berechnen
Maklerprovision:
3,00 % des Kaufpreises zzgl. 20 % USt.

Objektinformationen

Objektart: Wohnung
Nutzungsart: Wohnen, Anlage
Bauart: Neubau
Zustand: Erstbezug

Rauminformationen & Flächen

Wohnfläche: ca. 51,54 m²
Nutzfläche: ca. 108,80 m²
Terrassenfläche: ca. 57,25 m²
Anzahl Terrassen: 1
Anzahl Zimmer: 2
Anzahl WC: 1
Anzahl Bäder: 1

Ausstattung

Boden: Fliesen, Parkett
Befeuerung: Luftwärmepumpe
Heizungsart: Fußbodenheizung
Küche: Wohnküche / offene Küche
Bad: Dusche, Badewanne, Bad mit Fenster
Stellplatzart: Parkplatz

Lage

Wien: ca. 13 Autominuten 

Bahnhof Wolkersdorf: ca. 400m

Penny: ca. 300m
Hofer: ca. 500m
Billa: ca. 750m
Spar: ca. 750m 

Kindergarten: ca. 24m und 400m
Volksschule: ca. 700m 
Mittelschule: ca. 850m 

Beschreibung *

Wolkersdorf oder auch -das Tor zum Weinviertel- gilt aufgrund der richtigen Mischung aus Stadt und Land als eine beliebte Kleinstadt, um neue Wurzeln zu schlagen. 
Inmitten von Wolkersdorf umgeben von einer attraktiven Infrastruktur und direkten Anbindung nach Wien entsteht ein Neubauprojekt bestehend aus 7 Wohnungen mit 1 bis 3 Zimmer  und Wohnflächen zwischen 39 und 55m².

Aufgrund der  attraktiven Lage, der modernen Ausstattung sowie der  äußerst ansprechenden Grundrisse eignen sich die Wohnungen neben der Eigennutzung, auch ideal für die Vermietung und stellen eine zukunftsorientierte Wertanlage dar.

Die Details im Überblick:

  • Erstbezug
  • 1 bis 3 Zimmer 
  • Wohnflächen ab ca. 39m² bis ca. 55m²
  • jede Einheit hat eine eigene Freifläche
  • schlüsselfertige Ausführung
  • Echtholzparkettboden
  • Luftwärmepumpe 
  • Fußbodenheizung
  • 3-fach verglaste Fenster 
  • Sicherheitseingangstüren
  • außenliegender Sonnenschutz
  • Stellplätze
  • geplante Fertigstellung: voraussichtlich Anfang 2026

Wir weisen darauf hin, dass es im Zuge der Projekt-Realisierung zu geringfügigen Abweichungen bei der Ausstattung kommen kann. 

Das Haus verfügt über keinen Aufzug! 
 

Die Einheiten im Überblick:  

  • Top 1:  EG; 2 Zimmer; Wohnfläche: ca. 54,82m²; Garten + Terrasse: ca. 15,74m²; 299.000,-- Euro 
  • Top 2:  EG: 2 Zimmer; Wohnfläche: ca. 48,70m²; Garten + Terrasse: ca. 18,72m²; 279.000,-- Euro
  • Top 3: OG: 2 Zimmer; Wohnfläche: ca. 54,93m²; Balkon: ca. 3,64m²; 279.000,-- Euro
  • Top 4:  OG: 1 Zimmer; Wohnfläche: ca. 38,96m²; Balkon: ca. 2,05m²; 209.000,-- Euro 
  • Top 5:  OG: 3 Zimmer; Wohnfläche: ca. 52,03m²; Balkon: ca. 3,64m²; 289.000,-- Euro 
  • Top 6:  DG: 2 Zimmer; Wohnfläche: ca. 51,54m²; Terrasse: ca. 57,25m²; 289.000,-- Euro
  • Top 7:  DG: 3 Zimmer; Wohnfläche: ca. 54,97m²; Balkon: ca. 3,64m²; 299.000,-- Euro 


Zu jeder Wohneinheit wird zusätzlich ein KFZ-Stellplatz um 10.000,-- Euro mitverkauft. 

Die Lage:

Wolkersdorf: Eine moderne Kleinstadt, die für jeden etwas zu bieten hat! Jung und alt, Weinliebhaber, Sportbegeisterte oder auch Ruhesuchende - hier ist für jeden etwas dabei. 
Das Stadtzentrum bietet ein einladendes und vielfältiges Gastronomieangebot sowie viele Einkaufsmöglichkeiten . Verschiedenste Themenmärkte und Veranstaltungen am Hauptplatz sorgen für die richtige Unterhaltung! 
Das Sommerbad, ein Eislaufplatz sowie angenehme Radwege und frei zugängliche Sport- und Freizeitanlagen bieten jede Menge Freizeitspaß! 
Wolkersdorf zeichnet sich mit einer tollen Infrastruktur und der Nähe zu Wien sowie seiner guten Erreichbarkeit aus! So sind Sie in nur ca. 13 Autominuten bereits in Wien!

Wien: ca. 13 Autominuten 

Bahnhof Wolkersdorf: ca. 400m

Penny: ca. 300m
Hofer: ca. 500m
Billa: ca. 750m
Spar: ca. 750m 

Kindergarten: ca. 24m und 400m
Volksschule: ca. 700m 
Mittelschule: ca. 850m 

Gerne steht Ihnen Frau Maja Arsic für weitere Fragen bzw. flexibel gestaltbare Besichtigungstermine unter 0699 180 47 130 zur Verfügung.  
www.ringsmuth-immobilien.at

Irrtum und Änderungen vorbehalten!

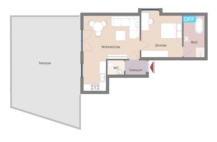
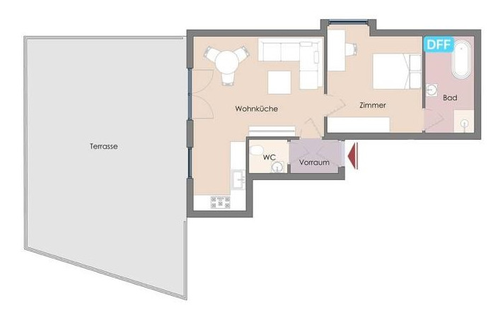
Top 6

Auf einer Wohnfläche von ca. 51,54   erwartet Sie folgende Raumaufteilung: 

  • Vorraum
  • lichterfüllte Wohnküche mit Ausgang auf die ca. 57m² große Terrasse
  • Schlafzimmer
  • Tageslichtbad mit Dusche und Badewanne
  • separates WC mit Handwaschbecken


Wir weisen darauf hin, dass die Visualisierungen teilweise auch jene der anderen Wohnungen im Haus sind. 
 

Gerne steht Ihnen Frau Maja Arsic für weitere Fragen bzw. flexibel gestaltbare Besichtigungstermine unter 0699 180 47 130 zur Verfügung.  
www.ringsmuth-immobilien.at

Irrtum und Änderungen vorbehalten!

Wir weisen darauf hin, dass zwischen dem Vermittler und dem zu vermittelnden Dritten ein familiäres oder wirtschaftliches Naheverhältnis besteht.

Der Vermittler ist als Doppelmakler tätig.


Infrastruktur / Entfernungen

Gesundheit
Arzt <500m
Klinik <1.000m
Apotheke <500m

Kinder & Schulen
Kindergarten <500m
Schule <1.000m

Nahversorgung
Supermarkt <500m
Bäckerei <500m
Einkaufszentrum <6.000m

Sonstige
Bank <500m
Geldautomat <500m
Post <500m
Polizei <1.000m

Verkehr
Bus <500m
Autobahnanschluss <1.500m
Bahnhof <500m

Angaben Entfernung Luftlinie / Quelle: OpenStreetMap


*Der Vertrag kommt nicht mit der INFINA Credit Broker GmbH zustande. Das Objekt wird von einem externen Immobilienunternehmen angeboten. Allfällige aus dem Vertragsabschluss resultierende Rechte sind ausschließlich gegenüber dem anbietenden Immobilienunternehmen geltend zu machen. Wir weisen Sie darauf hin, dass die gemachten Angaben und Informationen lediglich unverbindliche Vorabinformationen sind und daher ohne Gewähr erfolgen. Der Vermittler ist als Doppelmakler tätig.

Energieausweis & Heizung
HWB (kWh/m2/Jahr): 42.6
HWB Energieklasse B
fGEE: 0.7
fGEE Energieklasse B
Heizung: Fußbodenheizung
Befeuerung: Luftwärmepumpe
Dokumente & Videos Pläne
Partner von Infina Alexander Ringsmuth Immobilien Immobilienmakler
Nahversorgung:
Bäckerei: 20 m
Einkaufszentrum: 5960 m
Supermarkt: 140 m
Verkehr:
Bus: 50 m
Autobahnanschluss: 1130 m
Bahnhof: 640 m
Sonstige:
Post: 120 m
Polizei: 1080 m
Bank: 70 m
Geldautomat: 50 m
Gesundheit:
Apotheke: 160 m
Klinik: 240 m
Arzt: 60 m
Kinder & Schulen:
Kindergarten: 300 m
Schule: 450 m

Jetzt Experten kontaktieren

Weitere interessante Objekte

Partner von Infina
Jetzt anfragen
ca. 70,00 m² Wohnfläche 2 Zimmer
129.000 €
Mistelbach
Partner von Infina
Jetzt anfragen
4.443 €/m²
524.000 €
Ulrichskirchen-Schleinbach
Partner von Infina
Jetzt anfragen
4.345 €/m²
552.900 €
Ulrichskirchen-Schleinbach
Partner von Infina
Jetzt anfragen
4.239 €/m²
279.000 €
Ulrichskirchen-Schleinbach
Partner von Infina
Jetzt anfragen
4.262 €/m²
395.000 €
Ulrichskirchen-Schleinbach
Partner von Infina
Jetzt anfragen
3.847 €/m²
396.855 €
Ulrichskirchen-Schleinbach
Partner von Infina
Jetzt anfragen
4.307 €/m²
383.535 €
Ulrichskirchen-Schleinbach
Partner von Infina
Jetzt anfragen
4.251 €/m²
282.375 €

Immobilie kaufen: Das passende Angebot finden

Der Kauf einer Immobilie ist eine wichtige Entscheidung – sei es für die Eigennutzung oder zur Vermietung. Mit unserem Portal unterstützen wir Sie dabei, die richtige Immobilie zu kaufen. Nutzen Sie unsere Suchmöglichkeiten, um gezielt eine Immobilie zu suchen, die Ihren Vorstellungen entspricht. Unsere Immobilienangebote decken eine breite Palette ab: vom Einfamilienhaus über die Eigentumswohnung bis hin zum Grundstück für Ihr Bauvorhaben. Mit uns können Sie sicher und unkompliziert Eigentum erwerben – ob für die private Nutzung oder als Investition als Immobilie. Erkunden Sie jetzt unsere Angebote und finden Sie die perfekte Lösung, die zu Ihren Wohn- oder Anlagezielen passt.

Fundiertes Wissen für Ihre Entscheidung, eine Immobilie zu kaufen

Bereiten Sie sich bestens vor: Infina stellt Ihnen kostenlos über 300 Ratgeber und Beiträge zu den Themen Immobilie, Finanzierung, Zinsen und Recht zur Verfügung. Nutzen Sie unser umfassendes Wissen, um richtige Entscheidungen zu treffen.

Bei jedem Kauf einer Immobilie oder eines Grundstücks ist es wichtig, die passende Finanzierung zu finden. Mit seiner eigenen Vertriebsorganisation ist Infina als Wohnbau-Finanz-Experte an über 100 Standorten in ganz Österreich vertreten und vermittelt Finanzierungen an über 120 Banken und Bausparkassen. Nutzen Sie unseren kostenlosen Kreditvergleich für den passenden Wohnkredit: 

Kreditvergleich

Kostenlos und unverbindlich

Immobilie mieten: Ihr neues Zuhause wartet

Die Entscheidung, eine Immobilie zu mieten, bietet Flexibilität und zahlreiche Möglichkeiten – ob eine Wohnung für den Alltag oder ein Haus für die Familie. Bei Infina können Sie gezielt sowohl eine Wohnung suchen als auch ein Haus suchen, das Ihren Bedürfnissen entspricht. Unsere Angebote erleichtern es Ihnen, eine Mietwohnung zu suchen und Ihre ideale Wohnung finden zu können. Entdecken Sie vielfältige Optionen, um die passende Immobilie zu finden und Ihre Wohnträume zu verwirklichen. Starten Sie noch heute Ihre Suche und profitieren Sie von einer großen Auswahl an Mietobjekten in Ihrer Wunschregion.

Hilfreiche Informationen zu Immobilie mieten

Starten Sie gut vorbereitet in Ihre Mietentscheidung: Infina stellt Ihnen vielseitige Ratgeber und Beiträge zu Themen wie Immobilie, Mietrecht, Finanzierung und Wohntrends zur Verfügung. Verschaffen Sie sich einen Überblick über alle relevanten Aspekte und gestalten Sie Ihren Weg ins neue Zuhause einfacher und sicherer.

Erfolgreich zur neuen Immobilie

Mit Infina haben Sie einen verlässlichen Partner an Ihrer Seite, der Sie von der ersten Beratung bis zum erfolgreichen Abschluss ganzheitlich unterstützt. Erfahren Sie hier, wie wir gemeinsam Ihren Immobilienerfolg gestalten.

Starten Sie jetzt Ihre Immobiliensuche

Nach zahlreichen Informationen rund um die Themen Immobilie kaufen und Immobilie mieten können Sie nun den nächsten Schritt machen. Starten Sie die Immobiliensuche, um Ihr neues Zuhause oder Ihre nächste Investition zu finden und entdecken Sie die passenden Angebote:

Das innovative Portal für Immobilien und Finanzierung 

Als Kunde von Infina profitieren Sie von unserer umfangreichen und unabhängigen Expertise als Teil einer wachsenden, unabhängigen Immobilien- und Finanzierungsnetzwerkgruppe. Bereits 50.000 Kunden hat Infina erfolgreich bei Ihrem Vorhaben begleitet. Infina bietet Ihnen eine umfassende Beratung in allen Bereichen rund um Ihre Immobilienvorhaben:

Die passende Finanzierung für Ihre Immobilie

Mit Infina erhalten Sie nicht nur eine unabhängige Beratung, sondern auch die passende Finanzierungslösung für Ihre Immobilie. Aus den Angeboten von über 120 Banken und Bausparkassen vermitteln wir Ihnen das, was perfekt zu Ihren Bedürfnissen passt. Wir begleiten Sie professionell und verlässlich – von der ersten Beratung bis zum erfolgreichen Abschluss.

Kreditvergleich

Kostenlos und unverbindlich

Wir holen das Beste für Sie heraus

Verkaufen Sie Ihre Immobilie mit uns & profitieren Sie von unserer Expertise. Wir bringen Ihre Immobilie optimal auf den Markt & erzielen den besten Preis. 

Kontaktieren Sie uns jetzt.

Jetzt Experten kontaktieren
Junge Frau im pinken Blazer hält ein Modellhaus in der linken Hand und zeigt mit der rechten Hand nach oben, als hätte sie eine Idee. Sie lächelt und blickt leicht nach oben – symbolisch für Inspiration oder Immobilienberatung.