INFINA LOGO
Entspannt zur Immobilie Persönlich & kompetent beraten Finanzierbarkeit sofort überprüfbar
871.000 €
Kostenlos &
unverbindlich.
Kontakt aufnehmen

Ihr Wohntraum im Lavanttal - das neue Wohnbauprojekt am Rikliweg

Obj. Nr.: 45577

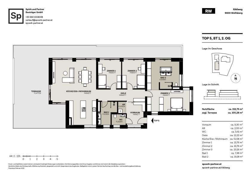
ca. 152,75 m² Wohnfläche 4 Zimmer
Partner von Infina Next-Home Immobilien Immobilienmakler 
Partner von Infina Next-Home Immobilien Immobilienmakler
871.000 € Kaufpreis der Immobilie Kreditvergleich von über 120 Banken mit Infina.
Immobilie finanzieren
Mehr Informationen zur Immobilie: Detaillierte Einblicke in dieses Objekt.
Zurück zur Übersicht

Objektstandort

9400 Wolfsberg, Kärnten Adresse anfragen

Directions Icon Fahrtzeit berechnen
Preisinformationen
Kaufpreis 871.000 €
Grundbucheintragung: 1.1 %
Grunderwerbsteuer: 3.5 %
Was kann ich mir leisten?
Jetzt berechnen

Objektinformationen

Objektart: Wohnung
Nutzungsart: Wohnen
barrierefrei: Ja

Rauminformationen & Flächen

Wohnfläche: ca. 152,75 m²
Anzahl Balkone: 1
Anzahl Zimmer: 4

Ausstattung

Boden: Fliesen, Parkett
Befeuerung: Elektro
Fahrstuhl: Personenaufzug
Bad: Dusche, Badewanne, Bad mit Fenster
WCs: Gäste-WC

Lage

Das Leben in der Nähe der Rikli-Villa bietet eine Fülle an Vorteilen, die Wohnträume wahr werden lassen. Die Lage ist einzigartig: Sie sind nur einen Steinwurf von der Stadt entfernt und können dennoch die Ruhe und Schönheit der umliegenden Natur genießen. In dieser exklusiven Nachbarschaft erwartet Sie eine erstklassige Infrastruktur, die alles Nötige in unmittelbarer Nähe bereithält - von Geschäften über Restaurants bis hin zu Freizeiteinrich-tungen. Darüber hinaus laden die umliegenden Parks und Seen zu entspannenden Ausflügen ein und fördern ein aktives Leben im Freien.

Beschreibung *

Das neue Wohnbauprojekt am Rikliweg von Spörk und Partner bietet eine einzigartige Gelegenheit, das Leben inmitten der Natur mit urbanen Annehmlichkeiten zu verbinden.
Direkt an die malerische Rikli-Villa angrenzend, entsteht ein Ort, der Eleganz und Funktionalität vereint und perfekt den Respekt vor der Umgebung und den Anspruch an hohe Lebensqualität widerspiegelt.
Die Anlage umfasst drei Gebäude mit insgesamt 16 Wohneinheiten. Die Erdgeschosswohnungen besitzen großzügige, eigene Gartenflächen im Eigentum, während die übrigen Einheiten mit ansprechenden Balkonen oder Terrassen ausgestattet sind.
Die raffinierten und modernen Raumlösungen tragen dazu bei, dass jeder Quadratmeter optimal genutzt wird, während die hochwertigen Materialien für ein behagliches Wohn-ambiente sorgen. Wenn Sie Wert auf Qualität und innovative Exklusivität legen, ist dies Ihre Chance, ein Teil dieses außergewöhnlichen Projekts von Spörk und Partner zu werden.
Lassen Sie sich von den Möglichkeiten inspirieren und finden Sie Ihren Wohntraum im Lavanttal - dem Paradies Kärntens.

*Der Vertrag kommt nicht mit der INFINA Credit Broker GmbH zustande. Das Objekt wird von einem externen Immobilienunternehmen angeboten. Allfällige aus dem Vertragsabschluss resultierende Rechte sind ausschließlich gegenüber dem anbietenden Immobilienunternehmen geltend zu machen. Wir weisen Sie darauf hin, dass die gemachten Angaben und Informationen lediglich unverbindliche Vorabinformationen sind und daher ohne Gewähr erfolgen. Der Vermittler ist als Doppelmakler tätig.

Energieausweis & Heizung
HWB (kWh/m2/Jahr): 43
HWB Energieklasse B
fGEE: 0.57
fGEE Energieklasse B
Befeuerung: Elektro
Partner von Infina Next-Home Immobilien Immobilienmakler
Verkehr:
Flughafen: 1940 m
Bahnhof: 2890 m
Autobahnanschluss: 600 m
Bus: 970 m

Jetzt Experten kontaktieren

Weitere interessante Objekte

Partner von Infina
Jetzt anfragen
2.600 €/m²
Auf Anfrage
Partner von Infina
Jetzt anfragen
338.000 €
Partner von Infina
Jetzt anfragen
335.000 €
Partner von Infina
Jetzt anfragen
488.000 €

Immobilie kaufen: Das passende Angebot finden

Der Kauf einer Immobilie ist eine wichtige Entscheidung – sei es für die Eigennutzung oder zur Vermietung. Mit unserem Portal unterstützen wir Sie dabei, die richtige Immobilie zu kaufen. Nutzen Sie unsere Suchmöglichkeiten, um gezielt eine Immobilie zu suchen, die Ihren Vorstellungen entspricht. Unsere Immobilienangebote decken eine breite Palette ab: vom Einfamilienhaus über die Eigentumswohnung bis hin zum Grundstück für Ihr Bauvorhaben. Mit uns können Sie sicher und unkompliziert Eigentum erwerben – ob für die private Nutzung oder als Investition als Immobilie. Erkunden Sie jetzt unsere Angebote und finden Sie die perfekte Lösung, die zu Ihren Wohn- oder Anlagezielen passt.

Fundiertes Wissen für Ihre Entscheidung, eine Immobilie zu kaufen

Bereiten Sie sich bestens vor: Infina stellt Ihnen kostenlos über 300 Ratgeber und Beiträge zu den Themen Immobilie, Finanzierung, Zinsen und Recht zur Verfügung. Nutzen Sie unser umfassendes Wissen, um richtige Entscheidungen zu treffen.

Bei jedem Kauf einer Immobilie oder eines Grundstücks ist es wichtig, die passende Finanzierung zu finden. Mit seiner eigenen Vertriebsorganisation ist Infina als Wohnbau-Finanz-Experte an über 100 Standorten in ganz Österreich vertreten und vermittelt Finanzierungen an über 150 Banken und Bausparkassen. Nutzen Sie unseren kostenlosen Kreditvergleich für den passenden Wohnkredit: 

Kreditvergleich

Kostenlos und unverbindlich

Immobilie mieten: Ihr neues Zuhause wartet

Die Entscheidung, eine Immobilie zu mieten, bietet Flexibilität und zahlreiche Möglichkeiten – ob eine Wohnung für den Alltag oder ein Haus für die Familie. Bei Infina können Sie gezielt sowohl eine Wohnung suchen als auch ein Haus suchen, das Ihren Bedürfnissen entspricht. Unsere Angebote erleichtern es Ihnen, eine Mietwohnung zu suchen und Ihre ideale Wohnung finden zu können. Entdecken Sie vielfältige Optionen, um die passende Immobilie zu finden und Ihre Wohnträume zu verwirklichen. Starten Sie noch heute Ihre Suche und profitieren Sie von einer großen Auswahl an Mietobjekten in Ihrer Wunschregion.

Hilfreiche Informationen zu Immobilie mieten

Starten Sie gut vorbereitet in Ihre Mietentscheidung: Infina stellt Ihnen vielseitige Ratgeber und Beiträge zu Themen wie Immobilie, Mietrecht, Finanzierung und Wohntrends zur Verfügung. Verschaffen Sie sich einen Überblick über alle relevanten Aspekte und gestalten Sie Ihren Weg ins neue Zuhause einfacher und sicherer.

Erfolgreich zur neuen Immobilie

Mit Infina haben Sie einen verlässlichen Partner an Ihrer Seite, der Sie von der ersten Beratung bis zum erfolgreichen Abschluss ganzheitlich unterstützt. Erfahren Sie hier, wie wir gemeinsam Ihren Immobilienerfolg gestalten.

Starten Sie jetzt Ihre Immobiliensuche

Nach zahlreichen Informationen rund um die Themen Immobilie kaufen und Immobilie mieten können Sie nun den nächsten Schritt machen. Starten Sie die Immobiliensuche, um Ihr neues Zuhause oder Ihre nächste Investition zu finden und entdecken Sie die passenden Angebote:

Das innovative Portal für Immobilien und Finanzierung 

Als Kunde von Infina profitieren Sie von unserer umfangreichen und unabhängigen Expertise als Teil einer wachsenden, unabhängigen Immobilien- und Finanzierungsnetzwerkgruppe. Bereits 50.000 Kunden hat Infina erfolgreich bei Ihrem Vorhaben begleitet. Infina bietet Ihnen eine umfassende Beratung in allen Bereichen rund um Ihre Immobilienvorhaben:

Die passende Finanzierung für Ihre Immobilie

Mit Infina erhalten Sie nicht nur eine unabhängige Beratung, sondern auch die passende Finanzierungslösung für Ihre Immobilie. Aus den Angeboten von über 150 Banken und Bausparkassen vermitteln wir Ihnen das, was perfekt zu Ihren Bedürfnissen passt. Wir begleiten Sie professionell und verlässlich – von der ersten Beratung bis zum erfolgreichen Abschluss.

Kreditvergleich

Kostenlos und unverbindlich

Wir holen das Beste für Sie heraus

Verkaufen Sie Ihre Immobilie mit uns & profitieren Sie von unserer Expertise. Wir bringen Ihre Immobilie optimal auf den Markt & erzielen den besten Preis. 

Kontaktieren Sie uns jetzt.

Jetzt Experten kontaktieren
Junge Frau im pinken Blazer hält ein Modellhaus in der linken Hand und zeigt mit der rechten Hand nach oben, als hätte sie eine Idee. Sie lächelt und blickt leicht nach oben – symbolisch für Inspiration oder Immobilienberatung.