INFINA LOGO
Entspannt zur Immobilie Persönlich & kompetent beraten Finanzierbarkeit sofort überprüfbar
1.810.000 € 13.267 €/m²
Kostenlos &
unverbindlich.
Kontakt aufnehmen

Zeitlose Ästhetik in urbaner Ruheoase - Edle Dachwohnung mit viel Freifläche

Obj. Nr.: 95478

ca. 136,43 m² Nutzfläche 3 Zimmer
Partner von Infina EB Immobilien Immobilienmakler 
Partner von Infina EB Immobilien Immobilienmakler
1.810.000 € Kaufpreis der Immobilie Kreditvergleich von über 120 Banken mit Infina.
Immobilie finanzieren
Mehr Informationen zur Immobilie: Detaillierte Einblicke in dieses Objekt.
Zurück zur Übersicht

Objektstandort

1080 Wien,Josefstadt, Fuhrmannsgasse, Wien

Directions Icon Fahrtzeit berechnen
Preisinformationen
Kaufpreis 1.810.000 €
Betriebskosten inkl. USt. 261,54 €
Sonstige Kosten inkl. USt. 166,17 €
Grundbucheintragung: 1.1 %
Grunderwerbsteuer: 3.5 %
Was kann ich mir leisten?
Jetzt berechnen
Maklerprovision:
3,00 % des Kaufpreises zzgl. 20 % USt.

Objektinformationen

Objektart: Wohnung
Unterobjektart: Dachgeschoß
Nutzungsart: Wohnen
Bauart: Neubau
Zustand: Erstbezug
Baujahr: 2023
Letzte Sanierung: 2023
Erschließung: Vollerschlossen
barrierefrei: Ja

Rauminformationen & Flächen

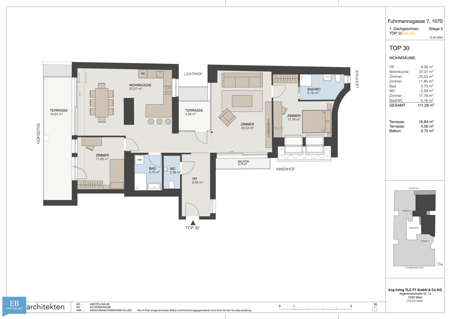
Wohnfläche: ca. 111,28 m²
Nutzfläche: ca. 136,43 m²
Balkonfläche: ca. 3,75 m²
Terrassenfläche: ca. 21,40 m²
Anzahl Balkone: 1
Anzahl Terrassen: 1
Anzahl Zimmer: 3
Anzahl WC: 2
Anzahl Bäder: 2

Ausstattung

Boden: Parkett
Befeuerung: Pellets
Heizungsart: Fußbodenheizung, Zentralheizung
Küche: Wohnküche / offene Küche
Fahrstuhl: Personenaufzug
Balkon: Westbalkon / -terrasse
Bad: Dusche, Bad mit Fenster
Belüftung: Klimaanlage
Fenster: Rollladen
WCs: Gäste-WC
Bauweise: Fertigteil

Lage

Im flächenmäßig kleinsten Bezirk Wiens wird Lebensqualität groß geschrieben. Das Leben im 8. Bezirk ist ein einzigartiges Zusammenspiel aus urbaner Atmosphäre und historischem Flair. Der Bezirk punktet durch eine erstklassige Infrastruktur, nahtlose Anbindung und die Nähe zur Innenstadt - hier zeigt sich Wien von seiner besten Seite.

Beschreibung *

Luxuriöse Dachwohnung mit Terrassen und Weitblick im Herzen der Josefstadt

Diese edle Dachwohnung in einem hochwertig sanierten Altbau bietet Ihnen ein Wohngefühl der Extraklasse im Herzen des 8. Bezirks, Josefstadt. 

Highlights der Wohnung:

  • Sehr hell und großzügig gestaltet auf einer Ebene
  • Direkte Zugänge zu Terrassen / Balkonen von fast allen Räumen
  • Luxuriöser Eingangsbereich mit Weitblick auf die Terrasse
  • Modernes Wohnkonzept: Zwei Flügel, die durch eine beeindruckende Terrasse mit Glaswänden getrennt sind:
  • Linker Flügel:
  • Stilvolle Wohnküche mit direktem Zugang zur Terrasse, Geräumiger Arbeits- und/oder Schlafraum, Modernes Badezimmer
  • Rechter Flügel:
  • Offener Wohnraum mit Blick auf die Terrasse
  • Großzügiger Schlafraum mit eigenem, sehr geräumigen Badezimmer

Höchster Qualitätsanspruch:

Die Dachwohnungen dieses Hauses wurden mit höchstem Qualitätsanspruch ausgebaut. Dank der Möglichkeit des Querlüftens ist die Benutzung einer Klimaanlage selbst an heißen Tagen kaum nötig - frische Luft und angenehmes Raumklima sind garantiert.

Die hauseigene Pellets-Zentralheizung sorgt für kosteneffiziente und saubere Wärmeversorgung durch CO2-neutrales Heizen.

Die Dachwohnung ist das ideale Domizil, das exzellente Lage mit maximalem Wohnluxus und Altbau-Romantik vereint. Nehmen Sie Kontakt auf und sichern Sie sich den Erstbezug für diese einzigartige Dachgeschosswohnung im Herzen des 8. Bezirks! 


*Der Vertrag kommt nicht mit der INFINA Credit Broker GmbH zustande. Das Objekt wird von einem externen Immobilienunternehmen angeboten. Allfällige aus dem Vertragsabschluss resultierende Rechte sind ausschließlich gegenüber dem anbietenden Immobilienunternehmen geltend zu machen. Wir weisen Sie darauf hin, dass die gemachten Angaben und Informationen lediglich unverbindliche Vorabinformationen sind und daher ohne Gewähr erfolgen. Der Vermittler ist als Doppelmakler tätig.

Energieausweis & Heizung
HWB (kWh/m2/Jahr): 43.7
HWB Energieklasse B
fGEE: 0.8
fGEE Energieklasse B
Gültig bis: 28.09.2031
Heizung: Fußbodenheizung, Zentralheizung
Befeuerung: Pellets
Dokumente & Videos Pläne
Partner von Infina EB Immobilien Immobilienmakler
Kinder & Schulen:
Kindergarten: 140 m
Universität: 480 m
Schule: 120 m
Höhere Schule: 120 m
Nahversorgung:
Supermarkt: 140 m
Bäckerei: 140 m
Einkaufszentrum: 1240 m
Gesundheit:
Apotheke: 240 m
Arzt: 150 m
Klinik: 340 m
Krankenhaus: 670 m
Verkehr:
Autobahnanschluss: 3380 m
Bus: 130 m
U-Bahn: 550 m
Straßenbahn: 130 m
Bahnhof: 540 m
Sonstige:
Polizei: 50 m
Post: 210 m
Bank: 210 m
Geldautomat: 210 m

Jetzt Experten kontaktieren

Immobilie kaufen: Das passende Angebot finden

Der Kauf einer Immobilie ist eine wichtige Entscheidung – sei es für die Eigennutzung oder zur Vermietung. Mit unserem Portal unterstützen wir Sie dabei, die richtige Immobilie zu kaufen. Nutzen Sie unsere Suchmöglichkeiten, um gezielt eine Immobilie zu suchen, die Ihren Vorstellungen entspricht. Unsere Immobilienangebote decken eine breite Palette ab: vom Einfamilienhaus über die Eigentumswohnung bis hin zum Grundstück für Ihr Bauvorhaben. Mit uns können Sie sicher und unkompliziert Eigentum erwerben – ob für die private Nutzung oder als Investition als Immobilie. Erkunden Sie jetzt unsere Angebote und finden Sie die perfekte Lösung, die zu Ihren Wohn- oder Anlagezielen passt.

Fundiertes Wissen für Ihre Entscheidung, eine Immobilie zu kaufen

Bereiten Sie sich bestens vor: Infina stellt Ihnen kostenlos über 300 Ratgeber und Beiträge zu den Themen Immobilie, Finanzierung, Zinsen und Recht zur Verfügung. Nutzen Sie unser umfassendes Wissen, um richtige Entscheidungen zu treffen.

Bei jedem Kauf einer Immobilie oder eines Grundstücks ist es wichtig, die passende Finanzierung zu finden. Mit seiner eigenen Vertriebsorganisation ist Infina als Wohnbau-Finanz-Experte an über 100 Standorten in ganz Österreich vertreten und vermittelt Finanzierungen an über 150 Banken und Bausparkassen. Nutzen Sie unseren kostenlosen Kreditvergleich für den passenden Wohnkredit: 

Kreditvergleich

Kostenlos und unverbindlich

Immobilie mieten: Ihr neues Zuhause wartet

Die Entscheidung, eine Immobilie zu mieten, bietet Flexibilität und zahlreiche Möglichkeiten – ob eine Wohnung für den Alltag oder ein Haus für die Familie. Bei Infina können Sie gezielt sowohl eine Wohnung suchen als auch ein Haus suchen, das Ihren Bedürfnissen entspricht. Unsere Angebote erleichtern es Ihnen, eine Mietwohnung zu suchen und Ihre ideale Wohnung finden zu können. Entdecken Sie vielfältige Optionen, um die passende Immobilie zu finden und Ihre Wohnträume zu verwirklichen. Starten Sie noch heute Ihre Suche und profitieren Sie von einer großen Auswahl an Mietobjekten in Ihrer Wunschregion.

Hilfreiche Informationen zu Immobilie mieten

Starten Sie gut vorbereitet in Ihre Mietentscheidung: Infina stellt Ihnen vielseitige Ratgeber und Beiträge zu Themen wie Immobilie, Mietrecht, Finanzierung und Wohntrends zur Verfügung. Verschaffen Sie sich einen Überblick über alle relevanten Aspekte und gestalten Sie Ihren Weg ins neue Zuhause einfacher und sicherer.

Erfolgreich zur neuen Immobilie

Mit Infina haben Sie einen verlässlichen Partner an Ihrer Seite, der Sie von der ersten Beratung bis zum erfolgreichen Abschluss ganzheitlich unterstützt. Erfahren Sie hier, wie wir gemeinsam Ihren Immobilienerfolg gestalten.

Starten Sie jetzt Ihre Immobiliensuche

Nach zahlreichen Informationen rund um die Themen Immobilie kaufen und Immobilie mieten können Sie nun den nächsten Schritt machen. Starten Sie die Immobiliensuche, um Ihr neues Zuhause oder Ihre nächste Investition zu finden und entdecken Sie die passenden Angebote:

Das innovative Portal für Immobilien und Finanzierung 

Als Kunde von Infina profitieren Sie von unserer umfangreichen und unabhängigen Expertise als Teil einer wachsenden, unabhängigen Immobilien- und Finanzierungsnetzwerkgruppe. Bereits 50.000 Kunden hat Infina erfolgreich bei Ihrem Vorhaben begleitet. Infina bietet Ihnen eine umfassende Beratung in allen Bereichen rund um Ihre Immobilienvorhaben:

Die passende Finanzierung für Ihre Immobilie

Mit Infina erhalten Sie nicht nur eine unabhängige Beratung, sondern auch die passende Finanzierungslösung für Ihre Immobilie. Aus den Angeboten von über 150 Banken und Bausparkassen vermitteln wir Ihnen das, was perfekt zu Ihren Bedürfnissen passt. Wir begleiten Sie professionell und verlässlich – von der ersten Beratung bis zum erfolgreichen Abschluss.

Kreditvergleich

Kostenlos und unverbindlich

Wir holen das Beste für Sie heraus

Verkaufen Sie Ihre Immobilie mit uns & profitieren Sie von unserer Expertise. Wir bringen Ihre Immobilie optimal auf den Markt & erzielen den besten Preis. 

Kontaktieren Sie uns jetzt.

Jetzt Experten kontaktieren
Junge Frau im pinken Blazer hält ein Modellhaus in der linken Hand und zeigt mit der rechten Hand nach oben, als hätte sie eine Idee. Sie lächelt und blickt leicht nach oben – symbolisch für Inspiration oder Immobilienberatung.