INFINA LOGO
Entspannt zur Immobilie Persönlich & kompetent beraten Finanzierbarkeit sofort überprüfbar
339.000 € 5.054 €/m²
Kostenlos &
unverbindlich.
Kontakt aufnehmen

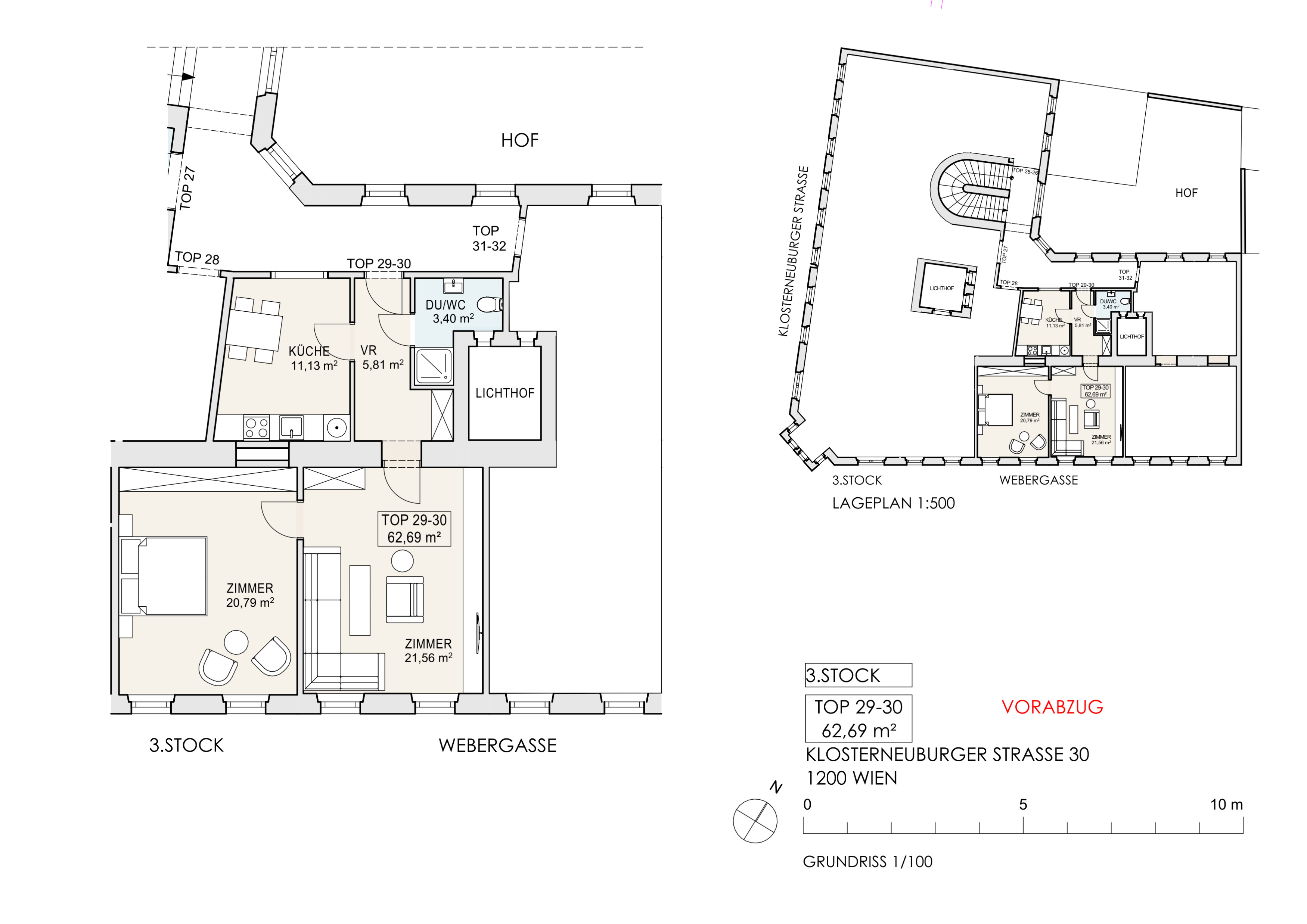
2 Zimmer-Altbauwohnung in gefragter Lage Nähe Augarten

Obj. Nr.: 83539

ca. 62,69 m² Wohnfläche 2 Zimmer
Partner von Infina EHL Wohnen Immobilienmakler 
Partner von Infina EHL Wohnen Immobilienmakler
339.000 € Kaufpreis der Immobilie Kreditvergleich von über 120 Banken mit Infina.
Immobilie finanzieren
Mehr Informationen zur Immobilie: Detaillierte Einblicke in dieses Objekt.
Zurück zur Übersicht

Objektstandort

1200 Wien, Webergasse 19/29-30

Directions Icon Fahrtzeit berechnen
Preisinformationen
Kaufpreis 339.000 €
Betriebskosten inkl. USt. 142,95 €
Sonstige Kosten inkl. USt. 70,21 €
Grundbucheintragung: 1.1 %
Grunderwerbsteuer: 3.5 %
Was kann ich mir leisten?
Jetzt berechnen
Maklerprovision:
3,00 % des Kaufpreises zzgl. 20 % USt.

Objektinformationen

Objektart: Wohnung
Nutzungsart: Wohnen
Bauart: Altbau
Zustand: gepflegt
Baujahr: 1900

Rauminformationen & Flächen

Wohnfläche: ca. 62,69 m²
Anzahl Zimmer: 2
Anzahl WC: 1
Anzahl Bäder: 1

Ausstattung

Boden: Fliesen, Parkett
Befeuerung: Gas
Heizungsart: Etagenheizung
Küche: Einbauküche
Bad: Dusche

Beschreibung *

2 Zimmer-Altbauwohnung mit separater Küche nahe Augarten

Zum Verkauf steht eine gepflegte 2-Zimmer-Wohnung in der 3. Etage eines Altbaus aus dem Jahr 1900. Die Liegenschaft befindet sich in der Webergasse 19, an der Ecke zur Klosterneuburger Straße 30, nur wenige Gehminuten vom beliebten Augarten entfernt. 

Die Wohnung selbst bietet eine praktische Raumaufteilung mit Vorraum, separater Küche, Wohnzimmer, einem Schlafzimmer sowie Badezimmer. Die beiden Zimmer sind mit jeweils etwa 20m² sehr großzügig geschnitten und bieten so viel Gestaltungsfreiraum.

Das Wohnhaus selbst präsentiert sich in einem gepflegten und kürzlich modernisierten Zustand. Der Eingangsbereich wurde stilvoll erneuert und mit einem digitalen schwarzen Brett ausgestattet. Gleichzeitig wurde großer Wert darauf gelegt, den authentischen Altbaucharme zu bewahren: Die originalen Mosaikfliesen, kunstvoll gearbeiteten Stiegenhausgeländer sowie die historischen Bassenas auf den Etagen sind noch erhalten und verleihen dem Haus besonderen Charakter.

Wir dürfen darauf hinweisen, dass das Haus derzeit über keinen Lift verfügt. Der Verkäufer verpflichtet sich jedoch vertraglich zur Errichtung eines Liftes bis spätestens 2028.

Die Lage & Infrastruktur

Die Wohnlage punktet durch eine ausgezeichnete Infrastruktur: Zahlreiche Einkaufsmöglichkeiten (Supermärkte, Bäckereien, Apotheken), Cafés und Restaurants befinden sich in unmittelbarer Umgebung. Die Klosterneuburger Straße verbindet urbanes Leben mit entspanntem Wohnen.

Öffentliche Verkehrsmittel: 

  • U-Bahn: U4 „Friedensbrücke“ (ca. 6 Gehminuten)

  • Straßenbahnlinien: 1, 2, 5, 31, 33, O

  • Bus: Linie 5B

Damit ist sowohl die Wiener Innenstadt als auch der Franz-Josefs-Bahnhof oder die U6-Station Jägerstraße schnell erreichbar.

Der Verkauf erfolgt mit einer Vermittlungsprovision in Höhe von 3 % des Kaufpreises.

Der Vermittler ist als Doppelmakler tätig.


Infrastruktur / Entfernungen

Gesundheit
Arzt <150m
Apotheke <225m
Klinik <825m
Krankenhaus <1.400m

Kinder & Schulen
Schule <225m
Kindergarten <75m
Universität <600m
Höhere Schule <775m

Nahversorgung
Supermarkt <50m
Bäckerei <75m
Einkaufszentrum <1.200m

Sonstige
Geldautomat <125m
Bank <125m
Post <300m
Polizei <500m

Verkehr
Bus <75m
U-Bahn <375m
Straßenbahn <75m
Bahnhof <375m
Autobahnanschluss <1.150m

Angaben Entfernung Luftlinie / Quelle: OpenStreetMap


*Der Vertrag kommt nicht mit der INFINA Credit Broker GmbH zustande. Das Objekt wird von einem externen Immobilienunternehmen angeboten. Allfällige aus dem Vertragsabschluss resultierende Rechte sind ausschließlich gegenüber dem anbietenden Immobilienunternehmen geltend zu machen. Wir weisen Sie darauf hin, dass die gemachten Angaben und Informationen lediglich unverbindliche Vorabinformationen sind und daher ohne Gewähr erfolgen. Der Vermittler ist als Doppelmakler tätig.

Energieausweis & Heizung
HWB (kWh/m2/Jahr): 120.8
HWB Energieklasse D
fGEE: 3.76
fGEE Energieklasse D
Gültig bis: 10.03.2029
Heizung: Etagenheizung
Befeuerung: Gas
Dokumente & Videos Pläne Preisliste Planmappe
Partner von Infina EHL Wohnen Immobilienmakler
Gesundheit:
Klinik: 810 m
Arzt: 150 m
Apotheke: 230 m
Krankenhaus: 1740 m
Nahversorgung:
Supermarkt: 50 m
Bäckerei: 70 m
Einkaufszentrum: 930 m
Sonstige:
Polizei: 500 m
Bank: 120 m
Geldautomat: 130 m
Post: 300 m
Verkehr:
Autobahnanschluss: 1150 m
U-Bahn: 360 m
Straßenbahn: 70 m
Bahnhof: 360 m
Bus: 240 m
Kinder & Schulen:
Höhere Schule: 780 m
Kindergarten: 70 m
Universität: 590 m
Schule: 210 m

Jetzt Experten kontaktieren

Immobilie kaufen: Das passende Angebot finden

Der Kauf einer Immobilie ist eine wichtige Entscheidung – sei es für die Eigennutzung oder zur Vermietung. Mit unserem Portal unterstützen wir Sie dabei, die richtige Immobilie zu kaufen. Nutzen Sie unsere Suchmöglichkeiten, um gezielt eine Immobilie zu suchen, die Ihren Vorstellungen entspricht. Unsere Immobilienangebote decken eine breite Palette ab: vom Einfamilienhaus über die Eigentumswohnung bis hin zum Grundstück für Ihr Bauvorhaben. Mit uns können Sie sicher und unkompliziert Eigentum erwerben – ob für die private Nutzung oder als Investition als Immobilie. Erkunden Sie jetzt unsere Angebote und finden Sie die perfekte Lösung, die zu Ihren Wohn- oder Anlagezielen passt.

Fundiertes Wissen für Ihre Entscheidung, eine Immobilie zu kaufen

Bereiten Sie sich bestens vor: Infina stellt Ihnen kostenlos über 300 Ratgeber und Beiträge zu den Themen Immobilie, Finanzierung, Zinsen und Recht zur Verfügung. Nutzen Sie unser umfassendes Wissen, um richtige Entscheidungen zu treffen.

Bei jedem Kauf einer Immobilie oder eines Grundstücks ist es wichtig, die passende Finanzierung zu finden. Mit seiner eigenen Vertriebsorganisation ist Infina als Wohnbau-Finanz-Experte an über 100 Standorten in ganz Österreich vertreten und vermittelt Finanzierungen an über 150 Banken und Bausparkassen. Nutzen Sie unseren kostenlosen Kreditvergleich für den passenden Wohnkredit: 

Kreditvergleich

Kostenlos und unverbindlich

Immobilie mieten: Ihr neues Zuhause wartet

Die Entscheidung, eine Immobilie zu mieten, bietet Flexibilität und zahlreiche Möglichkeiten – ob eine Wohnung für den Alltag oder ein Haus für die Familie. Bei Infina können Sie gezielt sowohl eine Wohnung suchen als auch ein Haus suchen, das Ihren Bedürfnissen entspricht. Unsere Angebote erleichtern es Ihnen, eine Mietwohnung zu suchen und Ihre ideale Wohnung finden zu können. Entdecken Sie vielfältige Optionen, um die passende Immobilie zu finden und Ihre Wohnträume zu verwirklichen. Starten Sie noch heute Ihre Suche und profitieren Sie von einer großen Auswahl an Mietobjekten in Ihrer Wunschregion.

Hilfreiche Informationen zu Immobilie mieten

Starten Sie gut vorbereitet in Ihre Mietentscheidung: Infina stellt Ihnen vielseitige Ratgeber und Beiträge zu Themen wie Immobilie, Mietrecht, Finanzierung und Wohntrends zur Verfügung. Verschaffen Sie sich einen Überblick über alle relevanten Aspekte und gestalten Sie Ihren Weg ins neue Zuhause einfacher und sicherer.

Erfolgreich zur neuen Immobilie

Mit Infina haben Sie einen verlässlichen Partner an Ihrer Seite, der Sie von der ersten Beratung bis zum erfolgreichen Abschluss ganzheitlich unterstützt. Erfahren Sie hier, wie wir gemeinsam Ihren Immobilienerfolg gestalten.

Starten Sie jetzt Ihre Immobiliensuche

Nach zahlreichen Informationen rund um die Themen Immobilie kaufen und Immobilie mieten können Sie nun den nächsten Schritt machen. Starten Sie die Immobiliensuche, um Ihr neues Zuhause oder Ihre nächste Investition zu finden und entdecken Sie die passenden Angebote:

Das innovative Portal für Immobilien und Finanzierung 

Als Kunde von Infina profitieren Sie von unserer umfangreichen und unabhängigen Expertise als Teil einer wachsenden, unabhängigen Immobilien- und Finanzierungsnetzwerkgruppe. Bereits 50.000 Kunden hat Infina erfolgreich bei Ihrem Vorhaben begleitet. Infina bietet Ihnen eine umfassende Beratung in allen Bereichen rund um Ihre Immobilienvorhaben:

Die passende Finanzierung für Ihre Immobilie

Mit Infina erhalten Sie nicht nur eine unabhängige Beratung, sondern auch die passende Finanzierungslösung für Ihre Immobilie. Aus den Angeboten von über 150 Banken und Bausparkassen vermitteln wir Ihnen das, was perfekt zu Ihren Bedürfnissen passt. Wir begleiten Sie professionell und verlässlich – von der ersten Beratung bis zum erfolgreichen Abschluss.

Kreditvergleich

Kostenlos und unverbindlich

Wir holen das Beste für Sie heraus

Verkaufen Sie Ihre Immobilie mit uns & profitieren Sie von unserer Expertise. Wir bringen Ihre Immobilie optimal auf den Markt & erzielen den besten Preis. 

Kontaktieren Sie uns jetzt.

Jetzt Experten kontaktieren
Junge Frau im pinken Blazer hält ein Modellhaus in der linken Hand und zeigt mit der rechten Hand nach oben, als hätte sie eine Idee. Sie lächelt und blickt leicht nach oben – symbolisch für Inspiration oder Immobilienberatung.