INFINA LOGO
Entspannt zur Immobilie Persönlich & kompetent beraten Finanzierbarkeit sofort überprüfbar
339.000 € 5.408 €/m²
Kostenlos &
unverbindlich.
Kontakt aufnehmen

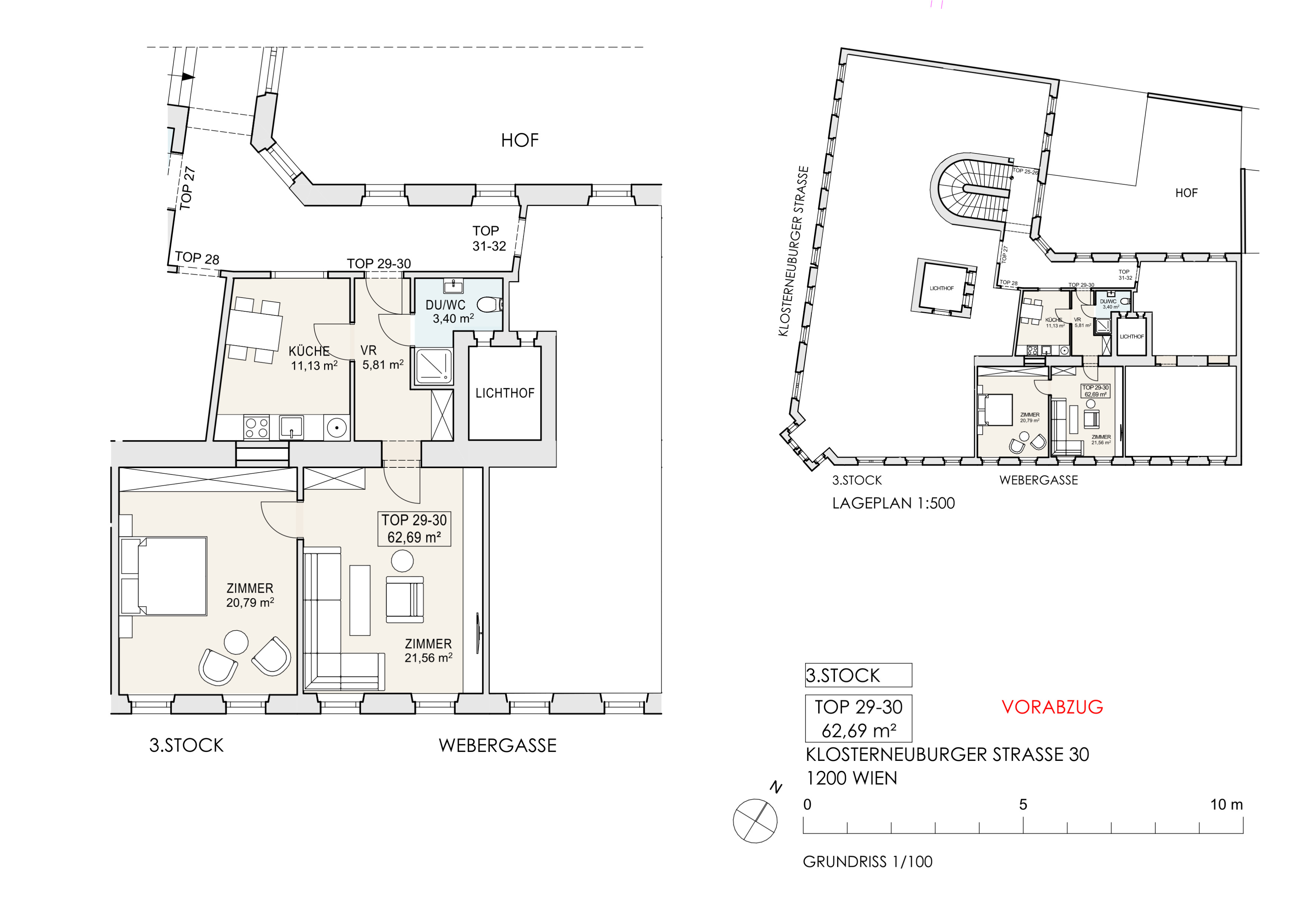
NÄHE AUGARTEN: helle 2,5-Zimmerwohnung mit separater geräumiger Küche

Obj. Nr.: 78201

ca. 62,69 m² Wohnfläche 2,5 Zimmer
Partner von Infina Moritz Immobilien Immobilienmakler 
Partner von Infina Moritz Immobilien Immobilienmakler
339.000 € Kaufpreis der Immobilie Kreditvergleich von über 120 Banken mit Infina.
Immobilie finanzieren
Mehr Informationen zur Immobilie: Detaillierte Einblicke in dieses Objekt.
Zurück zur Übersicht

Objektstandort

1200 Wien Adresse anfragen

Directions Icon Fahrtzeit berechnen
Preisinformationen
Kaufpreis 339.000 €
Betriebskosten inkl. USt. 142,95 €
Sonstige Kosten inkl. USt. 70,21 €
Grundbucheintragung: 1.1 %
Grunderwerbsteuer: 3.5 %
Was kann ich mir leisten?
Jetzt berechnen
Maklerprovision:
3,00 % des Kaufpreises zzgl. 20 % USt.

Objektinformationen

Objektart: Wohnung
Nutzungsart: Wohnen
Bauart: Altbau
Zustand: gepflegt
Baujahr: 1900

Rauminformationen & Flächen

Wohnfläche: ca. 62,69 m²
Kellerfläche: ca. 5,11 m²
Anzahl Zimmer: 2
Anzahl WC: 1
Anzahl Bäder: 1

Ausstattung

Befeuerung: Gas
Heizungsart: Etagenheizung
Küche: Einbauküche
Fahrstuhl: Personenaufzug
Bad: Dusche, Bad mit Fenster

Beschreibung *

NÄHE AUGARTEN: helle 2,5-Zimmerwohnung mit separater geräumiger Küche

In unmittelbarer Nähe zum beliebten Augarten gelangt diese charmante 2,5-Zimmerwohnung in einem stilvollen Altbau zum Verkauf. Hier verbinden sich historischer Charakter und moderner Wohnkomfort auf ideale Weise.

Die Wohnung befindet sich im 3. Stock eines gepflegten, renovierten Hauses. Ein besonderes Plus: Der Verkäufer verpflichtet sich vertraglich zur Errichtung eines Lifts spätestens bis 2028 – eine nachhaltige Aufwertung der Immobilie und zusätzlicher Komfort für die Zukunft.

Bereits beim Betreten überzeugt der einladende Vorraum mit einer praktischen Nische, die sich ideal als Garderobe nutzen lässt. Die separate, geräumige Küche mit öffenbarem Fenster zum Gang bietet vielfältige Gestaltungsmöglichkeiten: Ob gemütlicher Essplatz oder erweiterte Küchenzeile – hier ist ausreichend Raum für individuelle Wohnideen.

Das Badezimmer mit WC ist funktional gestaltet und verfügt über eine Dusche sowie ein Fenster zum Lichthof, das für angenehme natürliche Belüftung sorgt.

Zwei großzügige, nahezu quadratische Zimmer mit beeindruckenden, typischen Altbaudecken schaffen ein luftiges Wohngefühl und bieten vielseitige Nutzungsmöglichkeiten – ob als Wohn-, Schlaf- oder Arbeitszimmer. Die Ausrichtung Richtung Webergasse sorgt für eine freundliche Atmosphäre.

Diese Wohnung ist ideal für Singles, Paare oder als wertbeständige Anlage in gefragter Lage nahe Augarten. Eine seltene Gelegenheit, Altbauflair mit Entwicklungspotenzial in attraktiver Umgebung zu erwerben.

Sanierung im Gebäude:  das Wohnhaus wurde frisch gestrichen und der Eingangsbereich modernisiert. Gleichzeitig blieben die bezaubernden Altbau-Details erhalten:

  • Helles Stiegenhaus mit zahlreichen Fenstern

  • Originale Mosaikfliesen und kunstvolle Stiegenhausgeländer

  • Bassena auf den Gängen , die den historischen Charme unterstreichen

  • Digitales Schwarzes Brett zur einfachen Kommunikation im Haus

  • Einbau eines Liftes:  der Verkäufer verpflichtet sich vertraglich zur Errichtung eines Lifts spätestens bis 2028

Perfekte Lage – urban & naturnah zugleich: Die Wohnung überzeugt nicht nur durch ihre Ausstattung, sondern auch durch ihre ausgezeichnete Lage. Der wunderschöne Augarten ist nur wenige Gehminuten entfernt und lädt mit seinen weitläufigen Grünflächen, Kinderspielplätzen, Cafés, Lokalen und Hundezonen zum Spazieren, Entspannen oder Sport treiben ein. Auch der beliebte Hannovermarkt ist gleich um die Ecke und bietet frische Lebensmittel sowie kulinarische Spezialitäten.

Auf der anderen Seite des Donaukanals befindet sich der 9. Bezirk mit seinem neu renovierten Franz-Josefs-Bahnhof, wo Geschäfte wie zB Billa und Bipa auch sonntags geöffnet haben. Zudem befinden sich zahlreiche Einkaufsmöglichkeiten des täglichen Bedarfs direkt gegenüber auf der Klosterneuburger Straße sowie auf der Wallensteinstraße.

Die Anbindung an den öffentlichen Verkehr ist hervorragend (siehe unten) und für die Radfahrer bietet der Donaukanal-Radweg den direkten Weg in Richtung Stadt oder ins Grüne Richtung Klosterneuburg. 

Öffentliche Verkehrsmittel: 

  • U-Bahnlinie: U4 "Friedensbrücke" (6 Gehminuten)
  • Buslinien: 5B
  • Straßenbahnlinien: 1, 2, 5, 31, 33, O

Nebenkosten: 

Grundbucheintragung: 1,1% d.KP. 

Grunderwerbssteuer: 3,5% d.KP.

Maklerprovision: 3% d.KP. + 20% USt. 

Kaufvertragshonorar: 1,2% zzgl. Barauslagen und USt. | Die Errichtung und Durchführung des Kaufvertrages erfolgt durch die Kanzlei Tiefenthaler Gnesda Rechtsanwälte GmbH.

Maklervereinbarung:  Wir ersuchen um Verständnis, dass wir bei Anfragen zur Objektadresse, bzw. Besichtigungstermin  aufgrund neuer gesetzlicher Bestimmungen Unterlagen erst dann zusenden können, wenn Sie vorab bestätigen, dass Sie unser sofortiges Tätigwerden wünschen und über Ihre Rücktrittsrechte aufgeklärt wurden. Sie bekommen nach Ihrer schriftlichen Anfrage mit vollständiger Angabe des Namens, Anschrift und Telefonnummer ein Email, in dem Sie diese Punkte bestätigen müssen.


Haftungsausschluss:   Wir weisen darauf hin, dass sämtliche Daten im vorliegenden Angebot sowie die von unserem Büro an Sie weitergegebenen Auskünfte, vom Eigentümer der Immobilie zur Verfügung gestellt wurden. Ebenso sind Informationen von Dritten (z.B. behördliche Informationen) eingeholt worden, auch für diese können wir unsererseits keinerlei Haftung für deren uneingeschränkte Richtigkeit übernehmen.

Wir weisen darauf hin, dass zwischen dem Vermittler und dem zu vermittelnden Dritten ein familiäres oder wirtschaftliches Naheverhältnis besteht.


Infrastruktur / Entfernungen

Gesundheit
Arzt <500m
Apotheke <500m
Klinik <1.000m
Krankenhaus <1.500m

Kinder & Schulen
Schule <500m
Kindergarten <500m
Universität <1.000m
Höhere Schule <1.000m

Nahversorgung
Supermarkt <500m
Bäckerei <500m
Einkaufszentrum <1.500m

Sonstige
Geldautomat <500m
Bank <500m
Post <500m
Polizei <500m

Verkehr
Bus <500m
U-Bahn <500m
Straßenbahn <500m
Bahnhof <500m
Autobahnanschluss <1.500m

Angaben Entfernung Luftlinie / Quelle: OpenStreetMap


*Der Vertrag kommt nicht mit der INFINA Credit Broker GmbH zustande. Das Objekt wird von einem externen Immobilienunternehmen angeboten. Allfällige aus dem Vertragsabschluss resultierende Rechte sind ausschließlich gegenüber dem anbietenden Immobilienunternehmen geltend zu machen. Wir weisen Sie darauf hin, dass die gemachten Angaben und Informationen lediglich unverbindliche Vorabinformationen sind und daher ohne Gewähr erfolgen. Der Vermittler ist als Doppelmakler tätig.

Energieausweis & Heizung
HWB (kWh/m2/Jahr): 120.8
HWB Energieklasse D
fGEE: 3.76
fGEE Energieklasse D
Gültig bis: 10.03.2029
Heizung: Etagenheizung
Befeuerung: Gas
Dokumente & Videos Pläne Dokument 1 Dokument 2
Partner von Infina Moritz Immobilien Immobilienmakler
Nahversorgung:
Supermarkt: 180 m
Bäckerei: 430 m
Einkaufszentrum: 230 m
Kinder & Schulen:
Universität: 510 m
Höhere Schule: 560 m
Kindergarten: 110 m
Schule: 280 m
Verkehr:
Autobahnanschluss: 870 m
U-Bahn: 330 m
Bus: 190 m
Straßenbahn: 260 m
Bahnhof: 260 m
Gesundheit:
Apotheke: 230 m
Arzt: 300 m
Klinik: 410 m
Krankenhaus: 2140 m
Sonstige:
Post: 450 m
Polizei: 330 m
Bank: 440 m
Geldautomat: 230 m

Jetzt Experten kontaktieren

Weitere interessante Objekte

Partner von Infina
Jetzt anfragen
ca. 67,00 m² Wohnfläche 3 Zimmer
239.000 €
Partner von Infina
Jetzt anfragen
299.000 €
Partner von Infina
Jetzt anfragen
ca. 55,00 m² Wohnfläche 2 Zimmer
Auf Anfrage
Partner von Infina
Jetzt anfragen
ca. 46,00 m² Wohnfläche 2 Zimmer
275.000 €
Partner von Infina
Jetzt anfragen
ca. 54,00 m² Wohnfläche 2 Zimmer
268.000 €
Partner von Infina
Jetzt anfragen
ca. 73,00 m² Wohnfläche 3 Zimmer
259.000 €
Partner von Infina
Jetzt anfragen
ca. 70,00 m² Wohnfläche 3 Zimmer
Auf Anfrage
Partner von Infina
Jetzt anfragen
ca. 70,00 m² Wohnfläche 1 Zimmer
Auf Anfrage
Partner von Infina
Jetzt anfragen
ca. 50,00 m² Wohnfläche 2 Zimmer
Auf Anfrage

Immobilie kaufen: Das passende Angebot finden

Der Kauf einer Immobilie ist eine wichtige Entscheidung – sei es für die Eigennutzung oder zur Vermietung. Mit unserem Portal unterstützen wir Sie dabei, die richtige Immobilie zu kaufen. Nutzen Sie unsere Suchmöglichkeiten, um gezielt eine Immobilie zu suchen, die Ihren Vorstellungen entspricht. Unsere Immobilienangebote decken eine breite Palette ab: vom Einfamilienhaus über die Eigentumswohnung bis hin zum Grundstück für Ihr Bauvorhaben. Mit uns können Sie sicher und unkompliziert Eigentum erwerben – ob für die private Nutzung oder als Investition als Immobilie. Erkunden Sie jetzt unsere Angebote und finden Sie die perfekte Lösung, die zu Ihren Wohn- oder Anlagezielen passt.

Fundiertes Wissen für Ihre Entscheidung, eine Immobilie zu kaufen

Bereiten Sie sich bestens vor: Infina stellt Ihnen kostenlos über 300 Ratgeber und Beiträge zu den Themen Immobilie, Finanzierung, Zinsen und Recht zur Verfügung. Nutzen Sie unser umfassendes Wissen, um richtige Entscheidungen zu treffen.

Bei jedem Kauf einer Immobilie oder eines Grundstücks ist es wichtig, die passende Finanzierung zu finden. Mit seiner eigenen Vertriebsorganisation ist Infina als Wohnbau-Finanz-Experte an über 100 Standorten in ganz Österreich vertreten und vermittelt Finanzierungen an über 150 Banken und Bausparkassen. Nutzen Sie unseren kostenlosen Kreditvergleich für den passenden Wohnkredit: 

Kreditvergleich

Kostenlos und unverbindlich

Immobilie mieten: Ihr neues Zuhause wartet

Die Entscheidung, eine Immobilie zu mieten, bietet Flexibilität und zahlreiche Möglichkeiten – ob eine Wohnung für den Alltag oder ein Haus für die Familie. Bei Infina können Sie gezielt sowohl eine Wohnung suchen als auch ein Haus suchen, das Ihren Bedürfnissen entspricht. Unsere Angebote erleichtern es Ihnen, eine Mietwohnung zu suchen und Ihre ideale Wohnung finden zu können. Entdecken Sie vielfältige Optionen, um die passende Immobilie zu finden und Ihre Wohnträume zu verwirklichen. Starten Sie noch heute Ihre Suche und profitieren Sie von einer großen Auswahl an Mietobjekten in Ihrer Wunschregion.

Hilfreiche Informationen zu Immobilie mieten

Starten Sie gut vorbereitet in Ihre Mietentscheidung: Infina stellt Ihnen vielseitige Ratgeber und Beiträge zu Themen wie Immobilie, Mietrecht, Finanzierung und Wohntrends zur Verfügung. Verschaffen Sie sich einen Überblick über alle relevanten Aspekte und gestalten Sie Ihren Weg ins neue Zuhause einfacher und sicherer.

Erfolgreich zur neuen Immobilie

Mit Infina haben Sie einen verlässlichen Partner an Ihrer Seite, der Sie von der ersten Beratung bis zum erfolgreichen Abschluss ganzheitlich unterstützt. Erfahren Sie hier, wie wir gemeinsam Ihren Immobilienerfolg gestalten.

Starten Sie jetzt Ihre Immobiliensuche

Nach zahlreichen Informationen rund um die Themen Immobilie kaufen und Immobilie mieten können Sie nun den nächsten Schritt machen. Starten Sie die Immobiliensuche, um Ihr neues Zuhause oder Ihre nächste Investition zu finden und entdecken Sie die passenden Angebote:

Das innovative Portal für Immobilien und Finanzierung 

Als Kunde von Infina profitieren Sie von unserer umfangreichen und unabhängigen Expertise als Teil einer wachsenden, unabhängigen Immobilien- und Finanzierungsnetzwerkgruppe. Bereits 50.000 Kunden hat Infina erfolgreich bei Ihrem Vorhaben begleitet. Infina bietet Ihnen eine umfassende Beratung in allen Bereichen rund um Ihre Immobilienvorhaben:

Die passende Finanzierung für Ihre Immobilie

Mit Infina erhalten Sie nicht nur eine unabhängige Beratung, sondern auch die passende Finanzierungslösung für Ihre Immobilie. Aus den Angeboten von über 150 Banken und Bausparkassen vermitteln wir Ihnen das, was perfekt zu Ihren Bedürfnissen passt. Wir begleiten Sie professionell und verlässlich – von der ersten Beratung bis zum erfolgreichen Abschluss.

Kreditvergleich

Kostenlos und unverbindlich

Wir holen das Beste für Sie heraus

Verkaufen Sie Ihre Immobilie mit uns & profitieren Sie von unserer Expertise. Wir bringen Ihre Immobilie optimal auf den Markt & erzielen den besten Preis. 

Kontaktieren Sie uns jetzt.

Jetzt Experten kontaktieren
Junge Frau im pinken Blazer hält ein Modellhaus in der linken Hand und zeigt mit der rechten Hand nach oben, als hätte sie eine Idee. Sie lächelt und blickt leicht nach oben – symbolisch für Inspiration oder Immobilienberatung.