INFINA LOGO
Entspannt zur Immobilie Persönlich & kompetent beraten Finanzierbarkeit sofort überprüfbar
325.000 €
Kostenlos &
unverbindlich.
Kontakt aufnehmen

Helle Altbauwohnung mit guter Anbindung, großzügigem Grundriss und viel Potenzial

Obj. Nr.: 62689

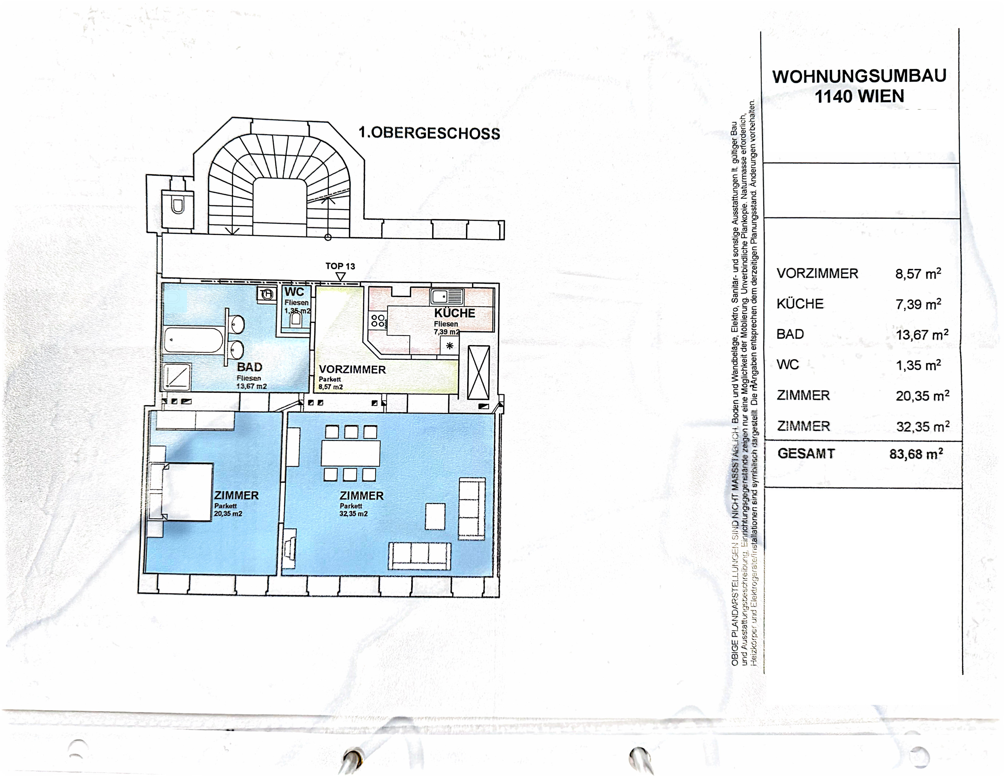
ca. 83,68 m² Wohnfläche 2 Zimmer
Partner von Infina Resch Homes Real Estate Immobilienmakler 
Partner von Infina Resch Homes Real Estate Immobilienmakler
325.000 € Kaufpreis der Immobilie Kreditvergleich von über 120 Banken mit Infina.
Immobilie finanzieren
Mehr Informationen zur Immobilie: Detaillierte Einblicke in dieses Objekt.
Zurück zur Übersicht

Objektstandort

1140 Wien Adresse anfragen

Directions Icon Fahrtzeit berechnen
Preisinformationen
Kaufpreis 325.000 €
Betriebskosten inkl. USt. 146,59 €
Sonstige Kosten inkl. USt. 121,87 €
Grundbucheintragung: 1.1 %
Grunderwerbsteuer: 3.5 %
Was kann ich mir leisten?
Jetzt berechnen
Maklerprovision:
3,00 % des Kaufpreises zzgl. 20 % USt.

Objektinformationen

Objektart: Wohnung
Nutzungsart: Wohnen
Bauart: Altbau
Baujahr: 1904

Rauminformationen & Flächen

Wohnfläche: ca. 83,68 m²
Anzahl Zimmer: 2
Anzahl WC: 1
Anzahl Bäder: 1

Ausstattung

Boden: Fliesen, Parkett
Befeuerung: Gas
Heizungsart: Etagenheizung
Küche: Einbauküche
Bad: Dusche, Badewanne, Bad mit Fenster

Beschreibung *

Diese sehr helle, etwas modernisierungsbedürftige Wohnung liegt im 1. Stock eines äußerst gepflegten Altbaus in der Leyerstraße im 14. Bezirk und bietet auf rund 83 m² Wohnfläche ein außergewöhnliches Raumgefühl sowie viel Potenzial für eine stilvolle Weiterentwicklung. Dank der großzügigen Grundrissgestaltung, der hohen Räume und der klassischen Altbaudetails kann mit gezielten Adaptierungen ein echtes Schmuckstück entstehen.

Die Wohnung liegt im 1. Stock, den Sie entweder über das elegante Stiegenhaus oder bequem über einen Schlüssellift erreichbar. Beim Betreten gelangt man in ein verfliestes Vorzimmer, das ausreichend Platz für Garderobe und Stauraum bietet. Gleich rechter Hand befindet sich ein separates WC mit Handwaschbecken.

Eine weitere Tür führt in das außergewöhnlich großzügige Badezimmer, das mit Badewanne, Dusche, zwei Handwaschbecken, Waschmaschinenanschluss und Fenster ausgestattet ist – ein Raum, der sowohl funktional als auch komfortabel gestaltet werden kann.

Das rund 20 m² große Schlafzimmer ist sowohl über das Badezimmer als auch über das Wohnzimmer zugänglich und überzeugt mit klassischem Wiener Fischgrätparkett, einer Raumhöhe von etwa 3,30 Metern und angenehmer Proportion. Die hohen Decken und großen Fenster unterstreichen den typischen Altbaucharakter.

Herzstück der Wohnung ist das etwa 32 m² große Wohnzimmer, das durch seine Großzügigkeit vielfältige Nutzungsmöglichkeiten bietet – von einem repräsentativen Wohnbereich über einen großzügigen Essplatz bis hin zu einer integrierten Arbeits- oder Leseecke. Hier lässt sich Wohnen mit Charakter und Individualität gestalten.

Die Küche verfügt über ein Fenster und Tageslicht und bietet eine solide Basis für eine zeitgemäße Neugestaltung. Mit einer Modernisierung kann hier ein funktionaler und ansprechender Küchenraum entstehen, der sich harmonisch in das Gesamtbild der Wohnung einfügt.

Die Lage überzeugt durch ihre sehr gute Verkehrsanbindung. Die Straßenbahnlinien 49, die Buslinie 51A sowie die Nachtlinie N49 befinden sich direkt in der Nähe. Die U3-Station Hütteldorfer Straße ist in etwa zehn Minuten fußläufig erreichbar. Nahversorgung, Bäckereien, Supermärkte sowie die Volksschule Märzstraße befinden sich ebenfalls in unmittelbarer Umgebung.

Die Wohnung ist aktuell noch bewohnt und voraussichtlich ab Anfang April 2026 beziehbar. Sie richtet sich an Käuferinnen und Käufer, die den Charme eines klassischen Wiener Altbaus schätzen und das Potenzial erkennen, mit gezielten Maßnahmen eine außergewöhnlich attraktive Wohnung zu schaffen.

DIGITALE BESICHTIGUNG
Unter folgenden Link können Sie eine digitale Besichtigung durchführen und sich Schritt für Schritt durch die Wohnung bewegen:  https://my.matterport.com/show/?m=afkdKPcSfiX

Nähere Details, mehr Bilder sowie einen persönlichen Besichtigungstermin erhalten Sie gerne auf Anfrage.

HINWEIS ZUR PROVISION
Ein Provisionsanspruch entsteht erst mit Unterzeichnung eines Miet- oder Kaufanbots. Besichtigungen und Auskünfte sind selbstverständlich unverbindlich und kostenlos .

NOCH NICHTS GEFUNDEN?
Wir informieren Sie über geeignete Immobilienangebote noch vor allen anderen.

Legen Sie sich Ihren individuellen Suchagenten unter folgendem Link an. Wir schicken Ihnen passende Immobilien exklusiv vorab zu.  Suchagent anlegen - https://resch-homes.service.immo/registrieren/de

Der Vermittler ist als Doppelmakler tätig.


*Der Vertrag kommt nicht mit der INFINA Credit Broker GmbH zustande. Das Objekt wird von einem externen Immobilienunternehmen angeboten. Allfällige aus dem Vertragsabschluss resultierende Rechte sind ausschließlich gegenüber dem anbietenden Immobilienunternehmen geltend zu machen. Wir weisen Sie darauf hin, dass die gemachten Angaben und Informationen lediglich unverbindliche Vorabinformationen sind und daher ohne Gewähr erfolgen. Der Vermittler ist als Doppelmakler tätig.

Energieausweis & Heizung
HWB (kWh/m2/Jahr): 127.1
HWB Energieklasse D
fGEE: 2.15
fGEE Energieklasse D
Gültig bis: 22.02.2030
Heizung: Etagenheizung
Befeuerung: Gas
Dokumente & Videos Pläne
Partner von Infina Resch Homes Real Estate Immobilienmakler
Nahversorgung:
Supermarkt: 1400 m
Bäckerei: 1580 m
Einkaufszentrum: 1610 m
Gesundheit:
Arzt: 3000 m
Krankenhaus: 3620 m
Apotheke: 1350 m
Klinik: 4380 m
Kinder & Schulen:
Höhere Schule: 6870 m
Universität: 1020 m
Schule: 1300 m
Kindergarten: 1340 m
Verkehr:
Autobahnanschluss: 1980 m
U-Bahn: 3630 m
Bus: 490 m
Straßenbahn: 2880 m
Bahnhof: 2590 m
Sonstige:
Post: 1660 m
Polizei: 1610 m
Geldautomat: 1360 m
Bank: 1620 m

Jetzt Experten kontaktieren

Weitere interessante Objekte

Partner von Infina
Jetzt anfragen
Auf Anfrage
Partner von Infina
Jetzt anfragen
299.000 €
Partner von Infina
Jetzt anfragen
ca. 99,00 m² Wohnfläche 3 Zimmer
Auf Anfrage
Partner von Infina
Jetzt anfragen
ca. 69,00 m² Wohnfläche 3 Zimmer
Auf Anfrage
Partner von Infina
Jetzt anfragen
519.000 €
Partner von Infina
Jetzt anfragen
ca. 92,00 m² Wohnfläche 4 Zimmer
339.000 €
Partner von Infina
Jetzt anfragen
ca. 83,00 m² Wohnfläche 3 Zimmer
349.000 €
Partner von Infina
Jetzt anfragen
ca. 67,00 m² Wohnfläche 3 Zimmer
239.000 €
Partner von Infina
Jetzt anfragen
ca. 84,00 m² Wohnfläche 3 Zimmer
Auf Anfrage

Immobilie kaufen: Das passende Angebot finden

Der Kauf einer Immobilie ist eine wichtige Entscheidung – sei es für die Eigennutzung oder zur Vermietung. Mit unserem Portal unterstützen wir Sie dabei, die richtige Immobilie zu kaufen. Nutzen Sie unsere Suchmöglichkeiten, um gezielt eine Immobilie zu suchen, die Ihren Vorstellungen entspricht. Unsere Immobilienangebote decken eine breite Palette ab: vom Einfamilienhaus über die Eigentumswohnung bis hin zum Grundstück für Ihr Bauvorhaben. Mit uns können Sie sicher und unkompliziert Eigentum erwerben – ob für die private Nutzung oder als Investition als Immobilie. Erkunden Sie jetzt unsere Angebote und finden Sie die perfekte Lösung, die zu Ihren Wohn- oder Anlagezielen passt.

Fundiertes Wissen für Ihre Entscheidung, eine Immobilie zu kaufen

Bereiten Sie sich bestens vor: Infina stellt Ihnen kostenlos über 300 Ratgeber und Beiträge zu den Themen Immobilie, Finanzierung, Zinsen und Recht zur Verfügung. Nutzen Sie unser umfassendes Wissen, um richtige Entscheidungen zu treffen.

Bei jedem Kauf einer Immobilie oder eines Grundstücks ist es wichtig, die passende Finanzierung zu finden. Mit seiner eigenen Vertriebsorganisation ist Infina als Wohnbau-Finanz-Experte an über 100 Standorten in ganz Österreich vertreten und vermittelt Finanzierungen an über 150 Banken und Bausparkassen. Nutzen Sie unseren kostenlosen Kreditvergleich für den passenden Wohnkredit: 

Kreditvergleich

Kostenlos und unverbindlich

Immobilie mieten: Ihr neues Zuhause wartet

Die Entscheidung, eine Immobilie zu mieten, bietet Flexibilität und zahlreiche Möglichkeiten – ob eine Wohnung für den Alltag oder ein Haus für die Familie. Bei Infina können Sie gezielt sowohl eine Wohnung suchen als auch ein Haus suchen, das Ihren Bedürfnissen entspricht. Unsere Angebote erleichtern es Ihnen, eine Mietwohnung zu suchen und Ihre ideale Wohnung finden zu können. Entdecken Sie vielfältige Optionen, um die passende Immobilie zu finden und Ihre Wohnträume zu verwirklichen. Starten Sie noch heute Ihre Suche und profitieren Sie von einer großen Auswahl an Mietobjekten in Ihrer Wunschregion.

Hilfreiche Informationen zu Immobilie mieten

Starten Sie gut vorbereitet in Ihre Mietentscheidung: Infina stellt Ihnen vielseitige Ratgeber und Beiträge zu Themen wie Immobilie, Mietrecht, Finanzierung und Wohntrends zur Verfügung. Verschaffen Sie sich einen Überblick über alle relevanten Aspekte und gestalten Sie Ihren Weg ins neue Zuhause einfacher und sicherer.

Erfolgreich zur neuen Immobilie

Mit Infina haben Sie einen verlässlichen Partner an Ihrer Seite, der Sie von der ersten Beratung bis zum erfolgreichen Abschluss ganzheitlich unterstützt. Erfahren Sie hier, wie wir gemeinsam Ihren Immobilienerfolg gestalten.

Starten Sie jetzt Ihre Immobiliensuche

Nach zahlreichen Informationen rund um die Themen Immobilie kaufen und Immobilie mieten können Sie nun den nächsten Schritt machen. Starten Sie die Immobiliensuche, um Ihr neues Zuhause oder Ihre nächste Investition zu finden und entdecken Sie die passenden Angebote:

Das innovative Portal für Immobilien und Finanzierung 

Als Kunde von Infina profitieren Sie von unserer umfangreichen und unabhängigen Expertise als Teil einer wachsenden, unabhängigen Immobilien- und Finanzierungsnetzwerkgruppe. Bereits 50.000 Kunden hat Infina erfolgreich bei Ihrem Vorhaben begleitet. Infina bietet Ihnen eine umfassende Beratung in allen Bereichen rund um Ihre Immobilienvorhaben:

Die passende Finanzierung für Ihre Immobilie

Mit Infina erhalten Sie nicht nur eine unabhängige Beratung, sondern auch die passende Finanzierungslösung für Ihre Immobilie. Aus den Angeboten von über 150 Banken und Bausparkassen vermitteln wir Ihnen das, was perfekt zu Ihren Bedürfnissen passt. Wir begleiten Sie professionell und verlässlich – von der ersten Beratung bis zum erfolgreichen Abschluss.

Kreditvergleich

Kostenlos und unverbindlich

Wir holen das Beste für Sie heraus

Verkaufen Sie Ihre Immobilie mit uns & profitieren Sie von unserer Expertise. Wir bringen Ihre Immobilie optimal auf den Markt & erzielen den besten Preis. 

Kontaktieren Sie uns jetzt.

Jetzt Experten kontaktieren
Junge Frau im pinken Blazer hält ein Modellhaus in der linken Hand und zeigt mit der rechten Hand nach oben, als hätte sie eine Idee. Sie lächelt und blickt leicht nach oben – symbolisch für Inspiration oder Immobilienberatung.