INFINA LOGO
Entspannt zur Immobilie Persönlich & kompetent beraten Finanzierbarkeit sofort überprüfbar
429.000 €
Kostenlos &
unverbindlich.
Kontakt aufnehmen

Stilvoll kernsanierte 3-Zimmer-Wohnung mit perfekter Lage zwischen Augarten & Donaupark 01620-19

Obj. Nr.: 58073

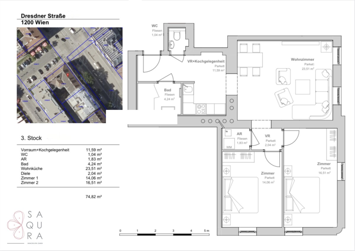
ca. 74,82 m² Wohnfläche 3 Zimmer
Partner von Infina SAQURA Immobilien Immobilienmakler 
Partner von Infina SAQURA Immobilien Immobilienmakler
429.000 € Kaufpreis der Immobilie Kreditvergleich von über 120 Banken mit Infina.
Immobilie finanzieren
Mehr Informationen zur Immobilie: Detaillierte Einblicke in dieses Objekt.
Zurück zur Übersicht

Objektstandort

1200 Wien, Brigittenau / Wien 20., Brigittenau, Wien Adresse anfragen

Directions Icon Fahrtzeit berechnen
Preisinformationen
Kaufpreis 429.000 €
Betriebskosten inkl. USt. 163,47 €
Grundbucheintragung: 1.1 %
Grunderwerbsteuer: 3.5 %
Was kann ich mir leisten?
Jetzt berechnen

Objektinformationen

Objektart: Wohnung
Unterobjektart: Etagenwohnung
Nutzungsart: Wohnen
Zustand: Erstbezug

Rauminformationen & Flächen

Wohnfläche: ca. 74,82 m²
Anzahl Zimmer: 3

Ausstattung

Lage

Die Dresdner Straße befindet sich im 20. Wiener Gemeindebezirk, Brigittenau, und bietet eine hervorragende Anbindung an die städtische Infrastruktur.

Verkehrsanbindung:

Öffentliche Verkehrsmittel: Die Straßenbahnlinien 2 und 5 halten in unmittelbarer Nähe, was eine schnelle Verbindung zum Stadtzentrum und anderen Bezirken ermöglicht.
U-Bahn: Die U6-Station "Dresdner Straße" ist fußläufig erreichbar und bietet eine direkte Nord-Süd-Verbindung durch Wien.
S-Bahn: Der Bahnhof "Traisengasse" ist ebenfalls in der Nähe und bietet Zugang zu verschiedenen S-Bahn-Linien.
Einrichtungen in der Umgebung:

Einkaufsmöglichkeiten: In der Umgebung befinden sich diverse Geschäfte des täglichen Bedarfs sowie Supermärkte.
Gesundheitsversorgung: Die Zwischenbrücken Apotheke befindet sich direkt an der Dresdner Straße.

Freizeit: Der nahegelegene Augarten bietet Grünflächen für Erholung und Freizeitaktivitäten
.
Die Lage zeichnet sich durch ihre zentrale Position und die Nähe zu wichtigen Verkehrsknotenpunkten aus, was sie sowohl für Bewohner als auch für Pendler attraktiv macht.

Beschreibung *

Modernes Wohnen in hochwertig sanierter 3-Zimmer-Wohnung

Sind Sie auf der Suche nach einer stilvollen, hochwertig sanierten Wohnung mit optimaler Anbindung und hervorragender Wohnqualität?

Diese kernsanierte 3-Zimmer-Wohnung bietet ein durchdachtes Wohnkonzept mit hellen Räumen, einer Einbauküche und einer hochwertigen Ausstattung. Die Kombination aus modernem Komfort und erstklassiger Lage macht diese Immobilie zu einer idealen Wahl für Eigennutzer und Anleger.

Highlights der Wohnung:
✔ Wohnfläche: ca. 75 m²
✔ 3 Zimmer: Großzügiger Wohnbereich + zwei vielseitig nutzbare Räume
✔ Einbauküche: Funktionell und modern gestaltet
✔ Hochwertige Kernsanierung: Moderne Elektrik, Sanitäranlagen und Wandgestaltung
✔ Edler Natur-Holzparkettboden: Zeitlose Eleganz und Wärme in allen Wohnräumen
✔ Hochwertiges Badezimmer: Stilvolle Ausstattung mit modernen Armaturen
✔ Optimale Raumaufteilung: Funktionell und ideal für Familien, Paare oder Home-Office-Nutzer

Perfekte Lage zwischen Augarten und Donaupark
-Attraktive Lage im 20. Bezirk: Die Wohnung befindet sich in einem besonders begehrten Wohnviertel des 20. Bezirks.
-Erholung & Freizeit: Die Nähe zum Augarten und Donaupark bietet Natur und Ruhe.
-Perfekte Anbindung: Die Straßenbahnlinie 2 hält direkt vor dem Haus und ermöglicht eine schnelle Verbindung ins Stadtzentrum.
-Gastronomie & Einkaufsmöglichkeiten: Vielfältige Restaurants, Cafés und Nahversorger sind fußläufig erreichbar.

Zum Verkauf:
Diese außergewöhnliche Wohnung überzeugt durch ihre hochwertige Sanierung, helle Räume und die perfekte Kombination aus Stadtleben und Naherholung.

Fordern Sie jetzt das Exposé an und lassen Sie sich von den Vorzügen dieser besonderen Immobilie überzeugen! Bitte überprüfen Sie auch Ihren Spam-Ordner für unsere Antwort.
Für weitere Informationen oder einen Besichtigungstermin kontaktieren Sie uns gerne!

Hinweis: Die abgebildeten Visualisierungen basieren auf den Grundrissen der jeweiligen Wohnungen und dienen zur Veranschaulichung möglicher Einrichtungskonzepte.

--

Modern City Living Meets Spacious Comfort

Are you looking for a stylish, high-quality renovated apartment with excellent connections and outstanding living comfort?

This fully refurbished 3-room apartment offers a well-thought-out living concept with bright rooms, fitted kitchen, and high-quality finishes. The combination of modern comfort and a prime location makes this property an ideal choice for homeowners and investors alike.

Apartment Highlights:
✔ Living area: approx. 75 m²
✔ 3 rooms: Spacious living area + two versatile rooms
✔ Fitted kitchen: Functional and modern design
✔ High-quality refurbishment: Modernized electrical and plumbing systems, updated interiors
✔ Elegant natural wood parquet flooring: Timeless elegance and warmth in all living areas
✔ Stylish bathroom: High-quality fixtures and modern design
✔ Optimal layout: Functional space, perfect for families, couples, or home office users

Prime Location Between Augarten and Donaupark
-Desirable 20th District location: Situated in one of the most sought-after residential areas.
-Nature & recreation: The proximity to Augarten and Donaupark offers green spaces and relaxation right at your doorstep.
-Excellent connectivity: Tram line 2 stops right in front of the building, providing a fast connection to the city center.
Dining & shopping: A variety of restaurants, cafés, and local amenities are within walking distance.

For Sale:

This exceptional apartment stands out with its high-quality renovation, bright interiors, and the perfect blend of city life and relaxation.

Request the exposé now and discover the advantages of this unique property! Please check your spam folder for our response.

For more information or to schedule a viewing, feel free to contact us!

*Der Vertrag kommt nicht mit der INFINA Credit Broker GmbH zustande. Das Objekt wird von einem externen Immobilienunternehmen angeboten. Allfällige aus dem Vertragsabschluss resultierende Rechte sind ausschließlich gegenüber dem anbietenden Immobilienunternehmen geltend zu machen. Wir weisen Sie darauf hin, dass die gemachten Angaben und Informationen lediglich unverbindliche Vorabinformationen sind und daher ohne Gewähr erfolgen. Der Vermittler ist als Doppelmakler tätig.

Energieausweis & Heizung
HWB (kWh/m2/Jahr): 28.8
fGEE: 0.7
Dokumente & Videos Pläne
Partner von Infina SAQURA Immobilien Immobilienmakler
Verkehr:
Autobahnanschluss: 1590 m
U-Bahn: 930 m
Straßenbahn: 70 m
Bus: 70 m
Bahnhof: 490 m
Sonstige:
Post: 190 m
Bank: 180 m
Polizei: 510 m
Geldautomat: 60 m
Gesundheit:
Apotheke: 10 m
Arzt: 450 m
Krankenhaus: 1720 m
Klinik: 790 m
Nahversorgung:
Supermarkt: 440 m
Bäckerei: 310 m
Einkaufszentrum: 1160 m
Kinder & Schulen:
Kindergarten: 420 m
Höhere Schule: 1240 m
Universität: 1110 m
Schule: 350 m

Jetzt Experten kontaktieren

Weitere interessante Objekte

Immobilie kaufen: Das passende Angebot finden

Der Kauf einer Immobilie ist eine wichtige Entscheidung – sei es für die Eigennutzung oder zur Vermietung. Mit unserem Portal unterstützen wir Sie dabei, die richtige Immobilie zu kaufen. Nutzen Sie unsere Suchmöglichkeiten, um gezielt eine Immobilie zu suchen, die Ihren Vorstellungen entspricht. Unsere Immobilienangebote decken eine breite Palette ab: vom Einfamilienhaus über die Eigentumswohnung bis hin zum Grundstück für Ihr Bauvorhaben. Mit uns können Sie sicher und unkompliziert Eigentum erwerben – ob für die private Nutzung oder als Investition als Immobilie. Erkunden Sie jetzt unsere Angebote und finden Sie die perfekte Lösung, die zu Ihren Wohn- oder Anlagezielen passt.

Fundiertes Wissen für Ihre Entscheidung, eine Immobilie zu kaufen

Bereiten Sie sich bestens vor: Infina stellt Ihnen kostenlos über 300 Ratgeber und Beiträge zu den Themen Immobilie, Finanzierung, Zinsen und Recht zur Verfügung. Nutzen Sie unser umfassendes Wissen, um richtige Entscheidungen zu treffen.

Bei jedem Kauf einer Immobilie oder eines Grundstücks ist es wichtig, die passende Finanzierung zu finden. Mit seiner eigenen Vertriebsorganisation ist Infina als Wohnbau-Finanz-Experte an über 100 Standorten in ganz Österreich vertreten und vermittelt Finanzierungen an über 120 Banken und Bausparkassen. Nutzen Sie unseren kostenlosen Kreditvergleich für den passenden Wohnkredit: 

Kreditvergleich

Kostenlos und unverbindlich

Immobilie mieten: Ihr neues Zuhause wartet

Die Entscheidung, eine Immobilie zu mieten, bietet Flexibilität und zahlreiche Möglichkeiten – ob eine Wohnung für den Alltag oder ein Haus für die Familie. Bei Infina können Sie gezielt sowohl eine Wohnung suchen als auch ein Haus suchen, das Ihren Bedürfnissen entspricht. Unsere Angebote erleichtern es Ihnen, eine Mietwohnung zu suchen und Ihre ideale Wohnung finden zu können. Entdecken Sie vielfältige Optionen, um die passende Immobilie zu finden und Ihre Wohnträume zu verwirklichen. Starten Sie noch heute Ihre Suche und profitieren Sie von einer großen Auswahl an Mietobjekten in Ihrer Wunschregion.

Hilfreiche Informationen zu Immobilie mieten

Starten Sie gut vorbereitet in Ihre Mietentscheidung: Infina stellt Ihnen vielseitige Ratgeber und Beiträge zu Themen wie Immobilie, Mietrecht, Finanzierung und Wohntrends zur Verfügung. Verschaffen Sie sich einen Überblick über alle relevanten Aspekte und gestalten Sie Ihren Weg ins neue Zuhause einfacher und sicherer.

Erfolgreich zur neuen Immobilie

Mit Infina haben Sie einen verlässlichen Partner an Ihrer Seite, der Sie von der ersten Beratung bis zum erfolgreichen Abschluss ganzheitlich unterstützt. Erfahren Sie hier, wie wir gemeinsam Ihren Immobilienerfolg gestalten.

Starten Sie jetzt Ihre Immobiliensuche

Nach zahlreichen Informationen rund um die Themen Immobilie kaufen und Immobilie mieten können Sie nun den nächsten Schritt machen. Starten Sie die Immobiliensuche, um Ihr neues Zuhause oder Ihre nächste Investition zu finden und entdecken Sie die passenden Angebote:

Das innovative Portal für Immobilien und Finanzierung 

Als Kunde von Infina profitieren Sie von unserer umfangreichen und unabhängigen Expertise als Teil einer wachsenden, unabhängigen Immobilien- und Finanzierungsnetzwerkgruppe. Bereits 50.000 Kunden hat Infina erfolgreich bei Ihrem Vorhaben begleitet. Infina bietet Ihnen eine umfassende Beratung in allen Bereichen rund um Ihre Immobilienvorhaben:

Die passende Finanzierung für Ihre Immobilie

Mit Infina erhalten Sie nicht nur eine unabhängige Beratung, sondern auch die passende Finanzierungslösung für Ihre Immobilie. Aus den Angeboten von über 120 Banken und Bausparkassen vermitteln wir Ihnen das, was perfekt zu Ihren Bedürfnissen passt. Wir begleiten Sie professionell und verlässlich – von der ersten Beratung bis zum erfolgreichen Abschluss.

Kreditvergleich

Kostenlos und unverbindlich

Wir holen das Beste für Sie heraus

Verkaufen Sie Ihre Immobilie mit uns & profitieren Sie von unserer Expertise. Wir bringen Ihre Immobilie optimal auf den Markt & erzielen den besten Preis. 

Kontaktieren Sie uns jetzt.

Jetzt Experten kontaktieren
Junge Frau im pinken Blazer hält ein Modellhaus in der linken Hand und zeigt mit der rechten Hand nach oben, als hätte sie eine Idee. Sie lächelt und blickt leicht nach oben – symbolisch für Inspiration oder Immobilienberatung.