INFINA LOGO
Entspannt zur Immobilie Persönlich & kompetent beraten Finanzierbarkeit sofort überprüfbar
Auf Anfrage
Kostenlos &
unverbindlich.
Kontakt aufnehmen

Historischer Altbau in Belvedere-Nähe – seltene Projektchance in absoluter Toplage

Obj. Nr.: 56122

Partner von Infina Vienna Estate Makler Immobilienmakler 
Partner von Infina Vienna Estate Makler Immobilienmakler
Auf Anfrage Kaufpreis der Immobilie Kreditvergleich von über 120 Banken mit Infina.
Immobilie finanzieren
Mehr Informationen zur Immobilie: Detaillierte Einblicke in dieses Objekt.
Zurück zur Übersicht

Objektstandort

1030 Wien Adresse anfragen

Directions Icon Fahrtzeit berechnen
Preisinformationen
Grundbucheintragung: 1.1 %
Grunderwerbsteuer: 3.5 %
Was kann ich mir leisten?
Jetzt berechnen

Objektinformationen

Objektart: Wohnung
Nutzungsart: Wohnen
Bauart: Altbau
Zustand: sanierungsbedürftig
Baujahr: 1871

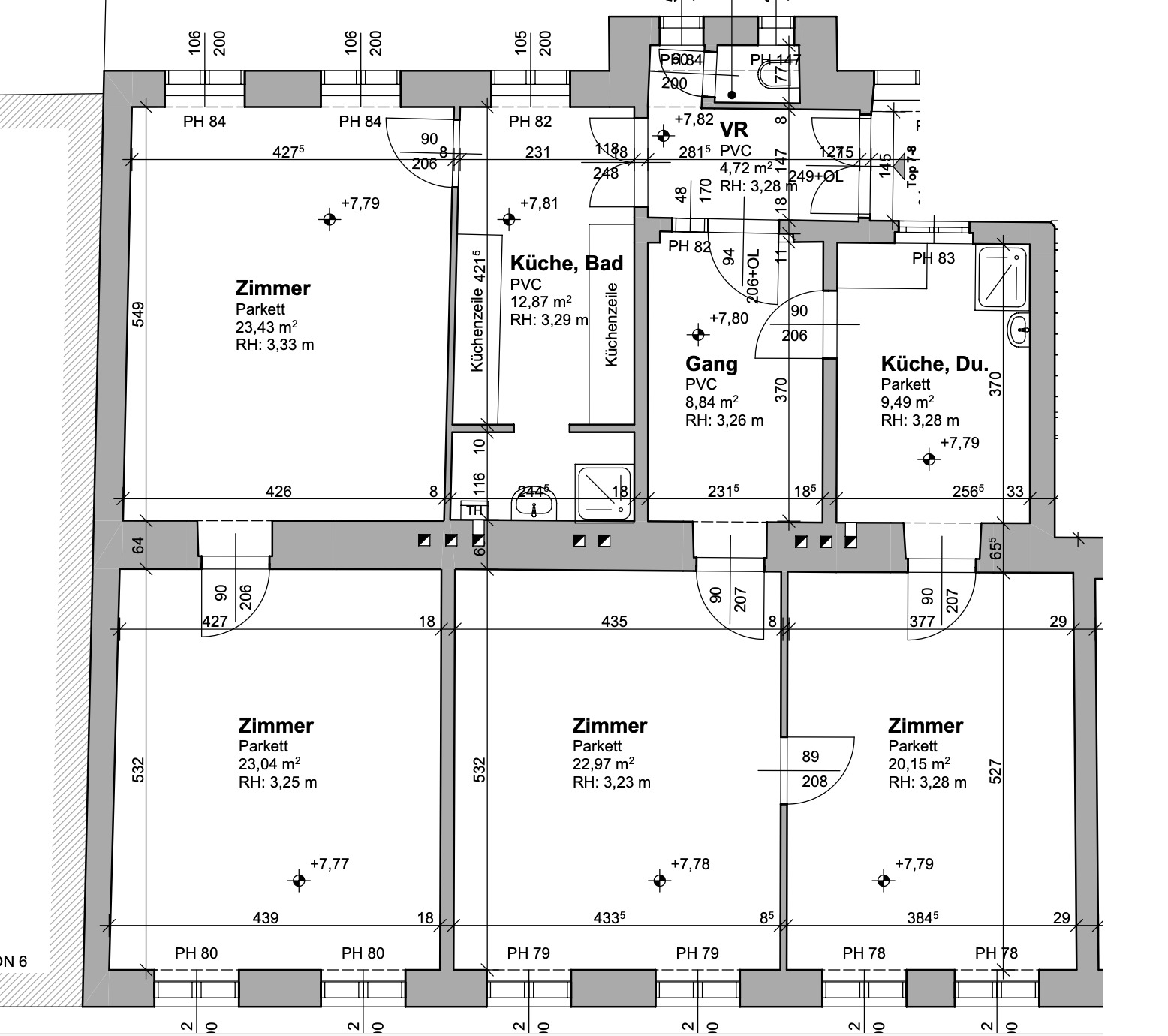
Rauminformationen & Flächen

Ausstattung

Boden: Laminat, Teppichboden, Parkett
Befeuerung: Gas

Lage

Rennweg, Schloss Belvedere, Ungargasse

Beschreibung *

"Zum Schützen" - Altbaujuwel nahe dem Schloss Belvedere – Raum für individuelle Wohnträume

In unmittelbarer Nähe zum Schloss Belvedere präsentiert sich dieses außergewöhnliche Altbauprojekt in absoluter Toplage als seltene Gelegenheit für Liebhaber klassischer Wiener Architektur. Das Objekt umfasst  sechs Wohnungen  mit Wohnflächen von  ca. 31 m² bis ca. 126,36 m²  und  1 bis 5 Zimmern  und bietet damit vielfältige Möglichkeiten – vom charmanten Stadtapartment bis zur großzügigen Familienwohnung.

Der Altbau besticht durch seine  typischen Stilelemente , allen voran  großzügige Raumhöhen , klassische  Altbau-Holzfenster  sowie den unverwechselbaren Charakter eines historischen Wohnhauses. Die Wohnungen befinden sich größtenteils in  stark sanierungsbedürftigem Zustand  und bieten somit die ideale Grundlage, um individuellen Wohnträumen freien Raum zu geben und zeitgemäßen Komfort mit historischer Substanz zu verbinden.

Die Heizungsversorgung erfolgt teilweise über  Gasetagenheizungen , überwiegend jedoch über  Gaskonvektoren . Der Sanitärstandard entspricht in den meisten Wohnungen nicht dem heutigen Wohnkomfort:  Bis auf zwei Einheiten verfügen die Wohnungen derzeit über kein separates Badezimmer ; in diesen Fällen ist lediglich eine  Duschmöglichkeit in der Küche  vorhanden. Im Zuge einer umfassenden Sanierung lassen sich jedoch moderne Badezimmerlösungen problemlos realisieren.

Ein  Lift ist derzeit nicht vorhanden . Sollte es im Zuge eines späteren Dachgeschossausbaus zur Errichtung eines Aufzugs kommen, können  Liftnutzungsrechte gegen anteilige Kostenübernahme  erworben werden.

Das Stiegenhaus wird derzeit  umfassend generalrevitalisiert und neu ausgemalt . Auch die  Fassade des Gebäudes wird aktuell saniert , wodurch sich das gesamte Erscheinungsbild des Hauses deutlich aufwertet. Die dargestellten Visualisierungen der Fassade wurden  KI-gestützt erstellt  und dienen ausschließlich der  Veranschaulichung des geplanten Erscheinungsbildes nach Abschluss der Sanierungsarbeiten . Abweichungen zur tatsächlichen Ausführung sind möglich.

Dieses Projekt richtet sich an Käuferinnen und Käufer, die den  Charme eines klassischen Altbaus  schätzen und bereit sind, durch eine individuelle Sanierung ein einzigartiges Zuhause in einer der begehrtesten Lagen Wiens zu schaffen.

Lage & Umfeld

Die Liegenschaft liegt in  absoluter Toplage nahe dem Schloss Belvedere  und vereint  urbanes Wohnen mit unmittelbarer Nähe zu weitläufigen Grünanlagen . Belvedere, Botanischer Garten sowie Parks und Erholungsflächen befinden sich direkt vor der Tür. Gleichzeitig überzeugt die Lage durch eine  ausgezeichnete Infrastruktur  mit Nahversorgung, Ärzten, Schulen und kulturellen Einrichtungen in unmittelbarer Umgebung – eine seltene Kombination aus  City-Flair und Erholung im Grünen .

Rohdachboden – Ausbaupotenzial

Zusätzlich zu den Wohnungen steht auch der  Rohdachboden des Hauses zum Verkauf. Für diesen liegt bereits eine  Ausbaustudie  vor.

Laut Studie ist eine  erzielbare Wohnnutzfläche von ca. 301,8 m²  darstellbar. Der Kaufpreis wurde auf Basis  erzielbarer Wohnnutzfläche  kalkuliert und beträgt somit  € 299.000,– .

Im Zuge eines Ausbaus des Dachgeschosses ist die  Errichtung eines Personenaufzugs  verpflichtend vorzusehen. Weitergehende Planungen, Einreichungen sowie die konkrete Ausgestaltung des Dachgeschosses sind vom Käufer durchzuführen.

Ein besonderer Mehrwert dieser Immobilie:
Die Verkäuferseite kümmert sich  auf eigene Kosten  um die  Einholung der Baubewilligung für hofseitige Balkone . Damit wird eine attraktive Erweiterung der Wohnfläche ermöglicht – selbstverständlich  i m Einklang mit den geltenden Flächenwidmungs- und Bebauungsbestimmungen sowie der Wiener Bauordnung (WBO). Nach Fertigstellung der Balkone erhält der Käufer die Möglichkeit, gegen ein einmaliges Entgelt – abhängig von der jeweiligen Balkongröße – eine  zusätzliche Freifläche von ca. 4,40 m² bis 9,80 m²  (Flächenangaben können noch variieren) zu erwerben. Der Kostenrahmen liegt dabei zwischen EUR 5.000,– und EUR 10.000,– und stellt eine attraktive Investition in mehr Wohnqualität, Freiraum und Wertsteigerung dar.

Hinweis: Die dargestellten möblierten und sanierten Räume sind  KI-generierte Visualisierungen  und dienen lediglich der  Veranschaulichung möglicher Einrichtungs- und Sanierungskonzepte . Die Möblierung und Sanierung ist  nicht im Kaufpreis enthalten .

Verfügbare Einheiten 

Top  Stockwerk Nutzung Fläche m2 Kaufpreis 3+4 Parterre Wohnen 80,00 357.000 € 5 1.OG Wohnen 60,00 277.000 € 7+8 2.OG Wohnen 126,36 599.000 € 11 3.OG Wohnen 41,00 202.000 € 12 3.OG Wohnen 31,00 153.000 € 13 3.OG Wohnen 32,00

158.000 €

RDB    DG         Wohnen    301,00   299.000 €

Wir weisen darauf hin, dass zwischen dem Vermittler und dem zu vermittelnden Dritten ein familiäres oder wirtschaftliches Naheverhältnis besteht.

Der Vermittler ist als Doppelmakler tätig.

DG: 301,8 m² 299.000,00 € aktiv

EG
3+4: 80,6 m² 357.000,00 € aktiv

1. Etage
Top 5: 59,37 m² 277.000,01 € aktiv

2. Etage
7-8: 126,36 m² 599.000,01 € aktiv

3. Etage
Top 11: 41,07 m² 202.000,00 € aktiv
11+12: 71,59 m² 349.000,00 € aktiv
Top 12: 30,52 m² 153.000,01 € aktiv
Top 13: 30,57 m² 158.000,00 € aktiv


Infrastruktur / Entfernungen

Gesundheit
Arzt <500m
Apotheke <500m
Klinik <1.000m
Krankenhaus <500m

Kinder & Schulen
Schule <500m
Kindergarten <500m
Universität <500m
Höhere Schule <500m

Nahversorgung
Supermarkt <500m
Bäckerei <500m
Einkaufszentrum <1.000m

Sonstige
Geldautomat <500m
Bank <500m
Post <500m
Polizei <1.000m

Verkehr
Bus <500m
U-Bahn <1.000m
Straßenbahn <500m
Bahnhof <500m
Autobahnanschluss <2.000m

Angaben Entfernung Luftlinie / Quelle: OpenStreetMap


*Der Vertrag kommt nicht mit der INFINA Credit Broker GmbH zustande. Das Objekt wird von einem externen Immobilienunternehmen angeboten. Allfällige aus dem Vertragsabschluss resultierende Rechte sind ausschließlich gegenüber dem anbietenden Immobilienunternehmen geltend zu machen. Wir weisen Sie darauf hin, dass die gemachten Angaben und Informationen lediglich unverbindliche Vorabinformationen sind und daher ohne Gewähr erfolgen. Der Vermittler ist als Doppelmakler tätig.

Energieausweis & Heizung
HWB (kWh/m2/Jahr): 153.1
HWB Energieklasse E
fGEE: 2.95
fGEE Energieklasse E
Gültig bis: 22.04.2034
Befeuerung: Gas
Dokumente & Videos Pläne Pläne Pläne Pläne Pläne Pläne Pläne Pläne
Partner von Infina Vienna Estate Makler Immobilienmakler
Sonstige:
Polizei: 600 m
Geldautomat: 40 m
Bank: 40 m
Post: 120 m
Kinder & Schulen:
Kindergarten: 260 m
Höhere Schule: 370 m
Schule: 90 m
Universität: 380 m
Gesundheit:
Krankenhaus: 560 m
Apotheke: 60 m
Arzt: 150 m
Klinik: 460 m
Nahversorgung:
Bäckerei: 40 m
Supermarkt: 90 m
Einkaufszentrum: 140 m
Verkehr:
Autobahnanschluss: 1580 m
Bahnhof: 70 m
Straßenbahn: 330 m
Bus: 90 m
U-Bahn: 60 m

Jetzt Experten kontaktieren

Immobilie kaufen: Das passende Angebot finden

Der Kauf einer Immobilie ist eine wichtige Entscheidung – sei es für die Eigennutzung oder zur Vermietung. Mit unserem Portal unterstützen wir Sie dabei, die richtige Immobilie zu kaufen. Nutzen Sie unsere Suchmöglichkeiten, um gezielt eine Immobilie zu suchen, die Ihren Vorstellungen entspricht. Unsere Immobilienangebote decken eine breite Palette ab: vom Einfamilienhaus über die Eigentumswohnung bis hin zum Grundstück für Ihr Bauvorhaben. Mit uns können Sie sicher und unkompliziert Eigentum erwerben – ob für die private Nutzung oder als Investition als Immobilie. Erkunden Sie jetzt unsere Angebote und finden Sie die perfekte Lösung, die zu Ihren Wohn- oder Anlagezielen passt.

Fundiertes Wissen für Ihre Entscheidung, eine Immobilie zu kaufen

Bereiten Sie sich bestens vor: Infina stellt Ihnen kostenlos über 300 Ratgeber und Beiträge zu den Themen Immobilie, Finanzierung, Zinsen und Recht zur Verfügung. Nutzen Sie unser umfassendes Wissen, um richtige Entscheidungen zu treffen.

Bei jedem Kauf einer Immobilie oder eines Grundstücks ist es wichtig, die passende Finanzierung zu finden. Mit seiner eigenen Vertriebsorganisation ist Infina als Wohnbau-Finanz-Experte an über 100 Standorten in ganz Österreich vertreten und vermittelt Finanzierungen an über 150 Banken und Bausparkassen. Nutzen Sie unseren kostenlosen Kreditvergleich für den passenden Wohnkredit: 

Kreditvergleich

Kostenlos und unverbindlich

Immobilie mieten: Ihr neues Zuhause wartet

Die Entscheidung, eine Immobilie zu mieten, bietet Flexibilität und zahlreiche Möglichkeiten – ob eine Wohnung für den Alltag oder ein Haus für die Familie. Bei Infina können Sie gezielt sowohl eine Wohnung suchen als auch ein Haus suchen, das Ihren Bedürfnissen entspricht. Unsere Angebote erleichtern es Ihnen, eine Mietwohnung zu suchen und Ihre ideale Wohnung finden zu können. Entdecken Sie vielfältige Optionen, um die passende Immobilie zu finden und Ihre Wohnträume zu verwirklichen. Starten Sie noch heute Ihre Suche und profitieren Sie von einer großen Auswahl an Mietobjekten in Ihrer Wunschregion.

Hilfreiche Informationen zu Immobilie mieten

Starten Sie gut vorbereitet in Ihre Mietentscheidung: Infina stellt Ihnen vielseitige Ratgeber und Beiträge zu Themen wie Immobilie, Mietrecht, Finanzierung und Wohntrends zur Verfügung. Verschaffen Sie sich einen Überblick über alle relevanten Aspekte und gestalten Sie Ihren Weg ins neue Zuhause einfacher und sicherer.

Erfolgreich zur neuen Immobilie

Mit Infina haben Sie einen verlässlichen Partner an Ihrer Seite, der Sie von der ersten Beratung bis zum erfolgreichen Abschluss ganzheitlich unterstützt. Erfahren Sie hier, wie wir gemeinsam Ihren Immobilienerfolg gestalten.

Starten Sie jetzt Ihre Immobiliensuche

Nach zahlreichen Informationen rund um die Themen Immobilie kaufen und Immobilie mieten können Sie nun den nächsten Schritt machen. Starten Sie die Immobiliensuche, um Ihr neues Zuhause oder Ihre nächste Investition zu finden und entdecken Sie die passenden Angebote:

Das innovative Portal für Immobilien und Finanzierung 

Als Kunde von Infina profitieren Sie von unserer umfangreichen und unabhängigen Expertise als Teil einer wachsenden, unabhängigen Immobilien- und Finanzierungsnetzwerkgruppe. Bereits 50.000 Kunden hat Infina erfolgreich bei Ihrem Vorhaben begleitet. Infina bietet Ihnen eine umfassende Beratung in allen Bereichen rund um Ihre Immobilienvorhaben:

Die passende Finanzierung für Ihre Immobilie

Mit Infina erhalten Sie nicht nur eine unabhängige Beratung, sondern auch die passende Finanzierungslösung für Ihre Immobilie. Aus den Angeboten von über 150 Banken und Bausparkassen vermitteln wir Ihnen das, was perfekt zu Ihren Bedürfnissen passt. Wir begleiten Sie professionell und verlässlich – von der ersten Beratung bis zum erfolgreichen Abschluss.

Kreditvergleich

Kostenlos und unverbindlich

Wir holen das Beste für Sie heraus

Verkaufen Sie Ihre Immobilie mit uns & profitieren Sie von unserer Expertise. Wir bringen Ihre Immobilie optimal auf den Markt & erzielen den besten Preis. 

Kontaktieren Sie uns jetzt.

Jetzt Experten kontaktieren
Junge Frau im pinken Blazer hält ein Modellhaus in der linken Hand und zeigt mit der rechten Hand nach oben, als hätte sie eine Idee. Sie lächelt und blickt leicht nach oben – symbolisch für Inspiration oder Immobilienberatung.