INFINA LOGO
Entspannt zur Immobilie Persönlich & kompetent beraten Finanzierbarkeit sofort überprüfbar
489.000 € 7.698 €/m²
Kostenlos &
unverbindlich.
Kontakt aufnehmen

ALTBAU-TRAUM IN WÄHRING – 2 ZIMMER • LIFT KOMMT! • TOP LAGE HOFSTATTGASSE

Obj. Nr.: 51359

ca. 63,52 m² Wohnfläche 2 Zimmer
Partner von Infina Moritz Immobilien Immobilienmakler 
Partner von Infina Moritz Immobilien Immobilienmakler
489.000 € Kaufpreis der Immobilie Kreditvergleich von über 120 Banken mit Infina.
Immobilie finanzieren
Mehr Informationen zur Immobilie: Detaillierte Einblicke in dieses Objekt.
Zurück zur Übersicht

Objektstandort

1180 Wien Adresse anfragen

Directions Icon Fahrtzeit berechnen
Preisinformationen
Kaufpreis 489.000 €
Betriebskosten inkl. USt. 138,45 €
Sonstige Kosten inkl. USt. 71,78 €
Grundbucheintragung: 1.1 %
Grunderwerbsteuer: 3.5 %
Was kann ich mir leisten?
Jetzt berechnen
Maklerprovision:
3,00 % des Kaufpreises zzgl. 20 % USt.

Objektinformationen

Objektart: Wohnung
Nutzungsart: Wohnen
Bauart: Altbau
Zustand: gepflegt
Baujahr: 1900

Rauminformationen & Flächen

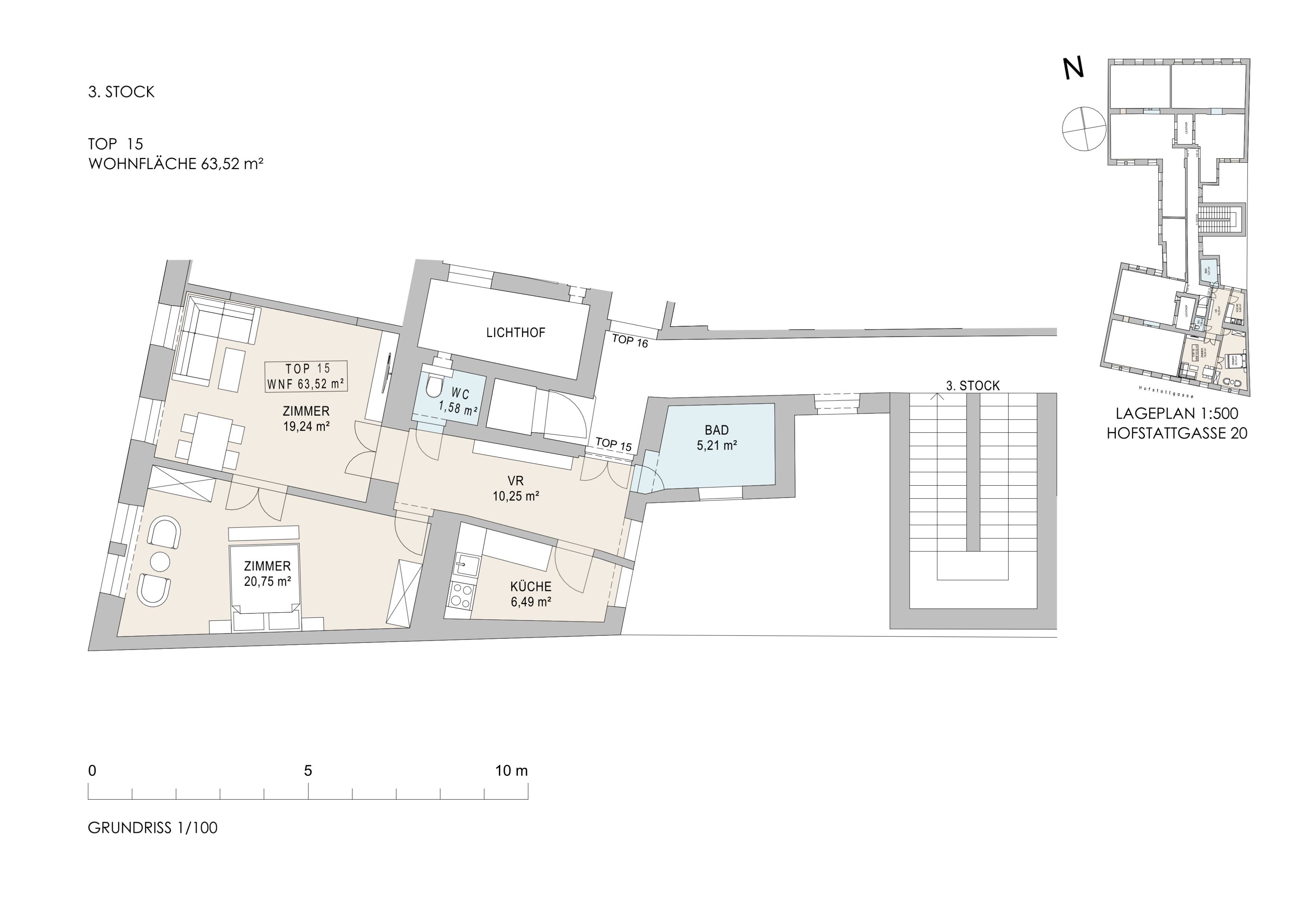
Wohnfläche: ca. 63,52 m²
Kellerfläche: ca. 5,96 m²
Anzahl Zimmer: 2
Anzahl WC: 1
Anzahl Bäder: 1

Ausstattung

Boden: Fliesen, Parkett
Befeuerung: Gas
Heizungsart: Etagenheizung
Küche: Einbauküche
Bad: Dusche
Fernsehen: Kabel / Satelliten-TV

Beschreibung *

ALTBAU-TRAUM IN WÄHRING • LIFT KOMMT! • TOP LAGE HOFSTATTGASSE 

🏛️ HAUS & GEBÄUDE

Das charmante Altbauhaus präsentiert sich in bestem Zustand – die wichtigsten Sanierungen wurden bereits durchgeführt:

  • Fassade (Straßen- & Hofseite) frisch gestrichen

  • Eingangsbereich neu gestaltet mit digitalem „Schwarzen Brett“

  • neue Beleuchtungskörper & Hängeluster im Altbaustil

  • Original-Geländer & Mosaikfliesen – liebevoll restauriert

  • gepflegter Innenhof mit Müllbereich

  • Kellerabteil zu jeder Wohnung vorhanden

Ein Aufzug wird vertraglich zugesichert und vom Verkäufer errichtetdie geplante Fertigstellung des Liftes ist Ende 2026/Anfang 2027 und die geplanten Balkonanbauten sind bis Herbst/Winter 2026 fertiggestellt.

📍 LAGE 

Toplage im beliebten Währing!
Die Hofstattgasse liegt ruhig, aber zentral – mit idealer Anbindung und viel Grün in der Umgebung.

Parks in der Nähe:

  • Sternwartepark

  • Türkenschanzpark

  • Schubertpark

Öffentliche Anbindung:

  • Straßenbahnlinien direkt zur U6 Volksoper – Währinger Straße

  • in wenigen Minuten ins Zentrum (Schottentor)

Einkauf & Freizeit:
Alle Geschäfte des täglichen Bedarfs, Cafés, Restaurants und Boutiquen befinden sich in der Währinger Straße und Gentzgasse – nur wenige Schritte entfernt!

💡 FAZIT

Ein echtes Altbaujuwel mit Zukunftsperspektive !
✔ Sanierter Eingangsbereich & Fassade
✔ Vertraglich zugesicherter LIFT kommt (geplant Ende 2026/Anfang 2027)
✔ Klassischer Altbau mit Fischgrätparkett & Flügeltüren
✔ Beste Lage im 18. Bezirk
✔ Sofort bezugsfertig

Einziehen, genießen & den Wiener Altbautraum leben!

Öffentliche Verkehrsanbindung:

  • Straßenbahn: Nr. 40 und Nr. 41 - Station "Aumannplatz" - ca. 3 Gehminuten (200m)
  • U-Bahn: U6 - Station "Währinger Straße - Volksoper")  - ca. 14 Gehminuten (1,1km)

Nebenkosten:

Grundbucheintragung: 1,1% des Kaufpreises

Grunderwerbssteuer: 3,5% des Kaufpreises

Maklerprovision: 3% des Kaufpreises + 20% USt.

Kaufvertragshonorar: 1,2% des Kaufpreises zzgl. USt und Barauslagen I Kaufvertragserstellung erfolgt durch die Kanzlei Tiefenthaler & Gnesda Rechtsanwälte

Maklervereinbarung: Wir ersuchen um Verständnis, dass wir bei Anfragen zur Objektadresse, bzw. Besichtigungstermin aufgrund neuer gesetzlicher Bestimmungen Unterlagen erst dann zusenden können, wenn Sie vorab bestätigen, dass Sie unser sofortiges Tätigwerden wünschen und über Ihre Rücktrittsrechte aufgeklärt wurden. Sie bekommen nach Ihrer schriftlichen Anfrage mit vollständiger Angabe des Namens, Anschrift und Telefonnummer ein Email, in dem Sie diese Punkte bestätigen müssen.

Haftungsausschluss: Wir weisen darauf hin, dass sämtliche Daten im vorliegenden Angebot sowie die von unserem Büro an Sie weitergegebenen Auskünfte, vom Eigentümer der Immobilie zur Verfügung gestellt wurden. Ebenso sind Informationen von Dritten (z.B. behördliche Informationen) eingeholt worden, auch für diese können wir unsererseits keinerlei Haftung für deren uneingeschränkte Richtigkeit übernehmen.

ALTBAU-TRAUM IN WÄHRING – 2 ZIMMER • LIFT KOMMT! • TOP LAGE HOFSTATTGASSE 

Zum Verkauf gelangt eine gepflegte 2-Zimmer-ALTBAUWOHNUNG im 3. Stock eines schön sanierten Gründerzeithauses – mitten im begehrten 18. Bezirk.

Der Verkäufer verpflichtet sich vertraglich, einen Lift auf eigene Kosten zu errichten  - die Fertigstellung ist für Ende 2026 / Anfang 2027 geplant – somit ist diese Wohnung nicht nur stilvoll, sondern auch zukunftssicher!

🏛️ HAUS & GEBÄUDE

Das charmante Altbauhaus präsentiert sich in bestem Zustand – die wichtigsten Sanierungen wurden bereits durchgeführt:

  • Fassade (Straßen- & Hofseite) frisch gestrichen

  • Eingangsbereich neu gestaltet mit digitalem „Schwarzen Brett“

  • neue Beleuchtungskörper & Hängeluster im Altbaustil

  • Original-Geländer & Mosaikfliesen – liebevoll restauriert

  • gepflegter Innenhof mit Müllbereich

  • Kellerabteil zu jeder Wohnung vorhanden

Ein Aufzug wird vertraglich zugesichert und vom Verkäufer errichtetFertigstellung innerhalb von 3 Jahren !

🏠 DIE WOHNUNG

  • Wohnfläche: ca. 63,52 m²

  • Etage:  3. Stock (Lift: geplante Fertigstellung Ende 2026 / Anfang 2027)

  • Zimmer: 2 – perfekt aufgeteilt

  • Heizung:  Gas-Etagenheizung

  • Zustand: gepflegt & sofort bezugsfertig

Raumaufteilung:

  • zwei großzügige, straßenseitige Zimmer (je ca. 20 m²), getrennt begehbar.

  • voll ausgestattete, moderne Küche

  • Badezimmer

  • separates WC mit Fenster zum Lichthof

Ausstattungshighlights:

  • edler Fischgrät-Parkettboden

  • Original-Flügeltüren & Altbautüren

  • hohe Decken mit klassischem Altbauflair

  • gepflegtes  Bad & WC

Diese Wohnung vereint Wiener Charme mit moderner Funktionalität – perfekt für Singles, Paare oder als stilvolle Stadtwohnung.

📍 LAGE 

Toplage im beliebten Währing!
Die Hofstattgasse liegt ruhig, aber zentral – mit idealer Anbindung und viel Grün in der Umgebung.

Parks in der Nähe:

  • Sternwartepark

  • Türkenschanzpark

  • Schubertpark

Öffentliche Anbindung:

  • Straßenbahnlinien direkt zur U6 Volksoper – Währinger Straße

  • in wenigen Minuten ins Zentrum (Schottentor)

Einkauf & Freizeit:
Alle Geschäfte des täglichen Bedarfs, Cafés, Restaurants und Boutiquen befinden sich in der Währinger Straße und Gentzgasse – nur wenige Schritte entfernt!

💡 FAZIT

Ein echtes Altbaujuwel mit Zukunftsperspektive !
✔ Sanierter Eingangsbereich & Fassade
✔ Vertraglich zugesicherter LIFT (geplante Fertigstellung Ende 2026 / Anfang 2027)
✔ Klassischer Altbau mit Fischgrätparkett & Flügeltüren
✔ Beste Lage im 18. Bezirk
✔ Sofort bezugsfertig

Einziehen, genießen & den Wiener Altbautraum leben!

Öffentliche Verkehrsanbindung:

  • Straßenbahn: Nr. 40 und Nr. 41 - Station "Aumannplatz" - ca. 3 Gehminuten (200m)
  • U-Bahn: U6 - Station "Währinger Straße - Volksoper")  - ca. 14 Gehminuten (1,1km)

Nebenkosten:

Grundbucheintragung: 1,1% des Kaufpreises

Grunderwerbssteuer: 3,5% des Kaufpreises

Maklerprovision: 3% des Kaufpreises + 20% USt.

Kaufvertragshonorar: 1,2% des Kaufpreises zzgl. USt und Barauslagen I Kaufvertragserstellung erfolgt durch die Kanzlei Tiefenthaler & Gnesda Rechtsanwälte

Maklervereinbarung: Wir ersuchen um Verständnis, dass wir bei Anfragen zur Objektadresse, bzw. Besichtigungstermin aufgrund neuer gesetzlicher Bestimmungen Unterlagen erst dann zusenden können, wenn Sie vorab bestätigen, dass Sie unser sofortiges Tätigwerden wünschen und über Ihre Rücktrittsrechte aufgeklärt wurden. Sie bekommen nach Ihrer schriftlichen Anfrage mit vollständiger Angabe des Namens, Anschrift und Telefonnummer ein Email, in dem Sie diese Punkte bestätigen müssen.

Haftungsausschluss: Wir weisen darauf hin, dass sämtliche Daten im vorliegenden Angebot sowie die von unserem Büro an Sie weitergegebenen Auskünfte, vom Eigentümer der Immobilie zur Verfügung gestellt wurden. Ebenso sind Informationen von Dritten (z.B. behördliche Informationen) eingeholt worden, auch für diese können wir unsererseits keinerlei Haftung für deren uneingeschränkte Richtigkeit übernehmen.

Wir weisen darauf hin, dass zwischen dem Vermittler und dem zu vermittelnden Dritten ein familiäres oder wirtschaftliches Naheverhältnis besteht.

Der Vermittler ist als Doppelmakler tätig.


Infrastruktur / Entfernungen

Gesundheit
Arzt <500m
Apotheke <500m
Klinik <1.000m
Krankenhaus <1.000m

Kinder & Schulen
Schule <500m
Kindergarten <500m
Universität <1.000m
Höhere Schule <500m

Nahversorgung
Supermarkt <500m
Bäckerei <500m
Einkaufszentrum <1.500m

Sonstige
Geldautomat <500m
Bank <500m
Post <500m
Polizei <500m

Verkehr
Bus <500m
U-Bahn <1.000m
Straßenbahn <500m
Bahnhof <1.000m
Autobahnanschluss <2.500m

Angaben Entfernung Luftlinie / Quelle: OpenStreetMap


*Der Vertrag kommt nicht mit der INFINA Credit Broker GmbH zustande. Das Objekt wird von einem externen Immobilienunternehmen angeboten. Allfällige aus dem Vertragsabschluss resultierende Rechte sind ausschließlich gegenüber dem anbietenden Immobilienunternehmen geltend zu machen. Wir weisen Sie darauf hin, dass die gemachten Angaben und Informationen lediglich unverbindliche Vorabinformationen sind und daher ohne Gewähr erfolgen. Der Vermittler ist als Doppelmakler tätig.

Energieausweis & Heizung
HWB (kWh/m2/Jahr): 165.3
HWB Energieklasse E
fGEE: 2.37
fGEE Energieklasse E
Gültig bis: 30.01.2033
Heizung: Etagenheizung
Befeuerung: Gas
Dokumente & Videos Pläne Dokument 1 Dokument 2
Partner von Infina Moritz Immobilien Immobilienmakler
Gesundheit:
Apotheke: 250 m
Klinik: 430 m
Arzt: 80 m
Krankenhaus: 690 m
Nahversorgung:
Supermarkt: 110 m
Bäckerei: 210 m
Einkaufszentrum: 1250 m
Verkehr:
Autobahnanschluss: 2100 m
U-Bahn: 780 m
Straßenbahn: 240 m
Bus: 240 m
Bahnhof: 790 m
Kinder & Schulen:
Schule: 60 m
Kindergarten: 370 m
Höhere Schule: 80 m
Universität: 570 m
Sonstige:
Bank: 180 m
Polizei: 440 m
Post: 570 m
Geldautomat: 390 m

Jetzt Experten kontaktieren

Weitere interessante Objekte

Partner von Infina
Jetzt anfragen
ca. 55,00 m² Wohnfläche 2 Zimmer
Auf Anfrage
Partner von Infina
Jetzt anfragen
299.000 €
Partner von Infina
Jetzt anfragen
Auf Anfrage
Partner von Infina
Jetzt anfragen
ca. 69,00 m² Wohnfläche 3 Zimmer
Auf Anfrage
Partner von Infina
Jetzt anfragen
Auf Anfrage
Partner von Infina
Jetzt anfragen
299.000 €
Partner von Infina
Jetzt anfragen
ca. 67,00 m² Wohnfläche 3 Zimmer
239.000 €
Partner von Infina
Jetzt anfragen
ca. 83,00 m² Wohnfläche 3 Zimmer
349.000 €

Immobilie kaufen: Das passende Angebot finden

Der Kauf einer Immobilie ist eine wichtige Entscheidung – sei es für die Eigennutzung oder zur Vermietung. Mit unserem Portal unterstützen wir Sie dabei, die richtige Immobilie zu kaufen. Nutzen Sie unsere Suchmöglichkeiten, um gezielt eine Immobilie zu suchen, die Ihren Vorstellungen entspricht. Unsere Immobilienangebote decken eine breite Palette ab: vom Einfamilienhaus über die Eigentumswohnung bis hin zum Grundstück für Ihr Bauvorhaben. Mit uns können Sie sicher und unkompliziert Eigentum erwerben – ob für die private Nutzung oder als Investition als Immobilie. Erkunden Sie jetzt unsere Angebote und finden Sie die perfekte Lösung, die zu Ihren Wohn- oder Anlagezielen passt.

Fundiertes Wissen für Ihre Entscheidung, eine Immobilie zu kaufen

Bereiten Sie sich bestens vor: Infina stellt Ihnen kostenlos über 300 Ratgeber und Beiträge zu den Themen Immobilie, Finanzierung, Zinsen und Recht zur Verfügung. Nutzen Sie unser umfassendes Wissen, um richtige Entscheidungen zu treffen.

Bei jedem Kauf einer Immobilie oder eines Grundstücks ist es wichtig, die passende Finanzierung zu finden. Mit seiner eigenen Vertriebsorganisation ist Infina als Wohnbau-Finanz-Experte an über 100 Standorten in ganz Österreich vertreten und vermittelt Finanzierungen an über 150 Banken und Bausparkassen. Nutzen Sie unseren kostenlosen Kreditvergleich für den passenden Wohnkredit: 

Kreditvergleich

Kostenlos und unverbindlich

Immobilie mieten: Ihr neues Zuhause wartet

Die Entscheidung, eine Immobilie zu mieten, bietet Flexibilität und zahlreiche Möglichkeiten – ob eine Wohnung für den Alltag oder ein Haus für die Familie. Bei Infina können Sie gezielt sowohl eine Wohnung suchen als auch ein Haus suchen, das Ihren Bedürfnissen entspricht. Unsere Angebote erleichtern es Ihnen, eine Mietwohnung zu suchen und Ihre ideale Wohnung finden zu können. Entdecken Sie vielfältige Optionen, um die passende Immobilie zu finden und Ihre Wohnträume zu verwirklichen. Starten Sie noch heute Ihre Suche und profitieren Sie von einer großen Auswahl an Mietobjekten in Ihrer Wunschregion.

Hilfreiche Informationen zu Immobilie mieten

Starten Sie gut vorbereitet in Ihre Mietentscheidung: Infina stellt Ihnen vielseitige Ratgeber und Beiträge zu Themen wie Immobilie, Mietrecht, Finanzierung und Wohntrends zur Verfügung. Verschaffen Sie sich einen Überblick über alle relevanten Aspekte und gestalten Sie Ihren Weg ins neue Zuhause einfacher und sicherer.

Erfolgreich zur neuen Immobilie

Mit Infina haben Sie einen verlässlichen Partner an Ihrer Seite, der Sie von der ersten Beratung bis zum erfolgreichen Abschluss ganzheitlich unterstützt. Erfahren Sie hier, wie wir gemeinsam Ihren Immobilienerfolg gestalten.

Starten Sie jetzt Ihre Immobiliensuche

Nach zahlreichen Informationen rund um die Themen Immobilie kaufen und Immobilie mieten können Sie nun den nächsten Schritt machen. Starten Sie die Immobiliensuche, um Ihr neues Zuhause oder Ihre nächste Investition zu finden und entdecken Sie die passenden Angebote:

Das innovative Portal für Immobilien und Finanzierung 

Als Kunde von Infina profitieren Sie von unserer umfangreichen und unabhängigen Expertise als Teil einer wachsenden, unabhängigen Immobilien- und Finanzierungsnetzwerkgruppe. Bereits 50.000 Kunden hat Infina erfolgreich bei Ihrem Vorhaben begleitet. Infina bietet Ihnen eine umfassende Beratung in allen Bereichen rund um Ihre Immobilienvorhaben:

Die passende Finanzierung für Ihre Immobilie

Mit Infina erhalten Sie nicht nur eine unabhängige Beratung, sondern auch die passende Finanzierungslösung für Ihre Immobilie. Aus den Angeboten von über 150 Banken und Bausparkassen vermitteln wir Ihnen das, was perfekt zu Ihren Bedürfnissen passt. Wir begleiten Sie professionell und verlässlich – von der ersten Beratung bis zum erfolgreichen Abschluss.

Kreditvergleich

Kostenlos und unverbindlich

Wir holen das Beste für Sie heraus

Verkaufen Sie Ihre Immobilie mit uns & profitieren Sie von unserer Expertise. Wir bringen Ihre Immobilie optimal auf den Markt & erzielen den besten Preis. 

Kontaktieren Sie uns jetzt.

Jetzt Experten kontaktieren
Junge Frau im pinken Blazer hält ein Modellhaus in der linken Hand und zeigt mit der rechten Hand nach oben, als hätte sie eine Idee. Sie lächelt und blickt leicht nach oben – symbolisch für Inspiration oder Immobilienberatung.