INFINA LOGO
Entspannt zur Immobilie Persönlich & kompetent beraten Finanzierbarkeit sofort überprüfbar
918.692 €
Kostenlos &
unverbindlich.
Kontakt aufnehmen
+ 2 Bilder

Ihre Kinder studieren – Sie investieren: Eigentum in Hietzing

Obj. Nr.: 51292

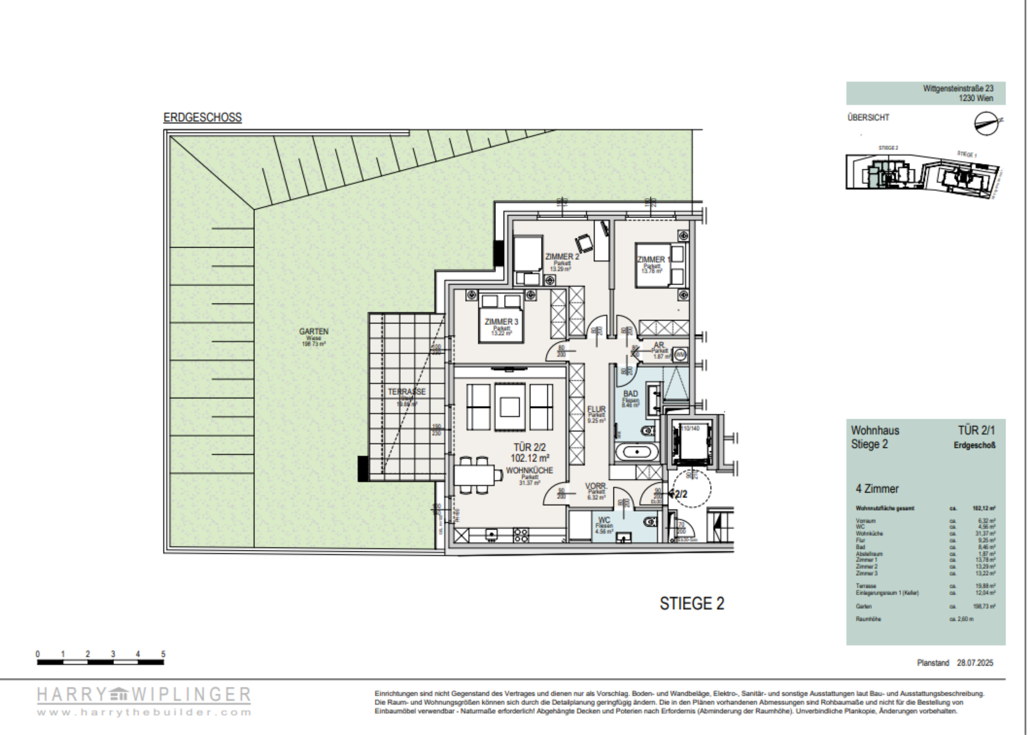
ca. 102,11 m² Wohnfläche 4 Zimmer
Partner von Infina EHL Wohnen Immobilienmakler 
Partner von Infina EHL Wohnen Immobilienmakler
918.692 € Kaufpreis der Immobilie Kreditvergleich von über 120 Banken mit Infina.
Immobilie finanzieren
Mehr Informationen zur Immobilie: Detaillierte Einblicke in dieses Objekt.
Zurück zur Übersicht

Objektstandort

1230 Wien Adresse anfragen

Directions Icon Fahrtzeit berechnen
Preisinformationen
Kaufpreis 918.692 €
Grundbucheintragung: 1.1 %
Grunderwerbsteuer: 3.5 %
Was kann ich mir leisten?
Jetzt berechnen
Maklerprovision:
3,00 % des Kaufpreises zzgl. 20 % USt.

Objektinformationen

Objektart: Wohnung
Nutzungsart: Anlage
Bauart: Neubau
Zustand: Erstbezug
Baujahr: 2028

Rauminformationen & Flächen

Wohnfläche: ca. 102,11 m²
Gartenfläche: ca. 198,73 m²
Kellerfläche: ca. 11,91 m²
Terrassenfläche: ca. 19,88 m²
Anzahl Terrassen: 1
Anzahl Zimmer: 4
Anzahl WC: 2
Anzahl Bäder: 2

Ausstattung

Boden: Fliesen, Parkett
Befeuerung: Erdwärme
Heizungsart: Fußbodenheizung
Balkon: Südwestbalkon / -terrasse
Bad: Dusche, Badewanne
Stellplatzart: Parkplatz
Extras: Gartennutzung, Abstellraum

Beschreibung *

Wittgenstein 23 – Villenflair trifft Vorsorgepotenzial zwischen Hietzing und Mauer

In einer der begehrtesten Lagen Wiens, wo Hietzings klassisches Villenflair auf das grüne Lebensgefühl von Mauer trifft, entsteht mit Wittgenstein 23 ein Wohnprojekt mit außergewöhnlichem Potenzial – für Anleger, Vorsorgedenker und Familien, die in bleibende Werte investieren möchten.

Die Wittgensteinstraße zählt zu den traditionsreichsten Adressen Wiens – gesäumt von alten Bäumen, gepflegten Gärten und historischen Villen. Spaziergänge im Lainzer Tiergarten, Radfahrten durch den Wienerwald und der Ausklang des Tages beim Heurigen Wiltschko oder Steinklammer gehören hier zum Lebensstil.

Ein Platz, an dem man investiert, wohnt – und Zukunft gestaltet.

Das Projekt – Architektur mit Wert und Weitblick

Wittgenstein 23 umfasst sieben Eigentumswohnungen und ein Doppelhaus – mit Wohnflächen von 38 bis 156 m² und großzügigen Freiflächen.
Architektonisch verbindet das Projekt klassischen Villencharakter mit moderner Klarheit und nachhaltiger Technik. Lichtdurchflutete Räume, natürliche Materialien und zeitlose Ästhetik schaffen ein Zuhause mit Zukunft.

Highlights:

  • Tiefgarage mit vorbereiteten E-Ladestationen

  • Stellplatz optional um € 35.000,-

  • Kellerabteil pro Einheit

  • Fahrrad- & Kinderwagenräume im Haus

  • Geothermie (Heizen/Kühlen) & Photovoltaik – nachhaltig & effizient

  • Hochwertige Ausstattung mit Fokus auf natürliche Materialien

Wittgenstein 23 steht für Lebensqualität, Wertbeständigkeit und niedrige Betriebskosten – ein Projekt, das Wohnen, Wohlfühlen und Vorsorge auf einzigartige Weise vereint.

Kaufpreise der Vorsorgewohnungen

von EUR 317.775,01- bis EUR 1.437.383,18- netto zzgl. 20% USt.

Zu erwartender Mietertrag

von ca. EUR 17,00 bis EUR 19,50 netto/m²

Provisionsfrei für den Käufer!
Fertigstellung: voraussichtlich 1. Quartal 2028

Bei diesem Angebot handelt es sich um eine Vorsorgewohnung, die zu Vermietungszwecken erworben wird. Der angegebene Kaufpreis versteht sich daher zzgl. 20% USt. Diese Daten sind vorbehaltlich möglicher Änderungen.

Ein detaillierten Überblick finden Sie auf unsere EHL-Projekthomepage : https://www.ehl.at/wohnen/wohnprojekte/wittgensteinstraße 23-1230-wien
 

 

Wir weisen darauf hin, dass zwischen dem Vermittler und dem zu vermittelnden Dritten ein familiäres oder wirtschaftliches Naheverhältnis besteht.

Der Vermittler ist als Doppelmakler tätig.


Infrastruktur / Entfernungen

Gesundheit
Arzt <500m
Apotheke <1.000m
Klinik <1.500m
Krankenhaus <1.000m

Kinder & Schulen
Schule <500m
Kindergarten <500m
Universität <3.500m
Höhere Schule <5.500m

Nahversorgung
Supermarkt <1.000m
Bäckerei <1.000m
Einkaufszentrum <2.500m

Sonstige
Geldautomat <500m
Bank <1.000m
Post <1.000m
Polizei <2.500m

Verkehr
Bus <500m
Straßenbahn <500m
U-Bahn <4.000m
Bahnhof <2.000m
Autobahnanschluss <4.000m

Angaben Entfernung Luftlinie / Quelle: OpenStreetMap


*Der Vertrag kommt nicht mit der INFINA Credit Broker GmbH zustande. Das Objekt wird von einem externen Immobilienunternehmen angeboten. Allfällige aus dem Vertragsabschluss resultierende Rechte sind ausschließlich gegenüber dem anbietenden Immobilienunternehmen geltend zu machen. Wir weisen Sie darauf hin, dass die gemachten Angaben und Informationen lediglich unverbindliche Vorabinformationen sind und daher ohne Gewähr erfolgen. Der Vermittler ist als Doppelmakler tätig.

Energieausweis & Heizung
HWB (kWh/m2/Jahr): 33.8
HWB Energieklasse B
fGEE: 0.67
fGEE Energieklasse B
Gültig bis: 27.02.2033
Heizung: Fußbodenheizung
Befeuerung: Erdwärme
Dokumente & Videos Pläne Exposé Preisliste Planmappe
Partner von Infina EHL Wohnen Immobilienmakler
Nahversorgung:
Supermarkt: 70 m
Bäckerei: 180 m
Einkaufszentrum: 1570 m
Sonstige:
Post: 1520 m
Polizei: 1410 m
Bank: 50 m
Geldautomat: 50 m
Verkehr:
Autobahnanschluss: 2250 m
Bus: 30 m
Straßenbahn: 1920 m
U-Bahn: 1600 m
Bahnhof: 550 m
Gesundheit:
Apotheke: 60 m
Arzt: 890 m
Klinik: 250 m
Krankenhaus: 1880 m
Kinder & Schulen:
Höhere Schule: 4470 m
Kindergarten: 210 m
Schule: 230 m
Universität: 4810 m

Jetzt Experten kontaktieren

Weitere interessante Objekte

Immobilie kaufen: Das passende Angebot finden

Der Kauf einer Immobilie ist eine wichtige Entscheidung – sei es für die Eigennutzung oder zur Vermietung. Mit unserem Portal unterstützen wir Sie dabei, die richtige Immobilie zu kaufen. Nutzen Sie unsere Suchmöglichkeiten, um gezielt eine Immobilie zu suchen, die Ihren Vorstellungen entspricht. Unsere Immobilienangebote decken eine breite Palette ab: vom Einfamilienhaus über die Eigentumswohnung bis hin zum Grundstück für Ihr Bauvorhaben. Mit uns können Sie sicher und unkompliziert Eigentum erwerben – ob für die private Nutzung oder als Investition als Immobilie. Erkunden Sie jetzt unsere Angebote und finden Sie die perfekte Lösung, die zu Ihren Wohn- oder Anlagezielen passt.

Fundiertes Wissen für Ihre Entscheidung, eine Immobilie zu kaufen

Bereiten Sie sich bestens vor: Infina stellt Ihnen kostenlos über 300 Ratgeber und Beiträge zu den Themen Immobilie, Finanzierung, Zinsen und Recht zur Verfügung. Nutzen Sie unser umfassendes Wissen, um richtige Entscheidungen zu treffen.

Bei jedem Kauf einer Immobilie oder eines Grundstücks ist es wichtig, die passende Finanzierung zu finden. Mit seiner eigenen Vertriebsorganisation ist Infina als Wohnbau-Finanz-Experte an über 100 Standorten in ganz Österreich vertreten und vermittelt Finanzierungen an über 120 Banken und Bausparkassen. Nutzen Sie unseren kostenlosen Kreditvergleich für den passenden Wohnkredit: 

Kreditvergleich

Kostenlos und unverbindlich

Immobilie mieten: Ihr neues Zuhause wartet

Die Entscheidung, eine Immobilie zu mieten, bietet Flexibilität und zahlreiche Möglichkeiten – ob eine Wohnung für den Alltag oder ein Haus für die Familie. Bei Infina können Sie gezielt sowohl eine Wohnung suchen als auch ein Haus suchen, das Ihren Bedürfnissen entspricht. Unsere Angebote erleichtern es Ihnen, eine Mietwohnung zu suchen und Ihre ideale Wohnung finden zu können. Entdecken Sie vielfältige Optionen, um die passende Immobilie zu finden und Ihre Wohnträume zu verwirklichen. Starten Sie noch heute Ihre Suche und profitieren Sie von einer großen Auswahl an Mietobjekten in Ihrer Wunschregion.

Hilfreiche Informationen zu Immobilie mieten

Starten Sie gut vorbereitet in Ihre Mietentscheidung: Infina stellt Ihnen vielseitige Ratgeber und Beiträge zu Themen wie Immobilie, Mietrecht, Finanzierung und Wohntrends zur Verfügung. Verschaffen Sie sich einen Überblick über alle relevanten Aspekte und gestalten Sie Ihren Weg ins neue Zuhause einfacher und sicherer.

Erfolgreich zur neuen Immobilie

Mit Infina haben Sie einen verlässlichen Partner an Ihrer Seite, der Sie von der ersten Beratung bis zum erfolgreichen Abschluss ganzheitlich unterstützt. Erfahren Sie hier, wie wir gemeinsam Ihren Immobilienerfolg gestalten.

Starten Sie jetzt Ihre Immobiliensuche

Nach zahlreichen Informationen rund um die Themen Immobilie kaufen und Immobilie mieten können Sie nun den nächsten Schritt machen. Starten Sie die Immobiliensuche, um Ihr neues Zuhause oder Ihre nächste Investition zu finden und entdecken Sie die passenden Angebote:

Das innovative Portal für Immobilien und Finanzierung 

Als Kunde von Infina profitieren Sie von unserer umfangreichen und unabhängigen Expertise als Teil einer wachsenden, unabhängigen Immobilien- und Finanzierungsnetzwerkgruppe. Bereits 50.000 Kunden hat Infina erfolgreich bei Ihrem Vorhaben begleitet. Infina bietet Ihnen eine umfassende Beratung in allen Bereichen rund um Ihre Immobilienvorhaben:

Die passende Finanzierung für Ihre Immobilie

Mit Infina erhalten Sie nicht nur eine unabhängige Beratung, sondern auch die passende Finanzierungslösung für Ihre Immobilie. Aus den Angeboten von über 120 Banken und Bausparkassen vermitteln wir Ihnen das, was perfekt zu Ihren Bedürfnissen passt. Wir begleiten Sie professionell und verlässlich – von der ersten Beratung bis zum erfolgreichen Abschluss.

Kreditvergleich

Kostenlos und unverbindlich

Wir holen das Beste für Sie heraus

Verkaufen Sie Ihre Immobilie mit uns & profitieren Sie von unserer Expertise. Wir bringen Ihre Immobilie optimal auf den Markt & erzielen den besten Preis. 

Kontaktieren Sie uns jetzt.

Jetzt Experten kontaktieren
Junge Frau im pinken Blazer hält ein Modellhaus in der linken Hand und zeigt mit der rechten Hand nach oben, als hätte sie eine Idee. Sie lächelt und blickt leicht nach oben – symbolisch für Inspiration oder Immobilienberatung.