INFINA LOGO
Entspannt zur Immobilie Persönlich & kompetent beraten Finanzierbarkeit sofort überprüfbar
538.230 € 7.309 €/m²
Kostenlos &
unverbindlich.
Kontakt aufnehmen

Leo am Teich - Wohnen am Wasser

Obj. Nr.: 48620

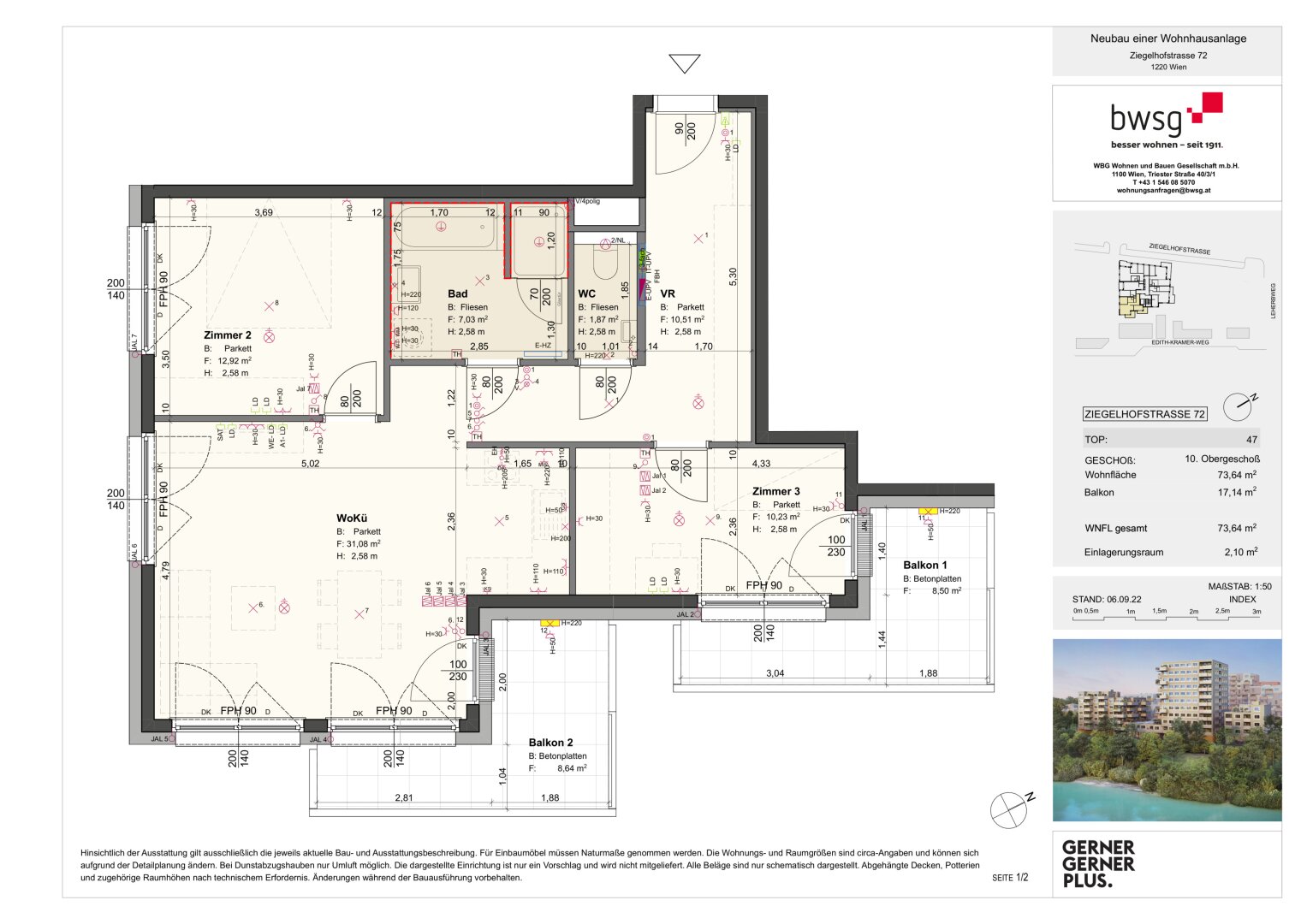
ca. 73,64 m² Nutzfläche 3 Zimmer
Partner von Infina BWSG Immobilienmakler / Bauträger 
Partner von Infina BWSG Immobilienmakler / Bauträger
538.230 € Kaufpreis der Immobilie Kreditvergleich von über 120 Banken mit Infina.
Immobilie finanzieren
Mehr Informationen zur Immobilie: Detaillierte Einblicke in dieses Objekt.
Zurück zur Übersicht

Objektstandort

1220 Wien, Ziegelhofstraße 72/47

Directions Icon Fahrtzeit berechnen
Preisinformationen
Kaufpreis 538.230 €
Betriebskosten inkl. USt. 215,46 €
Sonstige Kosten inkl. USt. 87,50 €
Grundbucheintragung: 1.1 %
Grunderwerbsteuer: 3.5 %
Was kann ich mir leisten?
Jetzt berechnen
Maklerprovision:
Provisionsfrei

Objektinformationen

Objektart: Wohnung
Nutzungsart: Wohnen
Bauart: Neubau
Zustand: Erstbezug
Baujahr: 2023

Rauminformationen & Flächen

Wohnfläche: ca. 73,64 m²
Nutzfläche: ca. 73,64 m²
Lagerfläche: ca. 2,10 m²
Balkonfläche: ca. 17,14 m²
Anzahl Zimmer: 3

Ausstattung

Boden: Fliesen, Fertigparkett
Heizungsart: Fußbodenheizung, Fernwärme
Fahrstuhl: Personenaufzug
Bad: Badewanne
Extras: Fahrradraum

Lage

In der Donaustadt entsteht bis 2024 ein besonders attraktives Stadtquartier mit Wohnungen, Geschäften, Lokalen, Freiraum und zahlreichen Gemeinschafts- und Mobilitätsangeboten. In unmittelbarer Nähe befindet sich der Badeteich Hirschstetten sowie die gleichnamigen, weitläufigen Blumengärten.Die U2 (Haltestelle Hausfeldstraße) ist in 10 min fußläufig erreichbar. In 20 min ist man in der Wiener Innenstadt. Die Haltestelle der Straßenbahn-Linie Prinzgasse ist 350 m entfernt; die Buslinien 85A und 95 A (Haltestelle Pirquetgasse) 150 m. Die Buslinien 95B und 97 A (Haltestelle Zanggasse) befinden sich in 300 bzw. 350 m Entfernung.

Beschreibung *

Winteraktion: Jetzt Nebenkosten sparen! *

Wir feiern den Winter bis zur Schneeschmelze! In der kalten Jahreszeit lassen wir die Preise schmelzen: Beim Kauf einer Eigentumswohnung in einem unserer Objekte in der Berresgasse ( Jonas am Feld , Gretls Garten oder Leo am Teich ) bis 31.03.2026 die Nebenkosten* sparen und jede Wohnung um 6,5 % günstiger erwerben. Darüber hinaus verschenken wir einen Einrichtungsgutschein im Wert von 1.000 Euro für jedes Zimmer!

* ) Während der Aktion werden die Verkaufspreise um 6,5 % reduziert. Dies entspricht den durchschnittlichen Nebenkosten beim provisionsfreien Wohnungskauf (1,9 % Vertragserrichtung, 3,5 % Grunderwerbsteuer, 1,1 % Eintragungsgebühr). Die auf Basis des reduzierten Kaufpreises berechneten Nebenkosten sind über den Treuhänder zu begleichen. Eine mögliche Gebührenbefreiung gem. § 25a iVm § 25b Gerichtsgebührengesetz kann zusätzlich in Anspruch genommen werden. Der Einrichtungsgutschein wird bei Wohnungsübergabe übergeben und ist nicht in bar ablösbar.

Direkt beim Hirschstettner Badesee entstehen 99 freifinanzierte Eigentumswohnungen. Neben dem idyllischen Badeteich mit Erholungsmöglichkeiten und Spielplätzen rund um den Teich bietet das neue Stadtgebiet grundlegende Einrichtungen zur Nahversorgung. Die Gebäude zeichnen sich durch eine Höhenstaffelung in vier vorgegebenen Bauklassen mit zwei bis maximal elf Geschoßen aus. Auf diese Weise wird eine ausreichende Belichtung der Gebäude und des Freiraums gewährleistet. Bei der Planung haben wir auch an Selbstversorger gedacht: bestehende Gewächshäuser sollen gemeinschaftlich genutzt werden. Ein großer Anteil der Dachflächen pro Bauplatz werden begrünt und auch begehbar sein.
Des Weiteren legen wir ein besonderes Augenmerk auf den optimalen Nutzungsmix von gewerblich und gemeinschaftlich genutzten Flächen: In den Erdgeschoßzonen ist Platz für Supermärkte, Lokale, eine Apotheke und Bäckerei sowie einen Kindergarten. Gemeinschaftsräume wie eine Bibliothek, einen Spieleverleih- und Multifunktionsraum bieten Möglichkeiten für eine individuelle Freizeitgestaltung.
Wasser ist ein charakteristisches Element des Gebietes und wird das neue Stadtviertel prägen. Die bestehenden Freiräume am Hirschstettner Badeteich werden durch Cafés und Aufenthaltsbereiche aufgewertet.
Ausreichend Grün- und Freiräume zu gestalten, ist uns besonders wichtig. Geplant sind Kinder- und Jugendspielplätze, Sportflächen für die aktiven Bewohner:innen und Grünflächen für Erholungssuchende.
Im vorwiegend autofreien Viertel überwiegen Rad- und Fußwege. Dennoch kommen Autobesitzer mit zahlreichen Tiefgaragen-Parkplätzen nicht zu kurz. Mobilitätsstationen bieten Bike und Carsharing; aber auch Serviceleistungen wie eine Fahrradreparaturwerkstatt an.
Für Elektrofahrzeugbesitzer:innen: Alle Stellplätze der BWSG-Objekte werden für die E-Mobilität vorbereitet.


*Der Vertrag kommt nicht mit der INFINA Credit Broker GmbH zustande. Das Objekt wird von einem externen Immobilienunternehmen angeboten. Allfällige aus dem Vertragsabschluss resultierende Rechte sind ausschließlich gegenüber dem anbietenden Immobilienunternehmen geltend zu machen. Wir weisen Sie darauf hin, dass die gemachten Angaben und Informationen lediglich unverbindliche Vorabinformationen sind und daher ohne Gewähr erfolgen. Der Vermittler ist als Doppelmakler tätig.

Energieausweis & Heizung
HWB (kWh/m2/Jahr): 52.57
HWB Energieklasse C
fGEE: 0.74
fGEE Energieklasse C
Gültig bis: 07.09.2032
Heizung: Fußbodenheizung, Fernwärme
Dokumente & Videos Pläne Pläne
Partner von Infina BWSG Immobilienmakler / Bauträger
Nahversorgung:
Supermarkt: 550 m
Bäckerei: 600 m
Einkaufszentrum: 1430 m
Gesundheit:
Apotheke: 480 m
Arzt: 290 m
Klinik: 770 m
Krankenhaus: 3220 m
Verkehr:
Autobahnanschluss: 1100 m
Straßenbahn: 460 m
U-Bahn: 1220 m
Bus: 170 m
Bahnhof: 1220 m
Kinder & Schulen:
Höhere Schule: 3010 m
Universität: 3080 m
Kindergarten: 140 m
Schule: 410 m
Sonstige:
Post: 820 m
Geldautomat: 760 m
Polizei: 900 m
Bank: 770 m

Jetzt Experten kontaktieren

Weitere interessante Objekte

Immobilie kaufen: Das passende Angebot finden

Der Kauf einer Immobilie ist eine wichtige Entscheidung – sei es für die Eigennutzung oder zur Vermietung. Mit unserem Portal unterstützen wir Sie dabei, die richtige Immobilie zu kaufen. Nutzen Sie unsere Suchmöglichkeiten, um gezielt eine Immobilie zu suchen, die Ihren Vorstellungen entspricht. Unsere Immobilienangebote decken eine breite Palette ab: vom Einfamilienhaus über die Eigentumswohnung bis hin zum Grundstück für Ihr Bauvorhaben. Mit uns können Sie sicher und unkompliziert Eigentum erwerben – ob für die private Nutzung oder als Investition als Immobilie. Erkunden Sie jetzt unsere Angebote und finden Sie die perfekte Lösung, die zu Ihren Wohn- oder Anlagezielen passt.

Fundiertes Wissen für Ihre Entscheidung, eine Immobilie zu kaufen

Bereiten Sie sich bestens vor: Infina stellt Ihnen kostenlos über 300 Ratgeber und Beiträge zu den Themen Immobilie, Finanzierung, Zinsen und Recht zur Verfügung. Nutzen Sie unser umfassendes Wissen, um richtige Entscheidungen zu treffen.

Bei jedem Kauf einer Immobilie oder eines Grundstücks ist es wichtig, die passende Finanzierung zu finden. Mit seiner eigenen Vertriebsorganisation ist Infina als Wohnbau-Finanz-Experte an über 100 Standorten in ganz Österreich vertreten und vermittelt Finanzierungen an über 120 Banken und Bausparkassen. Nutzen Sie unseren kostenlosen Kreditvergleich für den passenden Wohnkredit: 

Kreditvergleich

Kostenlos und unverbindlich

Immobilie mieten: Ihr neues Zuhause wartet

Die Entscheidung, eine Immobilie zu mieten, bietet Flexibilität und zahlreiche Möglichkeiten – ob eine Wohnung für den Alltag oder ein Haus für die Familie. Bei Infina können Sie gezielt sowohl eine Wohnung suchen als auch ein Haus suchen, das Ihren Bedürfnissen entspricht. Unsere Angebote erleichtern es Ihnen, eine Mietwohnung zu suchen und Ihre ideale Wohnung finden zu können. Entdecken Sie vielfältige Optionen, um die passende Immobilie zu finden und Ihre Wohnträume zu verwirklichen. Starten Sie noch heute Ihre Suche und profitieren Sie von einer großen Auswahl an Mietobjekten in Ihrer Wunschregion.

Hilfreiche Informationen zu Immobilie mieten

Starten Sie gut vorbereitet in Ihre Mietentscheidung: Infina stellt Ihnen vielseitige Ratgeber und Beiträge zu Themen wie Immobilie, Mietrecht, Finanzierung und Wohntrends zur Verfügung. Verschaffen Sie sich einen Überblick über alle relevanten Aspekte und gestalten Sie Ihren Weg ins neue Zuhause einfacher und sicherer.

Erfolgreich zur neuen Immobilie

Mit Infina haben Sie einen verlässlichen Partner an Ihrer Seite, der Sie von der ersten Beratung bis zum erfolgreichen Abschluss ganzheitlich unterstützt. Erfahren Sie hier, wie wir gemeinsam Ihren Immobilienerfolg gestalten.

Starten Sie jetzt Ihre Immobiliensuche

Nach zahlreichen Informationen rund um die Themen Immobilie kaufen und Immobilie mieten können Sie nun den nächsten Schritt machen. Starten Sie die Immobiliensuche, um Ihr neues Zuhause oder Ihre nächste Investition zu finden und entdecken Sie die passenden Angebote:

Das innovative Portal für Immobilien und Finanzierung 

Als Kunde von Infina profitieren Sie von unserer umfangreichen und unabhängigen Expertise als Teil einer wachsenden, unabhängigen Immobilien- und Finanzierungsnetzwerkgruppe. Bereits 50.000 Kunden hat Infina erfolgreich bei Ihrem Vorhaben begleitet. Infina bietet Ihnen eine umfassende Beratung in allen Bereichen rund um Ihre Immobilienvorhaben:

Die passende Finanzierung für Ihre Immobilie

Mit Infina erhalten Sie nicht nur eine unabhängige Beratung, sondern auch die passende Finanzierungslösung für Ihre Immobilie. Aus den Angeboten von über 120 Banken und Bausparkassen vermitteln wir Ihnen das, was perfekt zu Ihren Bedürfnissen passt. Wir begleiten Sie professionell und verlässlich – von der ersten Beratung bis zum erfolgreichen Abschluss.

Kreditvergleich

Kostenlos und unverbindlich

Wir holen das Beste für Sie heraus

Verkaufen Sie Ihre Immobilie mit uns & profitieren Sie von unserer Expertise. Wir bringen Ihre Immobilie optimal auf den Markt & erzielen den besten Preis. 

Kontaktieren Sie uns jetzt.

Jetzt Experten kontaktieren
Junge Frau im pinken Blazer hält ein Modellhaus in der linken Hand und zeigt mit der rechten Hand nach oben, als hätte sie eine Idee. Sie lächelt und blickt leicht nach oben – symbolisch für Inspiration oder Immobilienberatung.