INFINA LOGO
Entspannt zur Immobilie Persönlich & kompetent beraten Finanzierbarkeit sofort überprüfbar
288.567 €
Kostenlos &
unverbindlich.
Kontakt aufnehmen

Jonas am Feld - Wohnen am Badeteich Hirschstetten

Obj. Nr.: 48122

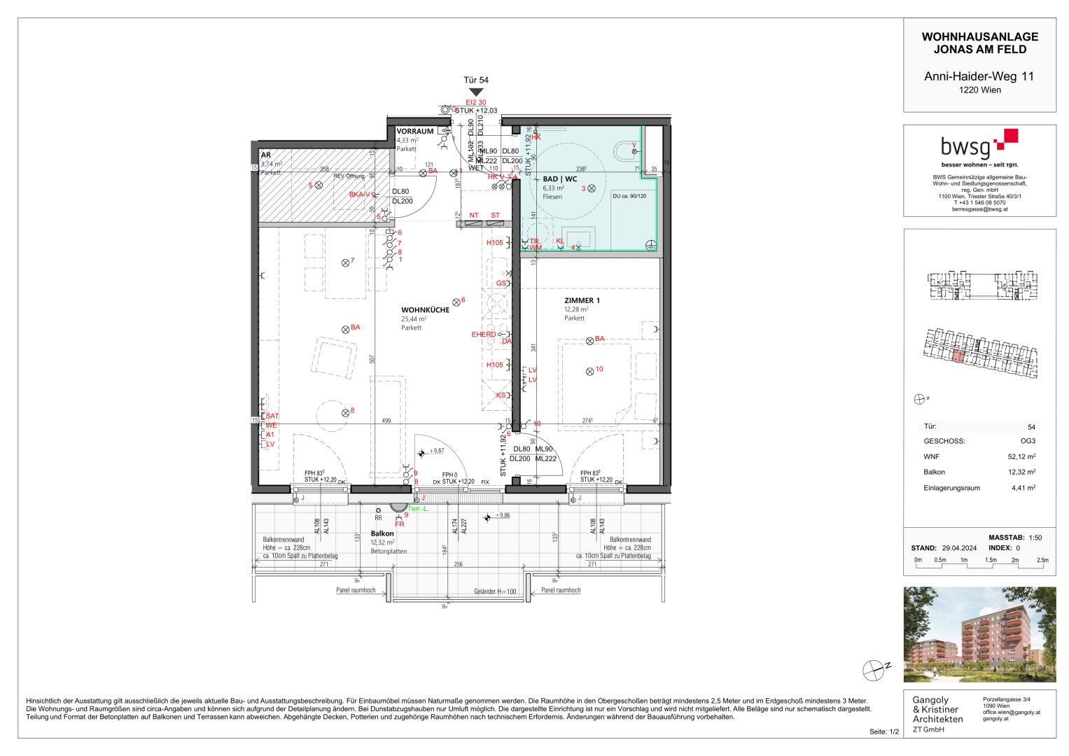
ca. 52,12 m² Wohnfläche 2 Zimmer
Partner von Infina BWSG Immobilienmakler / Bauträger 
Partner von Infina BWSG Immobilienmakler / Bauträger
288.567 € Kaufpreis der Immobilie Kreditvergleich von über 120 Banken mit Infina.
Immobilie finanzieren
Mehr Informationen zur Immobilie: Detaillierte Einblicke in dieses Objekt.
Zurück zur Übersicht

Objektstandort

1220 Wien, Anni-Haider-Weg 11/54

Directions Icon Fahrtzeit berechnen
Preisinformationen
Kaufpreis 288.567 €
Betriebskosten inkl. USt. 100,90 €
Sonstige Kosten inkl. USt. 5,90 €
Grundbucheintragung: 1.1 %
Grunderwerbsteuer: 3.5 %
Was kann ich mir leisten?
Jetzt berechnen

Objektinformationen

Objektart: Wohnung
Nutzungsart: Wohnen, Gewerbe
Bauart: Neubau
Zustand: Erstbezug
Baujahr: 2025

Rauminformationen & Flächen

Wohnfläche: ca. 52,12 m²
Balkonfläche: ca. 12,32 m²
Anzahl Zimmer: 2

Ausstattung

Boden: Fliesen, Parkett

Lage

In der Donaustadt entsteht ein besonders attraktives Stadtquartier mit Wohnungen, Geschäften, Lokalen, Freiraum und zahlreichen Gemeinschafts- und Mobilitätsangeboten. Auch die Natur kommt nicht zu kurz, denn in unmittelbarer Nähe befindet sich der Badeteich Hirschstetten sowie die gleichnamigen, weitläufigen Blumengärten. Hinsichtlich der öffentlichen Anbindung gibt es zahlreiche Optionen: Die U2 (Haltestelle Hausfeldstraße) erreicht man fußläußig innerhalb von zehn Minuten. Die Haltestelle der Straßenbahn-Linie Prinzgasse ist 350 Meter entfernt; die Buslinien 85A und 95 A (Haltestelle Pirquetgasse) 150 Meter. In 300 bzw. 350 Metern Entfernung befinden sich die Buslinien 95B und 97 A (Haltestelle Zanggasse). Und wer mag, ist innerhalb von 20 Minuten in der Wiener Innenstadt.

Beschreibung *

Winteraktion: Jetzt Nebenkosten sparen! *

Berresgasse – Wohnen am Badeteich Hirschstetten
Jonas am Feld - Anni-Haider-Weg 9+11; Maria-Emhart-Weg 14, 1220 Wien

In sehr guter Lage, wenige Minuten zu Fuß vom Hirschstettner Badesee , entstehen hier 148 freifinanzierte Eigentumswohnungen sowie 73 Tiefgaragenplätze . Neben dem idyllischen Badeteich mit Liegewiesen und Spielplätzen befinden sich in nächster Umgebung auch Hirschstettner Blumengärten und zahlreiche andere Naherholungsgebiete. Fühlen Sie sich jeden Tag wie im Urlaub.

Neben viel Grün, um die Seele baumeln zu lassen, erwartet Sie ebenso eine ausgezeichnete Infrastruktur :

Mit dem Auto erreichen Sie die City in ca. 20 Minuten, mit den Öffis in nur ca. 30 Minuten.
Auch für Ihr leibliches Wohl und Ihre täglichen Bedürfnisse ist gesorgt: Restaurants , eine Apotheke und Nahversorger befinden sich in nächster Nähe.
Am angrenzenden Bildungscampus Berresgasse finden Sie vom Kindergarten bis zur Mittelschule ausgezeichnete Bildungseinrichtungen für Ihren Nachwuchs .
Sichern Sie sich Ihren Platz an der Sonne im neu entstehenden Stadtviertel.

*Wir feiern den Winter bis zur Schneeschmelze! In der kalten Jahreszeit lassen wir die Preise schmelzen: Beim Kauf einer Eigentumswohnung in einem unserer Objekte in der Berresgasse ( Jonas am Feld , Gretls Garten oder Leo am Teich ) bis 31.03.2026 die Nebenkosten* sparen und jede Wohnung um 6,5 % günstiger erwerben. Darüber hinaus verschenken wir einen Einrichtungsgutschein im Wert von 1.000 Euro für jedes Zimmer!

* ) Während der Aktion werden die Verkaufspreise um 6,5 % reduziert. Dies entspricht den durchschnittlichen Nebenkosten beim provisionsfreien Wohnungskauf (1,9 % Vertragserrichtung, 3,5 % Grunderwerbsteuer, 1,1 % Eintragungsgebühr). Die auf Basis des reduzierten Kaufpreises berechneten Nebenkosten sind über den Treuhänder zu begleichen. Eine mögliche Gebührenbefreiung gem. § 25a iVm § 25b Gerichtsgebührengesetz kann zusätzlich in Anspruch genommen werden. Der Einrichtungsgutschein wird bei Wohnungsübergabe übergeben und ist nicht in bar ablösbar.


*Der Vertrag kommt nicht mit der INFINA Credit Broker GmbH zustande. Das Objekt wird von einem externen Immobilienunternehmen angeboten. Allfällige aus dem Vertragsabschluss resultierende Rechte sind ausschließlich gegenüber dem anbietenden Immobilienunternehmen geltend zu machen. Wir weisen Sie darauf hin, dass die gemachten Angaben und Informationen lediglich unverbindliche Vorabinformationen sind und daher ohne Gewähr erfolgen. Der Vermittler ist als Doppelmakler tätig.

Energieausweis & Heizung
HWB (kWh/m2/Jahr): 23.4
HWB Energieklasse B
fGEE: 0.75
Gültig bis: 19.04.2033
Dokumente & Videos Pläne Pläne Übersichtspläne Jonas Bau- und Ausstattungsbeschreibung Jonas am Feld
Partner von Infina BWSG Immobilienmakler / Bauträger
Verkehr:
U-Bahn: 1130 m
Autobahnanschluss: 1820 m
Bus: 90 m
Bahnhof: 1130 m
Straßenbahn: 440 m
Sonstige:
Post: 760 m
Polizei: 1340 m
Bank: 750 m
Geldautomat: 760 m
Nahversorgung:
Bäckerei: 660 m
Supermarkt: 390 m
Einkaufszentrum: 2180 m
Kinder & Schulen:
Universität: 2510 m
Höhere Schule: 2510 m
Kindergarten: 370 m
Schule: 250 m
Gesundheit:
Apotheke: 430 m
Klinik: 1320 m
Arzt: 580 m
Krankenhaus: 3460 m

Jetzt Experten kontaktieren

Immobilie kaufen: Das passende Angebot finden

Der Kauf einer Immobilie ist eine wichtige Entscheidung – sei es für die Eigennutzung oder zur Vermietung. Mit unserem Portal unterstützen wir Sie dabei, die richtige Immobilie zu kaufen. Nutzen Sie unsere Suchmöglichkeiten, um gezielt eine Immobilie zu suchen, die Ihren Vorstellungen entspricht. Unsere Immobilienangebote decken eine breite Palette ab: vom Einfamilienhaus über die Eigentumswohnung bis hin zum Grundstück für Ihr Bauvorhaben. Mit uns können Sie sicher und unkompliziert Eigentum erwerben – ob für die private Nutzung oder als Investition als Immobilie. Erkunden Sie jetzt unsere Angebote und finden Sie die perfekte Lösung, die zu Ihren Wohn- oder Anlagezielen passt.

Fundiertes Wissen für Ihre Entscheidung, eine Immobilie zu kaufen

Bereiten Sie sich bestens vor: Infina stellt Ihnen kostenlos über 300 Ratgeber und Beiträge zu den Themen Immobilie, Finanzierung, Zinsen und Recht zur Verfügung. Nutzen Sie unser umfassendes Wissen, um richtige Entscheidungen zu treffen.

Bei jedem Kauf einer Immobilie oder eines Grundstücks ist es wichtig, die passende Finanzierung zu finden. Mit seiner eigenen Vertriebsorganisation ist Infina als Wohnbau-Finanz-Experte an über 100 Standorten in ganz Österreich vertreten und vermittelt Finanzierungen an über 150 Banken und Bausparkassen. Nutzen Sie unseren kostenlosen Kreditvergleich für den passenden Wohnkredit: 

Kreditvergleich

Kostenlos und unverbindlich

Immobilie mieten: Ihr neues Zuhause wartet

Die Entscheidung, eine Immobilie zu mieten, bietet Flexibilität und zahlreiche Möglichkeiten – ob eine Wohnung für den Alltag oder ein Haus für die Familie. Bei Infina können Sie gezielt sowohl eine Wohnung suchen als auch ein Haus suchen, das Ihren Bedürfnissen entspricht. Unsere Angebote erleichtern es Ihnen, eine Mietwohnung zu suchen und Ihre ideale Wohnung finden zu können. Entdecken Sie vielfältige Optionen, um die passende Immobilie zu finden und Ihre Wohnträume zu verwirklichen. Starten Sie noch heute Ihre Suche und profitieren Sie von einer großen Auswahl an Mietobjekten in Ihrer Wunschregion.

Hilfreiche Informationen zu Immobilie mieten

Starten Sie gut vorbereitet in Ihre Mietentscheidung: Infina stellt Ihnen vielseitige Ratgeber und Beiträge zu Themen wie Immobilie, Mietrecht, Finanzierung und Wohntrends zur Verfügung. Verschaffen Sie sich einen Überblick über alle relevanten Aspekte und gestalten Sie Ihren Weg ins neue Zuhause einfacher und sicherer.

Erfolgreich zur neuen Immobilie

Mit Infina haben Sie einen verlässlichen Partner an Ihrer Seite, der Sie von der ersten Beratung bis zum erfolgreichen Abschluss ganzheitlich unterstützt. Erfahren Sie hier, wie wir gemeinsam Ihren Immobilienerfolg gestalten.

Starten Sie jetzt Ihre Immobiliensuche

Nach zahlreichen Informationen rund um die Themen Immobilie kaufen und Immobilie mieten können Sie nun den nächsten Schritt machen. Starten Sie die Immobiliensuche, um Ihr neues Zuhause oder Ihre nächste Investition zu finden und entdecken Sie die passenden Angebote:

Das innovative Portal für Immobilien und Finanzierung 

Als Kunde von Infina profitieren Sie von unserer umfangreichen und unabhängigen Expertise als Teil einer wachsenden, unabhängigen Immobilien- und Finanzierungsnetzwerkgruppe. Bereits 50.000 Kunden hat Infina erfolgreich bei Ihrem Vorhaben begleitet. Infina bietet Ihnen eine umfassende Beratung in allen Bereichen rund um Ihre Immobilienvorhaben:

Die passende Finanzierung für Ihre Immobilie

Mit Infina erhalten Sie nicht nur eine unabhängige Beratung, sondern auch die passende Finanzierungslösung für Ihre Immobilie. Aus den Angeboten von über 150 Banken und Bausparkassen vermitteln wir Ihnen das, was perfekt zu Ihren Bedürfnissen passt. Wir begleiten Sie professionell und verlässlich – von der ersten Beratung bis zum erfolgreichen Abschluss.

Kreditvergleich

Kostenlos und unverbindlich

Wir holen das Beste für Sie heraus

Verkaufen Sie Ihre Immobilie mit uns & profitieren Sie von unserer Expertise. Wir bringen Ihre Immobilie optimal auf den Markt & erzielen den besten Preis. 

Kontaktieren Sie uns jetzt.

Jetzt Experten kontaktieren
Junge Frau im pinken Blazer hält ein Modellhaus in der linken Hand und zeigt mit der rechten Hand nach oben, als hätte sie eine Idee. Sie lächelt und blickt leicht nach oben – symbolisch für Inspiration oder Immobilienberatung.