INFINA LOGO
Entspannt zur Immobilie Persönlich & kompetent beraten Finanzierbarkeit sofort überprüfbar
351.900 €
Kostenlos &
unverbindlich.
Kontakt aufnehmen

VORSORGE im Wildgarten* 3 ZIMMER mit Freifläche

Obj. Nr.: 46157

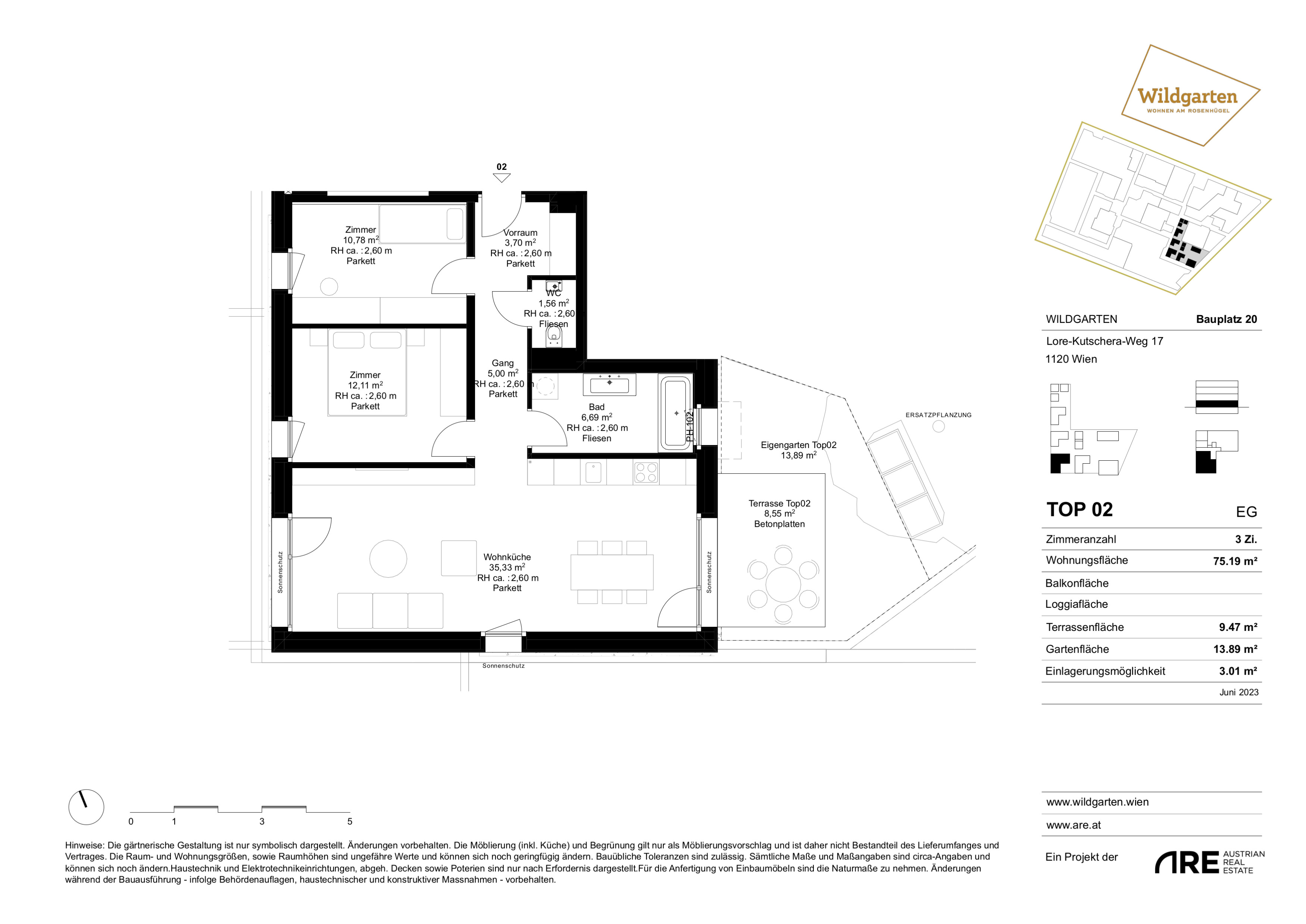
ca. 75,19 m² Nutzfläche 3 Zimmer
Partner von Infina EHL Wohnen Immobilienmakler 
Partner von Infina EHL Wohnen Immobilienmakler
351.900 € Kaufpreis der Immobilie Kreditvergleich von über 120 Banken mit Infina.
Immobilie finanzieren
Mehr Informationen zur Immobilie: Detaillierte Einblicke in dieses Objekt.
Zurück zur Übersicht

Objektstandort

1120 Wien,Meidling, Lore-Kutschera-Weg 2, Wien

Directions Icon Fahrtzeit berechnen
Preisinformationen
Kaufpreis 351.900 €
Betriebskosten inkl. USt. 224,10 €
Sonstige Kosten inkl. USt. 41,50 €
Grundbucheintragung: 1.1 %
Grunderwerbsteuer: 3.5 %
Was kann ich mir leisten?
Jetzt berechnen
Maklerprovision:
Provision bezahlt der Abgeber.

Objektinformationen

Objektart: Wohnung
Nutzungsart: Anlage
Bauart: Neubau
Zustand: Erstbezug
Baujahr: 2023

Rauminformationen & Flächen

Nutzfläche: ca. 75,19 m²
Gartenfläche: ca. 13,81 m²
Terrassenfläche: ca. 10,35 m²
Anzahl Terrassen: 1
Anzahl Zimmer: 3
Anzahl WC: 1
Anzahl Bäder: 1

Ausstattung

Boden: Fliesen, Parkett
Befeuerung: Fernwärme
Heizungsart: Fußbodenheizung
Küche: Wohnküche / offene Küche
Fahrstuhl: Personenaufzug
Balkon: Südostbalkon / -terrasse
Bad: Badewanne, Bad mit Fenster

Beschreibung *

Herzlich willkommen zum Projekt WILDGARTEN - einer einzigartigen Möglichkeit, nachhaltig in die Zukunft zu investieren. Dieses außergewöhnliche Immobilienprojekt wurde mit einem internationalen Städtebaupreis ausgezeichnet und bietet eine exklusive Kombination aus Veranlagung, perfekten Wohnungsgrößen und -schnitten, Renditenstärke und idyllischer Ruhelage.

Wohnkonzept:
Im Projekt WILDGARTEN finden Sie Wohnungen, die perfekt auf die Bedürfnisse von Mietern zugeschnitten sind. Von kompakten Einheiten für Singles und Paare bis hin zu großzügig geschnittenen Familienwohnungen bietet dieses Projekt eine breite Auswahl an Wohnungsgrößen. Die durchdachten Grundrisse und hochwertigen Materialien schaffen ein Ambiente, in dem Sie sich rundum wohlfühlen werden.

Renditenstärke:
Als Investor haben Sie hier die Möglichkeit, von einer renditestarken Anlage zu profitieren. Das Projekt WILDGARTEN wurde mit Blick auf langfristige Wertsteigerung und Nachhaltigkeit entwickelt. Der internationale Städtebaupreis zeugt von der außergewöhnlichen Qualität dieses Projekts und macht es zu einer begehrten Adresse für Mieter und Käufer gleichermaßen.

Garten und Nahversorgung:
Das Highlight des Projekts WILDGARTEN ist zweifellos der einladende Gemeinschaftsgarten. Hier finden Bewohner einen Ort der Entspannung und des sozialen Miteinanders. Eine gepflegte Grünanlage lädt zum Verweilen und Genießen ein, während Kinder sich auf dem Spielplatz austoben können. Zudem profitieren die Bewohner von einer perfekten Nahversorgung mit Geschäften, Supermärkten und Restaurants in unmittelbarer Nähe.

Nachhaltigkeit und Zukunft:
Nachhaltigkeit ist ein zentraler Wert des Projekts WILDGARTEN. Moderne Energiesparmaßnahmen, ressourcenschonende Bauweise und umweltfreundliche Technologien sind hier selbstverständlich. Investieren Sie in die Zukunft von morgen und tragen Sie dazu bei, dass kommende Generationen von einer lebenswerten Umgebung profitieren können.

Persönliche Beratung und Besichtigung: Unser erfahrenes Team steht Ihnen für eine persönliche Beratung gerne zur Verfügung. Wir beantworten all Ihre Fragen und zeigen Ihnen die Vorzüge des Projekts WILDGARTEN in einer individuellen Besichtigung vor Ort.

Nutzen Sie diese einzigartige Gelegenheit, in eine nachhaltige Zukunft zu investieren und sichern Sie sich jetzt Ihren Platz im Projekt WILDGARTEN - einem preisgekrönten Juwel der Stadtentwicklung

Gleich direkt zur Homepage? Folgen Sie doch gleich diesem Link https://www.wildgarten.wien/ .

Ein Projekt der ARE Development.

Die Bauplätze 11 & 20 -  Die Fakten

  • 7 Gebäude mit 2-4 Etagen, 2 Gebäude mit je 8 Etagen
  • gesamt 104 Wohnungen +  1 Geschäftslokal (33 am Bauplatz 11 und 71 am Bauplatz 20)
  • Breiter Wohnungsmix von 2- bis 4-Zimmer und von 48 m² bis 95 m² Wohnfläche
  • Obsthain, Garten und Wege
  • KFZ-Stellplätze können angemietet werden
  • Fahrrad & Kinderwagenabstellräume sowie Lagerräume
  • Gärten und Dachterrassen mit Blick über Wien zur gemeinsamen Nutzung
  • Energieausweis gültig bis 03.10.2031
    • HWB ab 23,72 kWh/m²a, Klasse B
    • fGEE ab 0,664, Klasse A+

Die Ausstattung wird Sie begeistern:

  • Fernwärme, FußbodenheizungJede Wohnung mit privater Freifläche wie Garten, Terrasse, Balkon,
  • Eichen Parkettboden in den Wohnräumen
  • Feinsteinzeug in den Nassräumen
  • Dreifach-Isolierverglaste Fenster
  • außenliegender Sonnenschutz

Die Wohnung Lore-Kutschera-Weg 12/1 wird belagsfertig übergeben!

zu erwartender Mietertrag von € 11,50 bis € 12,50 netto/m²

Provisionsfrei für den Käufer!
Die Fertigstellung ist bereits diesen Sommer erfolgt!

Hier finden Sie noch mehr Einblick  zum Projekt der ARE:  https://www.wildgarten.wien/der-wildgarten/ 

Lage und Infrastruktur

Vom und zum Wildgarten fährt man mit dem Bus (63A) der eigens für den Wildgarten eine neue Haltestelle bekommen wird. Der Bus bringt Sie zum Bahnhof Hetzendorf oder Bahnhof Atzgersdorf mit den Schnellverbindungen der S-Bahn. Mit dem Fahrrad benötigen Sie ca. 20 Minuten in den Wienerwald bzw. Lainzer Tiergarten, oder Sie sind zu Fuß in ca. 15 Minuten im Hietzinger Bad. Den Flughafen erreicht man mit dem Auto in ca. 25 Minuten. Das Zentrum Wiens ist in ca. 30 Minuten erreicht und doch sind Grünflächen und Freizeitangebote in unmittelbarer Umgebung. Das bietet die Lage des WILDGARTENs.

Angebote des täglichen Bedarfs und der sozialen Infrastruktur – wie etwa Nahversorgung, zwei Kindergärten und Gastronomie – werden direkt am Areal geschaffen.

Bei diesem Angebot handelt es sich um eine Vorsorgewohnung, die zu Vermietungszwecken erworben wird. Der angegebene Kaufpreis versteht sich daher zzgl. 20% USt.

Wir weisen darauf hin, dass zwischen dem Vermittler und dem zu vermittelnden Dritten ein familiäres oder wirtschaftliches Naheverhältnis besteht.

Der Vermittler ist als Doppelmakler tätig.


Infrastruktur / Entfernungen

Gesundheit
Arzt <1.250m
Apotheke <1.000m
Klinik <1.500m
Krankenhaus <1.250m

Kinder & Schulen
Schule <750m
Kindergarten <1.000m
Universität <3.750m
Höhere Schule <3.750m

Nahversorgung
Supermarkt <500m
Bäckerei <500m
Einkaufszentrum <1.750m

Sonstige
Geldautomat <1.250m
Bank <1.250m
Post <1.750m
Polizei <1.500m

Verkehr
Bus <250m
U-Bahn <1.750m
Straßenbahn <1.500m
Bahnhof <1.500m
Autobahnanschluss <1.750m

Angaben Entfernung Luftlinie / Quelle: OpenStreetMap


*Der Vertrag kommt nicht mit der INFINA Credit Broker GmbH zustande. Das Objekt wird von einem externen Immobilienunternehmen angeboten. Allfällige aus dem Vertragsabschluss resultierende Rechte sind ausschließlich gegenüber dem anbietenden Immobilienunternehmen geltend zu machen. Wir weisen Sie darauf hin, dass die gemachten Angaben und Informationen lediglich unverbindliche Vorabinformationen sind und daher ohne Gewähr erfolgen. Der Vermittler ist als Doppelmakler tätig.

Energieausweis & Heizung
HWB (kWh/m2/Jahr): 27.97
HWB Energieklasse B
fGEE: 0.69
fGEE Energieklasse B
Gültig bis: 02.10.2031
Heizung: Fußbodenheizung
Befeuerung: Fernwärme
Dokumente & Videos Pläne
Partner von Infina EHL Wohnen Immobilienmakler
Gesundheit:
Arzt: 990 m
Klinik: 1470 m
Apotheke: 850 m
Krankenhaus: 1000 m
Sonstige:
Polizei: 1510 m
Post: 1430 m
Bank: 1310 m
Geldautomat: 950 m
Kinder & Schulen:
Höhere Schule: 3480 m
Schule: 600 m
Universität: 3660 m
Kindergarten: 230 m
Verkehr:
Autobahnanschluss: 1700 m
U-Bahn: 1680 m
Straßenbahn: 1290 m
Bus: 180 m
Bahnhof: 1310 m
Nahversorgung:
Bäckerei: 510 m
Supermarkt: 270 m
Einkaufszentrum: 1530 m

Jetzt Experten kontaktieren

Weitere interessante Objekte

Immobilie kaufen: Das passende Angebot finden

Der Kauf einer Immobilie ist eine wichtige Entscheidung – sei es für die Eigennutzung oder zur Vermietung. Mit unserem Portal unterstützen wir Sie dabei, die richtige Immobilie zu kaufen. Nutzen Sie unsere Suchmöglichkeiten, um gezielt eine Immobilie zu suchen, die Ihren Vorstellungen entspricht. Unsere Immobilienangebote decken eine breite Palette ab: vom Einfamilienhaus über die Eigentumswohnung bis hin zum Grundstück für Ihr Bauvorhaben. Mit uns können Sie sicher und unkompliziert Eigentum erwerben – ob für die private Nutzung oder als Investition als Immobilie. Erkunden Sie jetzt unsere Angebote und finden Sie die perfekte Lösung, die zu Ihren Wohn- oder Anlagezielen passt.

Fundiertes Wissen für Ihre Entscheidung, eine Immobilie zu kaufen

Bereiten Sie sich bestens vor: Infina stellt Ihnen kostenlos über 300 Ratgeber und Beiträge zu den Themen Immobilie, Finanzierung, Zinsen und Recht zur Verfügung. Nutzen Sie unser umfassendes Wissen, um richtige Entscheidungen zu treffen.

Bei jedem Kauf einer Immobilie oder eines Grundstücks ist es wichtig, die passende Finanzierung zu finden. Mit seiner eigenen Vertriebsorganisation ist Infina als Wohnbau-Finanz-Experte an über 100 Standorten in ganz Österreich vertreten und vermittelt Finanzierungen an über 120 Banken und Bausparkassen. Nutzen Sie unseren kostenlosen Kreditvergleich für den passenden Wohnkredit: 

Kreditvergleich

Kostenlos und unverbindlich

Immobilie mieten: Ihr neues Zuhause wartet

Die Entscheidung, eine Immobilie zu mieten, bietet Flexibilität und zahlreiche Möglichkeiten – ob eine Wohnung für den Alltag oder ein Haus für die Familie. Bei Infina können Sie gezielt sowohl eine Wohnung suchen als auch ein Haus suchen, das Ihren Bedürfnissen entspricht. Unsere Angebote erleichtern es Ihnen, eine Mietwohnung zu suchen und Ihre ideale Wohnung finden zu können. Entdecken Sie vielfältige Optionen, um die passende Immobilie zu finden und Ihre Wohnträume zu verwirklichen. Starten Sie noch heute Ihre Suche und profitieren Sie von einer großen Auswahl an Mietobjekten in Ihrer Wunschregion.

Hilfreiche Informationen zu Immobilie mieten

Starten Sie gut vorbereitet in Ihre Mietentscheidung: Infina stellt Ihnen vielseitige Ratgeber und Beiträge zu Themen wie Immobilie, Mietrecht, Finanzierung und Wohntrends zur Verfügung. Verschaffen Sie sich einen Überblick über alle relevanten Aspekte und gestalten Sie Ihren Weg ins neue Zuhause einfacher und sicherer.

Erfolgreich zur neuen Immobilie

Mit Infina haben Sie einen verlässlichen Partner an Ihrer Seite, der Sie von der ersten Beratung bis zum erfolgreichen Abschluss ganzheitlich unterstützt. Erfahren Sie hier, wie wir gemeinsam Ihren Immobilienerfolg gestalten.

Starten Sie jetzt Ihre Immobiliensuche

Nach zahlreichen Informationen rund um die Themen Immobilie kaufen und Immobilie mieten können Sie nun den nächsten Schritt machen. Starten Sie die Immobiliensuche, um Ihr neues Zuhause oder Ihre nächste Investition zu finden und entdecken Sie die passenden Angebote:

Das innovative Portal für Immobilien und Finanzierung 

Als Kunde von Infina profitieren Sie von unserer umfangreichen und unabhängigen Expertise als Teil einer wachsenden, unabhängigen Immobilien- und Finanzierungsnetzwerkgruppe. Bereits 50.000 Kunden hat Infina erfolgreich bei Ihrem Vorhaben begleitet. Infina bietet Ihnen eine umfassende Beratung in allen Bereichen rund um Ihre Immobilienvorhaben:

Die passende Finanzierung für Ihre Immobilie

Mit Infina erhalten Sie nicht nur eine unabhängige Beratung, sondern auch die passende Finanzierungslösung für Ihre Immobilie. Aus den Angeboten von über 120 Banken und Bausparkassen vermitteln wir Ihnen das, was perfekt zu Ihren Bedürfnissen passt. Wir begleiten Sie professionell und verlässlich – von der ersten Beratung bis zum erfolgreichen Abschluss.

Kreditvergleich

Kostenlos und unverbindlich

Wir holen das Beste für Sie heraus

Verkaufen Sie Ihre Immobilie mit uns & profitieren Sie von unserer Expertise. Wir bringen Ihre Immobilie optimal auf den Markt & erzielen den besten Preis. 

Kontaktieren Sie uns jetzt.

Jetzt Experten kontaktieren
Junge Frau im pinken Blazer hält ein Modellhaus in der linken Hand und zeigt mit der rechten Hand nach oben, als hätte sie eine Idee. Sie lächelt und blickt leicht nach oben – symbolisch für Inspiration oder Immobilienberatung.