INFINA LOGO
Entspannt zur Immobilie Persönlich & kompetent beraten Finanzierbarkeit sofort überprüfbar
309.000 €
Kostenlos &
unverbindlich.
Kontakt aufnehmen

Erstbezug 2-Zimmer, Nähe Meiselmarkt

Obj. Nr.: 45035

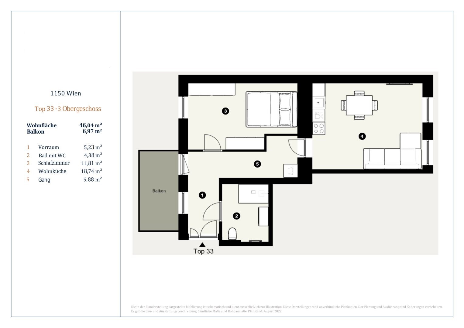
ca. 46,04 m² Wohnfläche 2 Zimmer
Partner von Infina IM Lifestyle Properties Immobilienmakler 
Partner von Infina IM Lifestyle Properties Immobilienmakler
309.000 € Kaufpreis der Immobilie Kreditvergleich von über 120 Banken mit Infina.
Immobilie finanzieren
Mehr Informationen zur Immobilie: Detaillierte Einblicke in dieses Objekt.
Zurück zur Übersicht

Objektstandort

1150 Wien,Rudolfsheim-Fünfhaus, Wien Adresse anfragen

Directions Icon Fahrtzeit berechnen
Preisinformationen
Kaufpreis 309.000 €
Grundbucheintragung: 1.1 %
Grunderwerbsteuer: 3.5 %
Was kann ich mir leisten?
Jetzt berechnen
Maklerprovision:
3,00 % des Kaufpreises zzgl. 20 % USt.

Objektinformationen

Objektart: Wohnung
Nutzungsart: Wohnen
Bauart: Altbau
Zustand: Erstbezug
Baujahr: 1909

Rauminformationen & Flächen

Wohnfläche: ca. 46,04 m²
Balkonfläche: ca. 6,97 m²
Anzahl Balkone: 1
Anzahl Zimmer: 2
Anzahl WC: 1
Anzahl Bäder: 1

Ausstattung

Boden: Fliesen, Parkett
Befeuerung: Gas
Heizungsart: Fußbodenheizung
Küche: Wohnküche / offene Küche
Bad: Dusche

Beschreibung *

Im Falle der Notwendigkeit einer Fremdfinanzierung Ihrer Wunschimmobilie ermittelt unser Wohnbau-Finanzierungsexperte gerne die optimale Finanzierungslösung und findet das passende Zins- und Konditionsangebot für Sie. Er vergleicht die aktuellen Angebote aller relevanten Banken und Bausparkassen. Der Angebotsvergleich kann aus einem Portfolio von über 120 Banken erfolgen. Das Erstgespräch ist für Sie kostenfrei und unverbindlich, gerne auch bei Ihnen vor Ort. So sparen Sie Ihre wertvolle Zeit und erhalten eine professionelle und unabhängige Finanzierungslösung vom Spezialisten. Sprechen Sie uns wegen eines Termins gerne an!

Zum Verkauf gelangt eine schöne 2-Zimmer Wohnung im 15. Wiener Gemeindebezirk.

Sie ist ein Erstbezug, verfügt über ca. 46 m² und befindet sich im 3. Stock eines im Jahr 1900 erbauten Altbaus. Die Wohnung gliedert sich in einen Vorraum, eine Wohnküche, ein Schlafzimmer und ein Bad mit WC. Es kann ein Balkon angebracht werden.

Die Wohnung wurde vor kurzem saniert und verfügt über einen Fischgrät-Eichenparkett und ist mit stilvollen Kassettentüren ausgestattet. Eleganter Deckenstuck und feine Vertäfelungen unterstreichen den einzigartigen Alt-Wien-Charakter. Das Bad und das WC bestechen durch hochwertige Marken-Armaturen & Keramiken.

Der um die Jahrhundertwende errichtete Stilaltbau befindet sich in einer gefragten Wohngegend des 15. Wiener Gemeindebezirks. Nach Renovierung der eleganten Gründerzeitfassade wurden auch sämtliche Allgemeinflächen des Hauses mit viel Liebe zum Detail saniert. Das Zinshaus verfügt über 3 Regelgeschoße.

Neben der sehr guten Verkehrsmittelanbindung bietet die Lage auch eine ausgezeichnete Nahversorgung. Zahlreiche Einkaufsmöglichkeiten, öffentliche Einrichtungen, Parkanlagen und Geschäfte für den täglichen Bedarf befinden sich in unmittelbarer Nähe.

Die Infrastruktur ist optimal, da fußläufig alle Bedürfnisse des täglichen Alltags gedeckt werden. Nur ein paar Minuten entfernt liegt auch der Meiselmarkt, welcher mit lukullischen Köstlichkeiten aus aller Welt an die Marktstände lockt. Die U-Bahn-Station U3 "Johnstraße" ist in nur wenigen Gehminuten erreichbar und bietet somit einen perfekten Anschluss in die Innenstadt.

Die Vertragserrichtung und Treuhandabwicklung ist gebunden an die Kanzlei Mag. Schreiber A-1010 Wien, Schottenring 16. Die Kosten betragen 1,5 % des Kaufpreises zzgl. 20 % USt. sowie Barauslagen und Beglaubigung. Bei Fremdfinanzierung erhöht sich das Honorar auf 1,8 % vom Kaufpreis zzgl. 20 % USt., Barauslagen und Beglaubigung.

Überzeugen Sie sich selbst von dieser Immobilie.

Für Besichtigungen und nähere Informationen stehen wir Ihnen gerne zur Verfügung!

Frau Marie-Louise Eisenburger
national - Tel:  0676 605 9800
international - Tel.: +43 676 605 9800
e-mail: eisenburger@lifestyle-properties.at

Wir weisen darauf hin, dass zwischen dem Vermittler und dem zu vermittelnden Dritten ein familiäres oder wirtschaftliches Naheverhältnis besteht.

Der Vermittler ist als Doppelmakler tätig.


Infrastruktur / Entfernungen

Gesundheit
Arzt <500m
Apotheke <500m
Klinik <1.000m
Krankenhaus <2.000m

Kinder & Schulen
Schule <500m
Kindergarten <500m
Universität <1.000m
Höhere Schule <1.500m

Nahversorgung
Supermarkt <500m
Bäckerei <500m
Einkaufszentrum <500m

Sonstige
Geldautomat <500m
Bank <500m
Post <500m
Polizei <500m

Verkehr
Bus <500m
U-Bahn <500m
Straßenbahn <500m
Bahnhof <500m
Autobahnanschluss <5.000m

Angaben Entfernung Luftlinie / Quelle: OpenStreetMap


*Der Vertrag kommt nicht mit der INFINA Credit Broker GmbH zustande. Das Objekt wird von einem externen Immobilienunternehmen angeboten. Allfällige aus dem Vertragsabschluss resultierende Rechte sind ausschließlich gegenüber dem anbietenden Immobilienunternehmen geltend zu machen. Wir weisen Sie darauf hin, dass die gemachten Angaben und Informationen lediglich unverbindliche Vorabinformationen sind und daher ohne Gewähr erfolgen. Der Vermittler ist als Doppelmakler tätig.

Energieausweis & Heizung
HWB (kWh/m2/Jahr): 185.4
HWB Energieklasse E
fGEE: 2.91
fGEE Energieklasse E
Gültig bis: 31.05.2030
Heizung: Fußbodenheizung
Befeuerung: Gas
Dokumente & Videos Pläne
Partner von Infina IM Lifestyle Properties Immobilienmakler
Verkehr:
Autobahnanschluss: 3900 m
U-Bahn: 410 m
Straßenbahn: 40 m
Bus: 40 m
Bahnhof: 400 m
Kinder & Schulen:
Kindergarten: 180 m
Universität: 480 m
Höhere Schule: 1540 m
Schule: 160 m
Sonstige:
Polizei: 600 m
Post: 440 m
Bank: 440 m
Geldautomat: 280 m
Nahversorgung:
Bäckerei: 60 m
Einkaufszentrum: 1050 m
Supermarkt: 60 m
Gesundheit:
Krankenhaus: 970 m
Apotheke: 160 m
Arzt: 60 m
Klinik: 140 m

Jetzt Experten kontaktieren

Weitere interessante Objekte

Wien
Partner von Infina
Jetzt anfragen
ca. 37,04 m² Nutzfläche 1 Zimmer
313 €
Partner von Infina
Jetzt anfragen
3.251 €/m²
181.750 €
Partner von Infina
Jetzt anfragen
229.000 €
Partner von Infina
Jetzt anfragen
ca. 27,20 m² Wohnfläche 1 Zimmer
239.000 €
Wien
Partner von Infina
Jetzt anfragen
3.548 €/m²
149.000 €

Immobilie kaufen: Das passende Angebot finden

Der Kauf einer Immobilie ist eine wichtige Entscheidung – sei es für die Eigennutzung oder zur Vermietung. Mit unserem Portal unterstützen wir Sie dabei, die richtige Immobilie zu kaufen. Nutzen Sie unsere Suchmöglichkeiten, um gezielt eine Immobilie zu suchen, die Ihren Vorstellungen entspricht. Unsere Immobilienangebote decken eine breite Palette ab: vom Einfamilienhaus über die Eigentumswohnung bis hin zum Grundstück für Ihr Bauvorhaben. Mit uns können Sie sicher und unkompliziert Eigentum erwerben – ob für die private Nutzung oder als Investition als Immobilie. Erkunden Sie jetzt unsere Angebote und finden Sie die perfekte Lösung, die zu Ihren Wohn- oder Anlagezielen passt.

Fundiertes Wissen für Ihre Entscheidung, eine Immobilie zu kaufen

Bereiten Sie sich bestens vor: Infina stellt Ihnen kostenlos über 300 Ratgeber und Beiträge zu den Themen Immobilie, Finanzierung, Zinsen und Recht zur Verfügung. Nutzen Sie unser umfassendes Wissen, um richtige Entscheidungen zu treffen.

Bei jedem Kauf einer Immobilie oder eines Grundstücks ist es wichtig, die passende Finanzierung zu finden. Mit seiner eigenen Vertriebsorganisation ist Infina als Wohnbau-Finanz-Experte an über 100 Standorten in ganz Österreich vertreten und vermittelt Finanzierungen an über 120 Banken und Bausparkassen. Nutzen Sie unseren kostenlosen Kreditvergleich für den passenden Wohnkredit: 

Kreditvergleich

Kostenlos und unverbindlich

Immobilie mieten: Ihr neues Zuhause wartet

Die Entscheidung, eine Immobilie zu mieten, bietet Flexibilität und zahlreiche Möglichkeiten – ob eine Wohnung für den Alltag oder ein Haus für die Familie. Bei Infina können Sie gezielt sowohl eine Wohnung suchen als auch ein Haus suchen, das Ihren Bedürfnissen entspricht. Unsere Angebote erleichtern es Ihnen, eine Mietwohnung zu suchen und Ihre ideale Wohnung finden zu können. Entdecken Sie vielfältige Optionen, um die passende Immobilie zu finden und Ihre Wohnträume zu verwirklichen. Starten Sie noch heute Ihre Suche und profitieren Sie von einer großen Auswahl an Mietobjekten in Ihrer Wunschregion.

Hilfreiche Informationen zu Immobilie mieten

Starten Sie gut vorbereitet in Ihre Mietentscheidung: Infina stellt Ihnen vielseitige Ratgeber und Beiträge zu Themen wie Immobilie, Mietrecht, Finanzierung und Wohntrends zur Verfügung. Verschaffen Sie sich einen Überblick über alle relevanten Aspekte und gestalten Sie Ihren Weg ins neue Zuhause einfacher und sicherer.

Erfolgreich zur neuen Immobilie

Mit Infina haben Sie einen verlässlichen Partner an Ihrer Seite, der Sie von der ersten Beratung bis zum erfolgreichen Abschluss ganzheitlich unterstützt. Erfahren Sie hier, wie wir gemeinsam Ihren Immobilienerfolg gestalten.

Starten Sie jetzt Ihre Immobiliensuche

Nach zahlreichen Informationen rund um die Themen Immobilie kaufen und Immobilie mieten können Sie nun den nächsten Schritt machen. Starten Sie die Immobiliensuche, um Ihr neues Zuhause oder Ihre nächste Investition zu finden und entdecken Sie die passenden Angebote:

Das innovative Portal für Immobilien und Finanzierung 

Als Kunde von Infina profitieren Sie von unserer umfangreichen und unabhängigen Expertise als Teil einer wachsenden, unabhängigen Immobilien- und Finanzierungsnetzwerkgruppe. Bereits 50.000 Kunden hat Infina erfolgreich bei Ihrem Vorhaben begleitet. Infina bietet Ihnen eine umfassende Beratung in allen Bereichen rund um Ihre Immobilienvorhaben:

Die passende Finanzierung für Ihre Immobilie

Mit Infina erhalten Sie nicht nur eine unabhängige Beratung, sondern auch die passende Finanzierungslösung für Ihre Immobilie. Aus den Angeboten von über 120 Banken und Bausparkassen vermitteln wir Ihnen das, was perfekt zu Ihren Bedürfnissen passt. Wir begleiten Sie professionell und verlässlich – von der ersten Beratung bis zum erfolgreichen Abschluss.

Kreditvergleich

Kostenlos und unverbindlich

Wir holen das Beste für Sie heraus

Verkaufen Sie Ihre Immobilie mit uns & profitieren Sie von unserer Expertise. Wir bringen Ihre Immobilie optimal auf den Markt & erzielen den besten Preis. 

Kontaktieren Sie uns jetzt.

Jetzt Experten kontaktieren
Junge Frau im pinken Blazer hält ein Modellhaus in der linken Hand und zeigt mit der rechten Hand nach oben, als hätte sie eine Idee. Sie lächelt und blickt leicht nach oben – symbolisch für Inspiration oder Immobilienberatung.